查看完整案例

收藏

下载
色彩舒适
Anastasia Voloshina
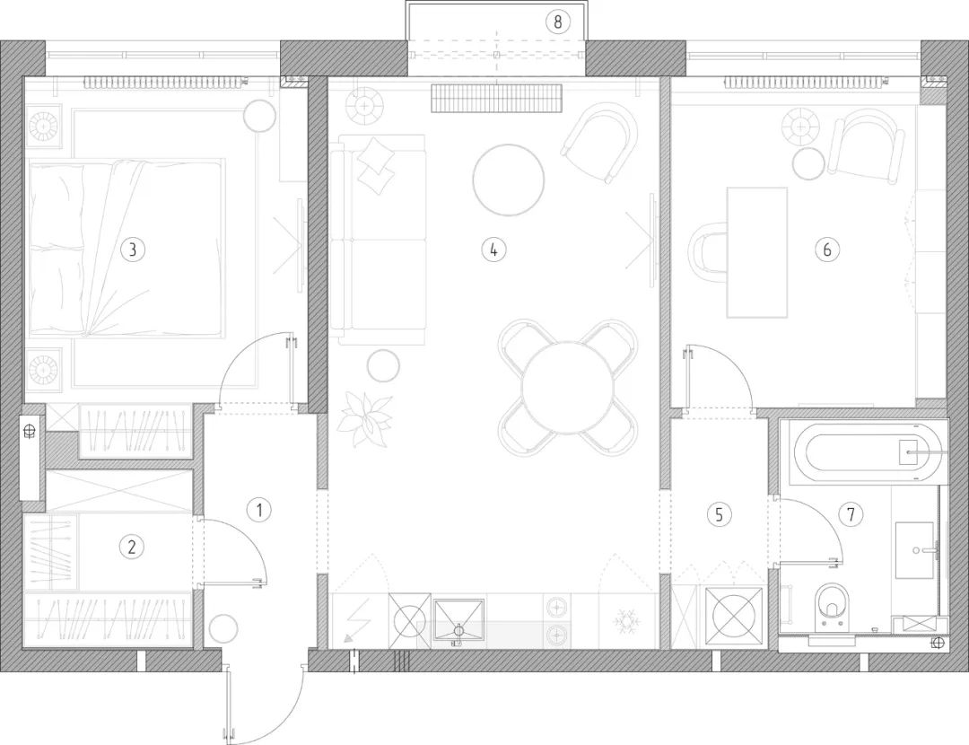
新作,为一位富有创意的年轻女孩打造了带有经典细节的明亮内饰,面积57
㎡
。在室内设计中,她想摆脱灰色和米色,添加更多的色彩和舒适度。主要要求之一是组织一个独立的办公室,配有图书馆、一把扶手椅和一张工作的桌子。
空间布局
▽
镜子可以扩大空间视觉,在走廊里做了一面镜面墙,后面隐藏着更衣室。卧室装饰有两块彼此对称的拱形镜子。在办公室的窗户对面挂了一面形状不寻常的镜子,这不仅使房间更大,而且更明亮。
在几乎所有的房间里,都使用了另一种装饰技术——从墙壁到天花板添加颜色。在走廊、卧室、办公室和厨房客厅的一部分都可以看到这一点。厨房客厅乃至整个项目的主要特征是金色的运用,又内敛而高贵。
在卧室里,羽毛吊灯吸引了所有的注意力。
从墙壁流向天花板的蓝色油漆象征着天空,吊灯象征着白云。
化妆台上未开的花蕾与翱翔的小鸟的吊灯也“拾取”了这个与天空和自然的故事。
办公室完全漆成绿色,用花卉壁纸突出了桌子后面的墙壁。浴室似乎延续了办公室的色调。在这里,使用两种颜色的瓷砖将空间划分为多个区域。侧面开放式搁架完美地隐藏了客人的所有物。水龙头上方的架子可以放置化妆品,而不会弄乱水槽周围的台面。
客服
消息
收藏
下载
最近

















