查看完整案例

收藏

下载
一个平凡的家 495㎡极简宅 |拙人营造
Hey,大家好,今天给大家分享的这个家的主题叫:一个平凡的家。在2022年12月26日,我们把这个家交付给了业主。
这个家历时共9个月(疫情过程中耽误了3个月),实际时间为6个月左右。面积为495平方。为了能够让大家看到整个的全过程,我们精选了一部分过程的照片。每张照片代表了一个关键性的节点。OK,接下来给大家就来正式分享:这个平凡的家的背后。
这是一个平凡的家,也是一个简单的家。这次我们在材料上的使用也非常的少,就采用到了漆、木作,还有浅色的地砖。其实,并不是每一个家都需要彰显个性,也不是每一个家都需要与众不同。
有时候家的温度更多的不是来自于单一的空间,也并非来自于这些空间表面的颜色,而是真正的来自于对生活的兴趣,对生活的热情,还有对新的生活模式的向往。
设计后记
材料
后院的生态防腐木花色采购下单时失误,导致了颜色与原建筑外立面不匹配,于是我们在中途全部进行了更换,这样就造成了人力物力的浪费。
软装
起居厅的主沙发重量偏重,因为最初设想的是在起居厅可以进行多功能重组的,在功能上有一定的亲子延伸,但因为家具重量过重,后期将不方便移动,这样就对功能的延伸产生了一些障碍。
灯光
这次灯光的整体平均照度都比以往的住宅提升了30%,因为考虑到是三代人居住,老人年龄偏大,孩子还在小学一年级,但是这样就会出现天花布局的点位较为繁杂,我们是通过增加点位而非加大单个射灯的功率这样的手法来进行处理的。这样的手法就会导致在天花美学上负担较重。因为过多的点位将会与其他的设备点位产生一些不和谐的关系。
空间
本次在空间规划上考虑了垂直视线的互动,在负1F和负2F之间,以及在1F和2F之间均设置了竖向穿插的体块,总共约四处。但是这四处的空间尺度比例关系还有待提升,如果能将空间比例关系再进行一些深化,更多的考虑人的身高以及人操作时的视野设计,那么,这将会给居住者在整个家里的生活体验加分。
上下滑动查看更多
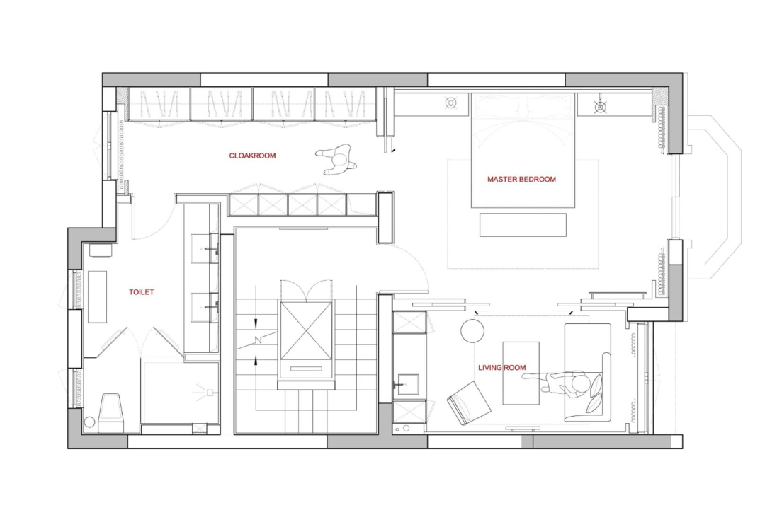
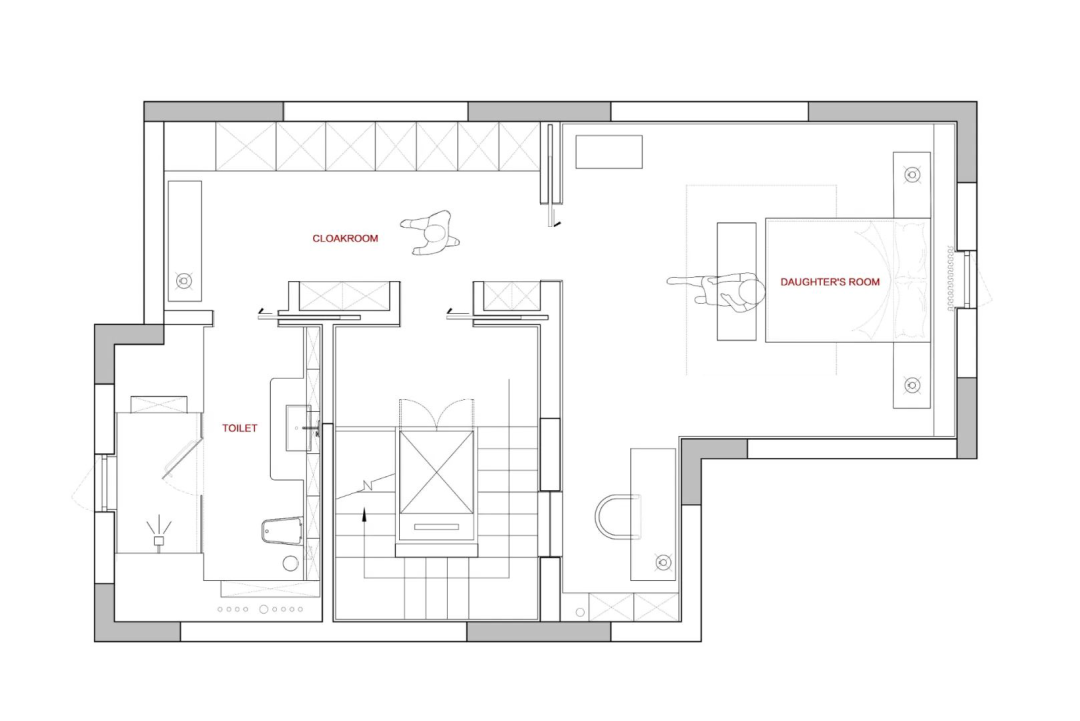
-1F
1F
2F
3F
4F
项目品牌名称|一个平凡的家
项目面积|495㎡
设计总监|叶晓波
主笔设计师|姚艺华
参与设计|陈婷、张雅洁、王亚文、徐春草、王珂
软装设计|冯晓静、张琳肖
项目PM |李阳
项目摄影|明境建筑摄影
客服
消息
收藏
下载
最近


































