查看完整案例

收藏

下载
本案是一栋600多平的别墅
业主对整体空间的品质,细节,设计感的追求极高
初期方案经过我们的修改和补充完全达到业主的认可
施工,设计落地,配套主材全案交付于我们
现在轻奢风的特点是简洁实用
无论是空间的布局还是饰品设计的搭配
摒弃繁复的装饰,崇尚低调的奢华,时尚与传统
以高品质,设计感,简约为特点
咖色和金色的微妙组合
时尚又凸显个性
在柔和的灯光照射下
整个空间变得更有格调和气质
浑然天成
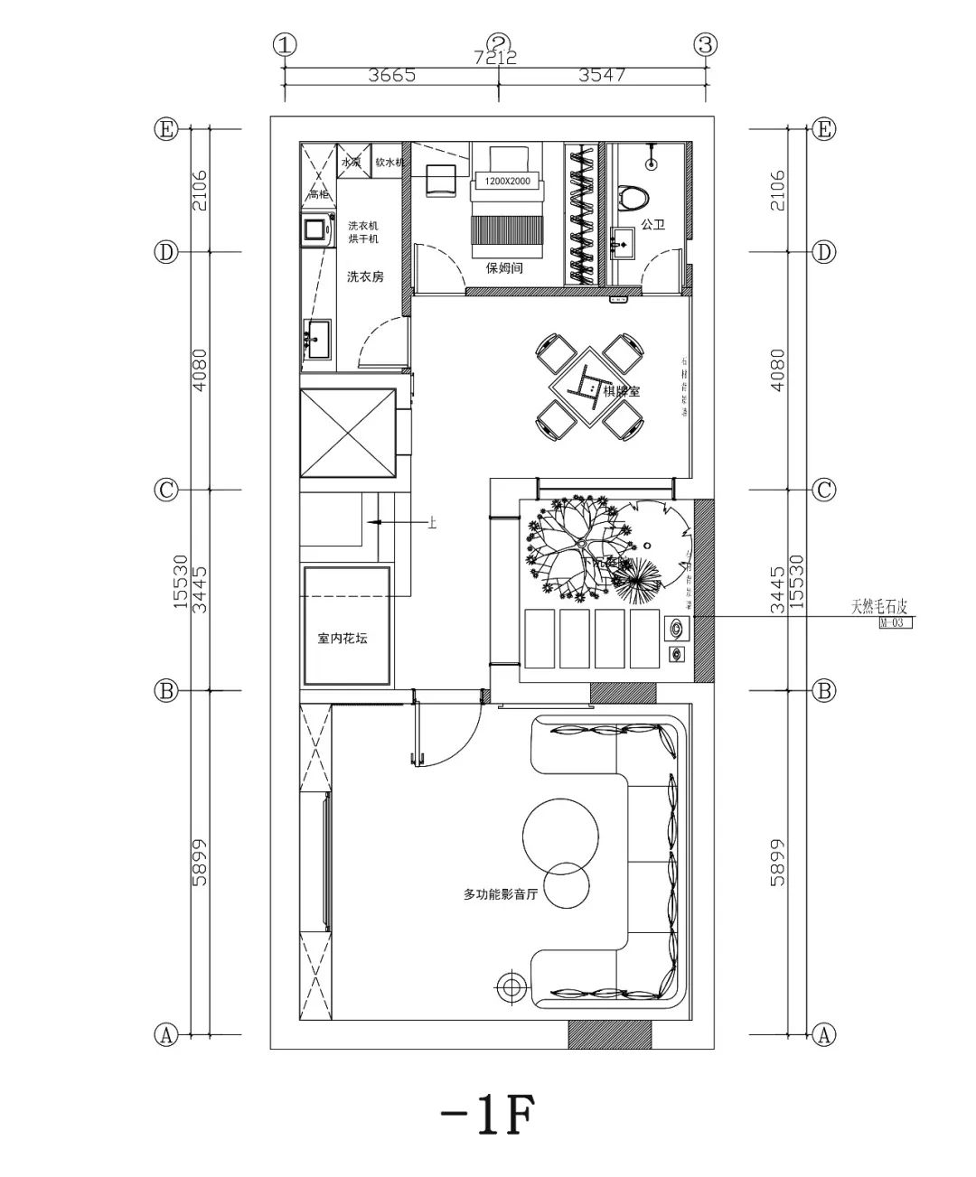
负一层空间
Negative space
首先我们踏入室内的负一层娴静宜人室内花园,透着一股自然的清香和活力多功能影音室,如行云流水般满足家人的日常需求。
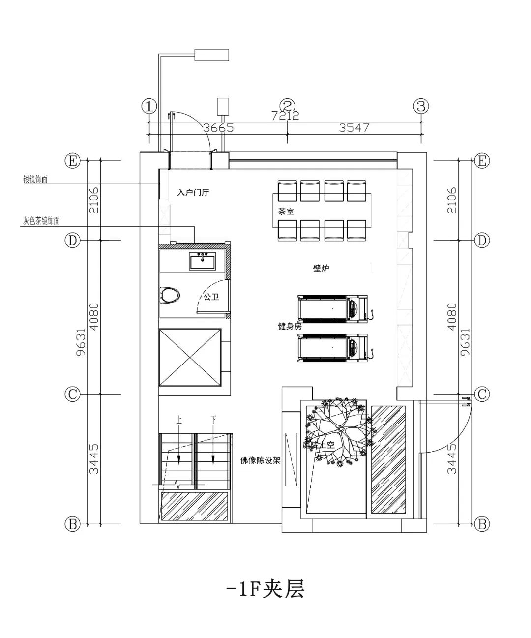
接着我们来到负一层夹层
映入眼帘的是一间茶室
这个小小的空间以逸静和宁谧见长
仿佛一轮明月悬于天空
茶室中的壁炉散发着温暖的光芒
犹如一炉烈火点燃了人们内心的激情
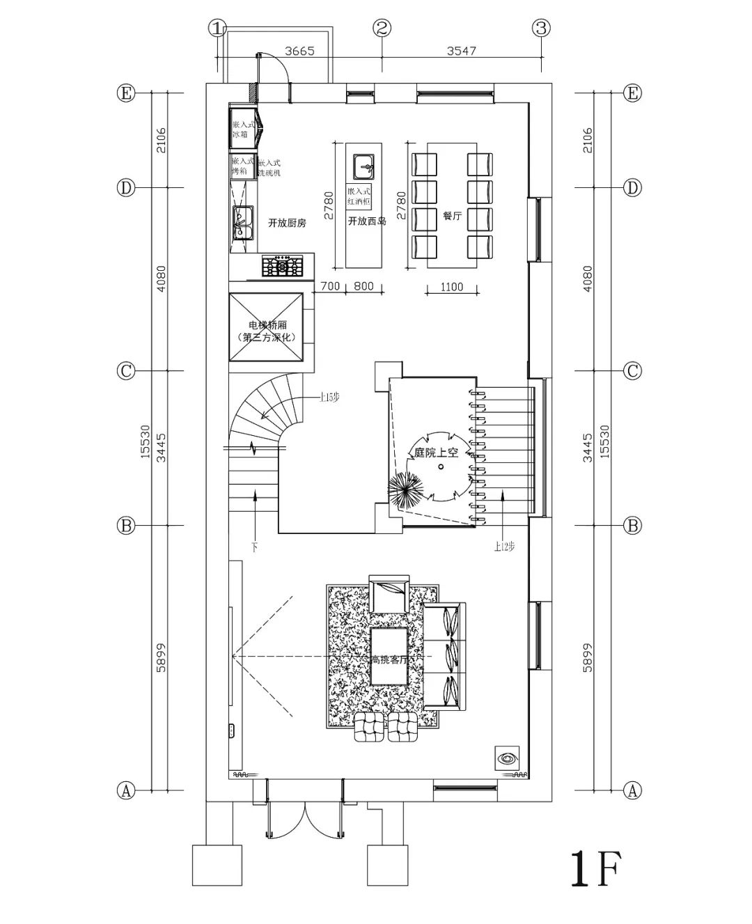
一层空间
A layer of space
来到一层
迎接我们的是一个高挑的客厅
豪华气派,纤尘不染
开放式厨房和岛台相得益彰
犹如文人墨客的才思一般自由流动
二、三层空间
Two-level space
继续走向二层
书房作为安静学习的圣地让人们在书香中修身养性
两个客房宽敞而舒适宾至如归一如古人所说的“客来如归”
最后,我们抵达了三层主卧室是整个别墅的灵魂所在宽敞而私密衣帽间整洁有序犹如层层云彩装点着幸福生活的蓝天化妆间则为女主人提供打扮装点的舞台每一次的妆点都散发着自信和美丽而室外阳台则是接触自然的窗口微风徐徐让人沐浴在阳光和清新的空气之中。
落地设计师陈可设计理念:设计源于生活高于生活,细节成就品质!
落地案例:星联湾别墅;中海玖园;中建柒号院;金沙湖别墅;保利天汇;鑫苑国际鑫城;普罗理想国别墅;正商善水上镜;碧源荣府等
金牌管家:吴鑫鑫
项目经理:夏彬彬
·项目信息·项目名称:星联湾
项目面积:600平
设计风格:现代轻奢
项目类型:别墅
项目地点:中国·郑州
项目服务:设计·施工·硬装·软装 全案设计
施工单位:南京龙瑞装饰(郑州)公司
完工工期:10个月
平面图分析
每个空间都有属于它的故事,在有限空间里创造出无限的生活灵感;一朵枯萎的花一捆未经修饰的草,身处充满意味的房间中,会让人无端平静下来,放慢脚步去领略静下来的人世是怎样的。
客服
消息
收藏
下载
最近




























