查看完整案例


收藏

下载

翻译
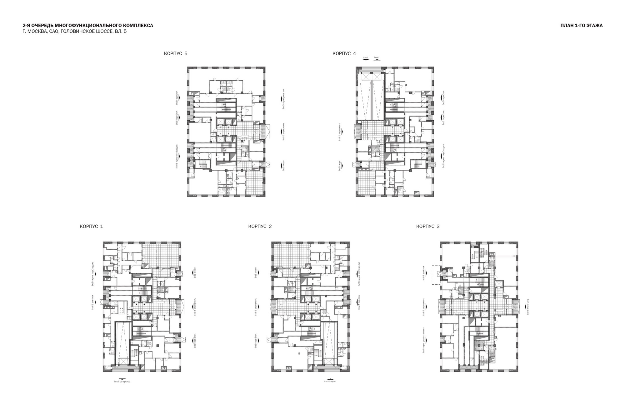
This residential complex consists of five 26-storey buildings arranged in a checkerboard pattern on top of a multi-storey underground car park. This configuration of volumes of identical shape and height has made it possible to create a system of semi-enclosed inner courtyards between the blocks. The main entrances to the buildings face the courtyards and take the form of stately portals.
The complex’s architectural image combines a memorable contribution to the city’s skyline with finely detailed façades made from ceramic tiles in different colours. Each building has façades of unique design involving the use of glazed ceramic surfaces of various colours and textures.
Each tower contains studio and one- and two-bedroom apartments with floor areas of between 39 and 97 sqm. The ground floors of the buildings contain all necessary infrastructure, including social facilities such as a kindergarten, a fitness club, cafes and restaurants, and household services.
The decoration of the complex’s entrance areas makes use of drawings from Sergei Tchoban’s City and Water series. Executed in different years and in different cities, the drawings study the drama of the interaction between architecture and aquatic space. The architect and client together selected a total of 15 works (three for each entrance area), which were then digitally printed on glass. According to the architects, this gives each of the staircases its own distinctive character while also exploring the significance of the complex’s name.
客服
消息
收藏
下载
最近






















