查看完整案例


收藏

下载
主入口-原野感景观与建筑
01 场地
项目用地位于成都南中轴延长线、天府大道眉山段南侧,地处眉山环天府新区中部主题文化旅游产业区,并处于天府新区文化旅游带与两湖一山生态文化旅游带交汇之处,本中心未来将成为区域文旅布局的重要支撑点。项目计划引入国际级主题游乐 IP,打造出城南天府新区的国家级休闲旅游目的地。区域综合开发以旅游体验为特色,集主题游乐、度假、文化、运动、居住等功能为一体。
▲鸟瞰效果图
作为国际文旅项目启动区,本项目位于区域的核心部分,用地西侧毗邻一片珍贵的生态公园绿地。项目由活动中心和商业街共同构成社区的活力空间。
02 自然环抱的英伦小镇肌理
鉴于区域文旅布局最初考虑引入国际级主题游乐 IP 的特点,项目定位起源为英伦小镇。我们对典型的英伦小镇进行规划溯源,提取 4 个关键要素作为英伦小镇的空间典型形态:自然环抱、构建中心、主街打造、均匀肌理,同时注重传统小镇空间的尺度体系。成都卓越世界青少年成长中心作为小镇的核心建筑,将构建小镇的精神中心。成长中心位于用地南侧,与商业主街形成交汇,共同构建出小镇中心广场。空间布局充分利用西侧北侧的景观资源,通过多条景观通廊,加强与公园的联系与渗透,形成大小不同的多个小镇组团及网格体系,形成了多个均质的公共节点,打造多层级空间体验。
▲空间对话-入口
03 森林中的成长中心
卓越世界青少年成长中心为永久性建筑,但需要回应不同空间使用周期的不同使用功能命题:前期功能为小镇生活展示体验区;之后将作为青少年成长中心,为本区域提供青少年活动核心空间。
经过多轮方案调整以及与业主方的沟通讨论,整个项目的定位越来越清晰:以体验流线多空间变化为重点,增强展示中心体验感;多空间的流线组织也同步回应后阶段的成长中心功能需求。经过十几版方案的调整与沟通,最终确定了当前建成方案。
▲头脑风暴
鉴于项目用地的优质生态环境,将西侧公园向东延伸引入场地,打造“森林中的成长中心”。绿色景观漫入三个庭院,在场地内营造出 3 个不同尺度的“绿园”,将建筑体进行有机分割,形成多个青少年活动场馆。游走于场馆之间,如同置身于自然景观之中。构筑屋顶生态景观平台,一体打造森林中的成长中心概念,让成长中心成为自然生态的一部分,为多层级空间置入多变性体验,丰富了青少年的室外活动空间。
▲绿色漫入三个庭院
▲交互空间-景观绿院
▲交互空间-景观水院
▲建筑自然地融入公园
▲方案模型
内部空间通过多庭院的介入与流动空间的形成,激活有序的探索空间;外部空间有效融合小镇规划肌理,降低公园与广场两侧的尺度感。营造小镇中心的体验感,展现未来更开放、更多元的生活社区。
▲方案模型
▲模块导入
将文化馆内部功能分解,模块化导入基地。
▲景观延伸
将公园景观延伸进来,建筑变得疏密有致。同时结合展示中心和文化馆的双重功能,将体量模块分组,最终标准模块相互组合形成独立功能空间。
▲建筑“山体”将建筑群打造成景观山体,建筑既可观景也成为中心“景观”。景观山体变为抽象的建筑表达,整体建筑群形态自然生动,成为英伦小镇形态的现代演绎。
▲嵌入庭院
嵌入的景观庭院变成虚体空间,自然分割多个功能空间。
▲流动“山体”将屋顶景观绿化结合功能考虑,丰富了青少年的室外活动空间,与整体地面景观融为一体。
▲建筑融于山水间
▲森林中的成长中心-实景
成长中心与西侧公园紧密相连。高低起伏的形态既是英伦建筑人文元素演绎,也势如景观山体,与不远处的龙泉山脉遥相呼应。
▲方案模型
▲绿色景观漫入建筑群落-实景
每个山体都各有不同,高低错落,又相互耦合。山体的尺度与佩奇小镇的建筑尺度接近。
▲主入口-草图
▲主入口之塔
多种“山体”组合
柱廊-空间衔接与节奏
▲水院
▲水院与室内洽谈区
04 时空交叠的场景体验
▲动线体验
体验流线经过不同功能空间,室内室外场景随路径切换,为每个场馆带来不同的空间体验。针对项目使用的功能特点,既要考虑到时常出现来访者饱和密集的“瞬时人流”状态,同时又需要满足人们在各个功能空间停留时的体验感。由此,我们设置由清晰便捷的主流线串联多个体验空间,在主线上满足视线通达,组织人流;在各个功能空间又互不干扰,形成不同氛围营造,赋予多层级流动空间体验感。
柔和日光泻入接待厅。内部系统模块化的空间组织,契合展厅功能空间需求相互组合,形成大小不同的“山体”空间,创造不一样的内部空间体验。这种理性的设计满足了现阶段对于展厅空间的需求,同时也能迎合未来文化馆功能各种变化的可能性。
▲沙盘展示区
根据建筑内部使用功能的不同需求,调整天井尺寸和朝向,让光影在空间内泻下、流动。
▲水吧区-感知室外空间
柔和的自然光源-轻感洽谈区
05 材料与细部
建筑整体采用与英伦风相呼应的暖色系材料,以浅色灰白莱姆系为主调,配以深香槟色与木色。建筑外立面石材表面采用多种肌理结合,通过石材的质感、虚实、深浅变化增加了外立面细节和变化,获得不一样的内部空间体验。
建筑整体采用与英伦风相呼应的暖色系材料,以浅色灰白莱姆系为主调,配以深香槟色与木色。建筑外立面石材表面采用多种肌理结合,通过石材的质感、虚实、深浅变化增加了外立面细节和变化,获得不一样的内部空间体验。
▲石材立柱细部与绿院
▲建筑与景观-层叠空间
▲主入口空间
▲到达主入口
06 技术图纸
▲首层平面图
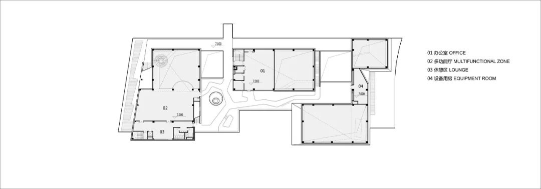
二层平面图
▲屋顶平面图
▲北立面图
▲西立面图
▲1-1 剖面图
▲2-2 剖面图
项目信息
项目名称:成都卓越世界青少年成长中心
业 主:成都卓越置业有限公司
建筑设计:华通设计顾问工程有限公司
主持建筑师:范黎
设计团队:第一总师工作室
施工图设计:成都基准方中建筑设计有限公司
室内设计:Karv One 峻佳设计
景观设计:深圳奥雅设计股份有限公司
建筑规模:4526㎡
建设地点:四川成都
设计-建成时间:2020-2023 年
特别鸣谢:卓越集团
获奖情况:2023REARD 全球地产设计大奖 银奖
客服
消息
收藏
下载
最近













































