查看完整案例

收藏

下载
为了让家中两位小朋友更好地完成小学和初中的教育,屋主在寸土寸金的深圳福田区购置了这一套顶级学区房,套内面积80㎡,房屋总价却超过千万。
尽管房子周边各方面配置都很优越,但这个面积依然无法满足一家四口体面的生活,在这种情况下,业主找到了我们,为这套建于95年的老房子进行改造设计。
项目位置:广东·深圳
建筑面积:98
福田区百花小学
Baihua Primary School, Futian District
长乐花园小区,1995
Chang’le Garden Community, 1995
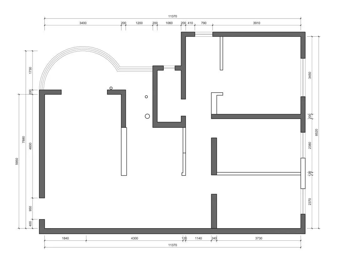
场地原始情况
The original condition of the site
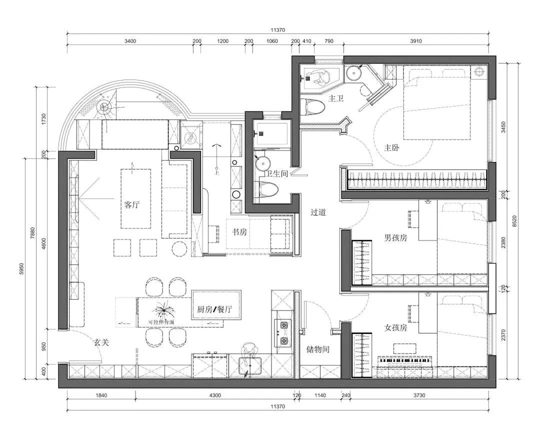
左右滑动查看 平面布置图
Floor plan
从建筑结构上看,原户型结构简单,四周全是剪力墙,室内层高不到2.7m,各空间采光条件不均匀。该空间需要满足屋主夫妇、两位小朋友的日常生活起居,还需要一间书房,考虑到每一个忙碌的家庭早高峰,两个干湿分离的卫生间也是生活必备,此外还需要解决入户缺少玄关并正对餐厨的Bug。对于学区房的装修,结合全家人的需求,深度分析需求的主次最为重要,在有限的预算和面积内,创造方便全家人使用的居家环境,满足孩子们的健康成长,辅助其从小养成良好的学习、生活、卫生习惯都是重点考虑的要素。
玄关Porch
进入家中,若隐若现的可滑动通光玻璃隔断,让餐厅空间不凸显于门前,也确保入户风水不会受影响。干净细腻的原木风有着闲适写意、悠然自得的氛围感,犹如日落般温柔。
餐厅Dining Room
客厅Living Room
客厅阳台一体型设计
LD & Restaurant
圆弧景观阳台并入客厅后,拉长了整个公区的纵深感,让客餐厨阳三个空间都通透明亮起来。阳台飘窗起到了重要的作用,下端分离式抽拉柜体,释放出客厅更多家庭活动的可能,上端墙壁预留镂空的柜龛,摆放书籍和桌游,搭配一张折叠式小桌板,这里就是一处静默安稳的舒心角落,办公、娱乐、小憩随心转换,功能性十足。
厨房Kitchen
书房、生活阳台
Study, Balcony
对于采光不均匀的空间来说,开放式的设计难免会因功能造成杂乱,我们将过道整合出一间书房和乐器区,巧妙的实现空间一体化差异式设计。又用薄墙分割双阳台,沿着窗边砌出一个地台,创造了一个“麻雀虽小,五脏俱全“的独立家政区。
主卧套间
Master bedroom
儿童房
Children’s room
公卫Guest Guard
在局促的室内空间中,我们通过采光、通风、清洁、收纳、阅读、陪伴,点连成线拼凑出一个简单温馨的环境。通过对屋主需求、习惯的把控,引导出多重的空间体验和情绪价值,这样会让家长在家中更在意自己的言行,小朋友感到更充分的互动与关注,形成良性的日常相处模式。人生百年,立于幼教。一个合格的学区房,是可以让孩子浸泡在和谐的氛围里,静待来自环境的润物细无声,是能够促使父母与孩子互相影响共同成长的,你们觉得呢?屋主说
The last thing I want to say is
我到深圳生活了17年,从单身到结婚,再后来有了两个小孩,这一路走来,住过很多地方,直到现在才有了一个属于自己真正的家,一开始对这套房子的期望,仅仅是一个满足小孩上学,以及一家四口日常生活起居功能的场所,从一开始的质疑,到慢慢喜欢上这个空间,对这个家感到最满意的地方,是每个人都有了属于自己的独立空间,每天的生活都可以参与高效的家务劳作,享受舒适自动化的水电风暖,观赏深圳地标与自家家居融为一体的景观。这里从一个老破旧变成了我们一家四口每日奔波后栖息的港湾,让我体验到了一种更为现代、简洁而又温馨的生活。
恰如作家王尔德百年前的宣言:我不愿谋生,我想生活。設計方/如一建筑设计
Design/RUYI ARCHITECTS
主案设计师/潘旭强
Design Director/Paul Poon
項目地址/ 深圳
Location / ShenZhen
戶型面積/98
Area/98
全案造价/43w
Project Cost43w
竣工时间/ 2023年12月
Completion Time/December 2023
Honorary Award
中国国家注册高级室内设计师
客服
消息
收藏
下载
最近






































