查看完整案例

收藏

下载

翻译
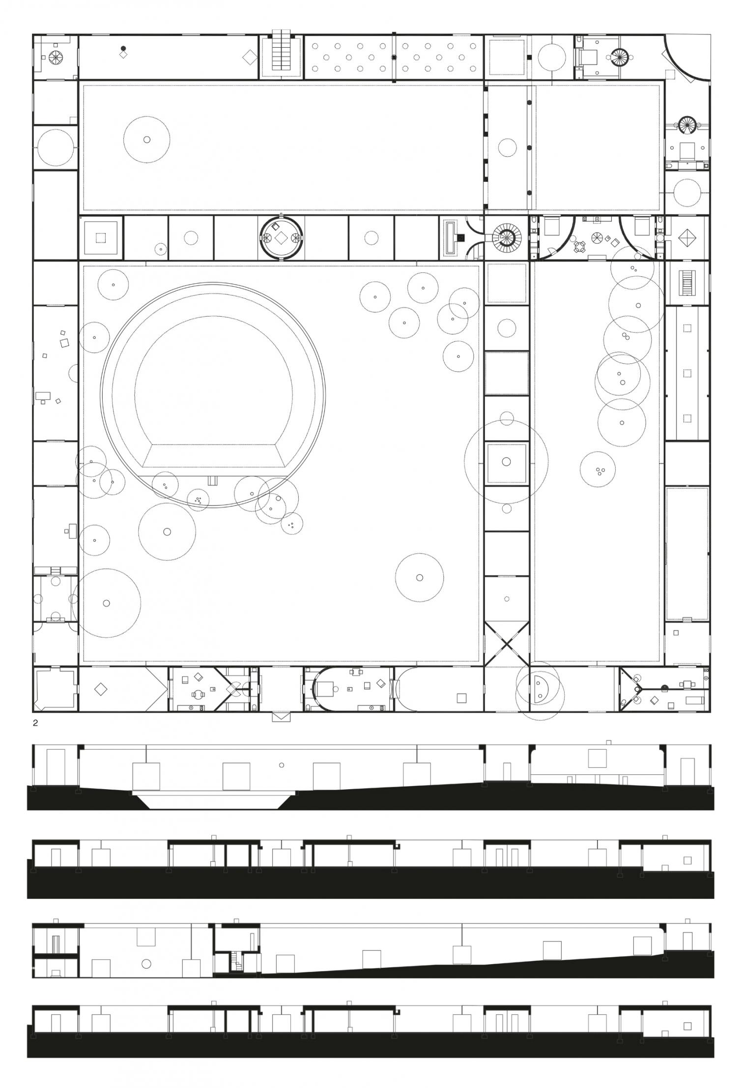
La aldea de Santa Lucía Alto, en la región de Yungay, es un territorio que discurre entre fértiles llanuras y altas cumbres. Uno de sus frondosos bosques a los pies de los Andes acoge esta casa-estudio, un ambicioso proyecto de más de 2400m² que además de espacios domésticos y de trabajo incorpora distintos pabellones para albergar exposiciones; una suma de hasta doce construcciones, evidenciada en las necesarias juntas sísmicas. El particular complejo se define por una forma rotunda, una huella cuadrada dividida por una cruz asimétrica; y un perfil severo, con la áspera textura del hormigón visto. Esta rigurosa geometría se acentúa con la regularidad de las franjas horizontales de la fachada, solo alterada por los juegos formales de sus vanos. Ya en el interior, los cuatro patios tienen dimensiones y cualidades diferentes: de alargados, con pendientes naturales o planos y con un sendero de agua, a cuadrados con jardines de flores circulares, o a uno de mayor tamaño para integrar los árboles existentes y un gran estanque. Estos espacios, a modo de claustro, vertebran los distintos usos y comunican las habitaciones, estableciendo una tenue división funcional entre las estancias para vivir y aquellas para trabajar. Además, las singulares aberturas crean tanto espacios íntimos e introspectivos como monumentales dobles alturas.
La gran casa-estudio —de más 2400m² construidos— se ubica en una frondosa finca al pie de los Andes chilenos y engloba hasta doce construcciones diferentes que comprenden espacios domésticos, de trabajo y de exposición.
El extenso conjunto se unifica mediante una rotunda forma cuadrada dividida por una cruz asimétrica que genera cuatro patios de cualidades distintas, a la manera de claustros que vertebran los usos en torno a ellos.
Acentuando el perfil severo, los muros de hormigón desdibujan la división entre estancias, únicamente marcadas por los juegos formales de los vanos que distinguen los espacios más íntimos de las laberínticas galerías.
Cada una de las estancias cuenta con cualidades espaciales características, gracias a la abertura de vanos de formas singulares y distintas direcciones, que establecen una tenue línea funcional y desdibujan la frontera con el exterior.
客服
消息
收藏
下载
最近












