查看完整案例

收藏

下载

翻译
Tipología:Vivienda Reforma
Fecha:2023
Ciudad:Madrid
País:España
Fotógrafo:Luis Asín
Marca:Cortizo Formica Roca Jung Danosa Hisbalit Keim Ecopaint
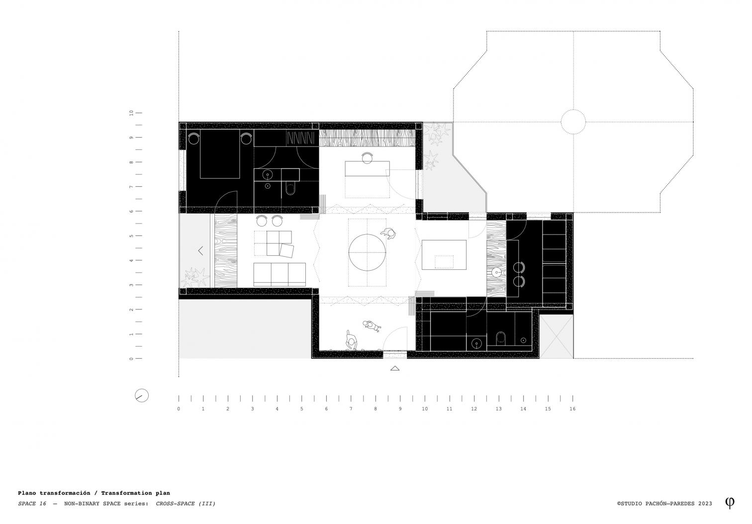
La renovación de este piso, de 110 metros cuadrados de superficie construida, en un edificio de principios de la década de 1970 situado en el barrio madrileño de Pacífico, forma parte de una serie de proyectos que se enmarcan en dos líneas de investigación.
Por un lado, ‘Non-Binary Space’, que explora las sinergias que se producen entre espacio, tiempo, materia y energía; con el objetivo de no comprometer la libertad de uso, ocupación, adaptación e interpretación del espacio por sus usuarios, culturas y vectores socioeconómicos a lo largo del tiempo.
Por otro lado, ‘Cross-Space’, que conforma una serie de transformaciones, adaptaciones, rehabilitaciones y agregaciones que están configurando una estrategia de ocupación espacial, natural al tipo de estructura o infraestructura de la arquitectura en la que se enmarcan.
La retícula estructural delimita dos tipos de espacios: espacios binarios y definidos; y espacios no binarios, indefinidos, de carácter neutro y flexible. En las ‘fachadas’ principales de este proyecto se configuran los cuatro fondos del ‘Cross-Space’, espacios vacíos de uso libre. Los espacios binarios a lo doméstico, quedan encajados en el perímetro global del espacio no-binario, habitando los límites del ‘Cross-Space’ y dando soporte al espacio indefinido.
客服
消息
收藏
下载
最近



























