查看完整案例

收藏

下载

翻译
Tipología:Centro cultural Cultura / Ocio
Fecha:2022
Ciudad:Clichy-Montfermeil
País:Francia
Fotógrafo:Olivier Campagne
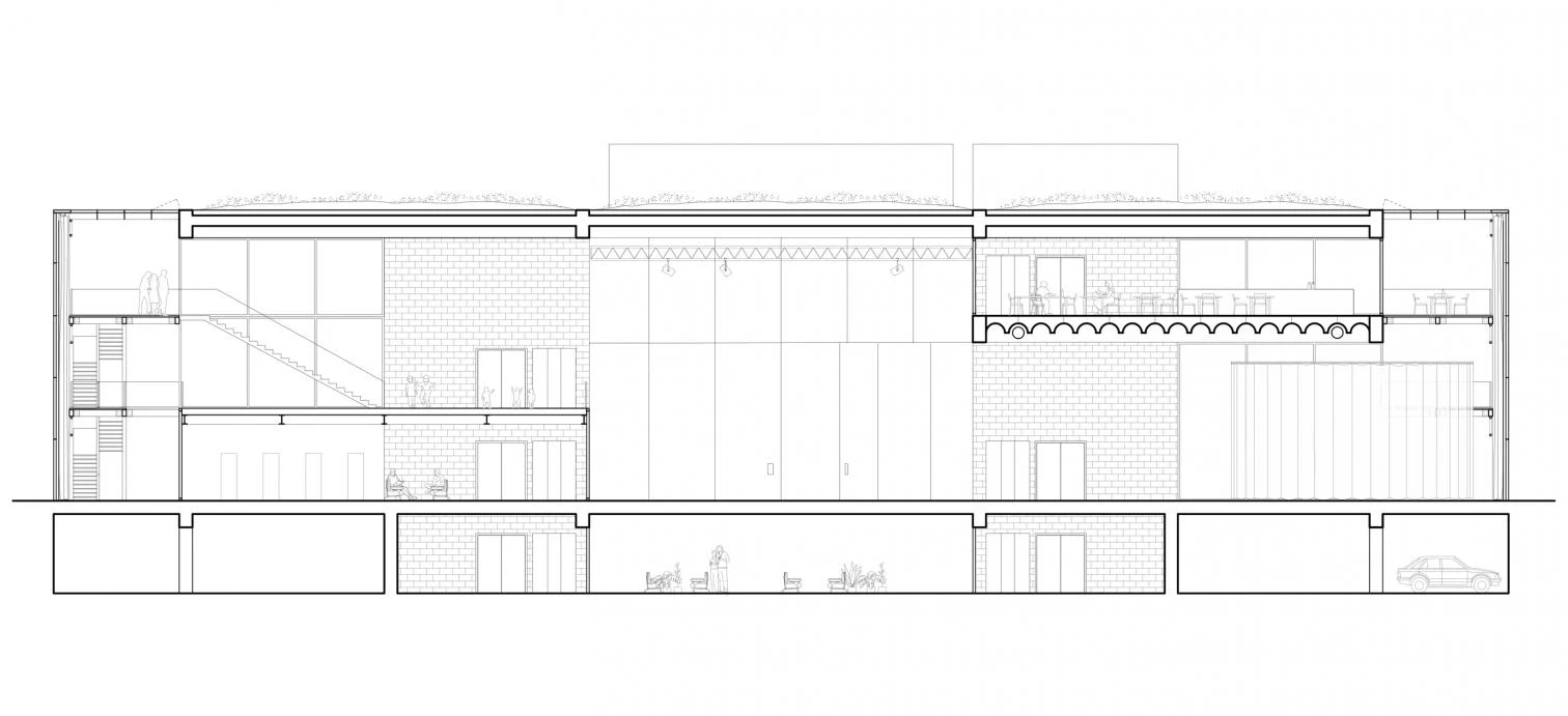
A las afueras de París se sitúan estas instalaciones dedicadas a la creación, la investigación y la educación artísticas, que albergan un auditorio, espacios expositivos y talleres, además de oficinas y un restaurante. El edificio deconstruye el concepto de ‘caja negra’. El auditorio principal, situado en el centro, se abre a todos los espacios circundantes con doce configuraciones escénicas diferentes. Por lo tanto, las representaciones y las exposiciones pueden realizarse simultáneamente. Las fachadas de vidrio se combinan con amplias cortinas plateadas, que constituyen una arquitectura en sí misma, evocando los telones de los escenarios de los teatros.
客服
消息
收藏
下载
最近


















