查看完整案例

收藏

下载

翻译
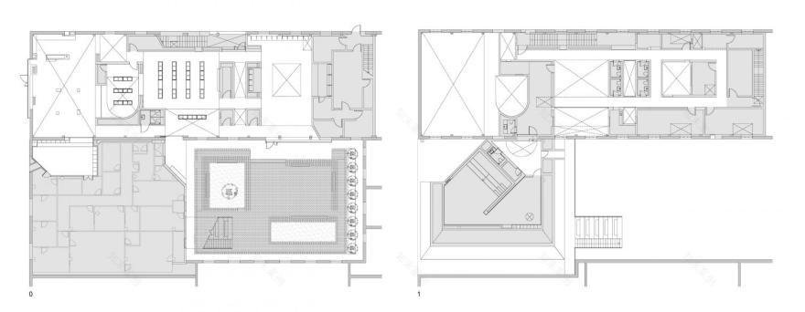
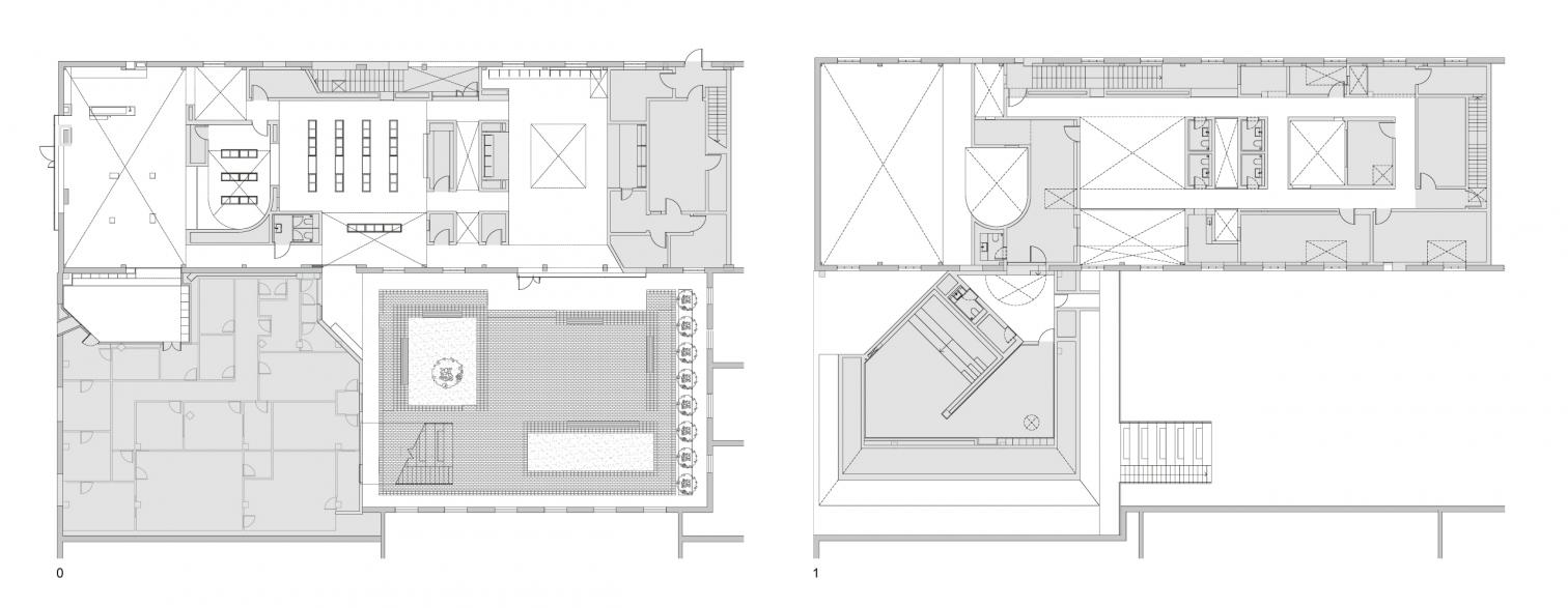
Las dependencias de una antigua fábrica de algodón situada en la periferia de la capital se han remodelado para albergar las oficinas y la tienda insignia de una histórica confitería.
En alusión a los usos reposteros, los almacenes de ladrillo se conciben como ‘moldes’ para nuevos volúmenes que rellenan los vacíos y dan contraste al conjunto con la fina textura del hormigón abujardado.
La sucesión de espacios de exposición, oficinas y tienda se enriquece con lucernarios y huecos en los que en ocasiones el hormigón se proyecta hacia afuera para señalar nuevos puntos de acceso al interior de las naves.
客服
消息
收藏
下载
最近















