查看完整案例

收藏

下载

翻译
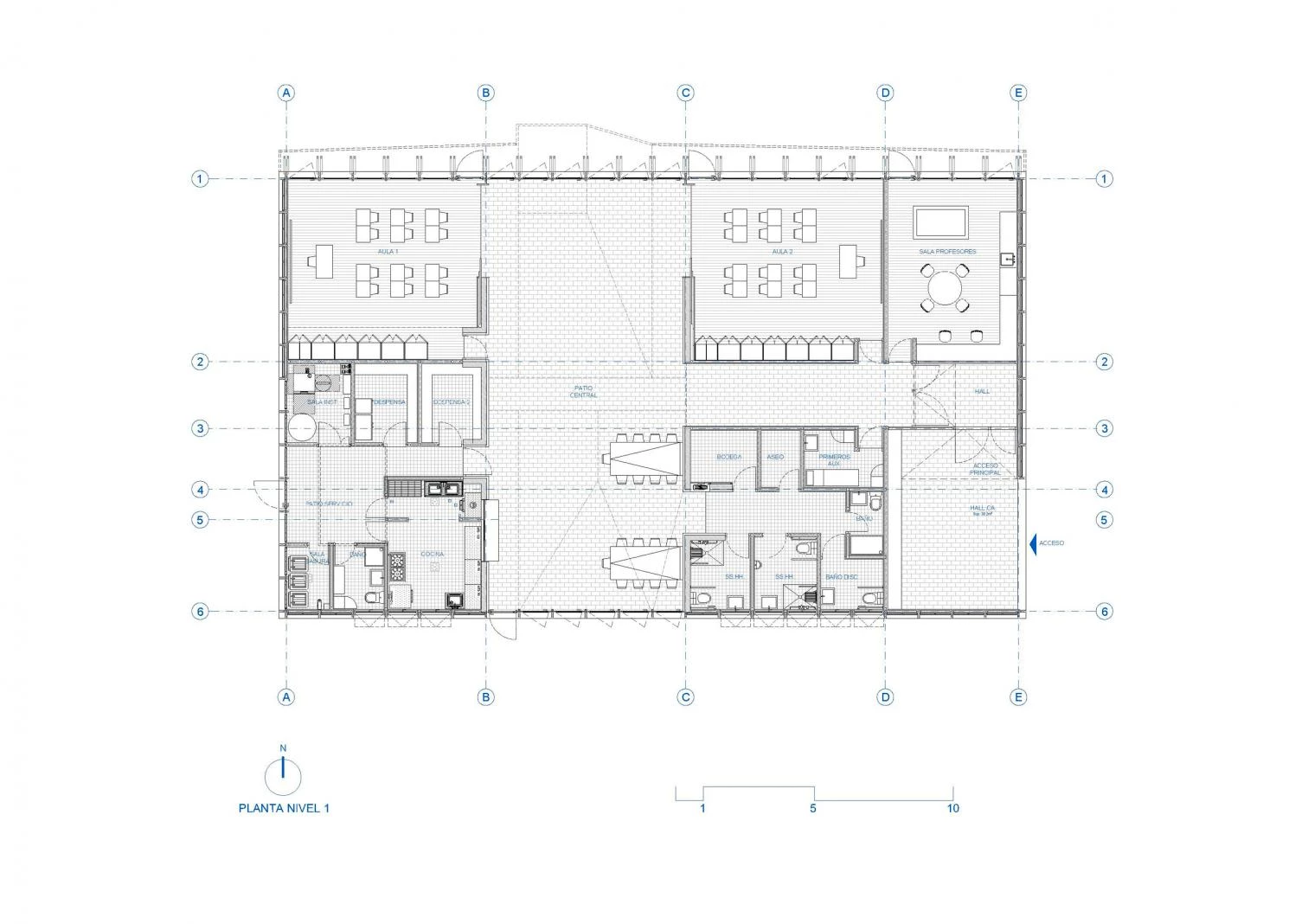
Al sur de Chile, en la provincia de Malleco, se sitúa el centro educativo Pivadenco de la comuna de Los Sauces, que forma parte de una iniciativa del Ministerio de Educación para construir ocho pequeñas escuelas rurales en la región de la Araucanía, con un alto porcentaje de población mapuche.
Con 417 metros cuadrados, el edificio está concebido para acoger actividades educativas y sociales de la comunidad, diluyendo los límites entre un espacio central que actúa como termorregulador y las aulas a través de portones correderos, que permiten la flexibilidad de usos y la ventilación cruzada. La construcción es una reinterpretación contemporánea de los antiguos galpones de la región en la que se utilizan revestimientos metálicos, estructuras de madera, y piedra volcánica local.
客服
消息
收藏
下载
最近


















