查看完整案例

收藏

下载

翻译
Tipología:Escuela Educación
Fecha:2021
Ciudad:Allensbach
País:Alemania
Fotógrafo:Zooey Braun
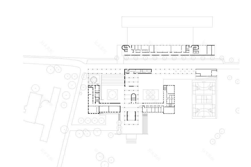
Situado cerca de Constanza en el municipio alemán de Allensbach, el conjunto conventual de Hegne alberga la escuela secundaria Marianum, ampliada para acoger instalaciones educativas adicionales. Con 109 metros de largo y aproximadamente 12 metros de ancho, el nuevo cuerpo de dos alturas se relaciona con la construcción existente de 2009, proyectada también por LRO como parte del centro educativo. En el anexo alargado se distribuyen longitudinalmente oficinas, salas de profesores, seis aulas y espacios auxiliares. Los seis nichos en el nivel superior establecen conexiones visuales con el entorno y ofrecen zonas de descanso interiores a los estudiantes.
Las fachadas se revisten íntegramente con revoco, cuyo color se iguala al de la mampostería de los edificios existentes. El granulado grueso del enfoscado aporta textura al material. El acabado más fino del revoco acentúa la fuerte horizontalidad de la forma del edificio.
客服
消息
收藏
下载
最近



















