查看完整案例

收藏

下载

翻译
Tipología:Colectiva Vivienda
Material:Tierra compactada
Fecha:2022
Ciudad:Ibiza
País:España
Fotógrafo:José Hevia
La firma de Barcelona de Marta Peris y José Manuel Toral recibió el encargo del Instituto Balear de la Vivienda (IBAVI) para levantar este conjunto residencial en Ibiza, donde se favorece el asoleo y la orientación al mar para buscar los vientos dominantes, el
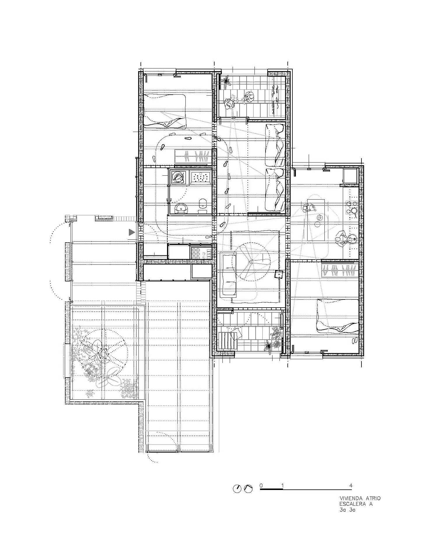
y el terral, así como la ventilación cruzada. El sistema constructivo de muros de carga con bloques de tierra compactada (BTC) de 20 cm de espesor con una densidad de unos 2000kg/m3 ofrece mucha inercia, aislamiento acústico y una baja huella de carbono. Además, las arcillas permiten regular la humedad del ambiente. El resultado es una volumetría articulada, donde se multiplican las esquinas del edificio para incrementar la velocidad del viento. El proyecto plantea un sistema de habitaciones comunicantes al tresbolillo, insertadas entre los muros de carga, de manera que la estructura conforma el espacio.
La tipología consta de una secuencia de habitaciones comunicantes de 4 x 3 m, cada una de las cuales consta de 12 metros cuadrados de superficie, indistintamente del uso. Las unidades constan de entre cuatro y seis módulos, respondiendo a un programa de vivienda social de uno, dos y tres dormitorios. La disposición de la cocina-comedor en el centro de la vivienda, como módulo distribuidor, elimina los pasillos. Para conseguir disminuir la demanda energética, se dispone de una cubrición sobre el patio que funciona a modo de atrio en invierno y como chimenea solar en verano.
Esta obra es una de las finalistas de los
客服
消息
收藏
下载
最近

























