查看完整案例

收藏

下载

翻译
Tipología:Vivienda
Fecha:2021
Ciudad:Madrid
País:España
Fotógrafo:Pedro Pegenaute
Marca:Technal BAUMIT
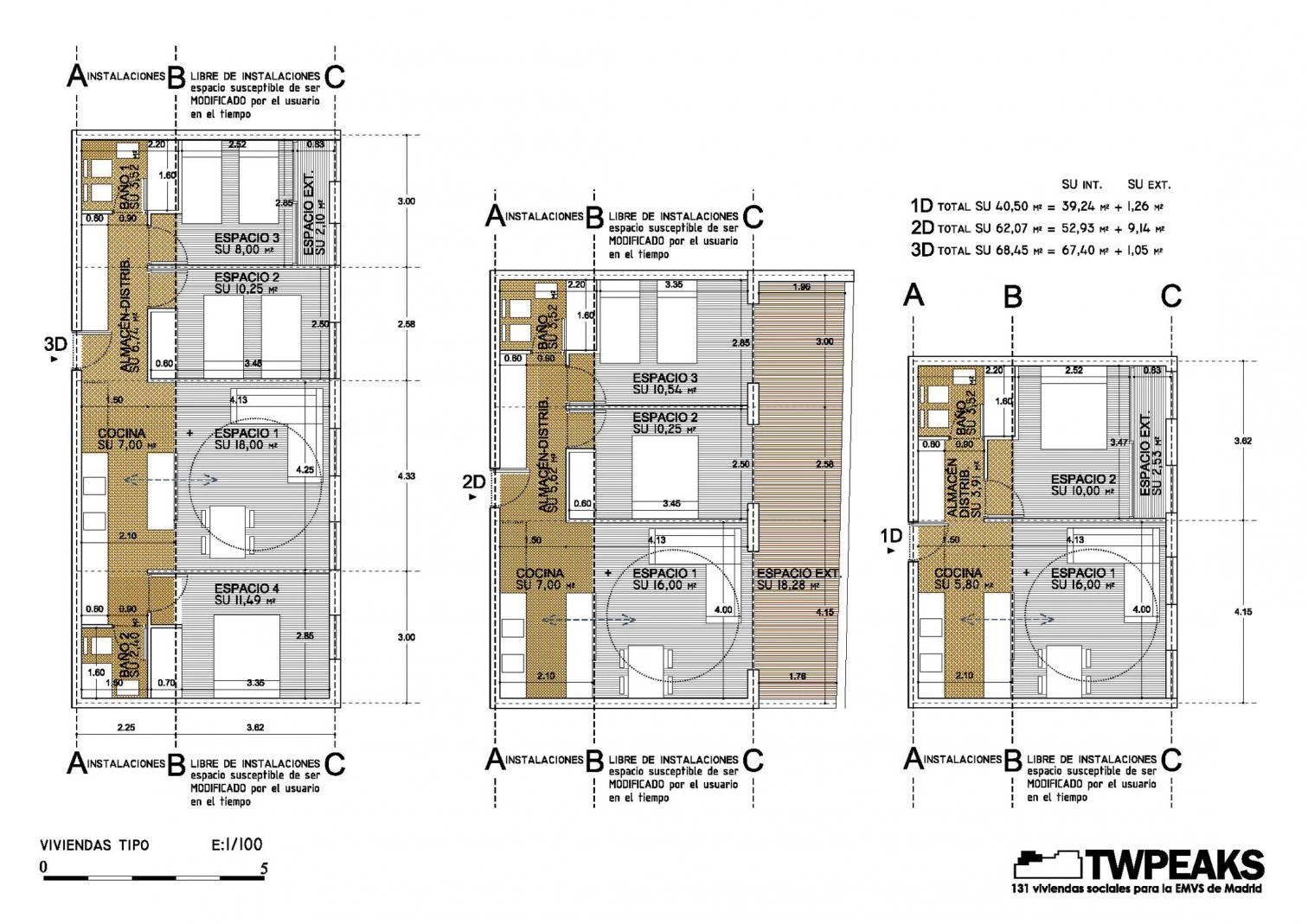
Obra de los estudios MADhel (Miguel Herraiz y Daniel Bergman) y Marmolbravo (Marina del Mármol y Mauro Bravo), estas viviendas de protección pública en arrendamiento, para la Empresa Municipal de la Vivienda y Suelo de Madrid (EMVS), están ubicadas en el Ecobarrio del distrito de Puente de Vallecas. Con viviendas amplias, luminosas y de muy alta eficiencia energética, la construcción actúa como pieza fronteriza, adaptándose con juegos volumétricos, escalonamientos, retranqueos y cambios de materiales a un entorno urbano con edificaciones de diferentes alturas. El objetivo es reducir la escala percibida, dentro de las necesidades de agotamiento de la edificabilidad y producción del máximo número de viviendas sociales posibles.
Los portales pasantes, especialmente cuidados en su diseño, evitan la aparición de frentes muertos y favorecen la sociabilidad, junto a la terraza comunitaria del séptimo piso. La planta se organiza en dos bandas, en torno a un pasillo distribuidor (con patio intermedio). Una de ellas concentra las instalaciones y los espacios húmedos del edificio, dejando libre para las estancias la banda flexible en la fachada. El reducido fondo de las viviendas amplía su cuota de fachada, permitiendo una crujía más estrecha donde el sol entra en invierno hasta el fondo. El edificio está conectado a la central térmica de denominado Ecobarrio de Vallecas, que alimenta las calefacciones y los sistemas de agua caliente sanitaria, mediante un sistema de grandes calderas centralizadas y subcentrales de transferencia de energía.
客服
消息
收藏
下载
最近


















