查看完整案例

收藏

下载

翻译
Tipología:Rehabilitación Cultura / Ocio Centro de artes
Fecha:2022
Ciudad:Londres
País:Reino Unido
Fotógrafo:Prudence Cuming Associates Nic Serpell-Rand
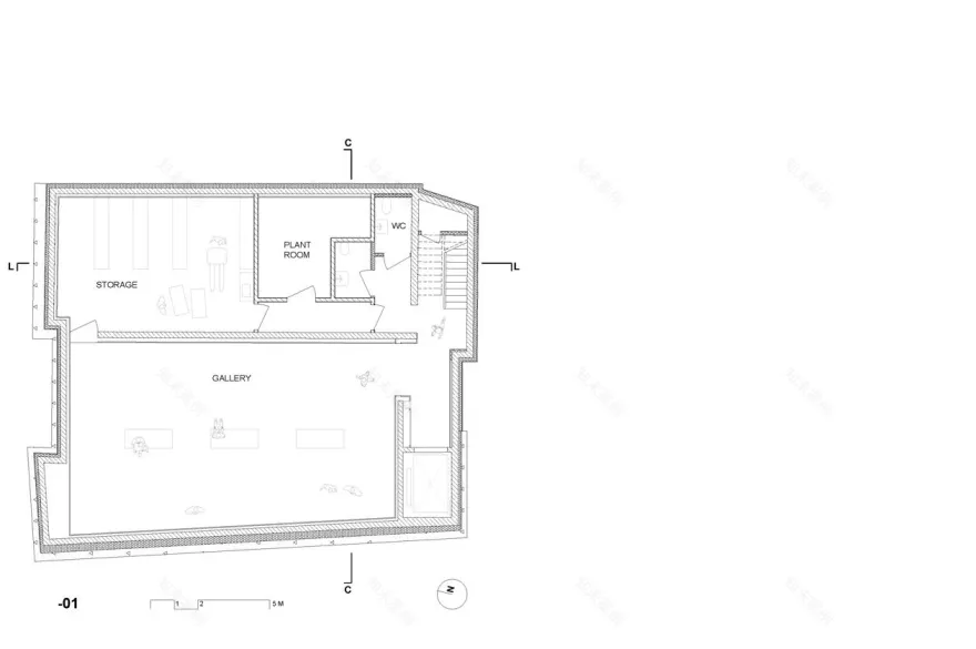
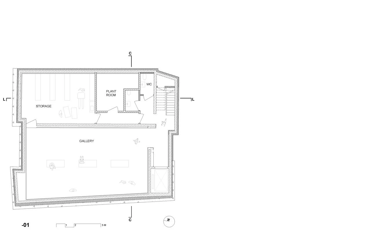
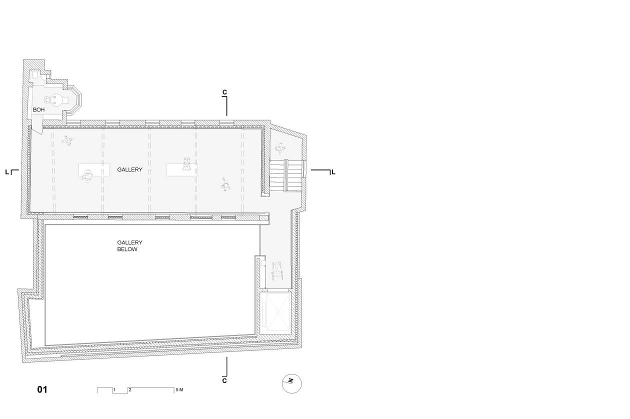
El estudio londinense SIRS Architects —Manuel Irsara y Sebastian Soukup— ha transformado un edificio de origen industrial del siglo XIX en una galería expositiva para los artistas Gilbert Prousch y George Passmore. Ubicado en una calle angosta de Spitalfields, en el East End londinense, y cerca de la actual casa-estudio de Gilbert & George en Fournier Street, el Centro está diseñado para rendir homenaje al patrimonio arquitectónico londinense, combinando elementos históricos, restaurados y contemporáneos. Con las iniciales del dúo artístico, la puerta de hierro forjada a mano de color verde, diseñada artesanalmente por G & G, invita a entrar a los visitantes. La galería comprende tres espacios de exposición de diferentes tamaños, dispuestos en distintos niveles. Dos nuevos volúmenes se levantan utilizando parcialmente ladrillos recuperados. El sótano se construyó cuidadosamente con trece micropilotes.
客服
消息
收藏
下载
最近


























