查看完整案例


收藏

下载
演绎空间关系的构成
A tribute to love
spatial relationship
撰文丨小蕊
设计师丨夏凯
光的轮廓
Start reading.
01
“透视”空间关系
居住拥有多面性,空间的内部关系亦是多维且复杂的
本案,110㎡超高平层,注重独特结构美感,以建筑的思维重新解构组合内部空间,用“透视”的慧眼多方位利用墙体关系发挥方寸间的“最大余地”,一墙多用成为空间惊喜爆点,打破常规的功能布局亦以全新的设计语言演绎
COOL BOY的“腔调”生活。
P. 关系构成
入户后的收纳与橱柜同材质延伸,串联实现空间完整性。利用客卫盥洗区墙体悬挑而出的餐桌,精巧的体块穿插,打破空间的单一建立,独特的内部结构关系。
02
光影的轮廓
在黑色里温柔地爱彩色,在彩色里朝圣黑白
36层的高度,超高层的极佳视野,朝西邂逅天边四季多彩的晚霞。当然也会遇到曝晒的燥,那么昏暗色调的慵懒氛围则是治愈躁动最好的“宁心丸”,于是全屋“暗黑”深色系主控,西晒的自然光点缀补给,为万物“渡光镶边”制造剪影轮廓,自然在此悄然流逝内心跟着舒缓安适,光,在沉静中凝结力量,一种让人内心安定的暖暖力量。
P. 本真之美
内嵌的电视有电动支架,就餐时旋转亦可观影,客厅与书房互动着,房屋与室外链接着,丰富的空间关系让生活丰盈有趣,空间的仪式感便是生活想要表达的本意。
P. 留白之境
将一室的逼仄释放,成全开放的书房。保留承重,拆除其余墙体,让客厅有效互通,视觉扩大功能更完善。
。
书桌与墙体厚度齐平,并穿墙而过,形成纵向置物台
,
另侧做隐藏下拉床保留卧室留客功能,用留白引领高品质生活内核。
03
黑白间的纯粹热爱
山本耀司说:黑色是一种最有态度的颜色
回到最初,屋主的诉求,这是一个站在时尚前沿的新一代时装行业创业者
,
接受新鲜的事物且有着小众的独特审美,小资有情调的态度追求生活该有的精致仪式感。
在私人领域里,家居单品好物带来质感享受,灯光泛光源做点缀制造氛围,设计让温度与尺度并存,情感与理想蕴生,在自己的热爱里过有腔调的生活。
从黎明到黄昏
空间的底色透着讲究,演绎腔调生活。
ABOUT PROJECT
△原始平面图
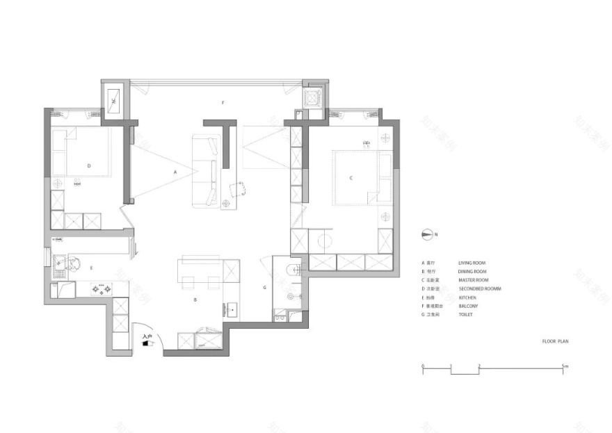
平面布局图
▼关于项目 :
项目名称 / Name | 富力开远城
项目类型 / Type | 私宅
项目位置 / Location | 中国·西安
项目面积 / Area | 110㎡
完工时间 / Time | 2023.11
主创设计师 / Design | 夏凯
深化设计 / Deepen 丨罗功全
设计公司 / Company | 夏麦浪设计
摄影师/ Photographer丨刘南南
ABOUT DESIGNER
夏凯
夏麦浪设计/主案设计师
客服
消息
收藏
下载
最近






























