查看完整案例

收藏

下载
©宛芹
项目位于重庆市渝中区中山四路,早在2019年中山四路就被重庆市规划和自然资源局纳为“重庆市级历史文化街区”。这条街有着丰富的历史遗迹,人文遗产丰富。包括不可移动文物10处,历史建筑1处及众多风貌建筑。这条街诠释着重庆这座城市的历史基因、历史遗迹、历史文化和人文要素,而重庆文化的对外影响力也在与日俱增。
项目区位©未见筑
巴渝怀良作为一家致力于振兴巴渝名小吃、让世界爱上重庆传统糕点的小吃品牌。而品牌创始人始终认为“城市是饮食文化的载体,小吃作为饮食文化重要组成部分,是城市极具活力的视觉和感官要素。” 巴渝怀良品牌成立产品研发部自主研发了
老荫茶酥、青椒酥、藤椒酥、红茶酥、苦荞酥、桑叶曲奇、银针曲奇等十几种中式糕点系列。
部分产品©巴渝怀良
如何以空间设计为媒介提升巴渝怀良品牌的线下体验与文化传播力是本案的重要课题。设计团队在理念层面引入策展式商业概念,将空间属性定义为一处关于本土美食的“重庆风物博物馆”。通过对商品的选型、展陈等进行逻辑梳理,打造一处微型的文化标本聚集地。
概念草图©未见筑
设计团队以“微型博物馆”来承载品牌文化和产品,让顾客从挑选到享用,不仅可以满足味蕾的愉悦,更能感受到的是一种文化的传承。"让中式糕点就像是一本打开的书籍,而顾客用舌尖阅读" 将中式糕点匠心独具的烘焙艺术传递给大众,让中式糕点的魅力传承更为广泛。
建筑立面改造
中山四路被誉为“重庆最美街道”,本案的立面改造工作在遵循整体城市风貌控制法规的同时,采用了两个策略来向过往路人传递美食空间的城市名片。
首先,项目采取橱窗式立面策略,店铺立面成为了展陈商品的界面。其次,引入平面图像设计手法,在门头上方加入饮食符号的镂空图案。在这里,立面演化为品牌礼盒的封面。
建筑立面©宛芹
立面材料方面突破中式小吃的传统美学思路,采用精致的不锈钢造型,如同一台精美的糕点机器作坊缓缓向城市打开。
街角场所设计
项目场所临近小学,周边人群流量中以学生居多。设计团队并不希望店铺仅仅作为城市中的孤岛,而是设法通过对街角微型城市空间的营造为过往学生提供一处伴随本土小吃的童年记忆场所。原本封闭的目前被改造为开放的休憩空间,为商铺提供展示界面的同时强化了室内外的互动属性。
室外©宛芹
本土文化的种种印象往往产生并根植于每个居民的童年记忆之中,项目以重庆风物为母题,在为过往学生提供一个遮风避雨,休息交流的开放式场所的同时,也希望以场所记忆营造的方式为本土风物文化的培育和延续做出一份努力。
放学经过的学生©宛芹
室内空间营造
室内空间合计两层,一楼的空间定义是集生产销售一体的开放式美食作坊。人们走进店铺, 视线被糕点展陈区吸引的同时,可以看到在入口的开放式糕点制作区,在这里顾客可以清晰地看到每种糕点的制作过程,产生视觉和嗅觉的双重刺激。
一楼室内©宛芹
通过金属楼梯前往二楼的过程中,可以看到二楼包房的宽幅玻璃条窗,在满足包房采光的同时,点缀了相对封闭的垂直交通空间。
到达二楼后首先进入的一处展陈长廊,这里陈列的每一个商品包装都经过专门的设计,从重庆人文地理到艺术家联名,拉满顾客在挑选商品时的视觉观感。上方的镜面吊顶进一步营造了一种身处文化万花筒之中的体验。
长廊©宛芹
椅子滑动示意图©宛芹
定制椅子细节图©宛芹
在独立小包房的外侧也布置了可以进行产品展示的玻璃橱窗滑门,既满足美观性也满足了私密的功能性。
包厢橱窗展示gif©宛芹
进入包间,落地窗的存在将空间与外部环境完美连接,清晨的阳光和傍晚的晚霞自由涌入,令整个包间内透着一片明亮与温馨。绿树成荫,清新的气息扑面而来,将用餐体验与自然美妙融合。用餐者可以静静地品味美食,同时欣赏窗外美丽的景色。
包间内部©宛芹
设计师在创造一个宁静、舒适的用餐氛围的同时,也让用餐者得以与外界保持紧密的联系。无论是在用餐时聆听风吹树叶的声音,还是在品味美食的同时欣赏外面的景色,都为用餐体验增添了一份愉悦和情感上的满足。用餐不再仅仅是填饱肚子,而是一场感官与心灵的愉悦之旅。
©宛芹
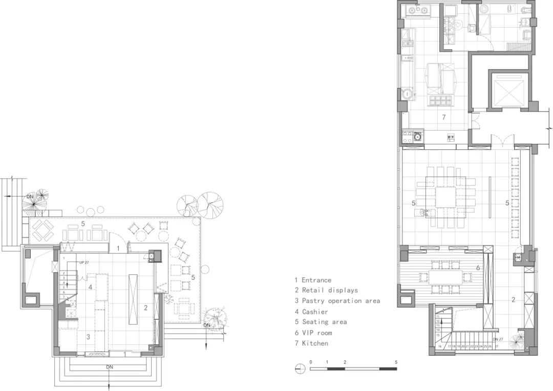
平面图©未见筑
剖面图 ©未见筑
项目名称:巴渝怀良中山四路旗舰店
项目地址:重庆市渝中区上清寺路中山文化产业园
项目面积:170㎡
设计内容:室内设计、门头设计
设计单位:未见筑设计事务所
主创设计师:李未韬、李博
项目设计师:邓林
设计团队:张智睿、张照鑫
灯光设计顾问:袁有无
施工图设计:罗怀彬
家具定制:奥喜定制
品牌策划:三代一生视觉服务
照片拍摄:宛芹
客服
消息
收藏
下载
最近






























