查看完整案例


收藏

下载
学校在 2-3 万平米的时候是一个比较理想状态,既有规模产生的空间模糊又不至于被交通效率所要挟。
而以关系冗余方式来营造空间透明性满足学生多样生活是我们一贯的策略。
When the school is in the range of 20,000 to 30,000 square meters, it is a relatively ideal state. It has a space blur generated by the scale, but is not threatened by traffic efficiency. Our consistent strategy is to create spatial transparency through relationship redundancy to meet the diverse lives of students.
▼东侧鸟瞰,Aerial View © 侯博文
▼西侧鸟瞰,Aerial View © 侯博文
▼操场人视,Perspective View © 侯博文
入口灰空间 Entrance Gray Space
这是一个多重叠加的灰色空间:学校的入口广场、底层教室的课件活动场所、内部体育馆的外延、二层空间的交通转换、开放的图书馆、学校的集会场所…多重关系的叠加让空间体现了充分的冗余性,让入口灰空间的定义非常模糊。它是一个多义的大厅,不仅是交通更多的是展示、活动、交流的场所。
▼空间叠加,Superimposed Space © 荣朝晖工作室
This is a multiple-overlay gray space: the school’s entrance plaza, the activity space for ground-floor classrooms, the extension of the internal gymnasium, the traffic transition of the second-floor space, the open library, the school’s assembly place… The superimposition of multiple relationships makes the space exhibit full redundancy, making the definition of the entrance gray space very ambiguous. It is a multi-functional hall, serving not only as a passage but more as a place for exhibition, activities, and communication.
▼入口灰空间,Entrance Gray Space © 侯博文
▼入口灰空间,Entrance Gray Space © 侯博文
▼入口灰空间,Entrance Gray Space © 侯博文
▼入口灰空间,Entrance Gray Space © 侯博文
▼入口灰空间,Entrance Gray Space © 侯博文
▼等候空间,Waiting Space © 侯博文
▼等候空间,Waiting Space © 侯博文
▼入口灰空间,Entrance Gray Space © 侯博文
▼入口灰空间,Entrance Gray Space © 侯博文
▼门厅,Lobby © 侯博文
中心体育馆 Central Gymnasium
将体育馆作为一个公共空间放置在中心是学校的最大特点,将体育馆空间的公共性发挥到极致。体育馆的剖面设计上将内场标高下降至-3m,使入口空间和体育馆有了更好的互动关系,内部的活动成为了学校展示的一部分。同时体育馆和地下车库形成了非常友好的界面,让体育馆就成为了整个学校放学接送孩子的中心。顶部光线的处理照亮体育馆的同时也给室内带来了丰富的光线变化。
▼体育馆剖面,Gymnasium Section © 荣朝晖工作室
Placing the gymnasium as a public space in the center is the school’s main feature, maximizing the public nature of the gymnasium space. The sectional design of the gymnasium lowers the elevation of the interior field to -3m, creating a better interaction between the entrance space and the gymnasium, and internal activities become part of the school’s display. At the same time, the gymnasium and the underground garage form a very friendly interface, making the gymnasium the center for picking up and dropping off children from the entire school. The handling of top lighting not only illuminates the gymnasium but also brings rich changes in lighting to the interior.
▼体育馆入口,Gymnasium Entrance © 侯博文
▼体育馆入口,Gymnasium Entrance © 侯博文
▼体育馆,Gymnasium © 侯博文
▼体育馆光影,Gymnasium © 侯博文
▼体育馆,Gymnasium © 侯博文
▼体育馆看台,Stage© 侯博文
▼体育馆细部,Gymnasium © 侯博文
屋顶大平台 Rooftop Grand Platform
一个可攀爬的立体平台覆盖下部的体育馆和入口灰空间,成为上部学生的乐园。每一层学生都获得了课间十分钟的活动场地。屋顶平台从中间向两侧退层,自然形成了面向西侧景观带的观景台和面向东侧城市的看台。和这些外部环境的互动关系也将成为学生重要的在校记忆。
A climbable three-dimensional platform covers the lower part of the gymnasium and the entrance gray space, becoming a paradise for upper-level students. Every level of students has access to a 10-minute activity space during breaks. The rooftop platform retreats from the middle to the sides, naturally forming an observation deck facing the westward landscape belt and a grandstand facing the eastward city. The interactive relationships with these external environments will also become important memories for the students during their time at school.
▼鸟瞰,Aerial View © 侯博文
▼鸟瞰,Aerial View © 侯博文
▼屋顶平台,Rooftop Platform © 侯博文
▼屋顶平台,Rooftop Platform © 侯博文
▼屋顶平台,Rooftop Platform © 侯博文
▼屋顶平台局部,Rooftop Platform © 侯博文
▼屋顶平台局部,Rooftop Platform © 侯博文
▼屋顶平台局部,Rooftop Platform © 侯博文
大侧廊 Large Side Corridor
中心体育馆的介入让学校中恼人的 25m 间距规范限制自然消失了,学校体现出了强烈的整体性,呈现出常规规范限制下的不同空间品质。处理问题的最佳方法就是让问题根本不存在。南北教室和体育馆的间距都转化为日照间距。南北教室外的大侧廊转化了更有活力的类中庭空间。学校没有被 25m 规范划分为一个个排列的监视空间,减少了无奈的南北向交通连廊,整个学校体现出了极强的整体性。
The intervention of the central gymnasium naturally eliminates the annoying 25m spacing regulations in the school, demonstrating a strong sense of unity and presenting different spatial qualities under conventional normative constraints.
The best way to address the issue is to make the problem fundamentally non-existent.
The spacing between north and south classrooms and the gymnasium is transformed into sunlight gaps.
The large side corridor outside the north and south classrooms transforms into a more vibrant quasi-atrium space.
The school is not divided into arranged surveillance spaces by the 25m regulations, reducing the inevitable north-south traffic corridors.
The entire school exhibits a strong sense of unity.
▼侧廊局部,Side Corridor © 侯博文
▼侧廊局部,Side Corridor © 侯博文
▼侧廊局部,Side Corridor © 侯博文
▼侧廊局部,Side Corridor © 侯博文
▼侧廊局部,Side Corridor © 侯博文
▼局部灰空间,Gray Space © 侯博文
▼侧廊局部,Side Corridor © 侯博文
▼侧廊局部,Side Corridor © 侯博文
▼侧廊局部,Side Corridor © 侯博文
▼侧廊局部,Side Corridor © 侯博文
▼侧廊局部,Side Corridor © 侯博文
▼侧廊局部,Side Corridor © 侯博文
▼天井庭院,Patio© 侯博文
▼局部栏杆,Handrail Detail © 侯博文
小院 Courtyard
食堂、会堂和入口坡道在建筑南北两侧包裹着中央的核心空间。给学校营造了区别中央空间的宁静小院,让学生在校有更多的空间体验。
The cafeteria, auditorium, and entrance ramp wrap around the central core space on the north and south sides of the building. Creating tranquil courtyards distinguishes the central space, providing students with more spatial experiences during their time at school.
▼入口门卫处,Entrance Security © 侯博文
▼内院,Courtyard © 侯博文
▼内院,Courtyard © 侯博文
▼外廊,Exterior Corridor © 侯博文
▼外廊,Exterior Corridor © 侯博文
▼内院,Courtyard © 侯博文
▼外廊,Exterior Corridor © 侯博文
▼楼梯间局部,Staircase Well © 侯博文
城市表情 Urban Expression
文齐路小学延续了我们一贯立面呈现内部空间的设计手法。空间的组合形成立面真实的虚实关系,建构的技术处理形成建筑立面的细节。造型上完全顺应空间,和空间高度一致。
因而文齐路小学的立面表情在建筑的东西向强烈表达出剖面建筑的特点,而南北教室阳台的重复错位成为另一个重要元素。
Wenqi Road Elementary School continues our consistent design approach of presenting internal spaces in the facade. The combination of spaces forms a real and virtual relationship in the facade, and the technical treatment of construction creates details in the architectural facade. The design fully conforms to the spatial aspects, aligning perfectly with the height of the space. Therefore, the facade expression of Wenqi Road Elementary School strongly conveys the characteristics of sectional architecture in the east-west direction of the building, with the repeated displacement of the balconies on the north and south classrooms becoming another important element.
▼城市绿化,Vegetation Landscape © 侯博文
▼操场看台,Spectators Stand © 侯博文
▼东侧立面局部,East Elevation Detail © 侯博文
▼南立面局部,South Elevation Detail © 侯博文
▼北立面局部,North Elevation Detail © 侯博文
▼东南角人视,South-east Perspective © 侯博文
▼南侧立面局部,South Elevation Detail © 侯博文
文齐路小学从关系冗余出发,营造了一个空间高度复合的学校。我们一直认为学校建筑不能像机器一样生产标准的产品,而应该是容器去催化出未来的无限可能。
Wenqi Road Elementary School, starting from relationship redundancy, has created a school with a highly composite spatial structure. We have always believed that school buildings should not be produced like machines to generate standard products but should be containers to catalyze infinite possibilities for the future.
▼东侧鸟瞰夜景,Aerial View at night© 侯博文
▼总平面图,Master Plan © 荣朝晖工作室
▼地下室平面图,
Basement Plan
© 荣朝晖工作室
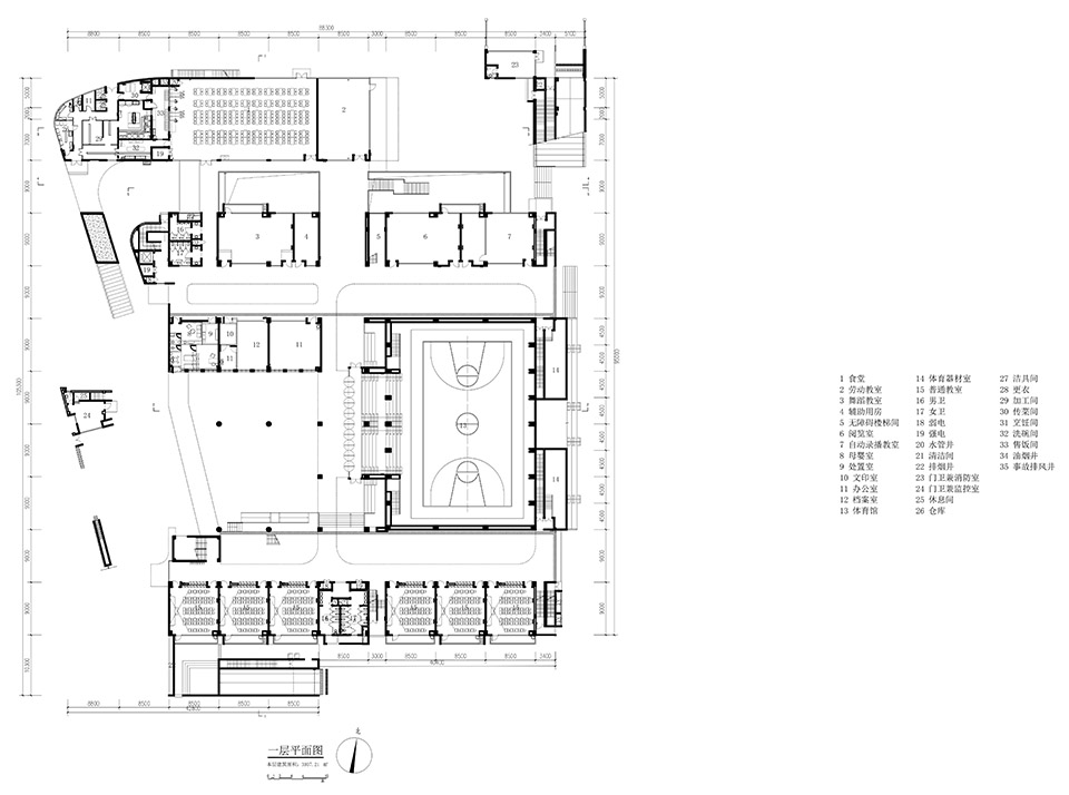
▼一层平面图,First Floor Plan © 荣朝晖工作室
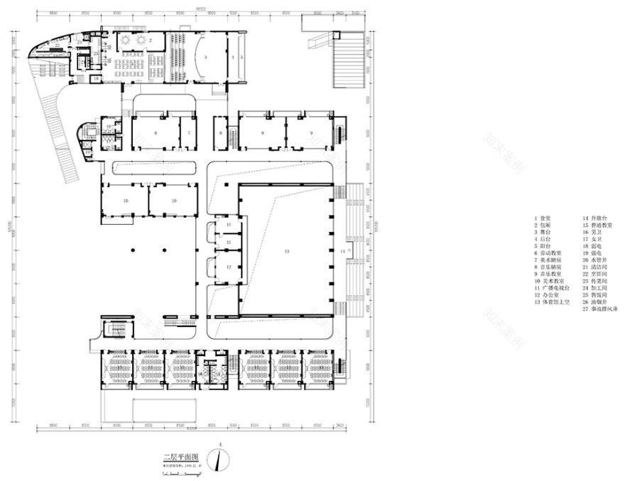
▼二层平面图,Second Floor Plan © 荣朝晖工作室
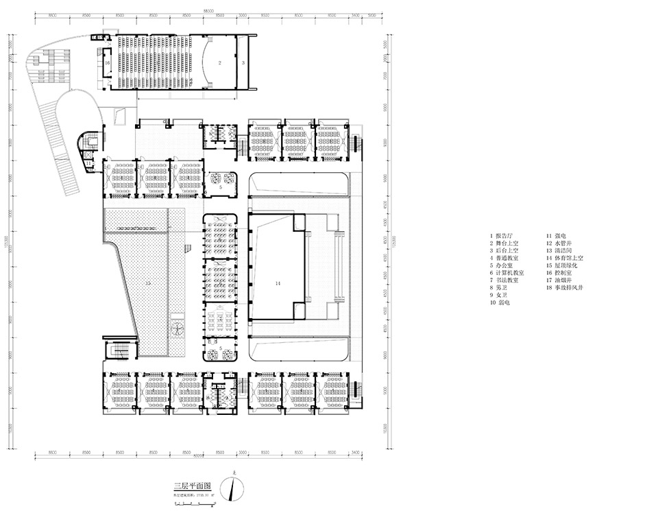
▼三层平面图,Third Floor Plan © 荣朝晖工作室
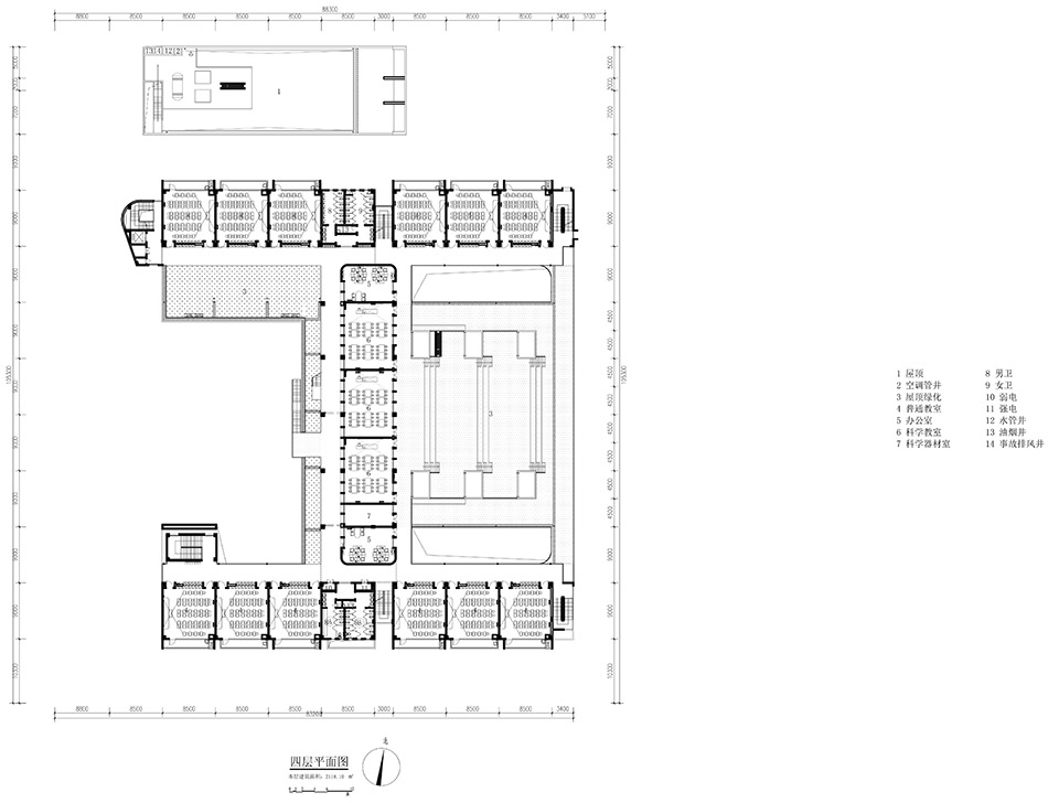
▼四层平面图,Fourth Floor Plan © 荣朝晖工作室
▼五层平面图,Fifth Floor Plan © 荣朝晖工作室
▼屋顶平面图,RoofPlan © 荣朝晖工作室
▼西立面图,West Elevation © 荣朝晖工作室
▼东立面图,East Elevation © 荣朝晖工作室
▼南立面图,South Elevation © 荣朝晖工作室
▼北立面图,North Elevation © 荣朝晖工作室
▼剖面图,Section © 荣朝晖工作室
▼剖面图,Section © 荣朝晖工作室
▼剖面图,Section © 荣朝晖工作室
▼剖面图,Section © 荣朝晖工作室
▼剖面图,Section © 荣朝晖工作室
项目名称:江苏省南京市文齐路小学
项目地点:江苏省南京市
设计单位:江苏中锐华东建筑设计研究院有限公司荣朝晖工作室
主持建筑师:荣朝晖
建筑设计团队:王雪丰 赵旌名 黄羽迪 李晶 刘永平 周霞萍 陈振伟 刘竞希 陈刚 苏鹏程 钱威
室内设计团队:张婷 梅利华
景观设计团队:王劲涛
施工单位:南京宏亚建设集团有限公司
建筑面积:23538 平方米
结构体系:框架结构
主要材料:质感涂料 混凝土 铝合金
设计时间:2021.01
建成时间:2023.09
摄影:侯博文
客服
消息
收藏
下载
最近


















































































