查看完整案例


收藏

下载
随着校园周边留仙洞片区的快速发展,对校园扩容的需求也随之迅速增加,为应对增长的学位需求,对现有校园进行改扩建成为解决供需矛盾的必要方法之一。现有校园空间作为校园规划新的原点,校园空间秩序的延续与重塑也成为校园改扩建项目设计考虑的策略和重要的设计手法之一。
As Liuxiandong area surrounding the school is developing rapidly, there has been a significant increase in the need to expand the campus. To accommodate the growing demand for school places, reconstructing and expanding the existing campus is a vital solution to address this supply-demand imbalance. With the existing campus space central to new planning, maintaining and reshaping the spatial order of the campus has become a vital strategy and design approach in the reconstruction and expansion project.
▼运动浮岛,floating playground © 方舟
项目概况
Project Overview
本项目位于深圳市南山区北部片区西丽湖畔、石鼓路旁,校园西侧为西丽石鼓路,南侧为西丽南路。本次设计为拆除原有综合楼、宿舍楼等,保留场地内原有教学楼并改造成实验楼,在扩建用地内新建1栋教学楼和1栋宿舍楼,校园建设完成后,办学规模由24班扩建至48班小学。校园用地面积约1.9万㎡,新增用地面积约0.7万㎡,总建筑面积为5.5万㎡,其中新建总建筑面积为5.1万㎡,扩建内容包括教学楼、宿舍楼、屋顶运动场、地下停车库等。
▼项目改扩建概况,renovation digram © CMAD Architects
This project is located beside Xili Lake and Shigu Road in the northern part of Nanshan District, Shenzhen, with Shigu Road to the west and Xili South Road to the south. The redesign involves demolishing the existing mixed-use and dormitory buildings, refurbishing the current teaching building into a laboratory building, and constructing a new teaching building and dormitory on the extended site. Upon completion, the primary school’s capacity will double from 24 to 48 classes. The campus currently spans approximately 19,000 square meters, with an additional 7,000 square meters being developed. The total built-up area will reach 55,000 square meters, including 51,000 square meters of new construction. This expansion includes new teaching and dormitory buildings, a rooftop sports ground, and an underground parking garage.
▼校园夜景鸟瞰,aerial view at night © 方舟
“L”形主轴:链接新旧城市空间,重构校园格局
L-Shaped Main Axis: Bridging Old and New Urban Spaces to Redefine the Campus Layout
新增用地后,校园用地呈不规则三角形。基于场地形态,新教学楼延续原有校园建筑布局,由南向北沿用地边界展开,一条由南至北的围绕运动场展开的“L”形主轴应运而生,该轴线既延伸原校园空间序列,又链接旧村与新城的城市空间,重构校园格局。
▼主轴功能元素,central axis diagram © CMAD Architects
Following the addition of new land, the campus area now presents an irregular triangular shape. Adhering to the site’s geometry, the new teaching building extends the existing architectural layout of the campus which stretches from south to north along the boundary of the land, giving rise to an L-shaped main axis that wraps around the sports field. This axis not only continues the existing spatial sequence of the campus but also connects the urban spaces of the old village with the new city, thereby redefining the campus’s overall layout.
▼“L”形主轴鸟瞰,L-shape axis aerial view © 方舟
校园主轴融合了新旧校园主要空间场所。重构的主入口广场,营造了具有仪式感的城市空间,同时提供了校园与城市间安全的过渡场所。新旧教学楼沿轴线布局,形成教室和公共教学区分区、功能复合的教学院落。
The main axis integrates key spaces from both the old and new sections. The restructured square at the main entrance adds a sense of ritual to the urban space while serving as a safe transitional area between the campus and the city. Arranged along this axis, the new and existing teaching buildings form a strategically organized teaching complex. This layout features distinct zones for classrooms and public teaching areas, fostering a multifunctional educational environment.
▼原址改造的实验楼及内广场,experimental building and inner plaza © 方舟
文教绿谷:趣味盎然的线性活力轴线
Verdant Education Valley: A Dynamic and Engaging Axis
沿“L”形主轴线剪裁体量,临园造院,打造了一条贯穿校园的文教绿谷,强化旧村、原有建筑、新建建筑、新城区的轴线关系。文教绿谷是校园空间秩序的核心区域,通过“起承转合”的设计手法,沿主轴创造了空间灵动、曲径幽径、建筑造型丰富的内部绿谷空间序列。师生的教学、交流、游戏活动围绕峡谷展开,轴线起于入口广场,承接慧之园,转于晨读广场,终于绿之谷的峡谷魅力空间,带来了有别于传统院落静怡氛围的令人兴奋的空间体验。绿谷跑道铭刻了孩子们的成长历程,为每一位学生的美好未来奠基。
▼趣味盎然的文教绿谷,culture and education green valley © CMAD Architects
Sculpted along the L-shaped main axis and building courtyards out of garden, the project has created a verdant education valley that traverses the campus. This design strengthens the connection between the old village, existing and new buildings, and the new urban district and positions the Verdant Education Valley as the heart of the campus’s spatial harmony. Utilizing design principles of progression and transformation, this linear valley weaves a tapestry of vibrant spaces, winding paths, and architecturally diverse zones. It witnesses teachers and students engage in educational, communicative, and recreational activities. The axis begins at the square at the entrance, passes through the Wisdom Garden, winds around the Morning Reading Square, and ends in the enchanting space of the Green Valley, offering an exhilarating spatial experience far removed from the tranquility typical of traditional courtyards. The track in the valley marks students’ growth, laying the foundation for their bright futures.
▼主入口,main entrance © 方舟
▼内庭院,inner courtyard © 方舟
▼入口晨读广场,entrance reading ground © 方舟
▼峡谷空间,valley space © 方舟
峡谷呈现出流线感,横线条的立面设计与原有建筑风格交相呼应。
The valley features sleek lines, its horizontal lines on the facade resonating with the existing building style.
▼峡谷空间,valley space © 方舟
运动浮岛:高度复合的立体活动空间
A Floating Island for Sports: A Multifaceted Activity Space
由于用地紧张,本案通过球场的抬升处理形成立体集约化布局。新校园设置200米屋顶环形田径场,运动场面积约6000㎡,室内室外各设置一片篮球场,器械活动场地约380㎡。在地下一层及一层设置丰富的架空空间,面积约7500㎡。架空运动空间形成立体复合的“运动层”。“运动层”向下聚合多种丰富有趣的底层娱乐空间;向上衔接漂浮的班级教学秩序。架空运动空间形成立体复合的运动层,抬升至二层高的操场与教学楼裙房延伸相接。下方平行设置图书馆、风雨操场、科技馆、报告厅等公共空间。
▼运动层图解,Sports Layer diagram © CMAD Architects
Addressing the constraints of space, the project elevates the sports field to form an intensive, multi-layered layout. The campus now features a 200-meter rooftop ring running track, encompassing a 6,000 square meter sports area with indoor and outdoor basketball courts and a 380 square meter area for physical activities with equipment. The ground and basement levels offer 7,500 square meters of elevated spaces which collectively form a dynamic “Sports Layer.” This “Sports Layer” merges various engaging ground-level recreational spaces below and connects to the organized classroom structures above. The elevated sports area rises to the second-floor height, seamlessly integrating with the teaching buildings’ extensions. Positioned parallel below are public spaces like the library, indoor sports field, science museum, and conference hall.
▼报告厅,auditorium © 方舟
资源共享:独立便捷的社区共享空间
Resource Sharing: Independent and Convenient Community Space
本案图书馆、风雨操场、报告厅、架空运动区位于校园西侧,空间布局上与主要教学区紧密联系又相对独立,在场地西南角开设社区共享出入口,社区共享流线与学校日常教学流线相独立,便于节假日期间对公众开放。图书馆区域作为社区共享流线的交通转换“核”,同层可就近达到图书馆空间,馆内设置学生、老师,及对外成人阅览区等,并提供多样化阅读空间,同时可以开展阅读公共课堂,班级小组讨论等社交学习空间。通过楼梯向上可直达屋顶田径场,向下可通过地下一层文化长廊可到达体育馆、科技馆等公共开放空间。
▼开放日流线,open day circulation diagram © CMAD Architects
The library, indoor sports field, conference hall, and elevated sports areas are situated on the western side of the campus. These spaces are closely intertwined yet distinct from the primary teaching areas. The southwest corner of the site features a community-accessible entrance, segregating community-sharing functions and teaching activities at the school for easy public access during holidays. The library serves as a transitional hub for community sharing, providing immediate access to diverse reading areas for students, teachers, and the public. It is a venue for public reading classes, group discussions, and social learning spaces. Stairs lead to the rooftop track above and down to the basement Culture Corridor, connecting to publicly accessible areas like the gym and science museum.
▼图书馆,library © 方舟
结语
Conclusion
本项目运用“邻园造院、文教绿谷”的设计理念,利用基地绿化资源丰富的特征邻园造院,以“L”形绿谷主轴重塑和整合校园,延续原有校园的建筑文脉,塑造独特的校园空间意境,提升了校园空间的功能、趣味、使用感受,使新校园充满魅力。
The project, embracing the design philosophy of “building courtyards out of gardens and creating a verdant education valley,” capitalizes on the rich greenery of the site. The L-shaped green valley reshapes and runs through the campus, preserving the architectural heritage and creating a unique spatial ambiance. It enhances campus functionality, enjoyment, and user experience, infusing the new campus with charm.
▼-1层平面图,-1F plan © CMAD Architects
▼夹层平面图,0.5F plan © CMAD Architects
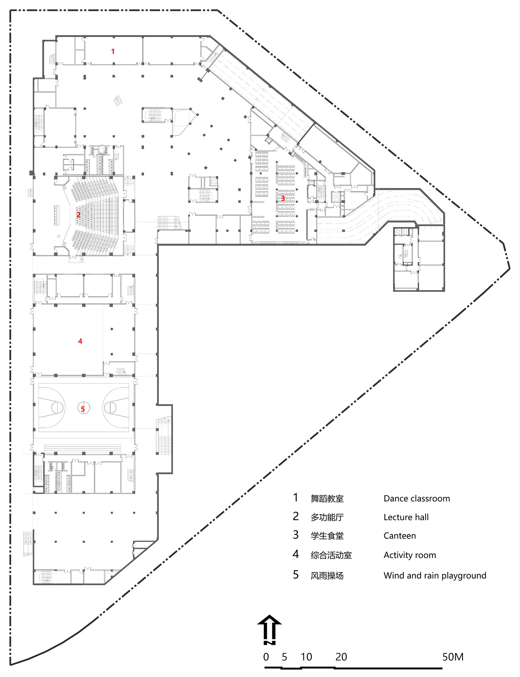
▼1层平面图,1F plan © CMAD Architects
▼2层平面图,2F plan © CMAD Architects
▼3层平面图,3F plan © CMAD Architects
▼4层平面图,4F plan © CMAD Architects
▼5层平面图,5F plan © CMAD Architects
▼6-13层平面图,6-13F plan © CMAD Architects
▼屋顶层平面图,roof floor plan © CMAD Architects
▼立面图,elevation © CMAD Architects
▼剖面图,sections © CMAD Architects
客服
消息
收藏
下载
最近


































