查看完整案例

收藏

下载
重塑场所气质 Reshape the temperament of the site
高山书屋位于惠州市南昆山国家森林公园的一个海拔800m的山谷之中。项目基地紧贴着山脚,侧对着一片池塘,被群山所环抱。场地踏勘时,正处夏秋交替之际,满山的青翠倾泻而来,山谷里吹来的风,掠过池面丝丝冰凉。场地原有建筑为双层坡屋顶砖木结构,屋檐最低点高度仅2.2米,其在环境中谦卑和近人的尺度,以及材料自身质感的彰显,都适得其所,这是我们初次到现场的深切感受。这些特征也成为我们一直想去保留的核心,贯穿在整个设计过程中。
Alpine Library is located in a valley of 800m above sea level in Nankun Mountain National Forest Park in Huizhou City . The project base is close to the foot of the mountain, facing a pond and surrounded by mountains. When visit the site, at the turn of summer and autumn, the mountains are verdant, and cool breeze from the valley passed over the pond. The original building on the site is a brick-wood structure with a double-sloping roof, and the lowest point of the eaves is only 2.2 meters high.It is a measure of humility and proximity to the surrounding environment, as well as the manifestation of the material’s own texture, are all suitable. This is the deep feeling we have when we first come to the scene.These characteristics are the core that we have always wanted to keep, which runs through the entire design process.
▼整体鸟瞰,aerial view of the project © 潮声Anson
由于原有建筑体量已不能满足新的功能需求,经过谨慎评估,很遗憾地将整体建筑进行拆除重建。带着这份惋惜,我们设想延续原有建筑的气质,以人字屋面为原型,用高低不一的两个单元形成新的连续屋面形式,与墙体乃至地面连成一体。重复叠落的屋面使建筑体量得以极大地削减和弱化,让建筑嵌入山体之中,回溯建筑与环境的关系。
▼原场地,the site © 城外建筑
Since the original building volume can no longer meet the new functional requirements, after careful evaluation, the whole building was unfortunately demolished and rebuilt. With this regret, we envisaged to continue the original architectural temperament, taking the herringbone roof as the prototype, and using two units of different heights to form a new continuous roof form, which is integrated with the wall and the ground. The repeated falling of the roof greatly reduces and weakens the volume of the building, allowing the building to be embedded in the mountain and tracing the relationship between the building and the environment.
▼以人字屋面为原型,taking the herringbone roof as the prototype © 潮声Anson
如果说外部的整体化壳体是对原有建筑的抽象转译,那么书屋中央的木盒子则是对书架最原始形式的具像呈现。其以正方网格的形式,强化传统书架的意向,外部的山型壳体作为灰空间,包裹着中间的书架,两者之间的空隙用玻璃幕墙填充,通过透明的幕墙能够望到后山的树林,使书屋处于室内和室外之间。
If the external integral shell is an abstract translation of the original building, then the wooden box in the center of the library is a concrete representation of the most primitive form of the bookshelf. In the form of a square grid, it strengthens the intention of traditional bookshelves. The outer mountain-shaped shell is used as a gray space to wrap the bookshelves in the middle. The gap between the two is filled with glass curtain walls, and the back mountain can be seen through the transparent curtain wall. keep the book house between indoors and outdoors.
▼强化传统书架的意向,strengthens the intention of traditional bookshelves © 潮声Anson
书屋的不同朝向对应着不同的界面属性,正向的悬挑外廊漂浮于水池之上,是对场地原有建筑露台形式的延续,驻足于外廊之上,与路上过往的人隔水相望。朝道路侧为了隔绝噪音,采取全封闭的形式,仅开了三个大小不一的窗口,顶部的天窗为室内带来均匀的漫反射,而在人视角的高度位置,结合座椅和窗台开了一个矩形窗,让室内外的人通过这个长窗互为框景。书屋面向池塘一侧被高耸的树林所包裹,一个全玻璃盒子破屋面而出,以最轻盈的姿态漂浮于树梢之上。
▼书屋生成过程,the process of library generation © 城外建筑
The different orientations of the library correspond to different i different interface properties.The front cantilevered verandah floats above the pool, which is a continuation of the original building terrace form of the site. People can stop on the verandah and look across the water from the people passing by. In order to isolate the noise from the road side, it adopts a fully enclosed form. Only three windows of different sizes are build. The skylight on the top brings uniform diffuse reflection to the interior. At the height of the human viewing angle, it is combined with the seat and the window sill. A rectangular window was created to allow people inside and outside to frame each other through this long window. The book house faces the pond and is surrounded by towering trees. A glass box emerges from the broken roof, floating above the treetops in the lightest posture.
▼从森林中探出的书屋,the Library peeked out of the forest © 潮声Anson
书屋主入口处延续场地原建筑低矮檐口的方式,净高仅为2米,以刻意压低的方式取得观赏自然的平和视角,也是进入内部空间前的欲扬先抑。同时延伸正向的外廊转至主入口平台,形成连续高度变化的转角灰空间,模糊室内外的空间界限。
The main entrance of the library continues the low cornice of the original building, with a net height of only 2 meters. It is deliberately lowered to obtain a peaceful view of nature, which is also a desire to promote and suppress before entering the internal space. At the same time, the extended front corridor turns to the main entrance platform to form a corner gray space with continuous height changes, blurring the space boundary between indoor and outdoor.
▼悬浮于水池之上的外廊飘台, veranda floating platform suspended above the pool © 潮声Anson
▼刻意压低的入口以达到亲人尺度, the entrance is deliberately lowered to achieve a pleasant scale © 潮声Anson
▼大屋顶覆盖下的灰空间,gray space covered by a large roof © 潮声Anson
外部空间转化为内部空间 The external space transforms into the internal space
由书屋连续叠落的屋顶和中央插入的木盒子,自然地分割形成内部空间,木盒子内部是下沉式的活动区,由较低侧屋顶和木盒子围合而成的是开放阅读空间,而较高侧的屋顶和木盒子之间冗余的高度,自然的成为阁楼冥想空间。
▼书屋功能空间分析,Analysis of Bookstore Function Space © 城外建筑
The stacked roof of the book house and the wooden box inserted in the center are naturally divided to form an internal space. The inside of the wooden box is a sunken activity area. The lower side roof and the wooden box form an open reading space. The redundant height between the higher side roof and the wooden box naturally becomes a meditation space in the attic.
▼开向森林、天空和道路的窗口,a window to the forest, the sky, and the road ©潮声Anson
用整体书架作为空间的分隔,嵌入到连续的屋面之下,首层为开放阅读区和下沉式活动区,围绕着中央楼梯形成环游路径,漫步其间,透过不同的界面和窗口,与周边的风景形成对话。
The whole bookshelf is used as a space divider, embedded under the continuous roof, On the ground floor, there is an open reading area and a sunken activity area, which forms a circular path around the central staircase, and through different interfaces and windows, it forms a dialogue with the surrounding landscape.
▼朦胧光影中的书架空间,bookshelf space in the hazy light and shadow ©潮声Anson
沿着书架中央的楼梯踏步而上,后山树景正对路的尽头,犹如行走在书山之中,所谓书山有路之意,再转角来到阁楼空间,正对着开阔的森林景观,高山书屋再现了林中登山的空间体验。
Step up the stairs in the center of the bookshelf, the tree view of the back mountain is facing the end of the road, as if walking in the book mountain, the so-called book mountain has the meaning of the road, and then turn the corner to the attic space, facing the open forest landscape, the alpine book house reproduces the space experience of mountaineering in the forest.
▼书架中央的楼梯,staircase in the center of the bookshelf ©潮声Anson
书屋的二层是被连续坡屋顶包裹的阁楼空间,尺度上相比首层与身体更为相近。大小不一的天窗,全通透的落地景观窗,开向首层的长条洞口,行走或盘坐其中,天空、森林和活动的人,同时流动在空间里。
The second floor of the library is an attic space wrapped by a continuous pitched roof, which is closer to the body in scale than the first floor. Skylights of different sizes, fully transparent floor-to-ceiling landscape windows, a long hole that opens to the ground floor, walking or sitting in it, the sky, the forest, and the moving people flow in the space at the same time.
▼楼梯尽头为开阔的森林景观,at the end of the staircase is an open forest landscape ©潮声Anson
▼阁楼冥想空间,attic meditation space ©潮声Anson
▼连续屋顶和天窗,continuous roofs and skylights ©潮声Anson
“登山”路径的最后一站为破屋面而出的玻璃盒子,漂浮于树梢之上,置身其中完全被树林包围,以最小尺度的距离感受自然,达到空间体验序列的最高潮。
The last stop of the “climbing” path is the glass box emerging from the broken roof, floating above the treetops, being completely surrounded by woods, feeling nature at the smallest distance, and reaching the climax of the spatial experience sequence.
▼嵌入树林中的飘台,floating platform embedded in the woods ©潮声Anson
▼漂浮于树梢上的玻璃盒子,a glass box floating on the treetops ©潮声Anson
材料与结构 Material and structure
在材料上的选择,首要考虑的是如何在环境中,弱化屋顶和墙体一体化形成的体量压迫感,最终采用220*220mm的深灰色钛锌板金属瓦,能够在尺度和色感上与原有瓦片的相近,减小建筑体量,同时也是对传统瓦片的现代化转译。
▼施工过程, construction process ©城外建筑
In the choice of materials, the main consideration is how to weaken the pressure of the volume formed by the integration of the roof and the wall in the environment, and finally use the 220*220mm dark gray titanium zinc plate metal tile, which can be in scale and color. Similar to the original tiles, it reduces the volume, and at the same time is a modern translation of traditional tiles.
▼剖透视,cutaway perspective ©城外建筑
在建筑方案前期,结构专业就介入同步推进方案的深化,首要解决的问题是如何让山型外壳轻巧的包裹着中央的木盒子,多轮讨论后决定采用钢结构,把空间中所有的柱子都藏在木盒子的书架中,同时把相关的设备管线也藏在书架之中,二层阁楼里的柱子则成组做成内凹龛墙,巧妙的消隐结构,达到最后的完整纯粹的空间效果。
In the period of the construction plan, the structural profession involved in the deepening of the plan simultaneously. The first problem to be solved was how to make the mountain-shaped shell lightly wrap the central wooden box. After many rounds of discussions, it was decided to adopt a steel structure to remove all the columns in the space. They are all hidden in the bookshelf of the wooden box, and related equipment pipelines are also hidden in the bookshelf. The pillars in the two-story attic are grouped into concave niches. The ingenious blanking structure achieves the final completeness and purity space effect.
▼钛锌板金属瓦屋面,titanium-zinc sheet metal tile roofing ©潮声Anson
运营与大众反馈 Operations & Mass Feedback
南昆秘境民宿于2020开业运营至今,高山书屋始终是南昆山国家森林公园的网红打卡空间,在各大网络平台上都可见大众分享的照片,对于当下的流量现象,作为设计方更加关注的是,完全没看过设计理念和分析的大众,是如何使用这个空间,以及他们的感受和评价,而这些反馈正是设计的依据之一。
Since the opening and operation of Nankun Secret hotel in 2020, the book House has always been an Internet celebrity check-in space in Nankun National Forest Park, and photos shared by the public can be seen on major online platforms.
▼夜景,night view ©潮声Anson
▼一层平面,first floor plan ©城外建筑
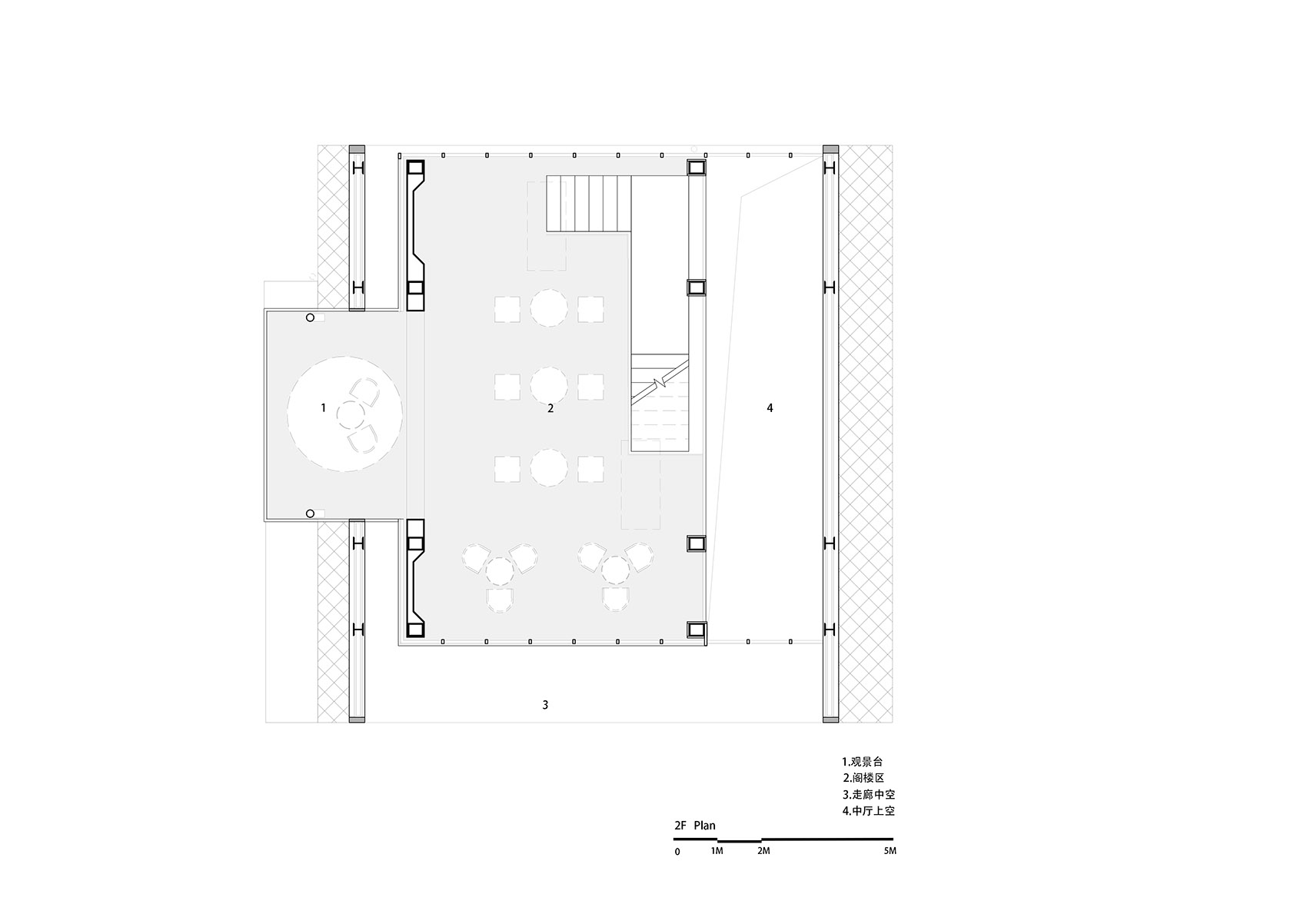
▼二层平面,second floor plan ©城外建筑
▼剖面图,section ©城外建筑
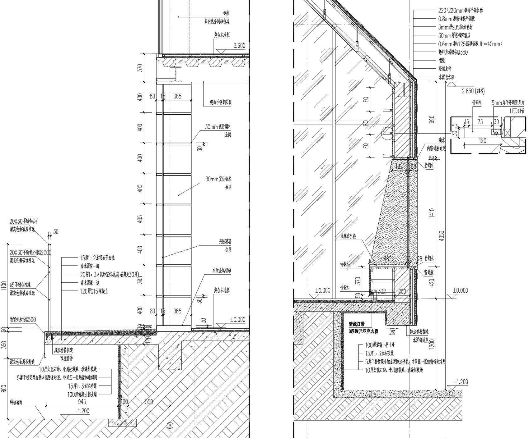
▼墙身大样,architectural detail drawing ©城外建筑
项目名称:南昆秘境高山书屋 业 主:惠州市爱树文旅投资发展有限公司 设 计 方:广州城外建筑设计有限公司 设计团队:陈洁琦,林旺铭,沈莹颖,黄毅源,陈振辉 灯光设计:广州市恒光设计有限公司 施工团队:广东德信众诚建设工程有限公司 摄影版权:潮声@Anson 项目设计&完成时间:2019.10-2020.10 项目地址:广东省惠州市南昆山国家森林景区 项目规模:200㎡
Project Name: Nankun Secret Alpha Library Owner: Huizhou Itree Cultural Tourism Investment Development Co., Ltd. Designer: Wildurban Architects Design team: Jacky Chan, Lin Wangming, Amy Shen, Evan Wong, Aiden Chan Lighting design: Guangzhou Hengguang Design Co., Ltd. Construction team: Guangdong Dexin Zhongcheng Construction Engineering Co., Ltd. Photography copyright: Chaosheng @ anson
客服
消息
收藏
下载
最近

































