查看完整案例


收藏

下载
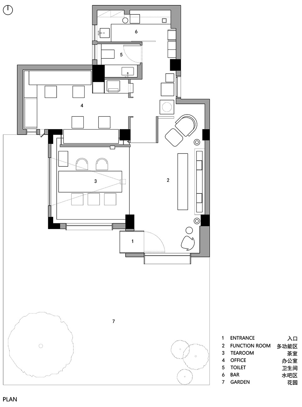
设计师尝试处理历史遗产和城市更新的议题。整个空间中保留了已建成30多年的梁柱结构,以及部分砖墙,让它与新材质对话。
Designers attempt to address issues related to historical heritage and urban renewal. The entire space retains the beam column structure that has been built for over 30 years, as well as some brick walls. Let it have a conversation with the new material.
▼项目概览,oroject overview © 覃昭量
▼临街立面,facade © 覃昭量
▼临街入口,entrance © 覃昭量
设计师想创造一个怀旧、孤独、安静的工作室。
The designer wants to create a nostalgic, lonely, and quiet studio.
▼室内概览,interior overview © 覃昭量
▼室内概览,interior overview © 覃昭量
▼茶室,tea room © 覃昭量
▼茶室中的座椅,chair in the tea room © 覃昭量
▼老旧但现代的气质,a nostalgia but modern atmosphere © 覃昭量
▼茶室一角,a corner in the tea room © 覃昭量
▼细部,details © 覃昭量
怀旧不是活在过去,而是面向更远的未来。那种古朴、老旧、逃避、朋克、颓废、粗糙的反美学气质,却营造出一种年轻、现代且充满创意的灵魂。
Nostalgia is not about living in the past, but about facing a further future. The anti-aesthetic temperament of simplicity, antiquity, evasion, punk, decadence, and roughness creates a young, modern, and creative soul.
▼办公室,office © 覃昭量
▼办公室一角,a corner in the office © 覃昭量
▼摆件与盆栽,sculpture and potted plants © 覃昭量
▼水吧台,bar © 覃昭量
▼卫生间,toilet © 覃昭量
▼庭院一瞥,a glimpse at the courtyard © 覃昭量
▼爆炸图,exploded diagram © 覃昭量
▼总平面图,site plan © 覃昭量
▼总平面图,site plan © 覃昭量studio
客服
消息
收藏
下载
最近














































