查看完整案例

收藏

下载
我们试图营造的建筑与环境是相融的,它在既定的场域中探出尖锐的脑袋,却不带有任何侵略姿态。
“The architecture we are trying to create is integrated with the environment, featuring sharp forms that emerge within the existing context without any sense of intrusion.”
——大犬建筑设计
BRLOOTE巴鲁特总部位于绍兴,坐落于工业区的高架路与城市的水系之间。受其品牌的委托,大犬建筑设计事务所完成了该项目的整体规划,建筑设计与室内空间设计。项目占地面积为47,114平方米,建筑主体功能为服装智能研发及生产制作、辅以观光工厂、仓储、办公及会议、员工餐厅、品牌展示、零售空间、服装创作设计中心、接待中心、环形休憩广场、空中廊桥与花园等综合性的使用功能。
BRLOOTE Headquarter is situated in Shaoxing, nestled between the elevated road of the industrial zone and the city’s waterways. The Greater Dog Architects handled the overall planning, architectural design, and interior design for the project.
The site covers an area of 47,114 square meters, with the primary functions including garment research and development, and production, along with a sightseeing factory, warehouses, offices and conferences, Fashion Creation Design Center, a staff canteen, showroom, retail space, reception center, outdoor square, aerial bridge, and garden, among other comprehensive features.
▼项目概况,project overview © Metaviz Studio
「裁剪式」规划 · 水系与连接
“Tailored” Planning: Waterways and Connections
“裁剪”作为服装制作过程中不可或缺的创作过程,成为BRLOOTE总部整体规划及建筑基础形态探索的起始点。建筑师如同裁剪者,场地被想象成了一块轻柔的不规则布料,河流将其载入。通过线性穿插、环形介入、切片与角度的关系应用,对场地进行“裁剪”式规划。
▼场地体块生成,massing progress © 大犬建筑设计
As an indispensable process in garment production, ‘cutting’ has become the starting point for the overall planning of the BRLOOTE Headquarters and the exploration of the building’s basic form.
Like a tailor, the architect envisions the site as a soft, irregular fabric carried by the river. The site is strategically planned with a “tailored” approach, by applying design elements such as linear interplay, circular integration, slicing, and angles to the architectural form.
▼项目周边环境,project surroundings © Metaviz Studio
建筑师回应场地特点,确立了一条贯穿南北的主轴线,地块东北面为主楼「裁片Sliced Building」,西南面为两组单体建筑:「镜所Mirrored Building」与「回所Squared building」。在建筑布局中,优先考虑日照、天井与绿色共享空间,并在不同建筑功能的穿插上进行动线规整,以便在使用中能以高效的路径抵达不同建筑。
In response to the site’s characteristics, the architect established a main axis running from north to south. The main building,known as the Sliced Building, is located in the northeast, while on the southwest side, there are two groups of standalone structures: the Mirrored Building and Squared Building.
In the building layout, priority is given to sunlight, patios and shared green spaces. Additionally, the distinct functional requirements of each building are fully considered, allowing for efficient access between different buildings during use.
▼对场地特点的回应,response to the site’s characteristics © Metaviz Studio
主轴线同时明确了园区主干道以及客流动线。在道路侧边相对隐秘的位置,设置并满足了办公及研发工厂两大功能的停车需求。通过引入小型的绿地,软化道路硬地边缘的同时,划分行人及车辆通道。
The main axis also delineates the park’s main roads and pedestrian circulation. In a relatively hidden location alongside the road, parking facilities are strategically placed to meet the parking requirements of both the office and R&D factory functions. By introducing tiny green spaces, the harsh edges of the road are softened while dividing pedestrian and vehicular pathways.
▼对场地特点的回应,response to the site’s characteristics © Metaviz Studio
在拥挤忙碌的工业园区,自然世界是遥不可及的。借助地块的环境优势,建筑师把外围水系引入内部地块中,灵动地串联着工业区内不同的工作场所,构建场地与水系的亲密尺度。
环形广场作为亲水平台的同时,它衔接了主体建筑「裁片」与小单体建筑群「镜所」,实现人行动线上的互通,也为场地增加公共户外休息区域。
连接环形广场与「回所」建筑的步行廊桥,衔接了人抵达不同建筑的路径。
The natural world seems out of reach in bustling and crowded industrial area. Leveraging the environmental advantages of the site, the architect ingeniously brought the peripheral waterway into the site, dynamically connecting various workplaces within the industrial area, thereby constructing an intimate connection between the site and the river.
Meanwhile, the circular square serves as a water-friendly platform, linking the Sliced Building and the Mirrored Building, facilitating pedestrian circulation, and also providing a public outdoor relaxation area. The pedestrian bridge connects the circular square to the Squared Building, forming a link between paths leading to various buildings.
▼将外围水系引入内部地块,brought the peripheral waterway into the site © Metaviz Studio
▼环形广场,the circular square © Metaviz Studio
「裁片」建筑 · 动态与错落
Sliced Building: Dynamic and Staggered Arrangement
这座营造了现代化工作环境的建筑是BRLOOTE总部中的主体建筑。「裁片」作为临近主路的多层建筑,综合了品牌所需的主要功能:服装智能研发及生产、观光工厂、制作车间与仓储、办公及会议、员工餐厅等。因此,它主要面向内部办公人员;而靠近北面主干道入口的一二层则集中了面对消费者的零售空间,品牌展厅与观光工厂等功能。
▼体块生成,massing design process © 大犬建筑设计
The building that creates a modern working environment is the main structure at the BRLOOTE headquarters. As a multi-story building located near the main road, the Sliced Building integrates the key functions, which including garment R&D and production, a sightseeing factory, warehouses, offices and conferences, a staff canteen, and more.
Therefore, it primarily serves internal office staff, while the first and second floors near the north main road entrance house retail spaces for consumers, showrooms, and functions related to the sightseeing factory.
▼「裁片」建筑,Sliced Building © Metaviz Studio
在建筑形态上,依然延续BRLOOTE品牌至上主义的几何抽象化运用。建筑以黑白为主,纯净的线条与内退的入口形态,营造出微妙的节奏。建筑与室内整体连贯的原则始于场地外与内不可分割的联系,而各空间的功能需求则定义了整体的建筑结构以及内部的动线关系。大犬设计团队通过由外而内,从内到外的整体性来进行建筑与空间的探索。
In terms of architectural form, the continued use of geometric abstraction reflects the brand-centric approach of BRLOOTE. The building mainly features a black and white color scheme, with clean lines and a recessed entrance, creating a subtle rhythm.
The relationship between the exterior and interior of the site forms the foundation for the overall coherence between architecture and interior design, while the functional requirements of each space define the overall architectural structure and internal circulation relationships. The Greater Dog Architects focuses on creating a seamless connection between the external and internal spaces, emphasizing integrity and continuity.
▼建筑对几何的抽象化运用,use of geometric abstraction © Metaviz Studio
▼以黑白,纯净的线条为主,the building mainly features a black and white color scheme with clean lines © Metaviz Studio
办公体块与智能研发工厂体块作为两个主要的部分,中间穿插了两组不同朝向且具有角度的共享空间体块,以创建高效、灵活的、动态的工作环境,从而为他们带来真正的协作空间。
红色玻璃廊桥,作为串联不同功能空间的同时,形成了一种有凝聚力的语言。
空中花园的设计为室内带来更多的自然采光,也为庞大的建筑带来更多通往户外的契机。具有自然造景的空中花园和充足的阳光消除了建筑与室内的界限,这里也可作为户外会议空间、交谈空间、步行道等。
The office block and the R&D factory block serve as the two main components, with two sets of shared space blocks inserted in between, each with different orientations and angles. This design aims to create an efficient, flexible, and dynamic working environment, providing them with a truly collaborative space.
The red glass covered bridge connects different functional spaces and forms a cohesive language. The design of the sky garden brings more natural lighting indoors, and also brings more opportunities to the outdoors for the huge building.
The sky garden with natural landscaping and ample sunlight eliminates the boundary between the building and the interior. It can also be used as an outdoor meeting space, conversation space, walking path, etc.
▼红色玻璃廊桥, the red glass covered bridge© Metaviz Studio
▼串联不同功能空间,connects different functional spaces © Metaviz Studio
「镜所」建筑 · 镜像与水
Mirrored Building:Reflection and Water
「镜所」为两栋地上两层建筑,作为依水而建的小单体建筑,用以BRLOOTE服装创作设计中心使用。整体建筑形态以左右与前后镜像的关系排布,分为两幢四户;裁片状的曲线,增加建筑的灵动感;为使建筑与自然更为紧密的结合,楼体三分之一的部分坐落于水面之上,使建筑在水中形成双重叠加的镜像状态;建筑师借用水系创造了更为宁静的环境语言,也为服装设计师带来更具启发性的创作氛围。
▼体块生成,massing design process © 大犬建筑设计
The Mirrored Building consists of two-story buildings, serving as small standalone structures built by the water for the use of the BRLOOTE Fashion Creation Design Center.
The overall architectural form is arranged with a mirroring relationship between the left and right, as well as the front and back, dividing it into two sets of four units. Curved, pie-shaped elements add a sense of dynamism to the building.
To integrate the building more closely with nature, one-third of the structure is positioned above the water, creating a double-layered mirrored effect in the water. The architect borrowed the river creates a more tranquil environmental language and also brings a more inspiring creative atmosphere to the fashion designers.
▼使建筑在水中形成双重叠加的镜像状态,creating a double-layered mirrored effect in the water © Metaviz Studio
▼楼体三分之一的部分坐落于水面之上,
one-third of the structure is positioned above the water © Metaviz Studio
「回所」建筑 · 天井与水 Squared building: Patio and Water
「回所」作为地上三层建筑,建筑落位于该项目西南角的独立小岛上,它被河流隔开,呈现最为私密的状态,它的功能为品牌接待中心。向建筑内部引入水系的设计策略,形成了建筑以天井为中心,围绕而建的空间动线。四周具有倾斜角度的屋顶,在雨季来临时,雨水由四周向内滴落在天井的水面上。它为使用者带来更多与自然触碰的契机,也为忙碌的工业园区带来更多的诗意瞬间。
▼体块生成,massing design process © 大犬建筑设计
The Squared Building is a three-story structure located on an isolated island in the southwest corner of the site. It is separated by a river, ensuring maximum privacy.
Its primary function is to serve as a brand reception center. The design incorporates water features into the building, creating a central courtyard around which spatial circulation is organized. The slanted roofs surrounding the courtyard allow rainwater to drip inward during rainy days.
This design provides people with more opportunities to connect with nature and brings poetic moments to the bustling industrial area.
▼建筑以天井为中心,围绕而建,a central courtyard around building © Metaviz Studio
▼建筑被河流隔开,呈现最为私密的状态,
It is separated by a river, ensuring maximum privacy © Metaviz Studio
「裁片」、「镜所」、「回所」这三组建筑的部分屋顶以适宜角度倾斜,从而增大屋顶层的视野面。同时,环保的设计理念通过该角度而实现,它为安装光伏电池板提供便利的同时又满足高效排水。
通过雨水收集和在屋顶使用新型太阳能光伏面板,其产生的能量满足了整个总部的使用需求。
For the Sliced Building, Mirrored Building and Squared building, a portion of their roofs is inclined at an appropriate angle to increase the rooftop’s visibility. Simultaneously, this design aligns with eco-friendly principles, making it convenient for the installation of solar panels while ensuring efficient drainage.
By collecting rainwater and utilizing innovative solar photovoltaic panels on the roof, the generated energy meets the needs of the entire headquarters.
▼建筑被河流隔开,呈现最为私密的状态,It is separated by a river, ensuring maximum privacy © Metaviz Studio
「裁片」建筑西面入口通往办公区域,椭圆形的采光顶为办公大堂及各层公共区域引入自然光线,从而降低人工光负荷。同时,环形高挑空廊道串联上下空间,形成层叠的光影效果,为大堂创造更为丰富的感官连接。
The western entrance of the Sliced Building leads to the office area. The oval skylight introduces natural light into the office lobby and public areas on each floor, thereby reducing artificial light needs. Simultaneously, a circular, high-ceilinged corridor links the upper and lower spaces, forming a cascading play of light and shadows, enriching the sensory connection within the lobby.
▼椭圆形的采光顶,the oval skylight © Metaviz Studio
东西两侧的电梯厅,作为主要的内部垂直交通。大堂中心之字形的坡道设计,提供步行动线上多维的使用体验。行走于悠长的坡道,感受自然光由远至近的感官变化。
在挑空空间中置入大尺度的坡道,建筑师摒弃多余的装饰手法,以结构之美,营造独特的大堂空间氛围。同时满足BRLOOTE总部多变的使用需求,坡道可用以服装走秀舞台以及品牌活动的场所。
The elevator halls on the east and west sides serve as the main internal vertical transportation. The central zigzag-shaped ramp design in the center of the lobby provides a multi-dimensional experience along the walking path. Walking along the spacious ramp, people can feel the sensory changes of natural light from far to near. By placing a large-scale ramp in the atrium space, the architect abandoned ornamentation in favor of the beauty of structure, creating a unique lobby space atmosphere. At the same time, it meets the changing needs of BRLOOTE headquarters. The ramp can be used as a runway stage and a venue for brand events.
▼悠长的坡道,the spacious ramp © Metaviz Studio
▼电梯厅,the elevator halls © Metaviz Studio
位于办公大堂的左侧零售空间,建筑北面入口作为消费者入店体验与展厅参观的主要入口,它毗邻城市主干道,相较于办公入口更具有对外性。通过户外圆筒形红色透明玻璃楼梯空间,分别可以进入零售空间的一层和二层以及观光工厂的展厅区域。
Located on the left side of the office lobby, the retail space has its main entrance on the north side of the building, serving as the primary entrance for consumers to do shopping and visit the showroom.
It is adjacent to the city’s main road and has a more outward-facing aspect compared to the office entrance.
Through the outdoor cylindrical red transparent glass stairwell space, one can access both the ground floor and the second floor of the retail space as well as the showroom of the sightseeing factory.
▼电梯厅,the elevator halls © Metaviz Studio
一层零售空间以BRLOOTE品牌男装陈列为主,并设有该品牌的SI标准店展示、直播间、更衣室等等。开放楼梯作为上下楼的主要动线,结合陈列与收银台的功能;多重结构形态占据了空间的中心位置,相应的功能则围绕它而展开;应用于天花上的透光玻璃与黑色镜钢,光感延伸了楼梯的纵向空间视觉。悬浮热轧板展示台面穿插在空间中,形成轻盈与重量感的对话。
The retail space on the first floor mainly displays BRLOOTE men’s clothing and includes the brand’s SI standard store display, live broadcast room, fitting room, etc. An open staircase serves as the main circulation route between the floors, combining the functions of display and cashier.
A multi-layered structural form occupies the central space, with corresponding functions organized around it. Translucent glass and black mirrored metal applied to the ceiling extend the visual perception of the vertical space created by the staircase. Suspended mental display plates are interspersed throughout the space, forming a dialogue between lightness and solidity.
▼一层零售空间,the retail space on the first floor © Metaviz Studio
由中心区域的开放楼梯进入二层零售空间。该空间集合了国内外不同的女装品牌,LEDING定制品牌,形象沙龙空间以及更衣室,储藏间等等。
The second-floor retail space is accessed via an open staircase in the central area. This space brings together different women’s clothing brands, Leding Bespoke, a Salon area, fitting rooms, storage, etc.
▼二层零售空间,the retail space on the second floor © Metaviz Studio
在二层零售区设计了通往BRLOOTE品牌展厅以及观光工厂的路径。参观者透过落地窗看到数字化研发与车间制作的实况。制作车间内一方面拥有先进的智能吊挂生产线设备,另一方面则有供顾客参观的品牌展厅,里面详细展示了其重要的制作工艺,服装面料,生产流程等等。
On the second floor, adjacent to the retail space, a pathway is designed to lead to the showroom and the sightseeing factory. Visitors can see a live digital R&D through the floor-to-ceiling windows. On one side, the production workshop is equipped with advanced intelligent hanging production line equipment, and on the other side, there is a showroom for customer visits. The showroom provides detailed displays of essential techniques, fabrics, production processes, and more.
▼数字化研发与车间制作,the showroom and the sightseeing factory © Metaviz Studio
▼品牌展厅,the showroom © Metaviz Studio
服装领域工作的多样性使人们需要灵活多变的办公环境,它不局限于办公桌,也可能包括一些有趣的方式。在此建筑中,各式各样的方式汇集在一起形成共生体,任何事情都能在此发生。
The diversity of work in the fashion industry calls for a flexible office environment that is not limited to desks but may also include different creative approaches. In this building, various ways come together to form a symbiosis where anything can happen.
▼车间制作, the factory © Metaviz Studio
▼车间生产线, the production line © Metaviz Studio
▼会议室, the conference room © Metaviz Studio
由办公空间抵达红色玻璃廊桥,它串联办公区、餐厅及工厂区。餐厅作为共享空间,营造了一种非正式的休闲用餐氛围。在该氛围中促进员工的社交与分享欲,带来更多思维的碰撞与创造力。
The journey from the office space to the red glass aerial bridge connects the offices, canteen, and factory. As a shared space, the staff canteen creates an informal and relaxed dining atmosphere. Within this ambiance, it fosters social interaction and encourages sharing among employees, leading to more ideas colliding and sparking creativity.
▼餐厅,canteen © Metaviz Studio
科技的创新带来服装智能制造的发展新趋势,通过技术创新实现更加高效、智能和个性化的服装生产。大犬设计团队通过综合性的设计策略使场地与建筑得到了合理的利用,为室内不同功能空间的高效运用提供了多重可能,构建一个高效节能的,环境舒适的人性化复合型空间。
Technological innovation has brought new trends in the development of intelligent clothing manufacturing, and more efficient, intelligent and personalized production has been achieved through technological innovation.
The Greater Dog Architects has employed a comprehensive design strategy to ensure the reasonable utilization of the site and building. This approach provides multiple possibilities for the efficient use of various indoor functions, creating an energy-efficient, environmentally comfortable, and human-friendly complex space.
▼建造过程,construction progress © 大犬建筑设计
▼「回所」建筑首层平面, Squared building ground floor plan © 大犬建筑设计
▼「回所」建筑二层平面, Squared building first floor plan © 大犬建筑设计
▼「回所」建筑三层平面, Squared building second floor plan © 大犬建筑设计
▼「回所」建筑剖面1, Squred building section 1 © 大犬建筑设计
▼「裁片」建筑首层平面, Sliced building ground floor plan © 大犬建筑设计
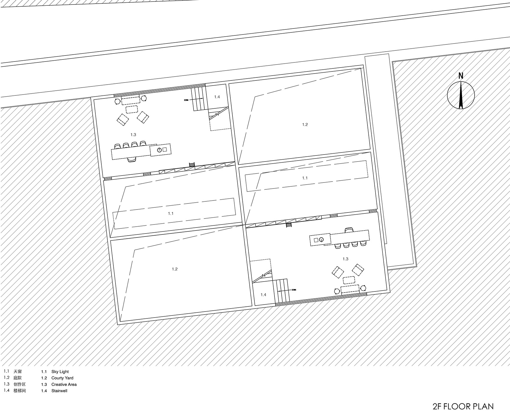
▼「裁片」建筑二层平面, Sliced building first floor plan © 大犬建筑设计
▼「裁片」建筑三层平面, Sliced building second floor plan © 大犬建筑设计
▼「裁片」建筑四层平面, Sliced building third floor plan © 大犬建筑设计
▼「裁片」建筑立面 1,Sliced building elevation 1 © 大犬建筑设计
▼「裁片」建筑立面 2,Sliced building elevation 2 © 大犬建筑设计
▼「裁片」建筑立面 3,Sliced building elevation 3 © 大犬建筑设计
▼「裁片」建筑剖面1, Sliced building section 1 © 大犬建筑设计
▼「裁片」建筑剖面2, Sliced building section 2 © 大犬建筑设计
▼「镜所」建筑首层平面,Mirrored building ground floor plan © 大犬建筑设计
▼「镜所」建筑二层平面,
Mirrored building first floor plan © 大犬建筑设计
▼「镜所」建筑立面 1, Mirrored building elevation 1 © 大犬建筑设计
▼「镜所」建筑剖面 1, Mirrored building section 1 © 大犬建筑设计
客服
消息
收藏
下载
最近































































