查看完整案例

收藏

下载
华沙商业花园是一个商业园区规划,由七座建筑组成,包括办公室、商店、酒店和会议中心,占地面积超过 90,000 平方米,紧邻连接国际机场和华沙市中心的 Żwirkii Wigury 大街,公共交通设施非常便利。
The Warszawa Business Garden is a plan for a business park composed of seven buildings housing offices, shops, hotels, and a meeting centre within an area of over 90.000 m2, is situated in close proximity of Żwirkii Wigury Street which links the international airport to the city center of Warsaw. The location provides very convenient access to the public transport facilities.
▼项目概览,project overview © Nate Cook
Fuksas事务所设计的 1 号楼具有多种功能,包括一家共五层拥有 206 间客房的酒店、一个可容纳约 800人的会议中心、一个活动中心、零售区、一家餐厅、一家咖啡馆、办公区、 280 个停车位。不同的功能区分布在底层当中的开放空间,这里是通往各个区域的节点,这些区域可以分开使用,也可以根据需要合并。
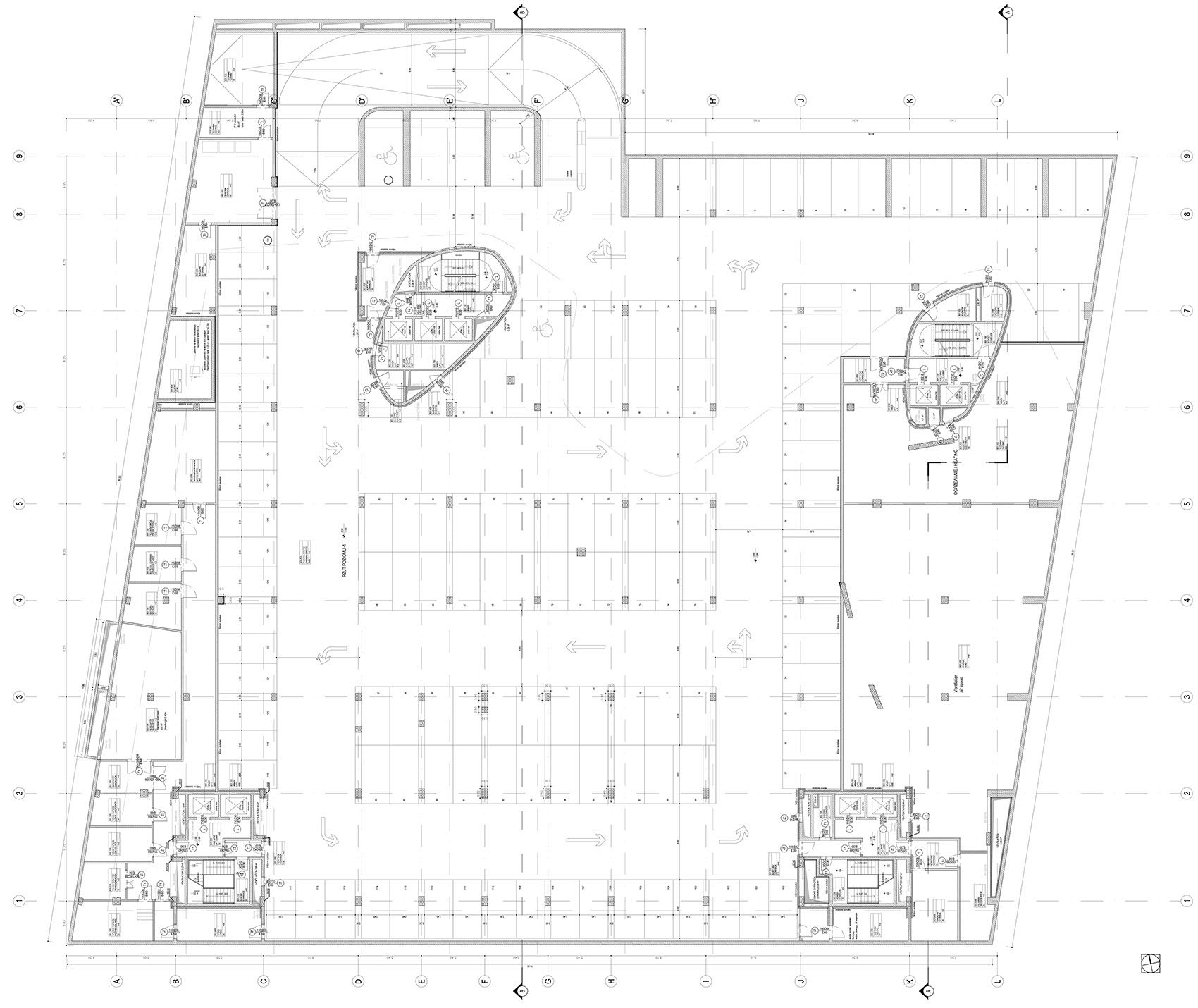
▼项目平面,plan © FUKSAS
The Studio Fuksas designed the Building n. 1, which hosts several functions, a hotel with 206 rooms arranged on 5 levels, a Congress Center for about 800 seats, an event Centre, retail areas, a restaurant, a cafè, office spaces and 280 car parks. The different functions are distributed around an open space on the ground floor, nodal point where accessing various areas, organised in such a way that they can be used separately or, as required, merged.
▼首层的开放空间,open space at the ground floor © Piotr Krajewski
公园一楼的正面开口处有一座大型 “绿色 “露台,位于餐厅前方,可用于与酒店相关的所有活动,如会议中心。
The front opening of the Park on the first floor has a large “green” terrace, located in front of the restaurant and can be used for all events connected to the hotel as the Convention Center.
▼一个大型 “绿色 “露台,a large “green” terrace © Nate Cook
建筑群的最大高度为 25 米。地上两层的 3 个体量相连,形成了一个遮雨棚,为整个建筑内的访客和工作人员遮风挡雨。
▼建筑剖面,section © FUKSAS
The max height of the complex is 25 m. The 3 on the 2 upper floors jut below to create a sort of shelter that protects throughout the building guests, visitors or buyers from rain and snow.
▼遮雨棚,shelter that protects from rain and snow© Nate Cook
▼花园环境,garden environment © Piotr Krajewski
建筑群的基本理念是以雕塑般的体量感来展现设计过程中必须整合的不同功能,同时兼顾华沙周边的城市景观和中央Wisniowy花园公园的理念。面向街道的立面是笔直的,而面向公园的立面线条则略有移动。
A sculptural volumetric strength showing the different functions which had to be integrated in the design process are the basic idea of the complex while taking care about the surrounding aspects of the closer cityscape of Warsaw and the idea of the central Wisniowy Garden Park. The facades towards streets are straight, while the façade lines towards the park are moving slightly.
▼雕塑般的体量感,a sculptural volumetric strength © Piotr Krajewski
▼夜景,night view © Piotr Krajewski
▼1号楼首层平面,No.1 building ground floor plan © FUKSAS
▼1号楼一层平面,No.1 building first floor plan © FUKSAS
▼1号楼二层平面,No.1 building second floor plan © FUKSAS
▼1号楼三层平面,No.1 building third floor plan © FUKSAS
▼1号楼四到六层平面,No.1 building forth to sixth floor plan © FUKSAS
▼1号楼屋顶平面,No.1 building roof plan © FUKSAS
▼1号楼立面 1,No.1 building elevation 1 © FUKSAS
▼1号楼立面 2,No.1 building elevation 2 © FUKSAS
▼1号楼立面 3,No.1 building elevation 3 © FUKSAS
▼1号楼立面 4,No.1 building elevation 4 © FUKSAS
▼1号楼剖面1,No.1 building section 1 © FUKSAS
▼1号楼剖面2,No.1 building section 2 © FUKSAS
Project: Business Garden Warszawa Hotel
Site: Warsaw, Poland
Period: 2008 – 2013
Developer: Swede Center
General Project: JSK Architekci
Architects Building N.1: Massimiliano and Doriana Fuksas
Area Building N.1: 14.926 sq.m.
Program: business hotel (5.253 sq.m), 206 rooms; conference center (2.717 sq.m.); restaurant (1.228 sq.m.) offices (4.991 sq.m.)
General Contractor: Hochtief Polska
客服
消息
收藏
下载
最近




























