查看完整案例

收藏

下载
在位于长宁区核心城市绿洲腹地海粟公园的新家CPARK中,我们为iag设计了一张“精致的白纸”。纸张的质地旨在为未来空间中的展示,活动与事件提供一个低调的,精致的,开放的基础性平台。
In CPARK, which is located in the Haixu Park in the core city of Changning District, we have designed a “exquisite white paper” for IAG. The texture of the paper is designed to provide a low -key, exquisite, open basic platform for the display in the future space, activities and events.
▼西侧入口,West entrance © 刘松恺
▼一楼中庭,First floor atrium © 刘松恺
空间整体调性以简洁白色为基调,动线追求简单明确。但在细微之处如铺地,扶手,天花等区域又能解读出与iag先锋艺术气质相契合的细节颗粒风格化表达。
The overall tone of the space is based on simple white, and the dynamic line pursues simple and clear. However, in the subtleties, such as paving, armrests, smallpox and other areas, it can interpret the detailed granular expression that fits the artistic temperament of the IAG pioneer.
▼中庭概览,Atrium © 刘松恺
▼俯瞰中庭,Atrium © 刘松恺
IAG美术馆的设计理念来自于无序到控制,几何到无限。我们引入CIRCLE,轮回无限的圆形元素。贯穿于整个项目的空间内部。
The design concept of IAG Art Museum comes from disorder to control, geometry to infinity. We introduce CIRCLE, the circular element with infinite reincarnation. throughout the entire project.
▼一楼地面,First floor ground © 刘松恺
▼一楼吊顶,First floor suspended ceiling © 刘松恺
圆形的元素一方面用一种纯粹的几何秩序为原始建筑驳杂的空间框定了秩序。同时圆形代表的轮回无限,象征着IAG以此为新的阵地,持续为中国的当代艺术发声的使命轮回。
On the one hand, the circular elements use a pure geometric order to frame the chaotic space of the original building. At the same time, the infinite reincarnation represented by the circle symbolizes the reincarnation of IAG’s mission of using this as a new position to continue to speak out for Chinese contemporary art.
▼展厅,Exhibition hall © 刘松恺
iag艺术院线是以艺术为种子,以全球艺术家、画廊、策展人、收藏家、品牌为土壤开拓的创新综合艺术平台。
The IAG art cinema line is an innovative comprehensive art platform based on art and global artists, galleries, curators, collectors, and brands as soil development.
▼二楼连廊,Second floor corridor © 刘松恺
▼中庭坡道,Atrium ramp © 刘松恺
▼中庭坡道细部,Atrium ramp © 刘松恺
开馆以来,iag已经成功举办了陈冠希作为策展人的CLOT20周年回顾展与周大为先生个人收藏展。未来以此阵地iag艺术院线将成为上海当代艺术阵营的有力发声者。
Since its opening, iag has successfully held the CLOT 20th anniversary retrospective exhibition with Edison Chen as the curator and the personal collection exhibition of Mr. Zhou Dawei. In the future, iag Art Cinema will become a powerful voice in Shanghai’s contemporary art camp.
▼中庭台阶,Atrium steps © 刘松恺
IAG美术馆作为引领性潮流项目长宁CPARK的主力模块开业之后,未来还有主题 商业,潮流买手,城市市集等多样性内容持续注入这个上海都心绿肺。
After the opening of the IAG Art Museum as the main module of Changning CPARK, a leading trend project, in the future, diverse content such as themed business, fashion buyers, and urban markets will continue to be injected into the heart of Shanghai.
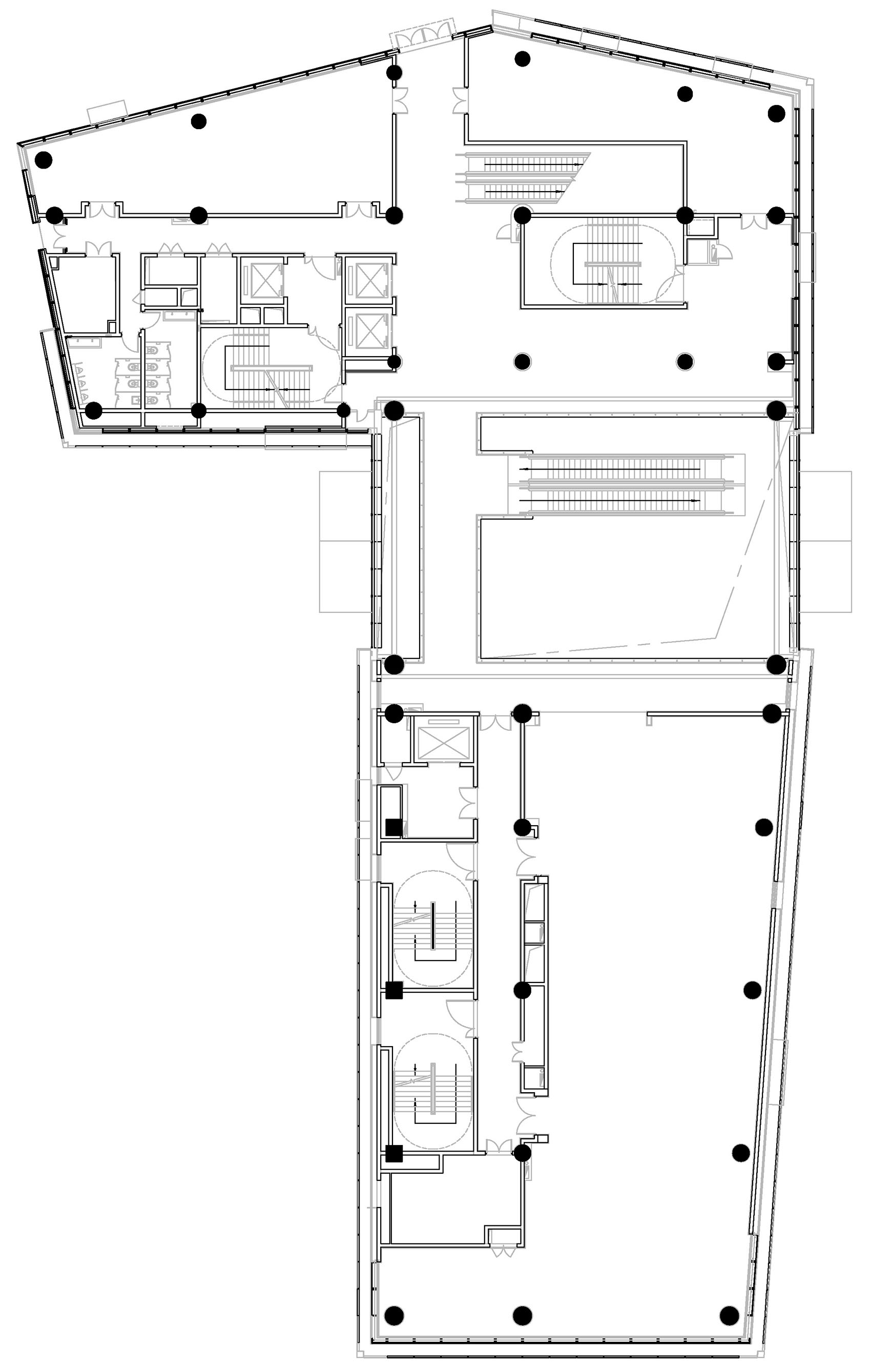
▼一层平面图,1st Floor Plan © 彼山设计
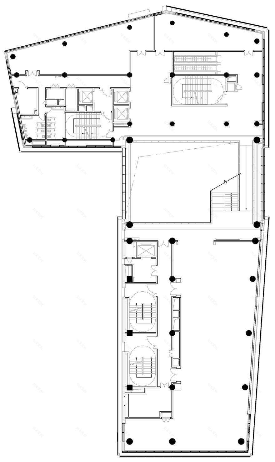
▼二层平面图,2nd Floor Plan © 彼山设计
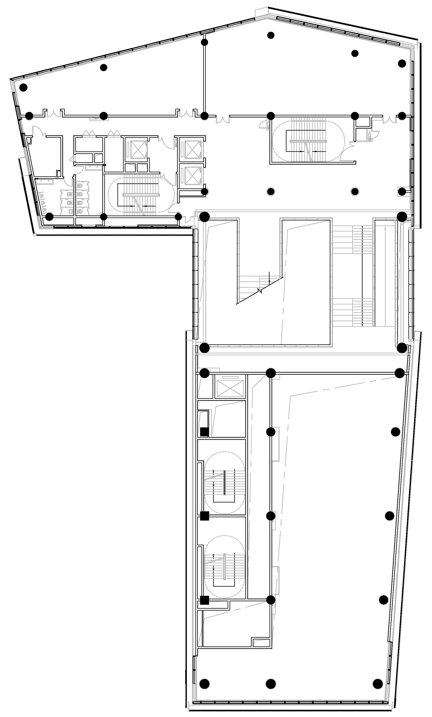
▼三层平面图,3rd Floor Plan © 彼山设计
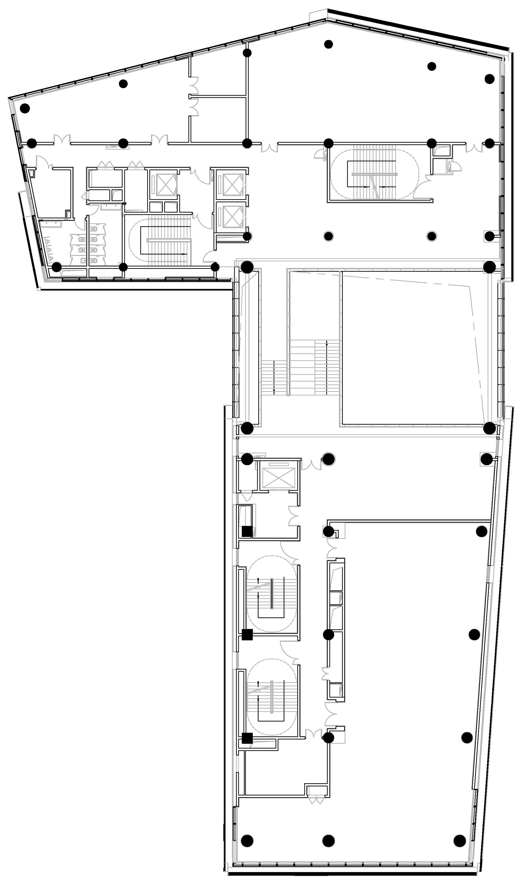
▼四层平面图,4th Floor Plan © 彼山设计
▼五层平面图,5th Floor Plan © 彼山设计
▼剖面图,Sectional view © 彼山设计
项目名称:上海iag美术馆
项目类型:建筑
设计方:彼山设计
项目设计:2023
完成年份:2023
设计团队:徐霆威,王晨歌,王萍,闵捷,孙彦佩,朱健
项目地址:上海海粟文化广场
建筑面积:8,017㎡
艺术顾问:陈安栋
摄影版权:刘松恺
客户:上海科泓商业管理有限公司
材料:水磨石砖、涂料、铝板、石膏板
Project name:Shanghai IAG Art Museum
Project type:Architecture
Design:BE Design
Design year:2023
Completion Year:2023
Leader designer & Team:Tingwei Xu, Chenge Wang, Ping Wang, Jie Min, Yanpei Sun, Jian Zhu
Project location:Shanghai Haisu Cultural Plaza
Gross built area: 8,017㎡
Art consultant: Andong Chen
Photo credit: Songkai Liu
Clients:Shanghai Kehong Commercial Management Co., Ltd.
Materials:Terrazzo bricks, coatings, aluminum panels, gypsum boards
客服
消息
收藏
下载
最近































