查看完整案例

收藏

下载
当Continental集团的总部面积超出原来的规模时,公司选择搬迁到位于Hanover城市森林中的新大楼。经过五年的建设,综合大楼于2023年12月投入使用,为来自公司职能部门、Tires部门和ContiTech部门的约2400名员工提供了全新的工作环境。我们负责设计工作区、餐厅和自助餐厅。我们将Continental集团的价值观转译到宽敞、与众不同的工作环境之中,同时满足其对灵活性和鲜明个性的要求。通过这种灵活的模块化空间概念,Continental集团可以在未来很长一段时间内继续保持灵活性。
▼建筑概览,Overall view of the building ©Werner Huthmacher
When Continental outgrew its original headquarters, the company chose to relocate to a new build in Hanover’s city forest. The building complex was opened in December 2023 following a five-year construction period, and offers a new work environment for around 2,400 employees from the corporate functions, Tires and ContiTech divisions. We were responsible for designing the work areas, the restaurant and the cafeterias. We translated Continental’s values into a spacious and differentiated work world, which fulfils its requirements for agility and a strong identity in equal measure. With this flexible and modular spatial concept, Continental can continue to remain agile long into the future.
▼从立面望向室内,Viewing the interior through the facade ©Werner Huthmacher
Continental集团正在利用其新园区集中发展网络、灵活协作和跨部门沟通。这座综合大楼由HENN公司设计,通过一座71米长的桥梁连接两座大楼,两座大楼之间有一条八车道的公路相隔。从大楼内外都能看到环形桥,如同一条Continental-yellow条带,将各种空间类型相互连接在一起。
▼走廊空间,Corridor spaces ©Werner Huthmacher
Continental is using its new campus to focus on networking, flexible collaboration and communication across departmental boundaries. The complex, which was designed by HENN, connects two buildings, separated by an eight-lane road, via a 71-metre-long bridge. The Loop – visible from inside and outside the building as a Continental-yellow band – links an array of spatial typologies with each other.
▼室内概览,Overall view of the interior ©Werner Huthmacher
在开发工作区时,我们延续了这一理念,将所有中央通道沿立面向外延伸,从而形成了一个庞大而紧凑的区域,该区域几乎覆盖了整个建筑的纵深,各种独立模块将其划分为易于管理的特定空间。最终塑造了不同类型的工作场所环境:从充满活力的交流和沟通场所到集中工作和休闲娱乐场所。各个岛屿与相邻岛屿之间保持着宽敞的距离,从而形成了通向外部的,使人眼前一亮的新视线。人行道的方向总是目的明确的,无论是通向交流场所还是自然环境。
▼清晰的空间划分,Clear divisions ©Werner Huthmacher
We continue this idea in developing the work worlds, by moving all central routes to the outside along the façade. The result is a large, compact area covering almost the entire depth of the building, which various freestanding modules divide into manageable and tangible neighbourhoods. This allows a landscape of different workplace typologies to unfold: from dynamic places of exchange and encounter to places of concentrated work and retreat. The individual islands keep a generous distance from their neighbours, enabling new and surprising lines of sight to the outside to emerge. The walkways are orientated in such a way that they always lead to a destination, be it a communication locus or a view out into nature.
▼多样的办公区,Various working spaces ©Werner Huthmacher
沿立面设置的中央走道由深色地毯区域和倾斜的天花板以及嵌入式照明轨道划分,提供了清晰的导向。办公桌上的过滤板和屏风构成了工作区的缓冲元素。办公桌面板确保了个人空间,但同时靠窗区域又将空间相连,促进交流。
▼清晰的空间导向,Clear orientation ©Werner Huthmacher
The central walkways along the façade are demarcated by darker carpeted zones and a sloping ceiling accompanied by a recessed lighting track, providing clear orientation. Filter elements and screens on the desks form a buffer zone towards the work areas. The desk panels ensure discretion, but at the same time their ledges turn them into points of arrival and extend an invitation to communicate.
▼个性化的工作区,Personalized working area ©Werner Huthmacher
▼房中房系统,Room-in-room system ©Werner Huthmacher
In order to respond as flexibly as possible to the requirements of individual departments and areas, we developed a proprietary room-in-room system. These modular boxes are available in various configurations, in different sizes and with differing features: from telephone boxes to large conference rooms. No matter which function they serve: All boxes offer a excellent sound insulation to the outside and silent ventilation to the inside, thus ensuring excellent working conditions. The modular canon is completed by alcoves, seating niches, arenas and various lounges. We organise these modules and the workstations themselves on the individual levels to create new landscapes, which do not follow a fixed grid, but are tailored to the respective requirements. Instead of serial rows of tables, communities are created in compact spatial zones, which enter into dialogue with their neighbours.
▼房中房系统内部,The inside of room-in-room system ©Werner Huthmacher
在会议室内,地板经常从室内延伸到走道区域,这也是视觉桥梁。许多地毯采用黄橙色渐变设计–这是一个极富动感的形象,也是我们使用Continental集团CI颜色进行色彩点缀的一个实例。在这里,品牌信息并没有被过分简化,而是有选择地使用,使其更加强烈。
▼CI颜色的点缀,Continental’s CI colour ©Werner Huthmacher
Visual bridges are also created in the meeting rooms, where the floor often spills out from the interior into the walkway areas. Many carpets are designed in a yellow-orange colour gradient – a highly dynamic image and an example of how we set colour accents using Continental’s CI colour. The brand message is not over-simplified here, but is used selectively, rendering it all the more intense.
▼黄橙色延伸至会议室内,Yellow-orange colour gradient in meeting rooms ©Werner Huthmacher
工作方式在不断变化,我们要以灵活的空间概念来应对。因此,Continental集团工作场所的建设性设计将对结构干预的需求降至最低。相反,我们的目标是通过微创干预,使办公环境适应新的要求。Continental集团的可持续发展愿望也是面向未来的,其园区的目标是达到 “DGNB 白金级”。办公楼使用了Continental集团的纯素皮革,天花板的热激活组件确保了最佳的能源效率。
▼纯素皮革,Vegan leather ©Werner Huthmacher
Modes of work are permanently changing, to which we respond with flexible spatial concepts. The constructive design of Continental’s work worlds therefore reduces the need for structural interventions to a minimum. Instead, the aim is to adapt the office environment to new requirements through minimally invasive interventions. Continental’s sustainability aspirations are also future-oriented, with the campus aiming for ‘DGNB Platinum’ status. Vegan leather, a Continental product, is used and the thermal component activation of the ceiling ensures optimum energy efficiency.
▼素皮细部,Details of the vegan leather ©Werner Huthmacher
设计语言、材料和颜色的选择反映了Continental集团作为创新技术公司和汽车行业重要合作伙伴的定位。从工作站的多边形面板到天花板网格和嵌入式地毯面板,许多造型都显示出清晰的几何形状,与Continental集团技术解决方案的精确性相映成趣。在这一切之间,我们还为计划外的事情创造了空间。毕竟,许多诺贝尔奖的创意都源自咖啡机或复印机旁的交流。创新需要偶然和自发的相遇。这就是为什么交流空间的范围如此广泛和多面。
▼公共空间,Public spaces ©Werner Huthmacher
The design language, and choice of materials and colours reflect Continental’s positioning as an innovative technology company and key partner of the mobility industry. Mirroring the precision of Continental’s technical solutions, many of the forms display clear geometries: from the polygonal panels at the workstations to the ceiling grid and recessed carpet panels. In between all this, we have also created space for the unplanned to unfold. After all, many a Nobel Prize idea originated at the coffee machine or photocopier. Innovation requires chance and spontaneous encounters. Which is why the range of communication spaces is so wide and multifaceted.
▼咖啡区,Coffee area ©Werner Huthmacher
有咖啡的地方就有对话。如前所述,交流始终是创新的驱动力。因此,我们将大楼两部分的餐厅和自助餐厅设计为混合空间。在这里,员工不仅可以在休息时间找到合适的座位,而且不同的座位选择还可以作为办公桌的替代品。无论是在餐厅里铺着厚厚软垫的隔间座位上,还是在繁忙的中庭座位上,无论是在这一切之中,还是隐藏在隔间里,或是部分隐藏在通风的薄板后面,每个人都能在不同的地方找到自己的创意灵感。在餐厅里,移动隔断墙还可以将空间进行不同的划分:大的用于举办活动,小的用于餐厅经营。
▼明亮整洁的座位,Bright and neat seating area ©Werner Huthmacher
Where there is coffee, there is conversation. And, as already mentioned, communication is always an innovation driver. Accordingly, we designed the restaurant and the cafeterias in both parts of the building as hybrid spaces. Here employees not only find a suitable place to sit during break times, but the differentiated seating options on offer also serve as great alternatives to their own desk. Whether on a thickly upholstered compartment seat in the restaurant or on a seat in the busy atrium, whether in the midst of it all, hidden in an alcove, or partially concealed behind airy lamellae – everyone finds their creative inspiration in a different place. In the restaurant, mobile partition walls also allow the space to be divided up differently: from large for events, to small for restaurant operations.
▼会客区,Meeting area ©Werner Huthmacher
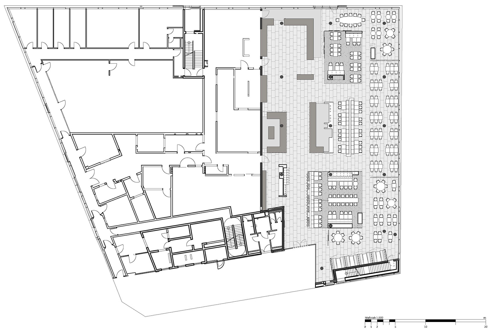
▼首层平面,Ground floor plan ©Ippolito Fleitz Group
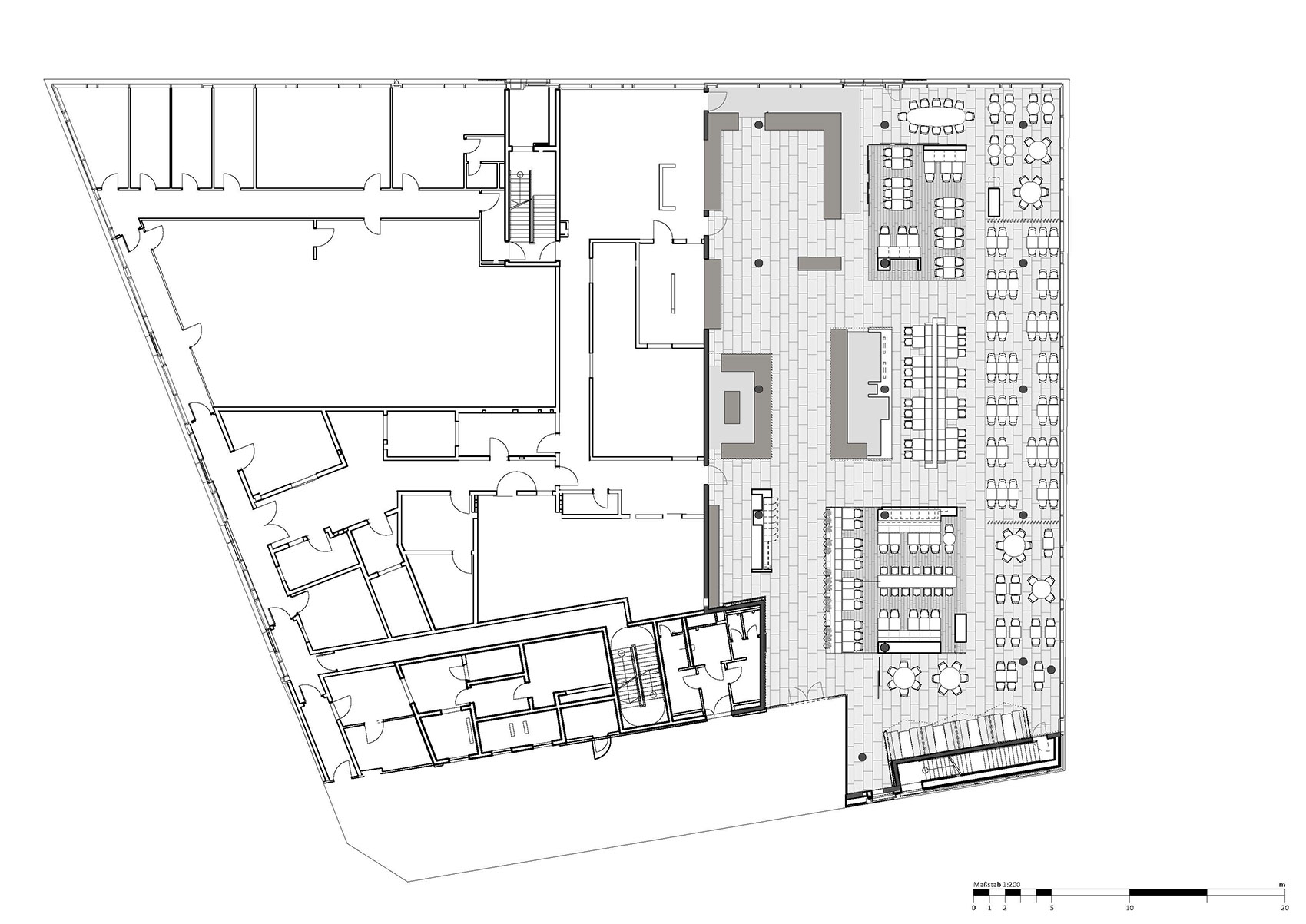
▼一层平面,First floor plan ©Ippolito Fleitz Group
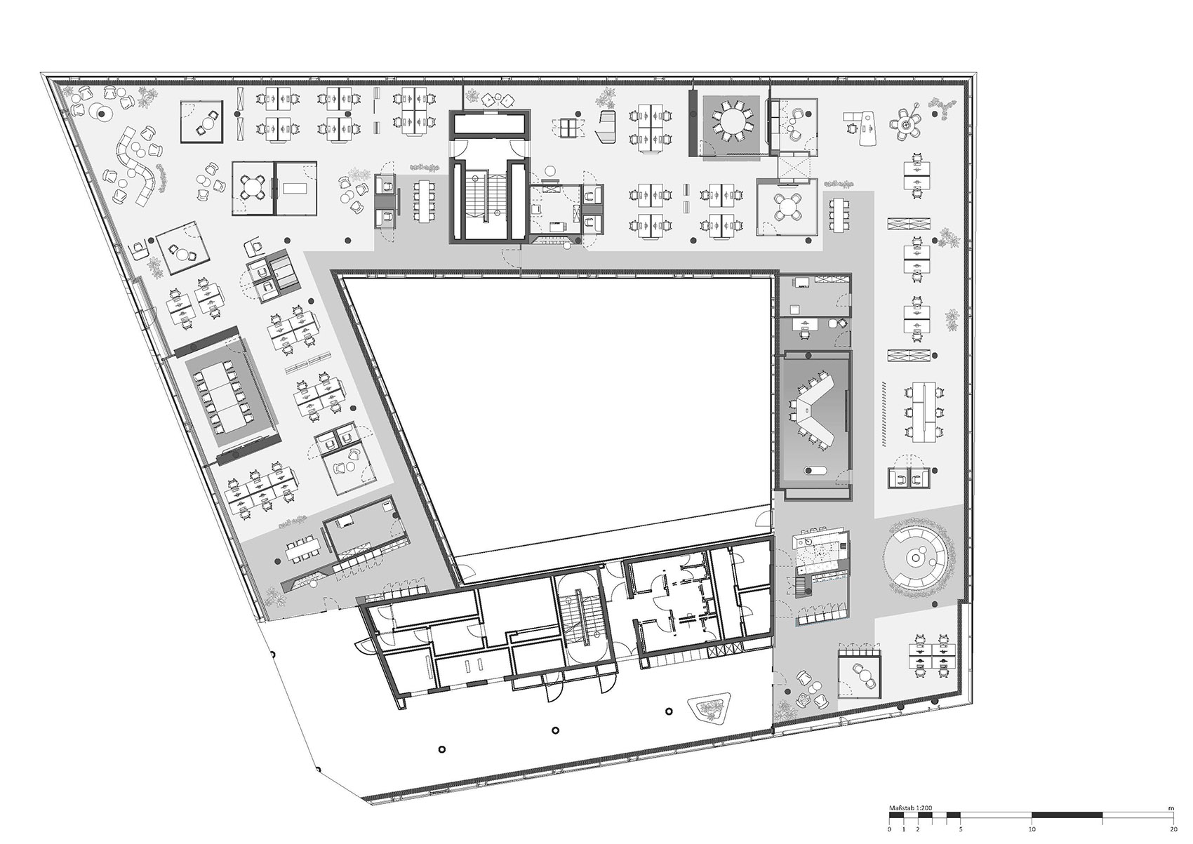
▼二层平面,Second floor plan ©Ippolito Fleitz Group
▼三层平面,Third floor plan ©Ippolito Fleitz Group
CLIENT
Continental AG
LOCATION
Hannover, Germany
YEAR
2018–2023
FACTS & FIGURES
Office area open spaces: 10.200 m2, 1.200 desks
Meeting rooms:
3.155 m2, 60 units, 612 seats
Restaurant:
920 m2, 300 seats
Cafeteria Nord:
450 m2, 72 seats inside, 49 seats outside
Cafeteria Süd: 280 m2, 93 seats
TEAM
Arsen Aliverdiiev, Michael Bertram, Kerstin El-Khawad, Gunter Fleitz, Eva Pérez Fons, Lisa Holler, Leticia Hutchings, Peter Ippolito, Christiane Klinner Susann Kreplin, Frank Lakmann, Tim Lessmann, Eleonora Mannisi Thomas Mura, Maria Cristina Orizzonte Jana Stumpe, Bradley Wheeler Elisabed Zautashvili
PARTNER
HENN (Architecture)
Fact (Building services engineering)
a·g Licht (Lighting design)
Jäger Ausbau GmbH (Carpentry)
PHOTOGRAPHY
Werner Huthmacher
huthmacher@werner-huthmacher.de
ADDITIONAL PHOTOGRAPHY
Ippolito Fleitz Group
客服
消息
收藏
下载
最近





















































