查看完整案例

收藏

下载
千年古城焕发新生,拥有生命的建筑更能感知秩序与变迁。芜湖古城静卧于城市东南镜湖区,身处长江与青弋江交汇处,是衔接南北城区和东部新区的关键,是一座集文化、商业、居住、旅游、展示、休闲等多功能复合的具有地域特色和时代特征的历史古城,彰显亦商亦儒的文化底蕴。
The millennia-old city is experiencing a rejuvenation, and buildings imbued with vitality are particularly adept at perceiving order and change. The ancient city of Wuhu lies serenely in the Mirror Lake area to the southeast of the urban center. Positioned at the confluence of the Yangtze River and Qingyi River, it serves as a crucial link between the northern and southern urban areas as well as the eastern new district. Wuhu is a historical ancient city with distinctive regional and contemporary characteristics, encompassing diverse functions such as culture, commerce, residence, tourism, exhibition, and leisure. Its cultural essence, embodying both commercial and scholarly elements, is prominently displayed.
▼项目视频,Project video© 柏涛建筑
历史/背景
History/Background
芜湖古城是中国长江南岸一座珍若完璧的城央古城,其作为芜湖城脉、商脉、文脉发源地,至今已有 2500 多年历史。现存包括 6 个文保单位在内的 70 余栋保留建筑,以及花街、南门湾、南正街、萧家巷等通街达巷,原址原貌保存完整。
The ancient city of Wuhu is a precious and well-preserved central ancient city on the south bank of the Yangtze River in China. Serving as the origin of Wuhu’s urban, commercial, and cultural arteries, it boasts a history of more than 2,500 years. There are currently over 70 preserved buildings, including six cultural heritage units, in the ancient city, with well-maintained structures such as Lantern Alley, South Gate Bay, Nanzheng Alley, and Xiaojia Lane, among others. The original sites and appearances have been fully preserved.
▼项目整体鸟瞰,Project overview© 陈桂明
这些保留建筑与街巷集合了明末清初、民国、海派建筑等多种建筑风格,高超的建筑造诣,既有传统建筑的精雕细刻,又吸收西方建筑的华丽典雅,展示了不同时代的文化元素与城市记忆。在此历史背景下,我们保留、修缮有历史价值的构件及建筑实体,重塑古城的空间形态及规划肌理,保留人们对古城的历史记忆,从历史中寻觅灵感,发掘场地文脉与当下生活的人们的关系。
▼改造前,Before modification© 陈桂明
▼草图,Sketch© 柏涛建筑
These preserved buildings and streets embody a variety of architectural styles, including those from the late Ming and early Qing dynasties, the Republic of China era, and the Shanghai School of architecture. With exceptional architectural craftsmanship, they showcase intricate details in traditional architecture while also incorporating the grandeur and elegance of Western architecture. This amalgamation displays cultural elements and urban memories from different eras. Against this historical backdrop, we preserve and restore components and structures of historical value, reshaping the spatial form and planning texture of the ancient city. This preservation effort aims to retain people’s historical memories of the ancient city, draw inspiration from history, and explore the relationship between the site’s cultural context and the lives of contemporary residents.
▼古城楼,Ancient city tower© 陈桂明
▼建筑与街巷,Buildings and streets© 陈桂明
我们延用古城现存格局、路网及遗存现状,强化“城”的概念,将不同商业、文化、庙宇、广场与历史街区及保护建筑揉和在一起,形成各具特色的功能区域,并为古城赋新不同文化主题与商业概念。
We adhere to the existing layout, road network, and current state of the ancient city, reinforcing the concept of the ‘city.’ We integrate various elements such as commerce, culture, temples, squares, historical districts, and preserved buildings to create distinct functional zones. By infusing different cultural themes and business concepts, we aim to impart new vitality and cultural significance to the ancient city.
▼各具特色的功能区域,Distinct functional zones© 陈桂明
PART.01 路线呈现
CITY WALK
在漫步中感受古城的脉搏。悠长的钟声,奏响了古今的序曲,走进芜湖古城,宛如进入到时间和空间的交汇点,历史的脉络渐渐展现在眼前。再现历史上“百货翔集,市声若潮”的繁华盛景,穿梭古往今来,纵览历史变迁,在历史与现代的对话中,在新风与古韵的融合里,缔造时尚新标杆,每一家商铺各具特色,每一栋建筑各不相同。
▼动态路线,Dynamic route © 柏涛建筑
▼规划元素,Planning element ©柏涛建筑
Feel the pulse of the ancient city while strolling. The resonant chimes, echoing through the ages, compose the prelude to both past and present. Stepping into the ancient city of Wuhu is akin to entering a nexus of time and space, where the historical threads gradually unfold before your eyes. Recreating the bustling scenes of the past where ’hundred goods soar, market sounds like the tide,’ traversing through the ages, surveying the changes of history. In the dialogue between history and modernity, in the fusion of new trends and ancient charm, we are establishing a new benchmark of fashion. Each shop is distinctive, and every building is unique, contributing to the rich tapestry of this vibrant historical and contemporary encounter.
▼项目整体鸟瞰夜景,Project overall night view© 陈桂明
从历史街巷与现代规划中,了解古城焕发的新活力。用脚步丈量美好,以沉浸式的观感之旅,贴近城市呼吸,尽感古城生活的本真模样。
Explore the revitalized ancient city by delving into the historical streets and modern planning, witnessing the infusion of new vitality into its rich tapestry of history. Measure beauty with each step, embark on an immersive sensory journey, get close to the city’s pulse, and fully experience the authentic essence of life in the ancient city.
▼历史文化游览路线,Historical and cultural tour route ©柏涛建筑
▼古城焕发新活力,The ancient city is reinvigorated
© 张学涛
PART.02 艺文之城 The city of arts and culture
千年古城,文明与历史最好的载体
营造大隐于市的特色社区
萧家巷,承载半座芜湖城的荣耀岁月;
儒林街,记录了千年传承的人文与历史……
A millennium-old city, the finest vessel of civilization and history. Creating a distinctive community that thrives discreetly within the city. Xiaojia Lane, bearing the glorious years of half of Wuhu City; Rulin Street, documenting the millennia of cultural heritage and history.
▼局部鸟瞰,Partial aerial view© 陈桂明
“姑孰画派”宗师萧云从、芜湖铁画创始人汤鹏居住在萧家巷,清代文学家吴敬梓居住在儒林街,明代戏剧家汤显祖居住在雅积楼……众多名人故居的保留建筑不仅呈现了当时高超的建筑造诣,更镌刻着名人雅士曾经生活的图景。
The master of the ‘Gushu School’ of painting, Xiao Yuncong, and the founder of Wuhu Iron Painting, Tang Peng, resided in Xiaojia Lane.
The Qing dynasty literary figure Wu Jingzi lived on Rulin Street, while the Ming dynasty playwright Tang Xianzu resided in the Yaji Building.
The preserved buildings of these many historical figures not only showcase exceptional architectural craftsmanship of the time but also etch the scenes of the lives of these esteemed individuals.
▼名人故居的保留建筑,The preserved buildings of famous people’s former homes © 陈桂明
▼细部,Details
© 陈桂明
芜湖古城是历史上文化艺术繁盛之地,现存建筑大多于清末民初建造,即有徽式院落又有民国洋楼,设计将传统艺术与当代文化融入老街小巷。修复保留建筑、复建传统民居,以小尺度的建筑空间呼应原有街巷肌理,保留天际线,在商铺街市环绕的闹市中营造大隐于市、儒雅静谧之感。
Wuhu Ancient City, historically a flourishing hub of culture and art, features surviving buildings predominantly constructed in the late Qing and early Republic of China era. These structures encompass traditional Hui-style courtyards as well as Republican-style Western buildings, seamlessly blending traditional art with contemporary culture throughout the old streets and alleys. By restoring preserved buildings and reconstructing traditional residences, we echo the original street and alley texture with small-scale architectural spaces. Preserving the skyline and surrounded by bustling commercial streets, we create a sense of quiet elegance, offering a hidden and serene ambiance within the lively market.
▼徽式古建,Hui style ancient building © 陈桂明
PART.03 记忆之城
The City of Memories
收集沿路的历史建筑,知晓它的名字,见证一段历史。古城环境与生活的修复再现。蜿蜒曲折的街道,代代相传的老房子,营造出浓重的历史气息,重塑历史情景,品尝地道的地方菜传统手工作坊,民居客栈,传统情景商业,会馆,公众生活设施等传统主题,唤起人们对古城的场所记忆。
Collecting the historical buildings along the way, knowing their names, and witnessing a chapter of history. The restoration and revival of the ancient city environment and way of life. Winding and meandering streets, generation after generation of old houses, create a rich historical atmosphere, reshaping historical scenes. Experience authentic local cuisine in traditional workshops, stay in folk inns, explore traditional themed businesses, guildhalls, public facilities, and more. These traditional elements evoke people’s memories of the ancient city.
▼街道夜景,Street night view© 张学涛
▼古城环境与生活的修复再现,
Restoration and reproduction of the ancient city’s environment and life © 陈桂明
▼古建筑呈现新功能,Old buildings take on new functions© 陈桂明
通过保护原真性历史文化资源,恢复古城标志性要素,原址修复修旧如旧,延续历史街道网络和肌理,复兴传统特色产业,再现往日生活场景等技术手段,以期还原一座真实而丰富,被大众认可又具有亲切感的古城。
Through the preservation of authentic historical and cultural resources, restoration of iconic elements of the ancient city, meticulous repair at original locations, and the revitalization of traditional industries along with the restoration of historical street networks and textures, various technical methods are employed. The goal is to recreate a genuine and enriching ancient city, widely accepted by the public and infused with a sense of familiarity, by resurrecting historical life scenes and other means.
▼项目延续了历史街道网络,Pestoration of iconic elements of the ancient city© 陈桂明
▼原址修复修旧如旧,Restoration of ancient buildings© 陈桂明
▼庭院,Courtyard© 陈桂明
PART.04
休闲之城
The Leisure City
“山掩县城当北起,渡冲官道向西流。风消樯碇网初下,雨罢鱼薪市未收。”
——《过芜留咏》 北宋·林逋
西风与徽韵,时尚与传统,在此碰撞圆融。延续历史,创新文旅新体验。南唐时期,楼合森列、烟火万家;宋代,兴商建市,十里长街、百货咸集、市声若潮;明代,开辟港口通商;清代,位居“四大米市”之首,四海通商远近闻名,重贾汇聚。
A fusion of Western-style elegance and Hui charm, where fashion meets tradition. Continuing history, innovating new experiences in cultural tourism.
In the Southern Tang period, towers rose densely, and the city was bustling with prosperity.
During the Song Dynasty, commerce flourished, with a ten-mile-long street, a myriad of goods, and market sounds like the tide.
In the Ming Dynasty, ports were opened for trade, and in the Qing Dynasty, it stood as the foremost among the ‘Four Great Rice Markets,’ renowned far and wide for its bustling commerce, attracting merchants from all corners.
▼古城北门,North gate of ancient city © 陈桂明
▼古城北门近景,North gate of ancient city© 陈桂明
古城北门商业街,南面滨江架空休闲平台,西侧入口商业组团,东边城墙特色商业,从古城四个方向引入时尚、购物、餐饮、娱乐商业业态,在空间打造上通过景观节点的设置,为人们休闲生活提供室外场所。
The North Gate Commercial Street of the ancient city, a riverside elevated leisure platform to the south, commercial clusters at the western entrance, and distinctive businesses along the eastern city wall. From all four directions of the ancient city, fashion, shopping, dining, and entertainment businesses are introduced. In spatial design, landscape nodes are strategically placed to provide outdoor spaces for people’s leisure activities.
▼古城北门商业街,The North Gate Commercial Street of the ancient city,
© 陈桂明
▼特色商业,Commercial clusters © 陈桂明
▼项目为人们休闲生活提供室外场所,The project provides an outdoor place for people to relax and live © 陈桂明
我们保留了各具特色的民居商铺建筑,延续历史建筑、街巷肌理、文化场所构成的核心价值,通过多元文化的融合引领、年轻时尚业态的不断更新,为芜湖古城注入新生命力。
We have preserved distinctive residential and commercial buildings, maintaining the core values constituted by historical architecture, street textures, and cultural venues. By leading through the integration of diverse cultures and continuously updating with youthful and fashionable trends, we are injecting new vitality into the ancient city of Wuhu.
▼各具特色的民居商铺建筑,Distinctive residential shop buildings © 张学涛
▼多元文化的融合,The integration of multiple cultures © 陈桂明
以现代的规划理念,新中式的建筑风格,融入传统景观元素,营造舒适的城市环境,展现古城的崭新风貌。
千年的古城,文明与历史最好的载体。芜湖古城,如历史书卷般生动,以独特的建筑风格和丰富的历史文化展现特有的魅力,成为人们鉴赏历史、品味文化、是去古老记忆的一方美境。
With modern planning concepts and a new Chinese architectural style, we integrate traditional landscape elements to create a comfortable urban environment, showcasing a fresh new look for the ancient city. A millennium-old ancient city, the finest carrier of civilization and history. Wuhu Ancient City unfolds like a vivid chapter in a history book, showcasing its unique charm through distinctive architectural styles and rich historical culture. It has become a beautiful realm where people appreciate history, savor culture, and embark on a journey to ancient memories.
▼鸟瞰,Bird ‘s-eye view © 陈桂明
▼古城的崭新风貌
The new look of the ancient city © 陈桂明
传承江城文脉与千年文化底蕴,重塑历史场所与记忆,复兴注入新经济与使用价值,缔造人文生活大境。为芜湖古城赋予与时俱进的活力,成为现代化城市中承载文化体验的新载体。
Inheriting the cultural heritage of the river city and millennia-old traditions, we reshape historical sites and memories, infuse them with new economic vitality and utilitarian value, and create a broad cultural and humanistic living environment. Infusing Wuhu Ancient City with progressive vitality, it becomes a new carrier for cultural experiences within a modernized city, seamlessly integrating the past with the present.
▼区位图,Location©柏涛建筑
▼总平面图,Master plan©柏涛建筑
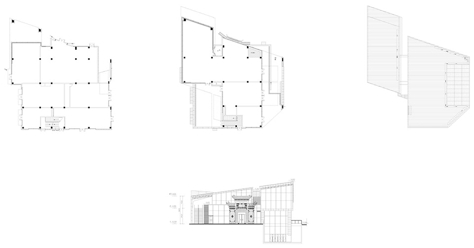
▼花街西平面,Plan of the Huajie West
©柏涛建筑
▼北入口局部平面&剖面,Plan & section of the North entrance©柏涛建筑
▼北大街 ns-18#立面与剖面,Elevation and section of ns-18# North Street ©柏涛建筑
▼城门平面图,Plan of the ancient gate©柏涛建筑
▼城门立面与剖面,Elevation and section of the ancient gate©柏涛建筑
项目名称: 芜湖古城
项目位置: 安徽芜湖
业主单位: 安徽置地投资有限公司
建筑设计: 柏涛建筑设计 (深圳) 有限公司
设计主创: 侯其明
设计团队: 黄晓峰,喻丽萍,丁一川, 黄明, 于春艳, 马佳, 魏玲娜, 张明东, 黄丰华, 李卓, 谢剑伟
施工图设计: 深圳市柏涛蓝森国际建筑设计有限公司、奥意建筑工程设计有限公司
景观设计: 深圳市柏涛环境艺术设计有限公司、上海水石景观环境设计有限公司
项目用地: 21.7 公顷
建筑面积: 19.12 万 m²
设计周期: 6 年
项目摄影: 陈桂明, 张学涛
Project Name: Wuhu Ancient City
Project Location: Wuhu, Anhui
Owner: Anhui Land Investment Co., Ltd.
Architectural Design: PT Architectural Design (Shenzhen) Co., Ltd.
Lead Designer: Hou Qiming
Design Team: Huang Xiaofeng, Yu Liping, Ding Yichuan, Huang Ming, Yu Chunyan, Ma Jia, Wei Lingna, Zhang Mingdong, Huang Fenghua, Li Zhuo, Xie Jianwei
Construction Drawing Design: Shenzhen PT Lansn International Architecture Design Co., Ltd. ; Shenzhen A+E Design Co., Ltd.
Landscape Design: Shenzhen PT Landscape Architecture Design Co., Ltd. ; Shanghai Shuishi Landscape Design Co., Ltd.
Project Site Area: 21.7 hectares
Built Area: 191,200 m²
Design Period: 6 years
Project Photography: Chen Guiming, Zhang Xuetao
客服
消息
收藏
下载
最近


















































