查看完整案例

收藏

下载
星屿,是绍兴柴场弄有机更新片区(风越里)体量最大也最具识别性的新建文化休闲建筑。
其所处的柴场弄是绍兴老城区首个有机更新片区,与秋瑾故居隔街对望、东临咸亨酒店、北望塔山,总占地 2.35 万平方米,经过历时五年的更新改造后,成为一个集文化、商业、旅游为一体的综合文旅休闲街区。
Stellar Isle (Xing Yu), situated in the Chaichanglong (Fairy Li) urban regeneration and redevelopment area in Shaoxing, is the largest and most distinctive new-built cultural leisure building. Chaichanglong is the first organic urban renewal area in the old town of Shaoxing, located opposite to the former residence of revolutionary legend Qiu Jin, with Xianheng Hotel to the east and Pagoda Hill to the north. Covering a total area of 23,500 square meters, after five years of renovation and regeneration, it has become a comprehensive cultural, commercial, and tourist district.
▼改造后场地鸟瞰,Site aerial view©苏圣亮
真诚的混杂 & 连续的历史
Sincere Hybridization & Continuous History
2018 年 5 月,当 SpActrum 谱观初次来到场地,观察到的柴场弄是一个各个时代居住建筑和生产建筑的复合体:从明代的木构架古建筑,到砖混结构的民国民居,再到改革开放早期的砖混与钢筋混凝土框架混合的厂房建筑与公寓,不同时代的建筑遗存无序而真诚地混杂在一起。这些建筑并非地产商根据他们对于市场的预期而生产的“产品”,而是使用者应自身的需求组织建造的;建造者与消费者的合一状态保证了其建造的真诚性;规划的缺失,土地资源的稀缺使得它们之间的共存没有过多的过渡,却充满了不同时代、不同逻辑下的空间直面碰撞。
▼柴场弄改造与新建建筑体系,Renovation & new building system© SpActrum 谱观
In May 2018, when SpActrum first arrived at the site, they observed Chaichanglong as a hybrid of residential buildings and production buildings from various eras: from ancient wooden-structured dwellings of the Ming Dynasty to brick houses from the Republican Era, from the factory buildings to the collective apartments from the early days of Reform and Opening-up. These buildings were not “products” created by developers based on their market expectations but were constructed according to the needs of their users. The users were also the ones who built the those buildings ensured the sincerity of those constructions. The absence of planning and the scarcity of land resources allowed diverse buildings to coexist without excessive transitions, resulting in a collision of different eras and logics in space.
▼从塔山眺望星屿&柴场弄历史街区,Aerial view to the project and the historical neighborhood©苏圣亮
▼从塔山眺望星屿&柴场弄历史街区,Aerial view to the project and the historical neighborhood©苏圣亮
SpActrum 谱观相信,历史是一个连续性的过程,除了时间上的连续性,场地同时具有空间上的连续性,因此没有单纯依赖文保标记作为留存或拆除的依据,而是将普通建筑和“文保建筑”都视为场地不可分割的有机组成部分,将场地的物质存现作为所有以及唯一可以依赖的文本,让场地的时间感展现为一种完整连续的、不断进行中的地质面貌,就像地层的沉积。于是,柴场弄大量的 50 年代后建成的建筑经过评估后也被有选择的和文保古建一起保留了下来,更新后的柴场弄继承了它本色的杂糅,混合、真诚而粗放地组合在一起。
SpActrum believes that history is a continuous process, not only in terms of time but also in terms of space. Therefore, they did not rely solely on heritage markers as the basis for preservation or demolition. Instead, they considered both ordinary buildings and “heritage buildings” as integral components of the site. Material presence on the site was treated as the only reliable text, allowing the site’s sense of time to manifest as a continuous and ongoing geological landscape, much like sedimentation in geological strata. Consequently, many buildings constructed after the 1950s were selectively preserved alongside heritage buildings. The renewed Chaichanglong retained its original eclectic, mixed, sincere, and open composition.
▼由星屿眺望柴场弄历史街区,Aerial view to the historical neighborhood from the project©苏圣亮
▼远眺星屿,Overlook to the project©苏圣亮
崛起的场地 The Rise of the Site
星屿位于柴场弄地块中轴线南侧。在相对集中的中央拆除区东侧靠近场地中央部分,原有一座四层砖混外廊式建筑,曾经是整个场地的制高点,在夕阳下,像一艘将要下沉的战舰。在它的南侧有一片破损的分不出建筑物的瓦砾堆积的场地。后经结构鉴定,这座四层外廊式建筑已极难保存,结构存在极大风险隐患。与多方商讨后,建筑师做出了对其拆除,新建一座同等高度建筑的动议。于是,这座楼宇,连同南侧破损严重的低层建筑群成为了新建筑的场地,这就是星屿最初的来源。
Stellar Isle is located on the south side of the central axis of the Chaichanglong plot. In the relatively concentrated central demolition area, there was a four-story brick-and-mortar building, once the highest point of the entire site, looking like a sinking battleship at sunset. After a structural assessment, it was found that the four-story building was extremely difficult to preserve due to significant structural risks. After discussions, the architects proposed its demolition and the construction of a new building of equivalent height. This is how Stellar Isle originated.
▼远眺夕阳下的星屿,Stellar Isle at dusk©朱迪
每次爬上那座将要被拆毁的四层楼宇,建筑师都对四周老建筑的屋顶印象颇深:木构举架形成的微妙曲线,仿佛波涛般,一浪一浪;西面改造后的厂房的可以上人的梯阶式屋顶和保留下来的 80 年代公寓楼各具特色建筑语言,以及这座四层楼天台可以遥望的对面街道的秋瑾故居和塔山,都让建筑师更觉得在这样一个场地,在此时此刻,这里或许并不那么需要一个建筑,而是需要一个空中的、立体的场地,可以改变整个项目的空间结构,让场地在空中相连,让人们可以脱离地面行走,在空中观望各个时代的场地与场地之外的城市,在对各个时代的凝视中取得一种连接今古的共时性。
▼多层次的行进路线,Circulation© SpActrum 谱观
Every time climbed the four-story building that was about to be demolished, the architects were deeply impressed by the roofs of the old buildings around them: the delicate curves formed by wooden rafters seemed like ocean waves, while the terraced roofs of the renovated factory building to the west and the preserved 1980s apartment building to the west each had distinct architectural languages. The rooftop of the four-story building offered views of Qiu Jin’s former residence and Pagoda Hill across the street, making the architects feel that what this site needed at this moment was not just a building but an aerial, three-dimensional space that could change the spatial structure of the entire project. It would connect the site in the air, allowing people to walk above ground, observe various eras of the site, and look beyond to the city, creating a synchronicity between the past and the present through the gaze at different eras.
▼贯穿不同“历史时区”建筑的空中廊道
Aerial corridors through the buildings of the different “historical time zones”©苏圣亮
▼废墟遗存&传统古建掩映中的星屿
Stellar Islein the ruins & traditional old buildings
©苏圣亮
于是,星屿被设计成为一个四通八达地可登临、可进入的空间。向外张望的层层不同高度的平台越走越能展现出行走的趣味和与中国历代名楼相似的意向。那些动人心魄的古代江南名楼都是以向外眺望为设计基点,而并不十分在意内部空间的。除了眺望,这座楼宇还继承了古代园林的某些特质,空间具有强烈的多路径性。每一个空间都以多种通路相互连接。到达一点总有不同经历、不同体验的多种办法,成为一座名副其实的空中园林。
As a result, Stellar Isle was designed as a space that could be accessed and entered from all directions. The platforms at varying heights offered different perspectives as one ascended, providing an enjoyable walking experience and a connection to the tradition of famous ancient Chinese high buildings, which were designed with outward views in mind and paid less attention to internal spaces. In addition to sightseeing, the building inherited some characteristics of ancient Chinese gardens, emphasizing strong multi-path connectivity in its spatial layout. Every space had multiple ways of connecting to each other, ensuring diverse experiences and making it a genuine elevated garden.
▼星屿挑檐大屋顶下的北侧立面盒体与 V 型柱,
Boxes and V-posts on the north elevation under a large roof with eaves
©苏圣亮
建筑通常是具有明确功能性的空间,划定区域,为人们提供不受自然影响的活动场所。建筑的室内空间一定程度上是人的外化,将自身与场地分开,独立于自然。
场地则具有自然空间与人造环境的双重属性:
作为人造环境,场地被从自然中提取出来而认知,将某片土地视做和自然不同的,承载人活动的地舆。在此范围,不仅功能性的汇聚人类活动,更在精神上试图以认知的网格将其覆盖,以理性“照亮”自然的混沌。
另一个层面,相对于落座其中的建筑,场地也扮演着自然的角色,它自由、包容,承载非确定性的人类活动,连缀起确定性的建筑空间。
Buildings are usually enveloped spaces with a defined functionality, delineating areas that provide a place for human activities shielded from the influence of nature. The typical interior spaces, to a certain extent, externalize humans, setting themselves apart from the surrounding environment and existing independently from nature. The site, on one hand, possesses a dual nature as both a natural space and a human-made environment: as a human-made environment, it is extracted from nature and cognized as a distinct geographical area that accommodates human activities. Within this scope, it not only aggregates functional human activities but also, in a cognitive sense, attempts to overlay them with a rational “grid” to illuminate the chaos of nature. On the other hand, in comparison to the buildings that inhabit it, the site also assumes a natural role; it is free and inclusive, accommodating unpredictable human activities while connecting them with the deterministic spaces within the buildings.
▼星屿呈现在历史街区中,Stellar Isle presented in historical neighborhood©苏圣亮
这将是一个关于场地的建筑,建筑和场地的定义互相渗透,而不以否定来定义对方。建筑不为自身存在,而成为一种特定场地,成为具有不确定性的活动场所。在这里,建筑消解了,场地在崛起。
建成后的星屿,昂立于场地中轴线南端,建筑北侧 1-3 层是简单的矩形体块,起到对于其他部分锚定的作用,体块南北立面的各层都是长长的可完全打开的折叠门,打开后将建筑完全变成了贯通的场域;建筑南侧是围绕中心空地层层旋转堆叠的可行走的地表,东侧是一系列连接包裹、连接主体的多层叠合的坡道,它们被设计为缓步台阶。这些台阶折叠向上,在距离地面 6 米、9.5 米处形成多个观景台。
This would be an architecture about the site, where the definitions of building and site permeate each other rather than negate each other. The building doesn’t exist for its own sake; it becomes a specific site, an activity place with uncertainty. Here, the building dissolves, and the site rises.
Upon completion, Stellar Isle stands at the southern end of the site’s central axis. The northern side of the building from levels 1 to 3 consists of simple rectangular blocks, anchoring the other parts. The north and south facades of each level are made up of long, fully foldable sliding doors, turning the building into a pure site when it opens. On the southern side of the building, the ground is stacked in layers around a central void space. The eastern side features a series of multi-layered ramps that connect and wrap around the main body of the building, designed as gentle terraced steps. These steps fold upwards, forming multiple viewing platforms at heights of 6 meters and 9.5 meters, offering panoramic views of the surrounding area.
▼星屿呈现在历史街区中,Stellar Isle presented in historical neighborhood©苏圣亮
星屿自身内部仅仅 1000 余平米,但由于包裹这些空间的台阶、坡道等利于外向观望的灰空间,成为新的眺望整个场地和城市最好的场所。周边明清院落、民国普通民居、70-80 年代老公寓、旧厂房,像横向展开卷轴一样,在连接这些观景台的缓步台阶上高低错落,层层展开,又被访客的记忆连缀成关于场地多层次的,多维度的全息画卷。
南侧的层叠地表兼有坡道、看台的多重含义,空间上完全不打算分隔行进和静立的行为,钢制的梯形斜面以一种自由,随机的方式堆叠起来,上层为下层提供遮阳和避雨,巨大的屋顶挑出,庇护着表演者。
Although Stellar Isle itself has a floor area of just over 1,000 square meters, the terraced areas, ramps, and other spaces conducive to outward viewing make it the best place to view the entire site and the city. The nearby Ming and Qing courtyards, Republican-era ordinary residences, 1970s-1980s old apartments, and old factories sprawl out horizontally, connected by cascading terraces and steps on various levels, creating a multi-dimensional and holographic panorama of the site in visitors’ memories. The layered ground on the southern side serves multiple purposes, combining ramps and viewing platforms. The spatial design avoids segregating walking and standing activities, with steel trapezoidal slopes stacked freely and randomly. The upper levels provide shade and shelter for the lower levels, and the huge roof extends outward, providing shelter for performers.
▼星屿呈现在历史街区中,
Stellar Isle presented in historical neighborhood
©苏圣亮
这是一个莎士比亚环形剧场式的空间,一个欢聚的场地。南侧、东侧的层叠地表围绕主楼,使得整座建筑的路径无比丰富,赋予场地酷似空中园林的意趣,进入任何一个空间都有两种以上的路径选择。南侧的层叠地表在最高处通过飞桥连接到四层平台,在这里,视线取得了完全的开敞,周边场地被纳入全景视场中。北侧为了保持场地的视觉密度,在消防法规严格限定了室内空间与北侧古建的距离后,顶层平台及屋顶尽力外挑,视野极度外放、塔山、咸亨酒店、文理学院、秋瑾故居,绍兴老城一片片叫得出名字的,叫不出名字的屋顶都在眼前了,成为场所中最富有魅力的一个集聚点。
This is a Shakespeare Circular Theater space, a place of joyful gatherings. The cascading terraces on the south and east sides surround the main building, creating a rich network of pathways within the entire structure. It imparts an atmosphere reminiscent of an elevated garden, where there are multiple route choices to enter any space. The cascading terraces on the south side connect to the top-floor platform at the highest point through a pedestrian bridge. Here, the view opens up completely, encompassing the surrounding site within the panoramic view. On the north side, in order to maintain the visual density of the site and adhere to strict fire regulations regarding the distance between the indoor spaces and the historic buildings to the north, the top platform and roof are extended outward as much as possible, offering an expansive view that includes the Pagoda Hill, Xianheng Hotel, the School of Arts and Sciences, Qiu Jin’s former residence, and the roofs of the old town of Shaoxing, both the well-known and the less familiar, making it a captivating gathering point within the site.
▼星屿作为环形剧场,Stellar Isle as an Amphitheatre©朱迪
这时,星屿不再仅仅是单一一座建筑与场地复合的楼宇,它与整个城市的历史、今天合为一体。加剧这种感受的还有从星屿二层出发的跨越整个场地,连接场地另一侧屋顶高台的曲廊,连绵在一片一片的屋顶之上,穿透整个区块不同年代的组团,穿入不同时空。
At this point, Stellar Isle is no longer just a building, it is combined with the site, becoming part of the history and the present of the entire city. What intensifies this feeling is the zigzag corridor starting from the second floor of Stellar Isle, spanning the entire site and connecting to the roof terrace on the other side of the site. It weaves through different era building groups and transcends different times and spaces.
▼建筑为场地而存在含混的行为,Architecture exists as ambiguous behavior for the site©苏圣亮
层叠地表 Layered Grounds
层叠地表是星屿最为显性的设计概念,它的成形是一切后续工作的基础。层叠的地表之间互相搭接、遮挡的形成行走空间与观看空间的复合体。建筑以场地的方式存在,这就是这座建筑的最初意向。
“Layered Grounds” is the most prominent design concept of Stellar Isle, the incarnation of this concept is the foundation for all subsequent work. The layered grounds overlap and block each other, creating a composite of walking and viewing spaces. The building exists as a site, which was the original intention of the architecture.
▼层叠地表生成分解图,Diagram© SpActrum 谱观
▼南侧层叠地表钢结构© SpActrum 谱观
除了观景,行走更是场地体验的重要部分。建筑南侧地面上,一系列坡道层叠向上,沿西、南、东三边连续攀爬,每条边都是倾斜的梯形,它们互相贯入对方,互相插接着通向顶部,被称为层叠地表。每一片的梯形都有不同的切角,从空中观看就像玫瑰旋转排布的花瓣。
In addition to viewing, walking is an important part of the site experience. On the southern side of the building, a series of ramps stack upward, climbing along the west, south, and east sides, with each side consisting of inclined trapezoids that interpenetrate and connect to the top. These are known as the layered grounds. The trapezoids have different angles, resembling rose petals arranged in rotation when viewed from above.
▼宛若玫瑰花瓣旋转排布的层叠地表坡道
The trapezoids 宛如 rose petals 排列 in rotation©苏圣亮
▼星屿的阶梯提供了不同高度的眺望平台
The steps provide overlook platforms at different heights©朱迪
▼星屿北侧眺望平台,North overlook terrace©朱迪
▼异形复杂钢节点构成重要的建筑形式
Shaped complex steel nodes form an important building form©朱迪
层叠地表间不追求建筑上常用的坡道的平滑连接,而是刻意突出插接感,地面的转接如果造成视觉上的顿挫和非连贯性,那么,这种顿挫恰恰强化了层叠地表的概念。玻璃栏杆的处理也是对于这一概念的强化,借助精心设计的幕墙宽边条,从地面边缘退后接近一米的距离,这样,作为建筑构件的玻璃栏杆,就演变成了山地景区常见的山路围栏,加强了景观和地形的意味,而消减了对于建筑的暗示。
▼异形钢结构节点,Shaped steel structure detail© SpActrum 谱观
The transitions between the layered ground do not aim for the smooth connections typically used in architecture but deliberately emphasize the interlocking and transitional nature of the ground. The handling of the glass railing also reinforces this concept. With the help of carefully designed wide mullions in the curtain wall, the glass railing is set back nearly a meter from the edge of the ground, resembling the railings commonly found in mountain road areas, enhancing the sense of landscape and topography while reducing the implications of the building.
▼星屿的“之”字型侧立面,The zigzag side elevation©朱迪
▼人们行走在星屿南侧的层叠地表,
People walking on the cascading surface on the south side
©苏圣亮
▼由层叠的坡道平台探向中庭,Cascading ramp decks lead to the atrium©苏圣亮
▼星屿中庭内景,Atrium©朱迪
▼层叠地表挑战了建筑与场地的边界
Layered Grounds challenges building-site boundaries
©朱迪
©苏圣亮
离散的建筑学——多重逻辑叠加的建筑学
Discrete Architecture – An Architecture of Multiple Overlapping Logics
SpActrum 谱观坚信,形式是建筑的终极媒介,一切归于形式,一切转化为形式被人感知。
SpActrum firmly believes that form is the ultimate medium of architecture. Everything comes down to form, and everything is transformed into a form perceived by people.
▼分解图,Axon© SpActrum 谱观
在处理建筑逻辑内部时,实践中会有很多相互冲突的小逻辑、行为、几何学,时时要以自身的逻辑“吞没”全部的塑形逻辑。SpActrum 谱观恰恰是借助其他逻辑的冲击,将形式一次次拉离单一逻辑的统治,使形式始终保持游离和含混。这种对于逻辑与形式的观察态度和处理方式就是谱观对当今社会提出一种解决方案——离散的建筑。
When dealing with internal logic of architecture, there are often conflicting minor logics, behaviors, and geometries, which tends to “swallow” the dominant logic of form. SpActrum utilizes the impact of other logic to continually pull form away from the dominance of a single logic, keeping forms fluid and ambiguous. This observation and approach to logic and form is SpActrum’s proposed solution for today’s society – Discrete Architecture.
▼不同时代不同逻辑下的空间直面碰撞
Spatial direct collision under different logics in different times©苏圣亮
©朱迪
©朱迪
星屿的设计目标不仅仅是做一座新的建筑物,而是为场地引入一个足以改变场地格局和时空关系的构架性元素。星屿从设计之初就承继了中国古典名楼自然生发的、超越一般建筑定义的对于场地观念的开放性:并非着眼于内部空间,而以某种场地体验接通人心、自然、今古的沟通之所。
The design goal of Xingyu is not just to create a new building, but to introduce a structural element that can profoundly alter the site’s layout and spatiotemporal relationships.
From the beginning, Stellar Isle was designed with an open concept that inherited the spirit of famous ancient Chinese buildings, which transcended conventional definitions of buildings and focused on the experience of the site.
It aimed to connect the hearts of people, nature, and the past and present through a unique site experience rather than focusing on internal spaces.
▼星屿夜景,Night view©苏圣亮
星屿的存在作为一种对于场地的感觉器官和放大器,不限于一座建筑和其四邻,更在于城市维度。场地,相对于建筑,包含着自由和不被定义,非确定性的行为在此得到鼓励。因此,场地的意识同时也可以被看作对于商业化的反思和城市公共空间的觉醒。
星屿层叠的地表在维持原场地密度而没有大广场的柴场弄,就是立体的广场、多层的聚会空间。
星屿的层叠地坪传达出一种意识,在建造能力可以轻易制造出大量人造环境的今天,含混的场地或许可以替代明确的建筑,成为建成环境塑造的主体,而越来越短暂、多变的、具有明确的使用功能的建筑空间可以仅仅通过简单、透明的非定形围挡取得暂时的界定。
Stellar Isle’s existence serves as a sensory organ and amplifier for the site, not limited to a single building and its surroundings but extending to the city-scape. Site, compare to building, it encourages more freedom, undefined, and non-deterministic behavior. Therefore, site awareness can also be seen as a reflection on commercialization and an awakening of urban public spaces.
The layered grounds of Stellar Isle, while maintaining the original site’s density without enforcing large plazas, has turned Chaichanglong into a three-dimensional open space and a multi-level gathering place. The layered grounds convey a sense of consciousness that, in today’s world where construction capabilities can easily create a multitude of artificial environments, ambiguous sites might replace definitive buildings in shaping the built environment. Temporary and ever-changing, functionally explicit architectural spaces can be defined temporarily through simple, transparent, non-formal enclosures.
▼从大周画室通往星屿的天廊穿越重重屋顶,
The sky corridor leading to Stellar Isle crosses heavy roofs
©苏圣亮
▼星屿与周围城市界面,Stellar Isleand the city’s interface©苏圣亮
▼轴侧剖面 1,Section perspective 1
© SpActrum 谱观
▼轴侧剖面 2,Section perspective2
© SpActrum 谱观
▼轴侧剖面 3
Section perspective3
© SpActrum 谱观
▼钢结构,Steel structure
© SpActrum 谱观
▼总平面图,Site plan© SpActrum 谱观
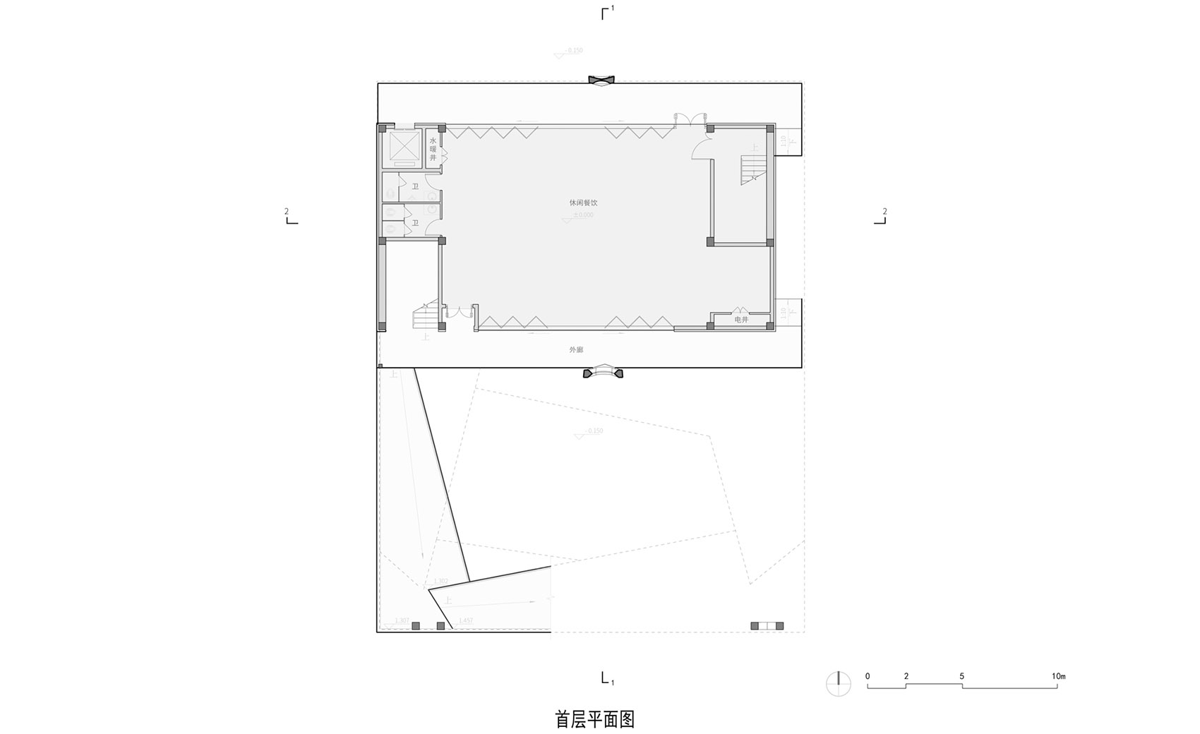
▼首层平面,Plan 1F© SpActrum 谱观
▼四层平面,Plan 4F© SpActrum 谱观
▼东立面,East elevation© SpActrum 谱观
▼南立面,South elevation© SpActrum 谱观
▼北立面,North elevation© SpActrum 谱观
▼剖面 1-1,Section 1-1© SpActrum 谱观
▼剖面 2-2
Section2-2
© SpActrum 谱观
项目名:星屿
项目所在地:中国浙江,绍兴柴场弄(风越里)
客户:绍兴名城办 、开元文旅
占地面积:918.8㎡
总建筑面积:1658.3㎡
建筑高度:20.5 米
状态:已完工(2022 年底完工)
建筑设计:SpActrum 谱观
建筑设计团队:潘岩、李真、唐一萌、李影、陈浩、陈洋、黄素琪、孟祥龙、ShAil Paragkum Patel、劳安然、姜海萍
结构设计:中外建工程设计与顾问有限公司
灯光设计:法国昂特灯光设计
景观设计:上海普厚景观设计有限公司
幕墙设计:公合设计集团有限公司
施工单位:杭州萧山广宇建筑工程有限公司
摄影:苏圣亮(是然建筑)、朱迪(SHADØOPLAY)
摄像:苏圣亮(是然建筑)、SpActrum 谱观
其他图片版权:SpActrum 谱观
Project Name:Stellar Isle
Project Location: Chaichanglong (Fairy Li), Shaoxing, Zhejiang, China
Clients: Shaoxing Historical and Cultural City Protection Office, New Century Cultural Tourism
Site Area: 918.8 sqm
Total Building Area: 1658.3 sqm
Building Height: 20.5 m
Status: Completed in 2022.12
Architecture Design:SpActrum
Architecture Design Team: Yan Pan, Zhen Li, Yimeng Tang, Ying Li, Hao Chen, Yang Chen, Suqi Huang, Xianglong Meng, ShAil Paragkum Patel, Anran Lao, Haiping Jiang
Construction Design: China International Engineering Design & Consult Co..Ltd
Lighting Design: AT. AART Design
Landscape Design: PHOOO Design
Cladding Consultant: COSPACE
Construction Contractors: Hangzhou Xiaoshan Guangyu Architectural Construction Ltd.
Photographer:Su Shengliang、ZhuDi@SHADØOPLAY
Video:Su Shengliang、SpActrum
Other Image Credits:SpActrum
客服
消息
收藏
下载
最近


















































































