查看完整案例

收藏

下载
回乡建房,你听过比这更浪漫的理由么?Have you ever heard a more romantic reason to return hometown to build a house
两年前,朋友委托我翻建她农村的老宅。我去现场一看,她的“老宅”实际上是一栋十年前的简欧别墅,风格过时,墙体老化,但还没到需要重建的地步,于是我对她重建的想法有些困惑。
▼项目视频,Video
Two years ago, my friend came to me and told me that she wanted to rebuild her old house in her hometown. I went to the site with her. In fact, this so-called old house is a European style villa more than ten years ago. Although the style is a little outdated, and the walls are also a little dilapidated, I still felt that there was no reason to rebuild it. So at that time, I was full of doubts about why she wanted to rebuild this house.
▼项目概览,overall of the project© 存在建筑
于是朋友向我讲述了她和这片土地之间的故事,原来每当人生遭遇挫折,她都会返回这个起始地以寻求力量。重建老宅,是对陪伴多年的故土的深情表白。我当时被这个浪漫理由打动,这是我遇到的最有趣的项目。
And then my friend told me the story between her and this land. It turned out that whenever she encountered setbacks on the road of life, she would choose to return to this place where her life began and find the strength to start again. Therefore, rebuilding the old house is also a loving confession to the land that has accompanied her for many years. I thought it was so romantic! This is the most interesting project I have ever come across.
▼项目与周边环境概览,overall of the project and surrounding environment© 存在建筑
▼由梯田看建筑,viewing the house from the terrace field© 存在建筑
如何让她的梦想照进现实?How to make her dream come true?要用建筑向故土表达情意,怎么去实现呢?我想到了千纸鹤。在故乡的田野里折一只千纸鹤,还有比这更浪漫的表白么?于是我们把千纸鹤的具象形态重构为建筑的设计语言,形成了我们的建筑方案。
Wewant to use the house to express love to the homeland, but how to achieve it? I think of the Thousand Paper Cranes. What could be more romantic than folding a thousand paper cranes in the fields of your hometown? So we reconstructed the figurative form of the Thousand Paper Cranes into the architectural design language, forming our architectural scheme.
▼草图,sketches© 冠著原造建筑科技(重庆)有限公司
▼概念分析,connect© 冠著原造建筑科技(重庆)有限公司
▼体量分析,formation© 冠著原造建筑科技(重庆)有限公司
回乡建房,重新定义自己的生活。Return to your homeland, build your house, redefine your life。除了建筑的纪念性,我们还营造了丰富的生活场景,凸显出回归自然的意义。
In addition to the monumentality of the building, we also created wonderful life scenarios, highlighting the significance of returning to nature.
▼住宅外观,exterior view of the house© 存在建筑
▼庭院,garden© 存在建筑
▼大面积的玻璃幕墙,large area of the glass curtain wall© 存在建筑
我们让起居空间沿南面展开,用玻璃幕墙将田园美景尽收眼底,自然地借景。同时又利用北面的山体岩壁人为地造景,让室内每一个角落都能看到不同的绿色美景,虽然没有一幅画,但又处处都是画。
We arranged the living space along the south side to have a view of nature through the glass curtain wall, and the whole house has a wonderful natural view. At the same time, we use the natural rock wall on the north side to artificially create scenery, so that every corner of the house can have different natural scenery. Although there is no painting in the room, there is beauty everywhere outside the window.
▼平面图,plan© 存在建筑
▼纸鹤的具象形态重构为建筑的设计语言,the figurative form of the Thousand Paper Cranes into the architectural design language © 存在建筑
▼建筑与泳池中的倒影,the house and it’s reflection© 存在建筑
▼起居空间沿南面展开,用玻璃幕墙将田园美景尽收眼底,the living space along the south side to have a view of nature through the glass curtain wall © 存在建筑
▼局部鸟瞰,closer aerial view© 河狸景观
从客厅到水池,可以近距离地嗅到自然的花香;每个卧室都有专属露台空间,随时能触摸到最新鲜的自然气息。屋顶的平台除了 BBQ,也是璀璨星河的最佳观测点。建筑的每个角落都将有属于它的生活记忆。
From the living room to the pool, you can smell the natural flowers closely; Each bedroom has its own terrace space where you can always see the natural scenery. In addition to BBQ, the platform of the roof is also the best observation point of the bright starry sky. Every corner of the building will have its own living memory.
▼屋顶平台,rooftop terrace© 存在建筑
▼璀璨星河的最佳观测点,the best observation point of the bright starry sky © 河狸景观
为什么人们都热衷于回乡建房?Why are people so keen to return hometown to build their own houses?
项目交付以后,这里成为朋友的世外桃源。让她惊喜的是,上小学的女儿表达了长大后想回来住的意愿。美好事物可以引发跨代共鸣,她没想到自己的故土情感还能被传承。
After the project was completed, it became an imaginary and ideal world for the family of my friend. What surprised her most was that her daughter, who was in primary school, told her that she would come back to live in her hometown when she grew up. Good things can indeed trigger resonance across generations, and she is also surprised that this nostalgia for her homeland can be passed on.
▼客厅,living room©麒文
▼休闲厅,lounge©麒文
▼餐厅,dining area©麒文
▼从客厅看楼梯,viewing the staircase from the living room©麒文
▼厨房,kitchen© 麒文
▼二层走廊,hallway on the upper floor©麒文
▼二层休闲厅,lounge on the upper floor© 麒文
是啊,城里的家,虽然可以遮风避雨,但商品房的流通性太强了,说搬就可以搬,更像是她们出海打渔的船。而只有故乡的家,才是港湾,一直都在那里等着返航的她……
Urban housing in China is commodity in nature and can be traded on the market. You can move houses whenever you want. To the extent that urban housing is more like a tentative fishing boat. Whereas in China’s countryside, houses and land are not tradable, so it’s more like a permanent harbor, it’ll always be there waiting for you to return.
▼夜景鸟瞰,aerial view at night© 存在建筑
▼外观夜景,exterior view at night© 存在建筑
▼底层平面图,ground floor plan© 冠著原造建筑科技(重庆)有限公司
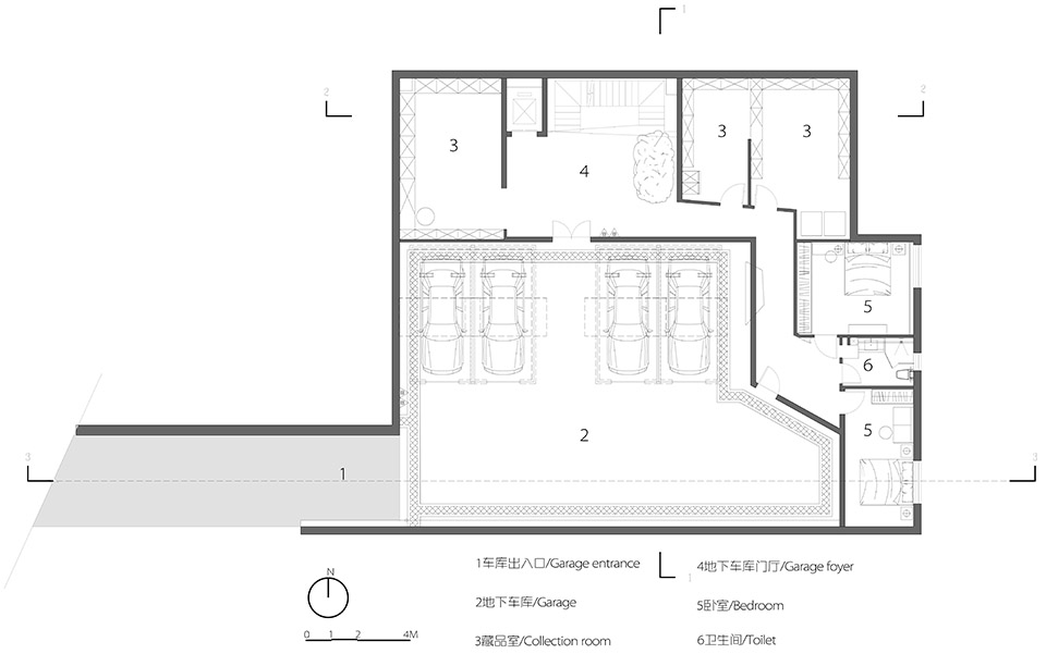
▼地下平面图,basement plan© 冠著原造建筑科技(重庆)有限公司
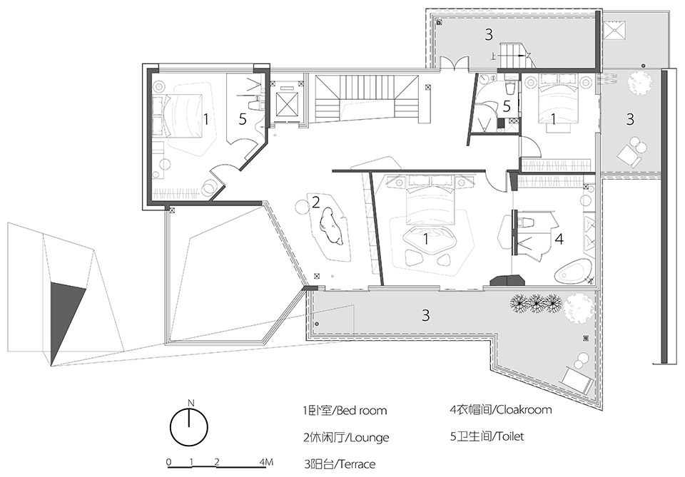
▼二层平面图,upper floor plan© 冠著原造建筑科技(重庆)有限公司
▼屋顶平面图,roof plan© 冠著原造建筑科技(重庆)有限公司
▼立面图,elevations© 冠著原造建筑科技(重庆)有限公司
▼剖面图,sections© 冠著原造建筑科技(重庆)有限公司
▼细部详图,detailed drawings© 冠著原造建筑科技(重庆)有限公司
客服
消息
收藏
下载
最近







































