查看完整案例

收藏

下载
诗丽吉王后国家会议中心(QSNCC)是泰国首座国家会议中心。该项目于 1991 年以泰国太后诗丽吉王后的名义建造,目的是举办世界银行集团理事会第 46 届年会,并在曼谷黄金地段、Khlong Toei 区 Ratchadaphisek 路为当地和国际游客提供服务。
Queen Sirikit National Convention Centre (QSNCC) is the first national convention centre of Thailand. Constructed in 1991, under the name of Queen Sirikit the Queen Mother of Thailand, the project was to host the 46th Annual Meetings of the Boards of Governors of the World Bank Group and to serve local and international visitors in the prime area of Bangkok, Ratchadaphisek Road, Khlong Toei District.
▼项目视频,video© Skyground architecture film & photography
QSNCC 于 2019 年对外关闭以进行大规模扩建,并于 2022 年 9 月重新开放。在三年的施工中,Onion 事务所与工程师、施工团队以及包括建筑师、照明专家和景观设计师在内的众多设计师密切合作。本项目的主要目标旨在探索一种能够反映最新建筑技术的泰国本土设计新方法,在保护会议中心内众多泰国大师艺术家的珍贵艺术品的同时,向国际观众展示独特的泰国本土工艺。
为了保护 QSNCC 现有的艺术珍品,项目团队修复了现有的镀金木门,并将门上的金属把手以神话生物的形式进行了重新的设计,改造后的大门成为了主要传统大厅入口的视觉焦点。另一件现存的艺术品 —— 一根由四头大象高举地球仪组成的柱子则被重建,然后搬迁到了全体会议厅旁边。
▼分析图,analysis diagram© Onion
QSNCC closed its doors for a major expansion in 2019 and reopened in September 2022. During the three years of construction, we worked closely with the engineers, the construction teams, and a number of designers including architects, lighting specialists, and landscape designers. The main objectives are to offer a new approach to Thai design reflecting the latest building technologies, to preserve precious art objects by master artists of Thailand, and to showcase specific Thai craftsmanship to the international audience. To preserve art objects from the former QSNCC, we have relocated the existing gilded wooden doors with their metal handles which is in the form of the mythical creature, naga, as the focal point of the main conventional hall entrance. Another existing art piece, a column of the four headed elephant holding a globe was reconstructed and relocated next to Plenary Hall.
▼登记处,registration area© Ketsiree Wongwan and Skyground
QSNCC 室内设计的主要灵感来自诗丽吉王后的服装系列。诗丽吉王后是将泰国工艺美术推向国际的先驱。她对保存和传承泰国工匠技艺十分感兴趣,并在将这些传统的编织技术现代化的过程中为当地社区创造了大量工作机会。为了向诗丽吉王后致敬,并彰显她在保持传统与现代社会同步方面的影响力,本项目以王后的服装作为设计灵感,并结合了 QSNCC 的各种功能,通过每个楼层的设计表达出来。
The main inspiration of our interior design of QSNCC is drawn from the collection of Queen Sirikit’s outfits. Queen Sirikit was the pioneer of introducing Thai arts and crafts to an international level. She was interested in preserving the knowledge of Thai craftsmen and at the same time modernizing these traditional weaving techniques. In doing so, she was helping to create work for the local communities. To pay tribute to Queen Sirikit and her influence in keeping tradition current with the modern society, the design of the QSNCC is inspired by her outfits. This is then taken in consideration of the various functions of the QSNCC and can be expressed through the design of each floor level.
▼改造后的展厅,exhibition hall after renovation© Ketsiree Wongwan and Skyground
▼细部,details© Ketsiree Wongwan and Skyground
首层:1~4 号展厅
Ground floor: Exhibition Halls 1-4
QSNCC 的主入口坐落于首层,游客们可由 Ratchadaphisek 路的主要下车点和毗邻 Benjakitti 公园的次要下车点直接进入本层。石灰华石材饰面之间长达 300 米的接缝堪称这一层展厅重要的特点之一,石材之间的接缝都呈现出弯曲或成角度的形态,这反映了泰国本土图案的基本几何形状,就像诗丽吉王后的奇特拉达连衣裙(现代泰国服装)一样。展厅的入口,弯曲的铜层压板,打破了石灰华构成的单调空间节奏,而天花板上以王后奇特拉达连衣裙上的金线为灵感的金色装饰进一步加强了这种节奏感。
The main entrance to QSNCC is on the ground floor; this level directly connects the visitors to the primary drop-off on Ratchadaphisek Road and the secondary drop-off adjacent to Benjakitti Park. An important feature is the horizontal joints of the travertine stone cladding of the Exhibition Halls spanning 300 meters in length. The joints of each panel are either curved or angled reflecting the basic geometries of Thai patterns as seen in Queen Sirikit’s Chitlada dress which is a modern Thai outfit. At the entry points of the exhibition halls, we added a feature of curved copper laminated panels to break the monotony of the travertine stone. Gold trims are detailed on the ceilings creating a rhythm inspired by the golden thread in her Chitlada dress.
▼主入口前厅与经过修复的镀金木门,the main entrance vestibule with restored gilded wooden door© Ketsiree Wongwan and Skyground
▼2 号展厅入口前厅,entrance foyer of Hall 2© Ketsiree Wongwan and Skyground
▼弯曲的铜层压板与石灰华墙体细部,details of the Curved copper laminate and the travertine wall© Ketsiree Wongwan and Skyground
▼人体尺度参考下的墙体装饰,wall decoration with reference to human scale© Ketsiree Wongwan and Skyground
底层:5~8 号展厅
Lower ground floor: Exhibition Halls 5-8
较低的底层连接了从地下火车站(MRT)进入 QSNCC 的入口,以及地下两层停车场,其他设施还包括咖啡馆和餐厅等。楼梯构成了这一层的特色建筑元素,它将游客引导至位于街道层的首层空间。设计团队将这部楼梯构想为等候区,为游客创造出了聚会社交的场所与紧急出口。
The lower ground level connects to the entry of the underground train station (MRT) to QSNCC and the parking spaces in Basements 1 and 2. Other facilities on this level include cafes and restaurants. The featured architectural element of this floor is the dominant staircase that links the visitors to the ground level which is at the street level. This staircase was designed so that it could function as a waiting area, a meeting point for visitors and an emergency exit.
▼俯视底层空间,overlooking the lower ground floor© Ketsiree Wongwan and Skyground
▼楼梯,staircase
© Ketsiree Wongwan and Skyground
▼楼梯可作为等候区,the staircase can serve as the waiting area© Ketsiree Wongwan and Skyground
▼细部,detail© Ketsiree Wongwan and Skyground
在这一楼层中,设计团队选择了诗丽吉王后的休闲泰式黑白缠腰布与花格大衣作为视觉灵感,然后将这种灵感以具有鲜明泰国特色的拼花地板的形式表达出来。黑白相间的缠腰布是泰国本土的一种时装风格,诗丽吉王后委托 Pierre Balmain 等欧洲设计师将这种风格现代化。在接待区,采用最新的弯曲和覆层技术制造的层压板覆盖了整个展厅的外墙空间,这一元素的设计灵感来自于诗丽吉王后服装的现代褶皱面料,同时也唤起了参观者对于泰国本土风格的印象。
We have chosen Queen Sirikit’s casual Thai black and white loincloth patterned coat as the visual inspiration. This is expressed through the floor pattern with a distinctive Thai character. The black and white loincloth is a Thai vernacular style. Queen Sirikit modernised this style in fashion by commissioning European designers such as Pierre Balmain. In the reception area, laminate panels manufactured with the latest bending and cladding technology cover the entire exterior wall space of the exhibition halls. This feature is inspired by the modern pleated fabric of Queen Sirikit’s outfits which at the same time evoke a sense of Thai vernacular style.
▼6 号展厅前厅,entrance foyer of the Hall 6© Ketsiree Wongwan and Skyground
▼设计以诗丽吉王后的休闲泰式黑白缠腰布与花格大衣作为视觉灵感,Queen Sirikit’s casual Thai black and white loincloth patterned coat as the visual inspiration© Ketsiree Wongwan and Skyground
▼展厅内部,interior of the Hall 6© Ketsiree Wongwan and Skyground
▼展厅细部,details of the Hall 6© Ketsiree Wongwan and Skyground
二层与三层:50 间会议室和 2 座多功能厅
First and second floors: 50 conference rooms and 2 multi-purpose halls
QSNCC 的二层与三层包含了 50 间商务会议室,以及宴会厅和会议厅两座多功能大厅。在这一层中,设计团队选择了一种基本的泰式图案作为串联整个空间的线索,即在诗丽吉王后的 Chakri 礼服(正式场合中穿着的服装)上可以看到的 prajamyam 图案。这一图案纹样经过一遍又一遍的设计调整以应用于不同的建筑尺度中,例如在天花板、墙壁和隔墙,以及地毯中,丰富的纹样创造出各种空间效果。
The first and the second floors of QSNCC accommodate 50 conference rooms designed for business meetings, and 2 multi-purpose halls, the Ballroom Hall and Plenary Hall.
We have chosen to study one of the basic Thai patterns – prajamyam which is seen on Queen Sirikit’s Chakri dress (formal outfit). This pattern has been redrawn over and over again until the re-designed prajamyam can be applied to different architectural scales for a variety of spatial effects – on the ceilings, walls and partitions. This pattern is also printed on the carpets.
▼全体会议大厅,the Plenary Hall© Ketsiree Wongwan and Skyground
▼VIP 休息室,VIP lounge© Ketsiree Wongwan and Skyground
▼通高中庭,double-height atrium© Ketsiree Wongwan and Skyground
▼VIP 休息室,VIP lounge© Ketsiree Wongwan and Skyground
▼商务会议区休息室,lounge© Ketsiree Wongwan and Skyground
▼细部,details© Ketsiree Wongwan and Skyground
宴会厅的室内设计灵感来自诗丽吉王后搭配银饰穿着的山地民族图案服装,这些服装及饰品均产自泰国北部。传统的山地民族图样由从自然中抽象出来的几何图案组成。在深入研究该纹样之后,设计团队对其进行了改造,并将其应用于地毯和内墙上。此外,在这本项目中,这些纹样图案还被赋予了一定的功能性,可以作为展厅内的隔音板起到改善室内声学环境的效果。银色的树叶形状组成华丽的图案效果,由带有弧度的天花板蔓延到墙壁上。
▼分析图,analysis diagram© Onion
The Ballroom Hall’s interior design is inspired by Queen Sirikit’s outfits of the Hill Tribe pattern which she would wear with her silver jewellery. These are both produced in the north of Thailand. The traditional Hill Tribe designs are composed of geometrical patterns abstracted from nature. After studying the pattern, we reinvented it and applied it on the carpet and the interior walls. We also made these patterns functional to serve as acoustic boards inside the exhibition halls. An ornate feature is the application of silver leaves that flow from the curvature of the ceilings to the walls.
▼宴会厅,the Ballroom Hall© Ketsiree Wongwan and Skyground
▼宴会厅采用了传统的山地民族图样作为视觉灵感,the Ballroom Hall uses traditional Hill Tribe pattern as visual inspiration © Ketsiree Wongwan and Skyground
▼天花板与墙体细部,details of the ceiling and wall
© Ketsiree Wongwan and Skyground
垂直交通空间外观
Vertical circulation enclosures
金叶子组成的 prajayam 图案再次出现在自动扶梯的隔墙上,金色的叶子图案在泰国的佛教寺庙中被视为神圣、正直和尊重的象征。电梯井的外观则采用了银叶子图案,以标志出两种不同垂直交通方式的区别。
The prajayam pattern appears again on the partitions of the escalator enclosures, this time with the golden leaf combination. This golden leaf motif is seen in Thai Buddhist temples as a symbol of sacredness, integrity and respect. For the elevators, we decided to use silver leaves to ornate the elevator shafts to mark the distinction of the two different vertical transitions.
▼自动扶梯,the escalator © Ketsiree Wongwan and Skyground
▼扶梯间采用了 prajayam 图案,the prajayam pattern appears on the partitions of the escalator enclosures© Ketsiree Wongwan and Skyground
▼自动扶梯区域的隔墙,the partitions of the escalator enclosures© Ketsiree Wongwan and Skyground
▼细部,details© Ketsiree Wongwan and Skyground
▼卫生间,the toilets© Ketsiree Wongwan and Skyground
▼建筑外观夜景,night view of QSNCC© Ketsiree Wongwan and Skyground
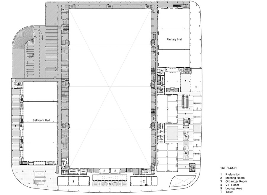
▼首层平面图,ground floor plan© Onion
▼底层平面图,lower ground floor plan© Onion
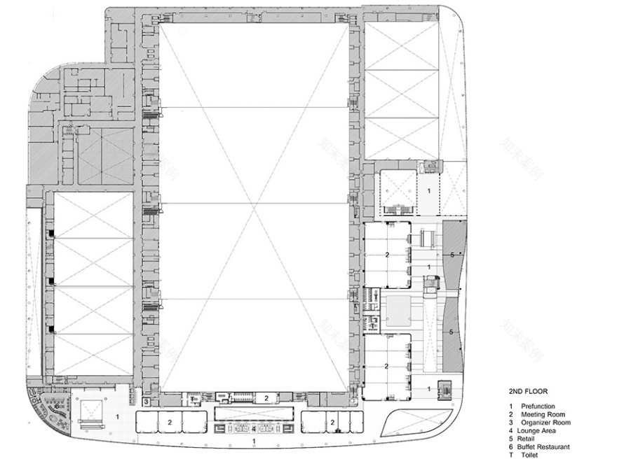
▼二层平面图,first floor plan© Onion
▼三层平面图,second floor plan© Onion
▼地下一层平面图,basement 1 plan© Onion
▼地下二层平面图,basement 2 plan© Onion
Designer: Onion
Completion year: 2022
Total design area: 130,000 sqm
Ground floor: Exhibition Halls 1-4
Total area: 22,335 sqm
Ceiling height: 13.5 m
Lower ground floor: Exhibition Halls 5-8
Total area: 22,335 sqm
Ceiling height: 7 m
First and second floors: 50 conference rooms and 2 multi-purpose halls
Ballroom Hall’s area: 4,598 sqm
Ceiling height: 9.5 m
Plenary Hall’s area: 4,400 sqm
Ceiling height: 9 m
Photo by : Ketsiree Wongwan and Skyground
Filmed by : Skyground architecture film & photography
Written by : Written by M.L.Chittawadi Chitrabongs and Frances H. Mikuriya
collaborate team:
Project Owner / N.C.C. Management & Development Co., Ltd.
Developer / Frasers Property (Thailand) PCL
Main Contractor / Thai Obayashi Corp., Ltd.
Architect / Design 103 International Ltd.
Structural Engineer /Beca (Thailand) Co., Ltd.
Machanical and Electrical Engineer / EEC Linconlne Scott Co., Ltd.
Interior Designer / Onion Co., Ltd.
Landscape Architect / Shma Co., Ltd.
Lighting Designer / Bo Steiber Lighting Design (Thailand) Co., Ltd.
Signage & Graphic Designer / Beourfriend Co., Ltd.
Green Building Consultant /Africus Co., Ltd.
Project Management / Stonehenge Co., Ltd.
Piling Contractor / Pylon PCL
客服
消息
收藏
下载
最近























































