查看完整案例

收藏

下载
项目位于杭州滨江的一个老小区内,顶楼复式外加一层阁楼,总面积 223㎡,业主是一对年轻的教师夫妇,养了一只柴犬。
业主的愿望非常明确:他们希望这个家能成为一个让人感到轻松、自在的空间,一个让他们可以尽情享受生活,没有拘束与束缚的地方。
The project is located in an old residential area in the Binjiang district of Hangzhou.
It consists of a top-floor duplex with an additional attic level, spanning a total area of 223 square meters.
The homeowners are a young couple who are both teachers, and they have an affectionate Shiba Inu as a part of their family.
Their desires are crystal clear: they envision this home as a place of ease and freedom, where they can fully indulge in life without any constraints or burdens.
▼空间概览,Space overview © 洪江平
设计概述 Design Overview
我们尝试尽量用最直白、简单的途径将客户的所有需求融入到空间的方方面面,使之呈现出家的形态。通过简洁的材质分割,凸显家的气质和氛围。同时最大程度减少空间的阻隔,让每个时间段的阳光都能勾勒出某个角落的轮廓。
We strive to incorporate all of the client’s needs into every aspect of the space in a straightforward manner, presenting the form of this home. We use minimalistic material divisions to highlight the character and atmosphere of the space. Additionally, we aim to minimize barriers within the space, allowing sunlight to outline specific corners at different times of the day.
▼回家后的第一眼,The first glance upon returning home© 洪江平
尽管位于五楼,得益于老小区常年生长的绿化,踏进家门的第一眼,便能望见窗外葱郁的绿色。为了不破坏窗景的完整性,同时也为了便于日后窗户的清洁,我们在边上设置了一个小巧的隐蔽窗,默默地服务这片绿意之间。
Despite being situated on the fifth floor, the trees inside have grown tall and sturdy because the neighborhood has been established for over a decade. The first glimpse upon entering the home is greeted by a view of verdant foliage outside the window. In order to preserve the integrity of this scenic view and facilitate future window cleaning, we discreetly installed a small concealed window on the side, silently serving this sanctuary of greenery.
▼暗中观察的柴,The Shiba Inu hides and observes its surroundings© 洪江平
柴犬和它的乐园
The Shiba Inu And Its Playground
初次前往客户住处沟通的时候,我们发现家中的小狗迅速且熟练地躲到了茶几底下,随后的沟通中得知它生性胆小,见到生人就会躲起来,并且暗中观察。
随着交谈的深入,我们得知这对业主在附近的学校担任教职,偶尔会邀请一些同事和朋友到家中小聚。同时,他们也希望平日里餐厅能保持整洁宽敞的状态,于是便有了柴犬和它的多功能乐园。
During our first visit to the client’s residence, we noticed their small dog swiftly and adeptly taking refuge under the coffee table. Subsequent conversations revealed its timid nature; it would promptly hide and silently observe whenever encountering strangers. As our discussion deepened, we learned that the homeowners worked as educators in a nearby school. Occasionally, they would host gatherings for colleagues and friends in their home. They also expressed the desire for the dining area to remain clean and spacious on regular days. So we decided to create a space for the Shiba Inu where it can hide, while also integrating it with the dining area.
▼餐厅的多种形态,
Various functional forms of the dining space
© 大不了地设计工作室
狗狗乐园隧道由 10 把凳子以及餐边柜底部的空间组成,日常可以把凳子都收起来,保持餐厅整洁宽敞。
The Doggie Playground tunnel is composed of ten chairs and the space beneath the sideboard. During regular days, the chairs can be stored away, ensuring the dining area remains tidy and spacious.
▼狗狗乐园隧道,The doggie playground tunne© 大不了地设计工作室
玄关 Foyer
下沉式的玄关,独立但不封闭,一进门,向右可一览厨房的全貌,直至望向窗外。向左,则透过悬空层板的间隙,可以感受到客厅落地窗洒进来的阳光。
Sunken foyer, While it’s a separate space, it doesn’t feel enclosed. Upon entering, a glance to the right offers a panoramic view of the kitchen, extending all the way to the window. Looking to the left, you can see the sunlight in the living room through the shelves’ levels.
▼玄关,Foyer
© 洪江平
▼玄关看厨房,The foyer provides a view of the kitchen© 洪江平
厨房和餐厅
The Kitchen And Dining Area
我们将餐厨空间设置成了家中的咖啡馆,设有吧台、长桌以及宽敞的飘窗卡座,一应俱全。清晨的第一杯咖啡,夜晚的一杯香茗,都能在此享受到轻松惬意的时光。
We’ve transformed the dining and kitchen space into a home café, complete with a bar counter, long table, and a spacious bay window seating area. From the first cup of morning coffee to a fragrant evening tea, you can savor moments of relaxation and ease in this cozy corner.
▼男主人在厨房,The master of the house is in the kitchen© 洪江平
▼餐厅看厨房,The dining area overlooks the kitchen© 洪江平
▼厨房看餐厅,The kitchen overlooks the dining area© 洪江平
▼餐厨全貌,The entirety of the dining and kitchen area© 洪江平
客厅和书房 The Living Room And Study Room
从餐厅穿过楼梯旁的过道,来到客厅和书房所在的空间,沙发从中间作为两个区域的分隔,角落里的电视,更多时候扮演着播放空间背景音乐的角色,女主人喜欢在坐在宽敞的书桌前记录着她的“人类观察日记”,再边上的洞洞板墙面则挂着男主人最心爱的网球拍。
Stepping through the corridor beside the staircase from the dining area, you enter the space where the living room and study are located. The sofa serves as a division between the two areas, with the television nestled in a corner. Most of the time, it acts as a background for playing music. The lady of the house enjoys sitting at the spacious desk, diligently recording her “human observation diary.” The hole-punched wall panel on the side showcases the homeowner’s beloved tennis rackets.
▼楼梯和卫生间中间的过道,The hallway between the staircase and the bathroom© 洪江平
▼客厅和书房全貌,The panoramic view of the living room and study room© 洪江平
▼客厅,The living room© 洪江平
▼开放式书房,The study room© 洪江平
书桌前的窗户,同样充满了绿意,阅读写作的间隙,时不时可以瞥一眼窗外的风景。
Outside the window in front of the desk, tall green plants sway gently. When you need a break from reading and writing, simply lift your head to enjoy the view outside.
▼书桌,The desk© 洪江平
傍晚,阳光透过一楼卫生间的窗户,洒在地面,几乎要爬上客厅的东墙。
In the afternoon, sunlight streams through the window of the first-floor bathroom, casting a warm glow on the floor, almost reaching up to the east wall of the living room.
▼上二楼的楼梯,
The staircase leading to the second floor© 洪江平
二楼公区
The Communal Area On The Second Floor
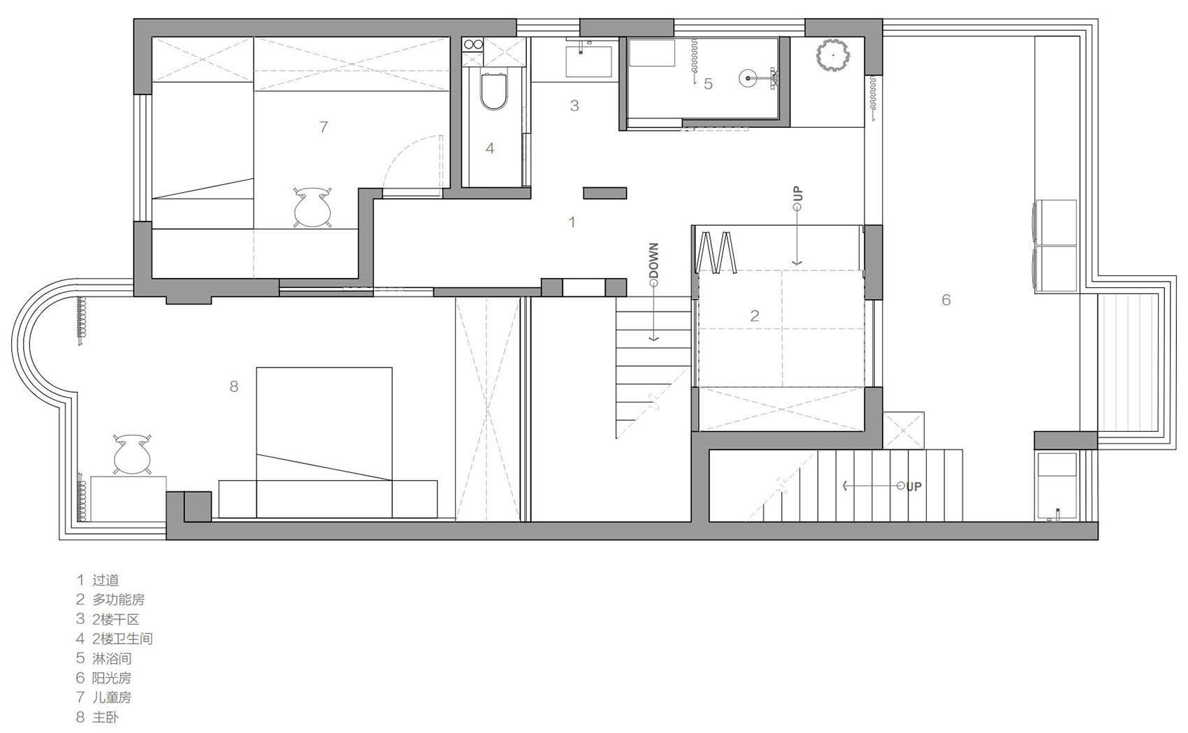
二楼的氛围会显得更为宁静,空间相对独立,主卧和未来的儿童房都设于此层,另外一间较小的房间则做成了多功能式的榻榻米房。
由于整栋房子的卫生间都不算宽敞,且一楼没有设计卧室,我们因此将一楼的卫生间省去了淋浴设施。
为此,我们将二楼的卫生间进行了三分离设计,确保各功能区域可以同时使用,也提升了卫生间的舒适性。
洗衣、烘干等功能全部放到了北面的阳光房。
楼梯间面积较狭小,三边又都是高墙,为了让楼梯间显得通透明亮,我们在榻榻米房和主卧的墙面分别开了玻璃窗,缓解楼梯间的压抑感和昏暗感。
The atmosphere on the second floor tends to be more tranquil, with spaces relatively independent. The master bedroom and the future children’s bedroom are both located on this level, while the smaller room has been transformed into a versatile tatami-style room. Since the bathrooms throughout the entire house are not particularly spacious, and there was no bedroom designed on the first floor, we omitted the shower facilities from the first-floor bathroom. As a result, we divided the second-floor bathroom into three functional zones, ensuring they can be used simultaneously and enhancing the comfort of the bathroom. The washing machine and dryer are installed on the covered terrace on the north side.
Given the relatively narrow space and high walls on all three sides of the staircase area, we introduced glass windows on the walls of both the tatami room and the master bedroom. This was done to bring in more natural light, alleviating the confined and dim atmosphere of the staircase area.
▼楼梯间,The staircase area© 洪江平
▼二楼过道,The second-floor corridor
© 洪江平
▼二楼干区,The second-floor bathroom dry area© 洪江平
▼榻榻米房,The tatami room© 洪江平
我们把二楼原本起居空间的一部分做成了独立的淋浴间,淋浴间没有把窗户全部包进去,留下了一道缝隙,方便阳光随时钻进来。
We converted a portion of the original second-floor living space into a separate shower room. The shower room doesn’t completely cover the window; it leaves a gap to allow sunlight to filter in at any time.
▼二楼过道一角,A corner of the second-floor corridor© 洪江平
▼阳光房看榻榻米房,The sunroom overlooking the tatami room© 洪江平
▼阳光房看二楼过道,The sunroom overlooking the second-floor corridor© 洪江平
卧室 The Bedroom
两个卧室都配备了宽敞的步入式衣柜,充分满足日常衣物和床品的整齐收纳需求,保持了空间的整洁和井然有序。
卧室只用了纯净的白色与温暖的木色,没有多余繁琐的造型,营造宁静舒适的休息环境,让人感受到宁和轻松的氛围。
Both bedrooms are equipped with spacious walk-in closets, providing ample storage space for daily clothing and bedding, ensuring the space remains neat and well-organized. The bedrooms are adorned with pure white and warm wood tones, devoid of excessive intricate details, creating a serene and comfortable resting environment that exudes a sense of tranquility and ease.
▼二楼过道看主卧,
View from the hallway into the master bedroom© 洪江平
▼主卧概览,An overview of the master bedroom© 洪江平
步入式衣柜立在主卧和楼梯间之间,我们在衣柜顶部前后都设置了长条窗,使得主卧良好的采光得以渗透到衣柜和楼梯间。
The walk-in closet is situated between the master bedroom and the staircase area. We’ve incorporated long strip windows at the top, both in the front and back of the closet, allowing ample natural light to filter through into both the closet and the staircase area.
▼主卧步入式衣柜,The walk-in closet in the master bedroom© 洪江平
▼阳光洒进主卧,Sunlight streaming into the master bedroom© 洪江平
在项目进入软装阶段时,正值业主们的暑假假期。他们希望更多地参与到家的落地过程中,于是我们设计了一系列包括梳妆台、床头柜、狗窝等榫卯结构的家具。我们精心绘制了详细的组装说明,将家具加工成板件的形式。最终,业主们亲自动手,将这些家具组装完成。
As the project transitioned into the soft furnishing phase, it coincided with the summer vacation of the homeowners. They expressed a strong desire to be more involved in the process of furnishing their home.Consequently, we designed a series of furniture pieces, including dressing tables, bedside cabinets, and even a dog’s bed, all featuring traditional mortise and tenon joints. We carefully drafted detailed assembly instructions and had the furniture pieces processed into panels. In the end, the homeowners personally took part in assembling these pieces, adding a personal touch to their new living space.
▼家具组装说明
Furniture assembly instructions
© 大不了地设计工作室
▼儿童房,The children’s bedroom© 洪江平
房子主要通过新风系统实现空气的流通,儿童房的窗户采用了整面定玻的设计,拥有更好的视野和安全性。
The house primarily relies on a fresh air circulation system for ventilation.
The window in the children’s bedroom features a full-length fixed glass design, providing better views and enhanced safety.
▼儿童房的窗帘,Curtains in the children’s bedroom© 洪江平
画室 Art Studio
阁楼的整个空间作为女主人的画室,原本顶面的结构、保温、防水等基础功能都保持完好,重新刷上白漆,打上一整排的收纳柜,再放上可移动的画桌和边柜,一个极具氛围感的创作空间就完成了。累了便可以到外面铺满碎石的露台小憩。
The entire attic space serves as the female owner’s art studio. The original structure, insulation, and waterproofing of the ceiling were all well-preserved. After a fresh coat of white paint, a row of storage cabinets was installed, along with movable work tables and side cabinets. The result is an atmosphere-rich creative space. When tired, one can relax on the terrace outside, covered with gravel.
▼阳光房去画室的楼梯,Staircase from the sunroom to the art studio© 洪江平
▼画室一瞥,a glimpse at the art studio© 洪江平
▼画室概览
Overview of the art studio© 洪江平
▼画室局部,Detail of the art studio© 洪江平
我们根据坡顶的高度来设置了收纳柜的深度,避免撞到低矮区域的天花板。
We adjusted the depth of the storage cabinets based on the height of the sloping ceiling to prevent accidentally bumping into the low areas of the ceiling.
▼画室收纳柜,Storage cabinets in the art studio© 洪江平
▼画桌,Painting table© 洪江平
▼一层平面,lower floor plan © 大不了地设计工作室
▼二层平面,upper floor plan© 大不了地设计工作室
▼阁楼平面,attic floor plan© 大不了地设计工作室
客服
消息
收藏
下载
最近
















































