查看完整案例

收藏

下载
01.
项目简介 Project Introduction
岩壁秘境酒店位于于宜兴市湖㳇镇邵东村,村落自然形成,位于两侧峡谷之间。设计任务是将其中一幢废弃的旧建筑重新利用,并改造其为酒店。
The Rock Hotel is located in Shaodong Village, Huyu Town, Yixing City. The village is naturally formed between the canyons on both sides. The design task was to reuse one of the old abandoned buildings and transform it into a hotel.
▼项目概览
General view © 唐徐国
建筑的场地是当时挖山后平整形成,设计中思考如何缝合现状建筑与周边村落的关系,赋予场地新的生命。
希望对旧建筑做尽量少的改动,让建筑回归自然:遂用轻便的金属网“覆盖”旧建筑,金属网提供了藤蔓植物生长的“路径”,植物自由生长,建筑师离场,最后由时间赋予自然完成剩下的设计。
The building site is formed by excavating the mountain and leveling it. It is necessary to consider how to stitch the relationship between the existing building and the surrounding villages in the design and give the site new life.
We hope to make as few changes as possible to the old building and return the building to nature: we use a lightweight metal mesh to “cover” the old building, which provides a “path” for the growth of vines. The plants grow freely, the architect leaves, and the rest of the design is left to time to complete.
▼模型,Model
02. 时间何为?What is time
建筑的时间性,是极具挑战又极具思辨性的命题,在当今内卷焦虑的社会认知下更显现其独特的价值。正如哲学家卡斯滕·哈里斯(Karsten Harries)所说的那样,“建筑不只是关于驯服空间,它也是人们对于时间恐惧的抵抗。美是永恒的超越时间的现实”。
The relationship between architecture and time is a very challenging and speculative proposition, and its unique value is even more evident in today’s impetuous and anxious social cognition. As the philosopher Karsten Harries said, “Architecture is not just about taming space, it is also about people‘s resistance to the fear of time. Beauty is an eternal reality that transcends time.”
▼入口,Entrance© 唐徐国
为了阐释这一观点,设计团队从新旧的记忆入手,在材料的流转中展开,于序列的逻辑中推演,在人为策略与自然博弈中寻找共生,留下一件“未完成”等待时间续写的作品。
In order to explain this point of view, the design team started from old and new memories, unfolded in the replacement of materials, deduced in the logic of the sequence, and sought symbiosis in the game between man-made strategies and nature, leaving a work waiting for time to continue.
▼入口细节,Entrance detailed view© 唐徐国
03. 感知:温暖的记忆 Perception:warm memory
原建筑为一处承载附近居民多年记忆和情感的老旧办公楼,建筑体量大于周边的民居,我们需要在保留原建筑主体构造的同时对其进行改造,并且将建筑融入周边的环境与村落。为协调建筑外形,用到了白色金属网状构架将其包裹。
The original building is an old office building that carries the memories and emotions of nearby residents for many years. The building volume is larger than the surrounding residential buildings. We need to retain the main structure of the original building while transforming it, and integrate the building into the surrounding natural environment and village. In order to coordinate the shape of the building, it is wrapped with white galvanized mesh.
▼镀锌金属网,Galvanized mesh© 唐徐国
白色金属网也为植物提供了攀爬路径,在一次次逝去和新生的交叠之中,建筑会慢慢与植物相融、拥抱自然、回归山野,建筑体量也逐渐消减到了合适的尺度。在一次次腐烂和新生中,白色金属网终将失去它的纯净朦胧,镌刻的锈迹隐匿在一片生生不息之后,在春去秋来中逐渐浮现,低调的承托着时间所带来的一切。
▼改造前建筑外墙,Facade before renovation© 唐徐国
The white metal mesh also provides climbing paths for plants. In the overlapping of passing away and new life, the building will gradually blend with the plants, embrace nature, return to the mountains, and the building volume will gradually reduce to a suitable scale. In the process of decay and rebirth again and again, the white metal mesh will eventually lose its purity and ambiguity. The engraved rust is hidden behind a piece of endless life, and gradually emerges with the change of seasons, supporting everything brought by time in a low-key manner.
▼改造后建筑外墙,Facade after renovation © 唐徐国
建筑内部则焕然一新,功能空间的重新组织和建筑立面富有韵律的理性构建直接反映在形态大小各异的窗洞上,白色构架恰到好处得延伸了室内空间,放大了窗洞的纵深感。在光影微风和竹林山海的共同作用下,实现由室外到室内的景观渗透,人们身处其中感知时间和记忆的叙说。
The interior of the hotel has a new look. The reorganization of the functional space and the rhythmic and rational construction of the building facade are directly reflected in the window openings of various shapes and sizes. The white structure effectively extends the interior space and magnifies the depth of the window openings. Under the joint effect of light, shadow, breeze and bamboo forest and mountains, the landscape penetration from outdoor to indoor is realized, and people feel the narration of time and memory in it.
▼镀锌金属网细节,Galvanized mesh detailed view© 唐徐国
04. 接纳:坦率的对话 Acceptance: Candid Conversations
为了充分利用并尊重场地元素中的固有特性,新建部分的材料大都是原有建筑拆解下来的砖石、泥土,并在混凝土表皮上压制出竹海的阴影,以一种纯粹直白的状态与竹林岩壁对话。
In order to make full use of and respect the inherent characteristics of the site elements, the materials for the new part are mostly bricks, stones and soil dismantled from the original buildings, and the shadow of the bamboo forest is suppressed on the concrete surface. Dialogue with the bamboo forest rock wall in a pure and straightforward state.
▼建筑外墙局部,Facade partial view© 唐徐国
原建筑与岩壁相邻,后院空间十分局促,设计需要思考让建筑与自然地貌产生新的对话关系,如何利用场域元素打造一隅诗意的角落,是一项有趣的挑战。我们将靠山一面的边界打开,将地上一层原有狭促的小院以开放之姿嵌入岩壁,形成室外露台。
The original building is adjacent to the rock wall, and the space in the backyard is very cramped. In the design, it is necessary to think about creating a new relationship between the building and the natural landform. How to use the elements of the existing site to create a poetic corner is an interesting challenge.
▼手绘平面图,Sketch© 素建筑设计事务所
▼改造前庭院 & 庭院设计概念手绘,Courtyard before renovation & Sketch© 唐徐国
▼庭院,Courtyard
© 唐徐国
地下公共区之前是作为车库使用,阴暗且潮湿,需要重新将其改造为公共空间满足未来的使用需求。直接以岩壁为墙,串联起一系列以视角与触觉相互流动的情绪空间。
▼改造前地下室,Basement before renovation© 唐徐国
We opened the “boundary“ of the building on the mountain side, and embedded the original narrow courtyard into the rock wall in an open manner to form an outdoor terrace. The underground public area was previously used as a garage, which was dark and damp and needed to be renovated to meet future needs. The rock wall is directly used as a wall to connect a series of emotional spaces that interact with vision and touch.
▼改造后地下室,Basement afterrenovation© 唐徐国
路径以泳池为起点,开天窗借入室外光景,形成一处天然“石画”景观。
走过以几何框架为引的吧台,弧形玻璃围绕的景观庭院进一步放大了视觉体验,却在触觉上戛然而止。路径终点的私密泡池区由一段狭窄的岩壁过道空间相连,尺度上戏剧化的收放处理,形成初极狭,才通人。复行数十步,豁然开朗的情绪转折。
▼设计概念图,Concept©素建筑设计事务所
▼设计概念图,Concept©素建筑设计事务所
▼“石画”设计概念手绘,“Stone painting” landscape©素建筑设计事务所
The path starts from the swimming pool, and the skylight is opened to borrow outdoor light, forming a natural “stone painting” landscape. Walking past the bar counter guided by the geometric frame, the landscaped courtyard surrounded by curved glass further magnifies the visual experience, but it stops abruptly in terms of touch. When you walk to the private hot spring area at the end of the path, you need to pass through a narrow rock wall aisle. The process of transformation formed an emotional turning point: “初极狭,才通人。复行数十步,豁然开朗(It was extremely narrow at first, and then it became clear. After dozens of steps, it suddenly became enlightened)”.
▼地下一层,Basement floor© 唐徐国
▼泳池,Swimming pool © 唐徐国
岩壁的粗粝在或匆忙或随意的一次次路过,停留中变得圆润,苔藓和杂草在岩石的缝隙中恣意生长,在又一次新旧的交织里,如同这座山林中的每一株生命体般,完成了生命循环的周而复始。建筑,人类和自然逐渐在相互接纳中成为一个完整浪漫的整体。
▼岩壁过道设计概念手绘,Sketch© 素建筑设计事务所
The roughness of the rock wall becomes rounded when people pass by or stop again and again in a hurry or at will, and moss and weeds grow freely in the crevices of the rock. In the interweaving of the old and the new again and again, just like every life in this mountain forest, it completes the cycle of life again and again. Architecture, humans and nature gradually become a complete romantic whole in mutual acceptance.
▼天窗,Skylight © 唐徐国
▼私密泡池,Private pool© 唐徐国
05. 忘却:隐匿的诗意 Forgetting: Hidden Poetry
关于空间的叙事从入口前那条贯村而过的小溪说起,溪上架起一座窄桥,晨间或是傍晚时常可以看到村民们,聚在一起唠家常的场景,这是繁杂生活里难能可贵的自在和温暖,我们希望其得以保留。于是,在建筑前方,距离窄桥的不远处,以飘落的竹叶为灵感,与山林地势呼应形成层叠向下之势,叶之亭铺陈开来。
The narrative about the space begins with the small stream that passes through the village in front of the entrance. A narrow bridge is built on the stream. In the morning or evening, you can often see the scenes of villagers gathering together to talk about their daily routines. This is a rare and precious thing in the complicated life The comfort and warmth we want to retain.
Therefore, in front of the building, not far from the narrow bridge, inspired by the falling bamboo leaves, echoing the terrain of the mountain forest, forming a cascading downward trend, the “Pavilion of Leaves” was laid out.
▼叶之庭,Pavilion of Leaves© 唐徐国
一叶之庭,不仅为是作为酒店的公共活动空间的延续,也将为整个村落注入新的活力,形成乡村肌理的重要点睛,鼓励平凡琐碎的日常相遇在此发生,促进更惬意自在的生活方式。
The “Pavilion of Leaves” will not only serve as a continuation of the public activity space of the hotel, but will also inject new vitality into the entire village, forming an important highlight of the rural texture, encouraging ordinary and trivial daily encounters to occur here, and promoting a more comfortable lifestyle.
▼入口,Entrance© 唐徐国
▼大厅,Lobby© 唐徐国
▼旋转楼梯,Spiral staircase © 唐徐国
走过窄桥,基于竖向分层叙事的岩壁秘境就此展开。大厅的螺旋楼梯是整个建筑的枢纽,贯穿连接内部的核心空间。将主要的居住空间和公共空间分为上下两个部分,一层和地下层承载着餐饮、会客、娱乐和一些附属服务空间。二三层不同房型的客房区域,由白色的金属网向室外延伸,在植物簇拥的白色网格盒子里实现了从人居到自然的过渡渗透,交映山林变换莫测的景观,对仗居住者内心隐秘的思绪,去构筑独特的空间共鸣。
我们希望在这座建筑里,人们将和建筑一起沉淀下来,忘却时间,走向随时间隐匿的诗意中。
After walking across the narrow bridge, the secret realm of the rock wall based on vertical layered narrative unfolds. The spiral staircase in the hall is the hub of the entire building, connecting the core spaces inside. The main living space and public space are divided into two parts, the upper and lower parts. The first floor and underground floor carry dining, reception, entertainment and some ancillary service spaces. The guest room areas of different room types on the second and third floors are extended to the outdoors by a white metal mesh. The white grid box surrounded by plants realizes the transition from human habitation to nature, reflecting the unpredictable landscape of the mountains and forests, and contrasting with living. In order to build a unique space resonance, the inner secret thoughts of the audience can be constructed.
We hope that in this building, people will settle down together with the building, forget about time, and move toward the poetry hidden over time.
▼客房,Guest room
© 唐徐国
▼一楼公区,Public area© 唐徐国
06. 回望:博弈中的共生 Looking Back: Symbiosis in the Game
空间设计上关注到环境中的相互关系,运用泥土、岩石、植物等天然材料,与风、与水、与阳光等环境力量进行互动;回收、恢复和修复受损环境以重新设想生态关系;不断地使用创造性的行为为生态可持续性与自然共存提出各种构想,以引起人们对生态和自然保护的关注。
Spatial design pays attention to the interrelationships in the environment, using natural materials such as soil, rocks, and plants to interact with environmental forces such as wind, water, and sunlight; recycling, restoring, and repairing damaged environments to reimagine ecological relationships; constantly Land uses creative actions to propose various ideas for ecological sustainability and coexistence with nature to draw attention to ecology and nature conservation.
▼景观设计概念手绘© 素建筑设计事务所
设计之初,我们就计划留下一半交给时间,于是索性将空间本身、竹林、岩壁、植物、人文等这些元素排列组织进场域之间,人与自然的博弈游戏就此展开,此消彼长又相互依存。
At the beginning of the design, we planned to leave half of it to time, so we simply arranged and organized the space itself, bamboo forests, rock walls, plants, humanities and other elements into the field, and the game between man and nature began. They are long and interdependent.
▼地下一层景观,Basement landscape© 唐徐国
正如我们最初模糊构想中那样,场域间这些元素的关系将在时间的催化过程中发生微妙的变化,建筑表面逐渐被植物覆盖,形成消隐之姿,自然仿佛以倾覆之态取得胜利,但在建筑内部,空间与岩壁的纠缠则刻画成为另一场虚与实的缠斗,是人与自然关于边界的相互占领,似乎在宣告,结论还为时尚早。当我们回望设计的起点,这副时间所绘的画作逐渐成型并还在继续,我们未可知其终点。
As in our initial vague conception, the relationship between these elements of the field will change subtly in the catalytic process of time. The surface of the building is gradually covered by plants, forming a fading gesture, as if nature has won in a state of capitulation, but inside the building, the entanglement of the space and the rock wall is portrayed as another tussle between the imaginary and the real, a mutual occupation of the border between man and nature, which seems to proclaim that it is still too early to draw conclusions. It seems to declare that the conclusion is still too early.
As we look back to the beginning of the design, this painting of time is taking shape and continues, without us knowing where it will end.
▼庭院,Courtyard© 唐徐国
▼模型,Model© 唐徐国
▼剖透视图,Perspective section © 素建筑设计事务所
▼场地平面图,Site plan© 素建筑设计事务所
▼-1F 平面图,Plan -1F© 素建筑设计事务所
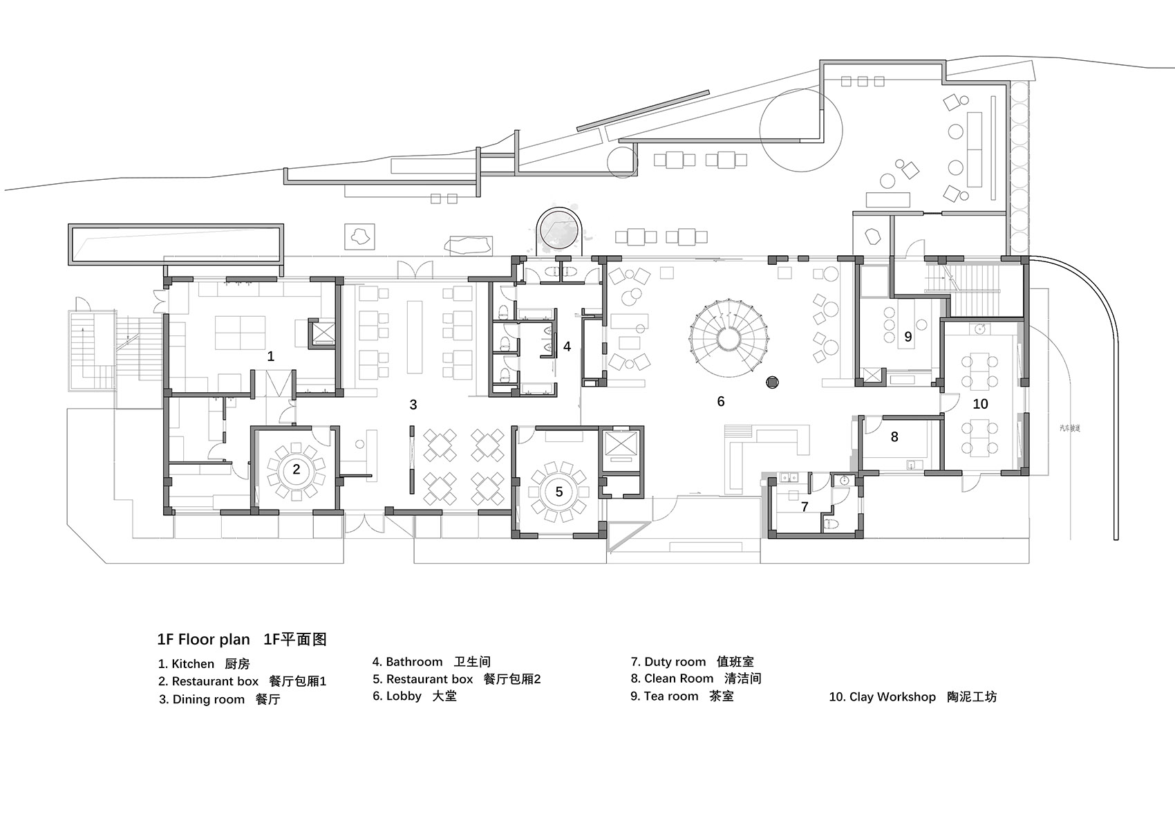
▼1F 平面图,Plan 1F
© 素建筑设计事务所
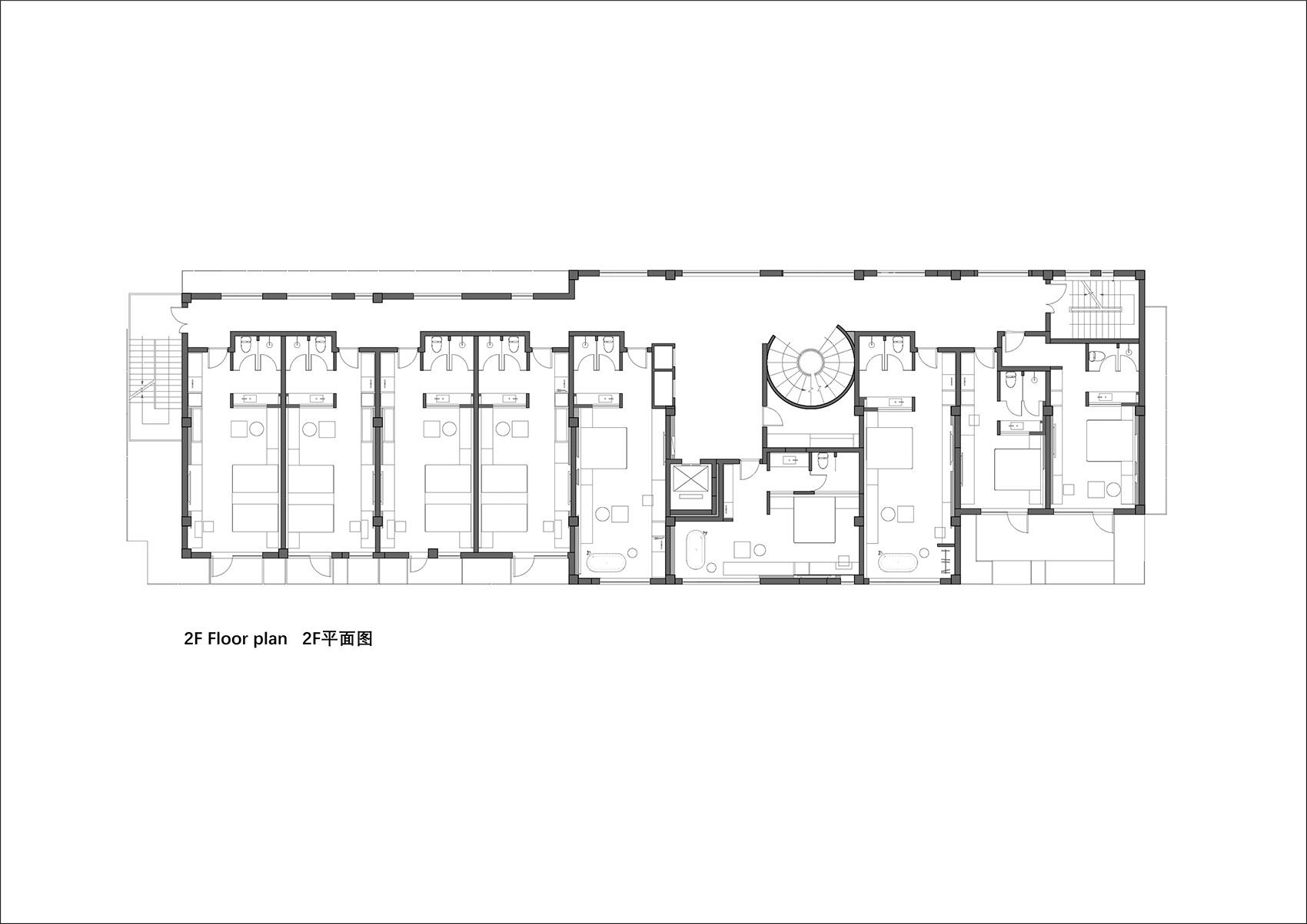
▼2F 平面图,Plan 2F
© 素建筑设计事务所
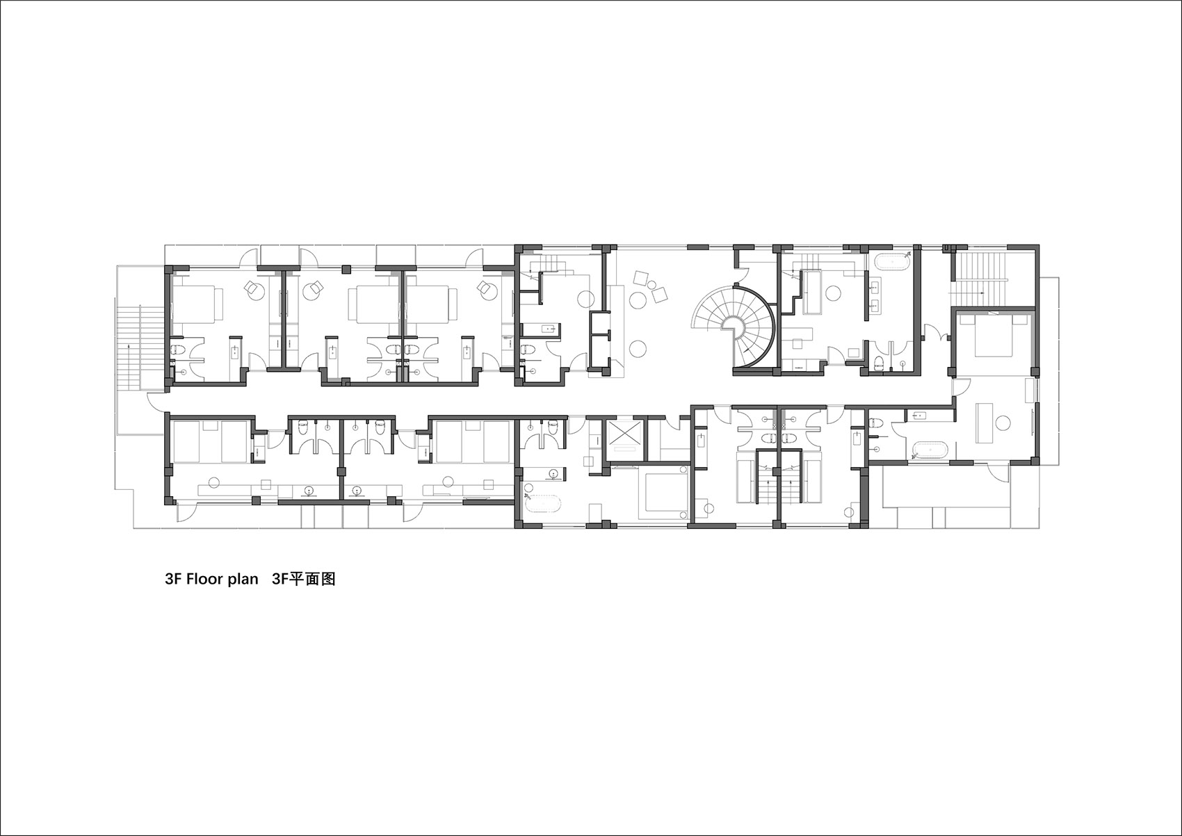
▼3F 平面图,Plan 3F© 素建筑设计事务所
▼阁楼平面图,Loft Plan © 素建筑设计事务所
▼立面图,Elevation© 素建筑设计事务所
▼剖面图 1,Section 1© 素建筑设计事务所
▼剖面图 2,Section2© 素建筑设计事务所
客服
消息
收藏
下载
最近





























































