查看完整案例

收藏

下载
前传 — 无锡钢铁厂@ 1958
Prologue: Xigang Group – 1958
无锡地处长江以南,水网纵横,京杭大运河自北向南穿城而过,东路支流为江南古运河。从有运河开始,无锡先民就傍河而居,因河设市,以河为生,形成了独特的江南运河水乡文化。作为近代中国民族工商业的发祥地,无锡也被誉为“百年工商城”,百余年的工业发展史,留下了各类工业建筑,这些老厂和老厂房,共同孕育了无锡坚守实业的城市基因。
▼项目视频,Vedio © 黑像素
Wuxi is located in the south of the Yangtze River, characterized by an intricate network of waterways. The Beijing-Hangzhou Grand Canal traverses the city from north to south, with the Jiangnan Ancient Grand Canal as its eastern branch. Since the inception of these canals, the early inhabitants of Wuxi settled along the water, and the city’s life and culture became closely intertwined with its rivers. The canals became the lifeblood of the city, giving rise to the unique culture of the Jiangnan Grand Canal.
As the birthplace of modern Chinese national industry and commerce, Wuxi is also known as the “City of Centennial Industry and Commerce.” Over a century of industrial development has left behind various industrial structures, including old factories and factory buildings. These industrial relics collectively nurture Wuxi’s enduring industrial spirit.
▼运河汇鸟瞰视角,Aerial View of Canal Hub © IAM 岸木摄影
▼一号厂房(钢铁发动器—发布中心)及三号厂房(城市剧场–商业体) ,
Factory Building 1 (Steel Engine – Launch Centre) & Factory Building 3 (City Theater – Commercial Complex)
©IAM 岸木摄影
无锡钢厂(锡钢集团)前身为无锡钢铁厂,始建于 1958 年 6 月,原址在无锡南门外的塘南路 124 号,以生产特殊钢为主业,在搬迁到靖江之前,一直是无锡举足轻重的产业地标企业。
对于无锡本地人来说,尤其是出生于上世纪七八十年代的人,古运河畔的锡钢承载着城市发展的重要记忆。
The Wuxi Steel Factory (Xigang Group) traces its origins to the Wuxi Iron and Steel Factory, established in June 1958 at 124 Tangnan Road, just outside Wuxi’s South Gate. Its primary focus was the production of special steel. Until its relocation to Jingjiang, it remained a pivotal landmark enterprise in Wuxi. For local residents of Wuxi, especially those born in the 1970s and 1980s, Xigang on the banks of the ancient Grand Canal holds significant memories of the city’s development.
▼锡钢当年的生产场景,自行制造的 40 顿精炼炉,The historical scene of Self-Manufactured 40-Ton Refining Furnace © 图片来自网络
▼2019 年的锡钢旧址,The Industrial Relic of Xigang Steel Factory in 2019 © 张超
2007 年 11 月,锡钢签约整体搬迁至长江北岸的泰州市靖江开发区。2019 年拍摄的现场照片中,遗存的厂房构架伫立在古运河旁的一片荒芜中,依稀可勾勒出当年的工厂规模和体量。
In November 2007, Xigang signed an agreement for its complete relocation to the north bank of the Yangtze River in the Jingjiang Development Zone of Taizhou City. In photos taken in 2019, the remaining factory structures stood tall amidst a desolate landscape next to the ancient Grand Canal. These structures faintly outlined the scale and volume of the factory as it was in its heyday.
▼2019 年的锡钢旧址,The Industrial Relic of Xigang Steel Factory in 2019© 张超
潮涌 — 运河汇@2023
Tidal surge – CANAL HUB@2023
2020 年起,无锡华侨城正式启动了锡钢工业遗存改造,以古运河为中轴、清名桥历史文化街区为中心,原有一号及三号厂房的主体部分被保留,产业老地标变身为文旅新地标—无锡运河汇。运河汇在新与旧、传统与现代、过去与未来之间,打造了一份独特的文化生活样本,成为集文化、商务、零售、餐饮、休闲为一体的城市文化客厅。
#蘑菇云团队#负责了遗存部分一号及三号厂房的室内空间设计,输出了多维度和多专业协作整合的空间提案,让废旧的工业遗产激发出更具开放性的使用场景和潜能,在这个城市级别的“文化山谷”中创造出属于每个人的城市剧场。
Starting from 2020, Wuxi Overseas Chinese City officially initiated the transformation of the Xigang industrial heritage. With the ancient Grand Canal as its axis and the Qingming Bridge Historical and Cultural District at its center, the main parts of the original Factory Building 1 and Factory Building 3 were preserved, transforming these old industrial landmarks into a new cultural and tourism landmark known as “Wuxi Canal Hub.” Wuxi Canal Hub, positioned at the intersection of the old and the new, tradition and modernity, the past and the future, has created a unique cultural and lifestyle experience. It has become a city’s cultural living room, integrating culture, business, retail, dining, and leisure.
The Supercloud Design team was responsible for the interior space design of parts of Factory Building 1 and Factory Building 3, providing multidimensional and interdisciplinary spatial proposals. These proposals breathed new life into the disused industrial heritage, unlocking its potential for more open and versatile uses. Within this “cultural valley” in urban level, they have created an urban theater that belongs to everyone.
▼傍晚时刻的“黑金版”运河汇,Night View of Canal Hub © 一亩片场(阿森)
一号厂房 —“钢铁发动器”中流淌的“电子运河”
Factory Building 1 – The “Steel Engine” powered by an “Electronic Canal”
一号厂房是运河汇的“钢铁发动器”,承载了整个项目对外发布和接待的功能。招商/洽谈/展示/发布会/艺术个展等都在这个平台震撼呈现,为城市和艺术发声,持续不断的输出创意和能量。
Factory Building 1 serves as the “Steel Engine” of the Wuxi Canal Hub, hosting functions for project announcements, receptions, investment discussions, exhibitions, product launches, and art exhibitions. It serves as a dynamic platform for the city and the arts, continuously generating creativity and energy.
▼一号厂房内原有的龙门起重架一直延伸到外围的锡钢浜内,电子运河点亮了整个空间,The Original Gantry Crane Inside Factory Building 1 Extends to Xigang Riverside, illuminated by the Electronic Canal Spanning the Entire Space © 刘明希
▼空间与屏幕的关系,The Connection of Screen and Space © 蘑菇云设计工作室
▼电子运河在物理空间中的打穿和延展,
The Electrical Canal penetrates in physical world ©刘明希
▼桁车的尽头是虚拟激流的电子运河,The Electronic Canal of Virtual Rapids at the End of the Crane Tracks ©刘明希
#蘑菇云团队#和#协作派对#一起,用室内空间/装置/多媒体等一系列手法,解构和重新定义了一号厂房的最终呈现。
空间设计团队#蘑菇云#着重梳理了厂房内部的交通流线,用一组盘旋而上的钢构楼梯,打穿和连接了不同楼层和桁车的路径,桁车的尽端设置了可 360 度旋转的“双层表皮”LED 屏幕,动与静的内容及场景可自由切换,赋予空间更多的开合组合及表现力。
行人入口到水岸中轴流线也被一组地砖屏打通,和楼梯中间的竖向屏联动,形成立体的可变空间媒介。
# SUPERCLOUD STUDIO and #Network Party take series of techniques such as interior design, installations, and multimedia to deconstruct and redefine the final presentation of Factory Building 1.
# SUPERCLOUD STUDIO team focused on optimizing the interior traffic flow within the factory building. They introduced a spiraling steel staircase that traverses different levels and connects various sections of the building. At the end of the crane tracks, a “double-layered skin” LED screen with 360-degree rotation capability was installed. This allows for seamless transitions between dynamic and static content and scenes, adding versatility and expressiveness to the space. Additionally, a series of floor tile screens were incorporated to establish a connection from the pedestrian entrance to the central axis by the waterfront. These screens are synchronized with the vertical screens within the staircase, creating a dynamic and adaptable spatial medium.
▼#协作派对#的多媒体内容呈现,
Content of Multimedia Presentation by #Network Party ©刘明希
跨媒体创作团队#协作派对#,负责了一号厂房的空间装置及多媒体内容设计。因为整个建筑有“运河”这个母题,#协作派对#取了运河和水流的意向去构建室内的多媒体装置,似徐徐引入运河之水,开凿出一条建筑内部的“电子河流”。——两个分别在水平和竖直方向上贯穿整个钢厂天、地和中轴线的屏幕就此诞生。它们一个呈倒 T 型,一个为长方形;一个贯穿了建筑地面的首尾,一个则是从地板升向天花板。虚拟的河水在地上流淌,又同时从地面逆流而上,在超现实感中流向天上。
The cross-media creative team, #Network Party#, was responsible for the spatial installations and multimedia content design of Factory Building 1. Given the overarching theme of the “Grand Canal” throughout the entire structure, #Network Party# drew inspiration from the Grand Canal and the flow of water to construct multimedia installations within the interior, creating an “electronic river” flowing gently within the building. ——Two screens were conceived, one running horizontally and the other vertically, both spanning the entire length of the steel factory’s floors, ceilings, and central axis. One screen took the form of an inverted T-shape, while the other was rectangular. These screens created a surreal representation of a river. Virtual water flowed on the ground, while simultaneously, it flowed upward from the floor, creating an otherworldly sensation as it moved towards the ceiling.
▼一号厂房洗手间,Washroom of Building 1 ©刘明希
三号厂房 — 工业巨构中的“城市剧场”
Factory Building 3 – The “City Theater” within an Industrial Behemoth
三号厂房横跨两百多米长度,集聚了一系列复杂多元的商业和公共活动生态组合。第一次来这儿的人会迷失在层层叠叠的尺度变化空间中,横向水泥遮阳板滤出层层阵列式光影,人置身其中的超尺度感受,是运河汇集群建筑中最具辨识度的存在。
▼“城市剧场”轴侧图,Axis side analysis diagram of “City Theater” © 蘑菇云设计工作室
▼“城市剧场”呈现出的“城市舞台”,The “City Stage” Presented by the “City Theater”©蘑菇云设计工作室
Factory Building 3 spans over 200 meters in length and serves as a hub for a diverse range of commercial and public activities. Visitors often find themselves enchanted by the intricately layered spatial variations. The horizontal concrete sunshades create a captivating play of light and shadow in an arrayed pattern, enveloping visitors in an extraordinary sensory experience. It stands as the most distinctive element among the buildings at the Wuxi Canal Hub.
▼“城市剧场“的入口大台阶,The Steps of Entrance to the “City Theatre” ©刘明希
▼横向水泥遮阳板洒下的阵列式光影,
Arrayed Shadows Cast by Horizontal Concrete Sunshades ©刘明希
运河汇打造的是多元化的“文化山谷”城市更新理念,我们将三号厂房视为城市文化的载物——“城市剧场”。空间、道具、装置、人物成为舞台上的一员,公众、城市、艺术、梦想,渐次铺展开一段属于三号厂房的城市剧场旅程。观众进入的路径不是单向的,而是一个敞开式、开放式的探索过程。观众在“山谷”中漫游的同时,也走在去往不同剧场的路上。
Wuxi Canal Hub embodies the concept of a diversified “cultural valley” in urban renewal. We view Factory Building 3 as a carrier of urban culture, a “city theater.” In this city theater, the space, props, installations, and characters all play a role, unfolding a unique urban theater journey that encompasses the public, the city, art, and dreams. The path for the audience is an open and exploratory process. As visitors roam through the “valley,” they simultaneously embark on a journey to different theaters. This approach encourages an immersive and interactive experience where the audience becomes an integral part of the unfolding urban theater narrative.
▼“城市剧场”之间的沟壑和阴翳,Gullies and Shadow between “City Theatre”
©刘明希
▼“十字光标”,商业公共空间的穿透和连接,The ‘Illuminated Cross’: Penetrating and Connecting Commercial Public Spaces ©刘明希
▼橙色通透的楼梯,交通流线的加强和导入
Translucent Orange Stairs: Enhancing Circulation Stream ©刘明希
我们给厂房的人流交通部分作了进一步的升级,强化了观众在“小剧场间”间漫游的沉浸感。“城市剧场”入口的大台阶,纵贯“山谷”的城市步道,穿梭在剧场间的盘旋楼梯——城市和剧场,文化和生活紧紧交融在一起。
We have further enhanced the flow of pedestrian traffic within the factory building, reinforcing the immersive experience for the audience as they wander between the “mini theaters.” The grand steps at the entrance to the “city theater,” the urban pathways that traverse the “valley,” and the staircases weaving through the theaters all contribute to the seamless integration of the city and the theater. This blending of culture and life creates a dynamic and interconnected environment where the two elements coexist harmoniously.
▼天光洒下来,光标驶过去,The sky shines down,’Illuminated Cross’ drive out ©刘明希
▼“十字光标”,商业公共空间的穿透和连接,“Illuminated Cross” connects the commercial public space ©刘明希
▼空间暗下去,光和内容浮现,The Atrium in the Factory Building 3 ©刘明希
▼三号厂房洗手间,Washroom of Building 3
©刘明希
细部 Details
照明设计团队#麓米照明#在整体空间形式剧本的基础上,从工业化元素的细部出发,用一系列线性和阵列的组合策略,连接了不同空间的气氛起伏。
On the basis of the overall spatial form script, the lighting design team # Lumi Lighting # starts from the details of industrial elements and uses a series of linear and array combination strategies to connect the atmosphere fluctuations of different spaces.
▼照明设计细部,Washroom of Building 3©刘明希
“这是你的城市”
“This is your city”
游走、聚集、声浪阵阵的运河汇,传递着都市的速度和活力,“这是你的城市。”
CANAL HUB, with its wandering, gathering, and buzzing sound, conveys the speed and vitality of the city, “This is your city”.
▼夜晚的运河汇和人群,Night and crowd of CANAL HUB ©刘明希
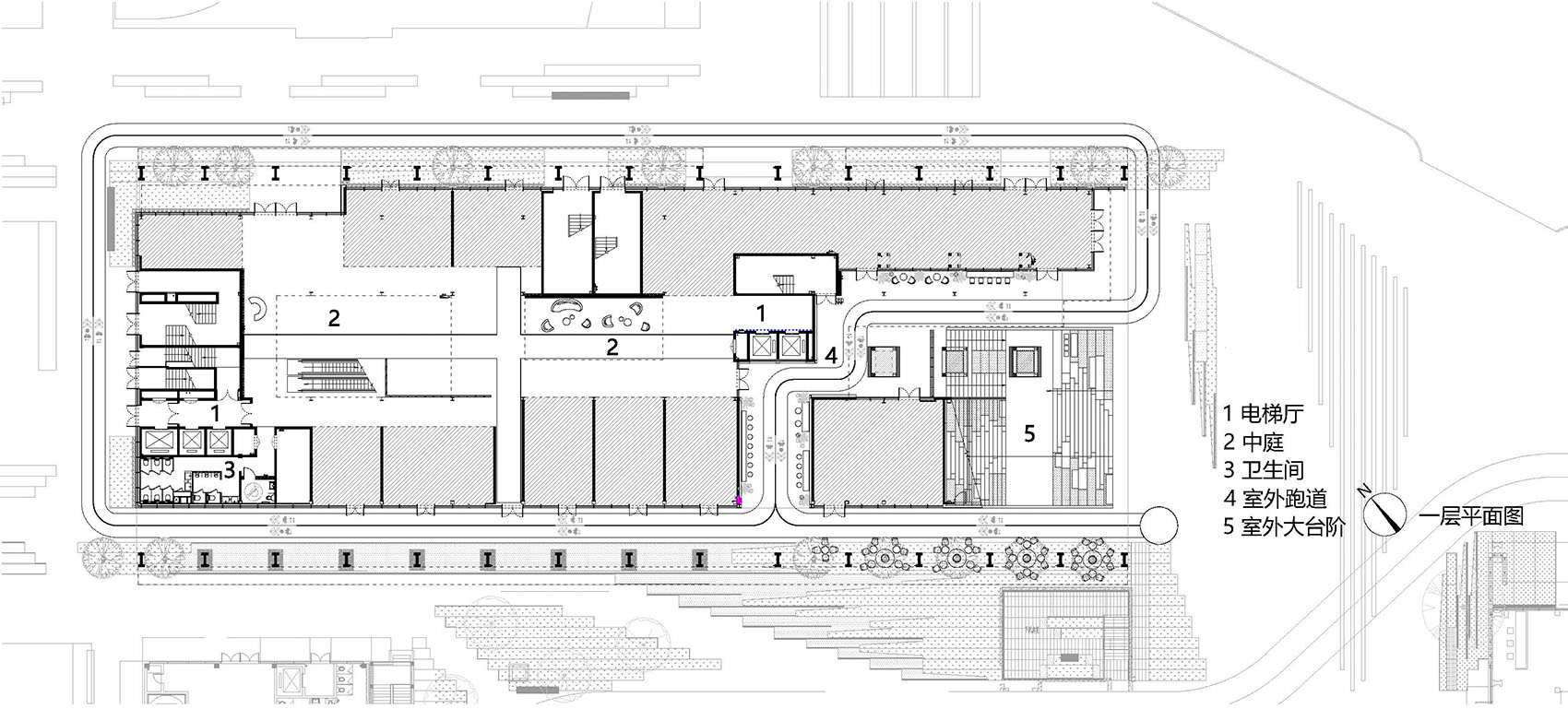
▼1 号厂房一层平面图,1F Layout of Building 1 © 蘑菇云设计工作室
▼3 号厂房一层平面图,1F Layout of Building 3©蘑菇云设计工作室
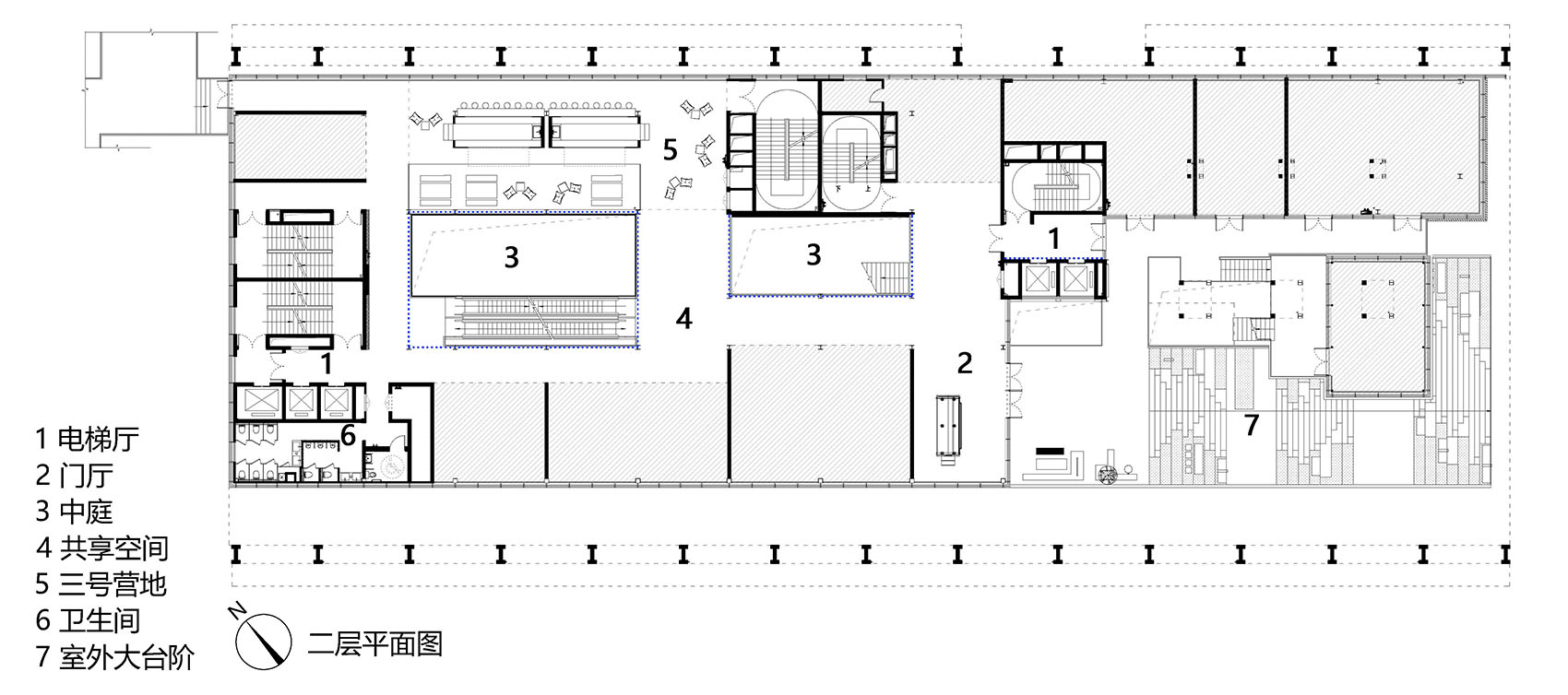
▼3 号厂房二层平面图,2F Layout of Building 3
©蘑菇云设计工作室
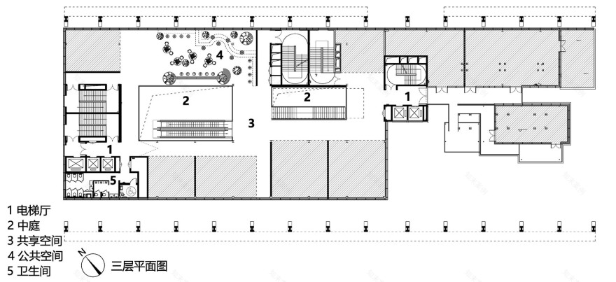
▼3 号厂房三层平面图,3F Layout of Building 3©蘑菇云设计工作室
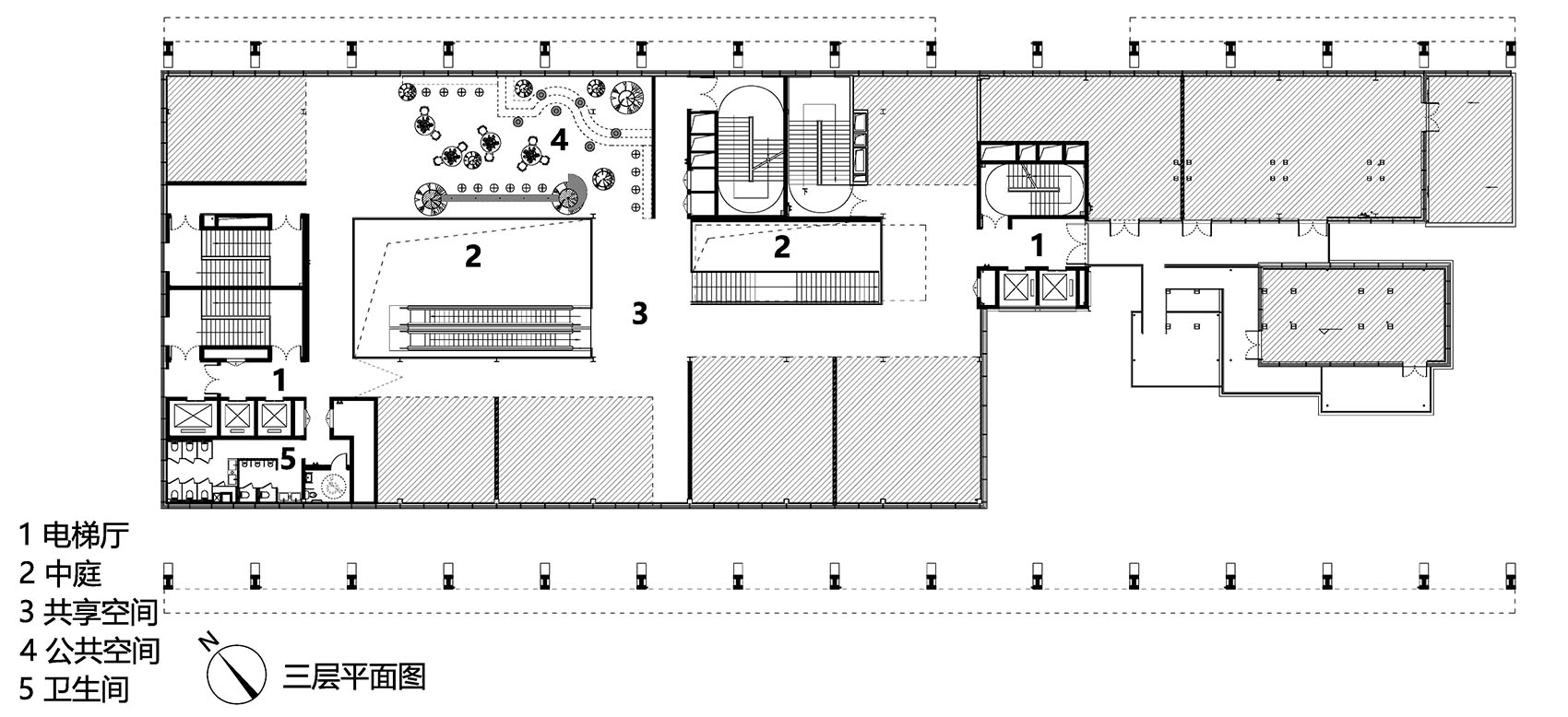
▼3 号厂房四层平面图,4F Layout of Building 3©蘑菇云设计工作室
设计公司: 蘑菇云设计工作室
类型: 工业遗存改造 城市更新 商业公共空间
地点:江苏省无锡市梁溪区塘南路 120 号
业主:无锡华侨城实业发展有限公司;无锡地铁置业;江苏古运河投资集团有限公司
建设方:无锡兆禾文化旅游发展有限公司
商业顾问:德建合景(上海)企业管理咨询有限公司
面积:一号厂房(2400m2)三号厂房(3000m2)
项目年份:2021 年 1 月 – 2023 年 2 月
室内空间设计(蘑菇云设计工作室):徐迅君,张旭东,徐聪,张智斌,邵俐,杨胜会
照明设计(Lumia Lab 照明):庞磊,郑嘉豪
一号厂房空间装置+多媒体内容:协作派对
规划与建筑设计:深圳华汇设计
景观设计:Lab D+H 上海事务所
泛光设计:中国联合工程有限公司
建筑及室内标识设计:良相设计
材料: 水泥漆 金属板 金属网 软膜天花 无机磨石 再生水泥板 亚克力板 耐候钢板 夹胶玻璃
摄影:刘明希 张超 IAM 岸木摄影 一亩片场(阿森)
视频:黑像素
Interior Design: SUPERCLOUD STUDIO
Type: Industrial Heritage Transformation, Urban Renewal, Commercial Public Space
Location: 120 Tangnan Road, Liangxi District, Wuxi City, Jiangsu Province, China
Client: Wuxi Overseas Chinese City Industrial Development Co., Ltd.; Wuxi Metro Property; Jiangsu Ancient Grand Canal Investment Group Co., Ltd.
Construction Area:Building 3 (3000m2), Building 1 (2400m2)
Year: January 2021 – February 2023
Interior design (SUPERCLOUD STUDIO): Xu Xunjun, Zhang Xudong, Layla Xu, Zhang Zhibin, Shao Li, Yang Shenghui
Lighting Design (LUMIA Lab): Lei Pang,Zheng Jiahao
Factory Building 1 Space Installation + Multimedia Content: Network Party
Planning and Architectural Design: Shenzhen Huahui Design Co., Ltd.
Landscape Design: Lab D+H Shanghai Office
Floodlighting Design: China United Engineering Co., Ltd.
Architectural and Interior Signage Design: Liangxiang Design
Materials: Cement Paint, Metal Panels, Metal Mesh, Soft Membrane Ceiling, Inorganic Terrazzo, Recycled Cement Board, Acrylic Board, Weathering Steel Plate, Laminated Glass
Photography: Liu Mingxi, Zhang Chao,IAM Phtography,ONE MU FILM LOCATION(SEN)
Video: Blackstationpixel
客服
消息
收藏
下载
最近




















































