查看完整案例

收藏

下载
覔书店是深圳友谊书城旗下的复合型文化书店品牌。覔,通古文“觅”,取探索、寻觅之意。
Mi Reading (覔书店) is a multifaceted cultural bookstore brand under the banner of Shenzhen Friendship Bookstore. The character “覔” finds its origins in ancient Chinese script and is synonymous with “觅”, imbuing the concept with connotations of both exploration and pursuit.
▼入口,Entrance© 聂晓聪
2014 年,第一家覔书店在深圳红山九方开业。经过近 10 年的探索和发展,2023 年覔书店邀请 MOC 团队共同创作一家里程碑式的旗舰店,在总结过往的同时也开启对于品牌定位和空间形象的全新诠释和探索。
In the year 2014, the first Mi Reading bookstore opened its doors at Shenzhen 9 Square Shopping Mall. Following nearly a decade of exploration and progressive growth, Mi Reading has now engaged the MOC team in a collaborative effort to establish a landmark flagship bookstore. This endeavor signifies more than a mere retrospective glance; it embodies a novel interpretation and investigation into the domains of brand positioning and spatial aesthetics.
▼入口处的主题展示区,Thematic display area at the entrance© 聂晓聪
我们希望这里相比于传统书店或者仅仅把书店场景作为氛围营造的商业空间,它更回归本质,是一个充满活力的社区中心。
—— 杨振钰 Yang Zhenyu, Designer
项目位于广州黄埔,定位于文化型共享社区。设计师从城市历史中吸取灵感,从“丝绸之路”的在地文化脉络中,提取航船的风帆、南海古厝群等为元素,将现代美学与复合式的社区文化生活结合,将图书阅读、剧场、学习、儿童绘本、咖啡、艺文活动、展览、交流等功能融合其中,旨在为周边的居民提供一个舒适、轻松的人文社区。
The bookstore is located in Guangzhou Huangpu and is designed as a culture sharing hub for the community. Inspired by the local history and the Silk Road, the designers incorporate the imagery of sailing ships, Nanhai ancient house clusters and other elements into the modern aesthetics. The multi-functional space combines book reading, theater, learning, children’s books, coffee, art, exhibitions, and community activities, creating a comfortable and relaxing cultural environment for the nearby residents.
▼入口通道,The passage at the entrance© 聂晓聪
01 文化剧场 Cultural Theater
随着时代的发展,知识传播的媒介不仅局限于书本,传统书店“知识交换”诉求变得更加复合,从单一的人与书的关系,到人与人的知识交换,空间的功能也对应的需要更加多元。
With the advance of time, the means of disseminating knowledge have transcended traditional books. The conventional bookstore’s pursuit of “knowledge exchange” has grown more intricate, shifting from a mere relationship between individuals and books to a dynamic exchange of knowledge among people. Consequently, the spatial requirements have become more diverse.
▼两层通高的公共剧场,顶部造型取自航船的风帆为元素,回应在地文化,A double-height public theater with a roof design inspired by the wind sails to respond to local culture© 聂晓聪
基于这种思考,设计师将两层的场地中部打通,形成一个开敞通透的通高中庭,使两层空间更加流畅开阔。大面积阶梯式的座位的置入构建了一个开放的公共活动空间,因此也重构了两层空间的交通动线与形式。
Driven by this perspective, the designer has opened up the central sections of the two-story venue, giving rise to a luminous and spacious double-height atrium that enhances the flow of the space. The integration of expansive tiered seating has not only fostered an open arena for communal activities, but has also meticulously reconfigured the spatial circulation and morphology of two levels.
▼另一侧设置连通二层的楼梯,保证了公共活动时的交通动线互不影响,A staircase on the opposite side connects the second floor, ensuring seamless circulation during public events© 聂晓聪
在日常情况下,大阶梯是一个阅读区,是人流汇聚和交流的场所,根据活动类型的不同,还可以作为研学会、讲座等公共活动的场所。
The grand staircase, under typical circumstances, serves as a delightful reading area and a welcoming gathering spot. Depending on the occasion, it effortlessly transforms into a versatile venue for hosting diverse public events like study sessions and enlightening lectures.
▼从公共阶梯座位看向剧场舞台,View of the theater stage from public staircase seating© 聂晓聪
在阶梯上至二层的位置,一个悬挑的“红色盒子”被安置在此处,盒子里布置了几个不同尺度的房间,面向剧场舞台方向,作为剧场功能的补充;落地玻璃的展示面则提示人们在这里“交流讨论”是被鼓励的,另一方面则保证了这里与公共空间的声音不会相互干扰。“红色盒子”的下方形成的小空间,则自然的形成了开放式的小型协作讨论区。围绕着剧场阶梯组织的不同的交流协作区,让交流的方式更加的多样化。
▼剧场与“红色盒子”关系说明© MOC DESIGN OFFICE
The structural connection between the theater and the “red box”
Positioned where the staircase leads to the second floor, an extended “red box” projects outward. This architectural feature houses different-sized rooms, all oriented towards the theater stage, thereby complementing the theatrical function. The floor-to-ceiling glass display surfaces also encourage people to exchange and discuss while ensuring a noise-free coexistence with the public area. Beneath the “red box”, a compact space naturally evolves into an open, small-scale collaborative discussion area. Different communication and collaboration zones are strategically organized around the theater stairs, enhancing the diversity of interaction modes.
▼面向剧场舞台的“红色盒子”© 聂晓聪
The “red box” facing the theater stage
▼“红色盒子”的下方形成的小空间© 聂晓聪
A compact space beneath the “red box”
▼二层“红色盒子”入口,Entrance to the “red box” on the second floor© 聂晓聪
剧场区域通高的空间结构,设计师通过连续的完整的书柜矮墙完成图书氛围的横向延续和衔接,同时视觉纵线上也达成了不间断的效果。前矮后高的书柜格局,也使图书的呈现更具空间感。空间的顶部,设计师从城市历史中吸取灵感,在“海上丝绸之路”的在地文化脉络中,提取航船的风帆为元素,在空间顶部铺陈开来,回应城市在地性文化。
The elevated spatial design of the theater is accomplished by a sequence of uninterrupted low bookshelf walls. These walls not only horizontally extend and unify the bookish ambiance, but also establish an unbroken visual vertical element. The arrangement of shorter bookshelves in the foreground and taller ones in the background further accentuates the spatial representation of the books.
The rooftop pays homage to the city’s maritime heritage with the sail-inspired elements, reflecting the local culture.
▼天花板提取航船的风帆为元素,The ceiling takes the sails of sailing ships as elements© 聂晓聪
▼从二层看向公共剧场,View of the public theater from the second floor© 聂晓聪
02 动与静的平衡——各得其所的共享社区
Balancing dynamics and tranquility – a shared community in harmony
书店是一座城市精神的见证,也是文化成长的庇护所。这里不仅吸引爱书之人,更是兼容各色人群文化需求的场所。设计师以中间的文化剧场和公共阅读区为界,进行动静布局考量,向左规划为儿童区和“小小覔”绘本馆,向右则规划休闲社交功能的“覔咖啡”,以及咖啡上方的独立自习室和沉浸式剧场。随着动线的深入,实现从喧嚣到沉静的转变,也让不同的人群都能在这里找到适合自己的空间。
▼分析图,analysis diagram© MOC DESIGN OFFICE
A bookstore serves as both a testament to a city’s ethos and a sanctuary for cultural maturation. Beyond merely captivating book lovers, it functions as a space that accommodates a mosaic of cultural demands. The designer, with careful consideration for the arrangement of active and serene areas, delineates a conceptual boundary between the central cultural theater and the communal reading space. To the left, a dedicated children’s area and the “Little Mi” picture book library find their place, while to the right, the convivial hub of Mi Café is planned, alongside an elevated independent study room and an immersive theater above. As the pathways lead further, a transition from dynamic to serene environments is achieved, ensuring that diverse individuals can find their suitable spaces within this locale.
▼覔咖啡入口,取自古厝屋顶的瓦片,以现代的语言得以转译呈现,Entrance of Mi Café, inspired by the roof tiles of ancient houses and presented in a modern language© 聂晓聪
“覔咖啡”作为社交空间被规划在剧场的一侧,设计师以传统古厝群的聚合院落为线索展开布局。抽象形态的屋厝框架构成错落有致的微型院落组合,同时也随之自然的划分出屋舍与通道。屋舍融合座位和景观,让人与空间互为流转的风景。
Mi Café is artfully positioned as a social haven on the theater’s periphery. Drawing inspiration from the harmoniously arranged courtyards within traditional ancient residences, the designer thoughtfully orchestrates the layout. The abstract form of the house frames leads to well-organized miniature courtyards, concurrently defining dwelling spaces and pathways. The integration of seating and landscapes within these structures facilitates a dynamic interplay, allowing for the interaction between individuals and their surroundings.
▼屋舍融合座位和景观,The integration of seating and landscapes within the structures facilitates© 聂晓聪
剧场的另一侧是儿童区,这里原本是室外阶梯的底部空间,活泼的空间色彩和白色的喇叭形盒子的置入突出了倾斜顶面并创造出趣味性的空间体验。白盒子里的楼梯连通儿童区与儿童绘本馆,让相对热闹的儿童区上下贯通,并与其他安静的阅读区在动线上各自独立。
Adjacent to the theater lies the children’s area, which was originally the external lower space of the staircase. The vibrant color scheme and the inclusion of the white horn-shaped enclosure emphasize the slanted ceiling and create an enchanting spatial encounter. Within the white enclosure, stairs interlink the children’s area with the picture book library, enabling smooth vertical movement within the comparatively lively children’s zone and maintaining distinct circulation from the quiet reading area.
▼一层儿童区的白色喇叭形盒子,The white horn-shaped box in the children’s area on the first floor© 聂晓聪
沿着喇叭盒子的楼梯进入二层的绘本馆,色彩也随之在统一的色调下丰富起来。在色彩的变奏之下,书架放置着分龄的儿童绘本,穿插其中的开放座位让家长与孩子在其中共渡美好的亲子阅读时光。
Ascending the stairs within the horn-shaped enclosure brings visitors to the second-floor picture book library, where the color palette gains richness while adhering to a coherent tonal scheme. Amidst this chromatic interplay, bookshelves host age-appropriate children’s picture books, interspersed with open seating areas that offer a delightful space for parents and children to enjoy precious moments of shared reading.
▼二层的儿童区入口,Entrance to the children’s area on the second floor© 聂晓聪
▼二层的绘本馆,The second-floor picture book library© 聂晓聪
▼公共阅读区与红色盒子,Public reading area and the “red box”© 聂晓聪
穿过挑空中庭走廊的公共阅读区,可供人们独立学习的自习室和沉浸式剧场位于空间安静的一角。人们在自习室可以安静的学习和思考,抬眼望去的城市绿化也能在掩卷之间放松心情。
Crossing the atrium corridor leads to the public reading area, where the self-study room and immersive theater are nestled in a serene corner of the space. Within the self-study room, individuals can engage in undisturbed learning and contemplation. The view of urban greenery through the windows offers a soothing backdrop that aids relaxation between study sessions.
▼自习室入口,Entrance to the study room© 聂晓聪
▼自习室,The study room© 聂晓聪
在这次从传统的商业书店到文化型共享社区的设计实践中,设计团队在开放的基础上,以更加现代包容的方式,打造复合型的城市文化空间,为城市带来更多活力。
In the journey from a conventional commercial bookstore to a culture-centered shared community, the design team has harnessed an open foundation, using a contemporary and inclusive approach to forge a composite urban space that injects greater vibrancy into the city.
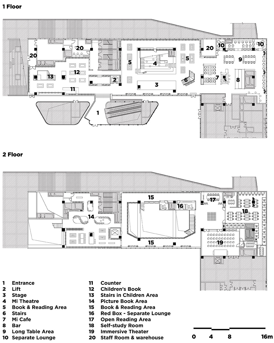
▼平面图,Plan© MOC DESIGN OFFICE
客服
消息
收藏
下载
最近































