查看完整案例

收藏

下载
本项目的业主希望该住宅能够秉承简单的线条设计,并让他们在建筑中就能够享受到周围公园的自然氛围。
Our customers ’ desire was to have a new house with simple lines, to enjoy the surrounding park.
▼项目与周边自然环境夜景,night view of the house and surrounding environment © Alberto Sinigaglia
▼门廊夜景,night view of the project © Alberto Sinigaglia
MIDE Architects事务所为该住宅选择了单层的建筑形式,开放宽敞的客厅空间朝向南侧,如同玻璃盒子一般反射着公园的绿色景观,“玻璃盒子”外部则由一座巨大的门廊保护。
MIDE Architects designed a single floor house, where the large open space of the living room, facing south, is meant as a glass box mirroring on the park, protected by a large porch.
▼巨大的门廊与屋顶下的花池,the large porch and garden under the roof © Alberto Sinigaglia
▼主入口,entrance © Alberto Sinigaglia
▼宛如玻璃盒子般的生活空间体量,the volume of living space like a glass box © Alberto Sinigaglia
精心设计的采光井成为门廊的标志性特征,它们允许树木在建筑范围内生长,并更好地将住宅与周围公园融为一体。
The porch is characterized by the presence of light wells that receive the trees, strengthening the synergy between the building and the surrounding park.
▼独特的几何形式与红色混凝土肌理,unique geometric form with red concrete texture © Alberto Sinigaglia
▼外观近景,exterior view of the house © Alberto Sinigaglia
▼门廊细部,details of the porch © Alberto Sinigaglia
▼树木穿过采光井生长而出,the trees grew through the light well © Alberto Sinigaglia
▼屋顶下的花园,garden under the roof © Alberto Sinigaglia
住宅的睡眠区域显得更加内省,墙体的混凝土肌理暴露在外部环境中,大面积的开窗将花园景观引入卧室之中。大而平坦的屋顶将住宅内的所有房间聚集在一起,并保护着下部生活空间免受烈日与坏天气的影响,进而为室内创造出舒适的体感环境。
The sleeping area is more introspective: the external walls are in concrete face view and have geometrical openings in to the garden. The large flat roof brings together all the rooms of the house, allowing for an adequate protection from the sun and the atmospheric events.
▼客厅,the living room © Alberto Sinigaglia
▼分隔客厅与厨房餐厅的储物柜,storage cabinet that divides the living room and the kitchen-dining © Alberto Sinigaglia
▼厨房,the kitchen © Alberto Sinigaglia
▼餐厅,dining area © Alberto Sinigaglia
▼餐厅与橱柜细部,details of the dining table and the cabinets © Alberto Sinigaglia
▼卧室,bedroom © Alberto Sinigaglia
▼浴室与水磨石地面细部,details of the bathroom and the terrazzo floor © Alberto Sinigaglia
克制的选材进一步强化了设计的极简美学,玻璃、木材和独特的红色混凝土,与威尼斯水磨石地板和谐相连。
The abacus of materials is deliberately limited to reinforce the project concept: glass, wood and a particular reddish hue of the concrete, all connected with the Venetian terrazzo flooring.
▼红色混凝土结构,particular reddish hue of the concrete © Alberto Sinigaglia
▼轴测图,axonometric drawings © MIDE architetti
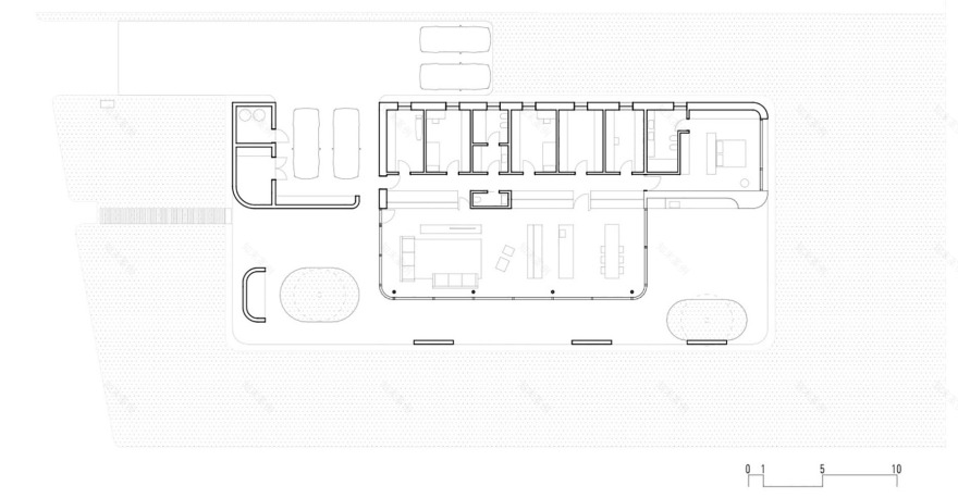
▼平面图,plan © MIDE architetti
▼立面图,elevation © MIDE architetti
客服
消息
收藏
下载
最近







































