查看完整案例

收藏

下载
从街道上望去,一块黑色的金属巨石以神秘的方式出现在店铺所位于的两根立柱之间。它看上去既熟悉又陌生,既与周围环境保持了连续,又在整体中定义出了“入口”的独特时刻。
From the street, a dark metal monolith appears in an enigmatic way between two of the columns of the building in which the store is located. Familiar and alien at the same time, it is an element that gives continuity to what surrounds it but, at the same time, defines a singular moment in the whole, an entrance.
▼项目外观,Exterior view © Simone Marcolin
▼从入口望向室内,View through the entrance © Simone Marcolin
迈过门槛,客人将置身于一个仅有3.5米宽、12米长、5米高的空间。这是一个简洁而令人意想不到的长方形空间,其内部有三根细长的立柱,外部以抛光钢材覆盖,显得十分宏伟。立柱的位置和排列节奏都并不完美,但不妨碍它们定义出周围所发生的一切,并展示出其作为场所精髓的力量。
Upon crossing its threshold, the visitor discovers a space barely three and a half meters wide, twelve meters long, and five meters high. A rectangular space, simple, somewhat unexpected. Inside, three slender columns clad in burnished steel appear majestic. Their position is not perfect, and neither is the rhythm that orders them, but even so, they can define everything that happens around them, they have the strength of being the essence of the place.
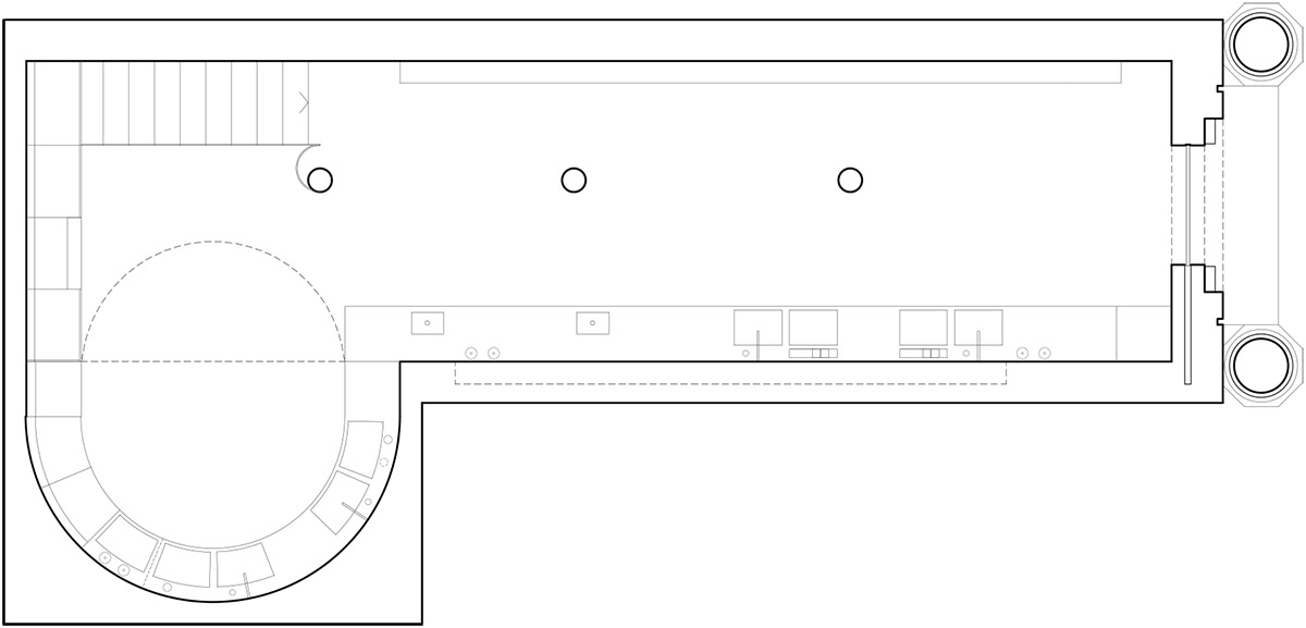
▼平面图,Plan © Barozzi Veiga
▼长方形空间内有三根细长的立柱 © Simone Marcolin
There are three slender columns in the rectangular space
立柱在空间中的排列并不对称,但可以发现其规律:在空间最宽的位置,柱子的对面是一个柜台。柜台从墙壁延伸至整个空间,直到消失在空间深处。与立柱相同,它也由抛光钢材制成(手工打造),散发出微微的光。这种材料使其成为一个抽象、轻盈且观感简洁的元素。
They are arranged asymmetrically within the space, and this allows finding an order in it; In the widest part of the store, facing the columns, there is a counter. Suspended from the wall, it extends throughout the space, disappearing into its depths. Like the columns, it is also made of burnished steel, slightly shiny, and worked by hand. The material allows the counter to be perceived as an abstract, light, apparently simple element.
▼以抛光钢材覆盖的立柱 © Simone Marcolin
The columns clad in burnished steel appear majestic
柜台解决了商店的主要功能,包含了服务台和水槽的功能,同时与空间内的柱子建立了对话。柜台与立柱是相辅相成而非竞争的关系。柜台的上方设有一个独特的水平“切口”,作为唯一的装饰元素,它的高度仅20厘米,长度却达到6米。它给整面空白的墙壁带来了一个不同维度的元素,引发我们思考周围各种事物的深度或重量。
Its reason for being is to resolve the main functions of the store, the points of sale, the sinks, etc., and to do so by establishing a dialogue with the columns. The counter does not compete with them, it acts as a counterpoint to their verticality, and, in a certain sense, they complement each other. On the counter, a little higher, a horizontal cut appears as the only characteristic element. It is a small exhibitor, only 20 cm, but 6m long. An incision, an element that gives a different dimension to the entire bare wall, makes us think about the depth or weight of everything that surrounds us.
▼柜台上方6米的切口用于展示产品 © Simone Marcolin
On the counter, a horizontal cut appears as the only characteristic element
▼室内细节,Interior detailed view © Simone Marcolin
在另一侧,8个钢制的托盘承载了Aesop的一系列作品。7米长的托盘浮动在墙壁上,连带着上面的产品,共同构成了一幅画布。各种不同的容器、盒子、色彩和材质填满了空间,使墙面本身成为一种既短暂又永恒的艺术装置。
On the other side, eight trays, also made of steel, seven meters long, organize the exhibition of the Aesop universe. The trays float on the wall, the products too, and the whole makes up a canvas, which fills the space with a multitude of different containers, boxes, colours, and textures. This way the entire wall becomes a kind of art installation in itself, ephemeral and permanent at the same time.
▼连续的流线在柜台处转弯,围合出半圆形的小空间 © Simone Marcolin
The counter turns on itself and forms a small semicircular room
▼一个感性而又私密的空间,A sensual and intimate space © Simone Marcolin
立柱、托盘和柜台的组织方式使客人行动自如,同时又能充分地观看和欣赏各种物品的出现。连续的流线在柜台处转弯,围合出一个半圆形的小空间,在这里,一切开始发生转变:直线线条消失不见,空间的高度、光线和材料都发生了显著的变化。这是一个感性而又私密的空间, 客人可以坐在其中,与周遭事物进行亲密接触。
The columns, the trays, and the counter are placed inside the store looking for the visitor to be able to move freely, attracted by the way things happen. The three accompany the visitor throughout the store until discover that the counter turns on itself and forms a small semicircular room where everything changes. Inside it, the straight lines disappear, it’s an enveloping space, in which the height changes dramatically, and with it the light and the material that makes up the room. A sensual and intimate space where you can sit and have a close relationship with everything around you.
▼材质细节,Material detail © Simone Marcolin
▼立面图,Elevation © Barozzi Veiga
▼剖面图1,Section 1 © Barozzi Veiga
▼剖面图2,Section 2 © Barozzi Veiga
Barozzi Veiga
Aesop, Store in Barcelona
Location: Carrer Consell de Cent 349, 08007 Barcelona, Spain
Client: Aesop
Principal Architects: Barozzi Veiga, Fabrizio Barozzi Alberto Veiga
Construction and site management: MDBA Maria Díaz
Design Team: Iosune Martín, Cristian Munteanu, Verena Recla
Floor Area: 100 m2
Project: 2021-2022
Construction: 2022
客服
消息
收藏
下载
最近




















