查看完整案例

收藏

下载
京都大学工学部原址位于京都市东北部的百万遍校区,逐渐搬迁到了京都西部的桂校区。位于桂校区的建设遵循着严谨的风格,为整体校区奠定了统一的主题。本项目是为桂校区打造一个新的图书馆。
The Faculty of Engineering of Kyoto University, originally located at the main campus of Hyakumanben in the northeast part of Kyoto City, has followed the gradual moving to a new campus in Katsura, the western part of Kyoto. This new Katsura campus was built with a strict image control, to create a unified theme for the entire campus.
▼图书馆概览,Overall view © Shigeo Ogawa
在2015年,设计团队被任命为这座图书馆设计建设方案,并将其提交给了文化科学部门。项目的选址在校园总体规划方案中已经明确——面朝工程学院的办公楼,可以远眺到东边京都市街道边的竹林。设计团队给出的第一个方案是遵循工程学院的指导方针制定的。
In 2015, we were assigned to come up with a proposal for building this library, to be submitted to the Ministry of Culture and Science. The site was already designated in the total campus plan. It faced the office wing of the Faculty of Engineering, with a distant view over a bamboo forest, of the streets of Kyoto City to the east. The first plan was made in conjunction with the guidelines from the Faculty of Engineering.
▼鸟瞰校园,Bird’s eye view © Shigeo Ogawa
为了不遮挡办公楼东侧的视线,第一个方案是建造一个只比广场高一层的低矮结构。考虑到城市的整体外观,图书馆设施被设计的低于这个高度,并按照办公楼侧翼的线型延伸进行建造。在后续的设计和建造过程中,设计者始终遵循这些要点,并绘制出了最终方案。
In order not to block the eastward view from the office wing, the first plan was to build a low structure, just one-story above the plaza level. The library facilities were designed below this height, with the consideration for the cityscape, and to build as a linear extension of the office wing. These points were continuously followed until the final plan was drafted.
▼图书馆立面,Elevation © Shigeo Ogawa
▼立面的砖瓦材质,Brick and tile material for the façade © Shigeo Ogawa
但是因为种种限制因素,最终方案必须将建筑体量缩小至一半以下,因此设计团队又提出了一个替代方案,这其中需要包括为学院和邻近的公众提供图书馆设施等必要功能。所有其它功能将在未来扩展阶段实施。
The final plan, however, had to be downsized below one half of the first plan, limiting us to come up with an alternative proposal incorporating necessary functions for the library facilities for the Faculty, as well as for the neighboring public. All other functions were proposed only as options for the future extensions.
▼内部空间概览,Overall view of the interior space © Shigeo Ogawa
▼首层阅览区,Reading room on the ground floor © Shigeo Ogawa
▼阅览区眺望京都市竹林的视野,The distant view of Kyoto City over the bamboo forest from the reading room © Shigeo Ogawa
即使是调整过后的最终方案,设计者也确保了朝向东侧的办公楼侧翼的形象不受影响,保持了其线型延伸的结构,和从阅览室眺望京都市竹林的视野。此外,建筑的外墙使用了砖瓦材料,这也是桂校区的总体规划中强制性规定的。
Even in the final plan, we made sure that the image of the office wing facing the east was not disturbed, the linear extension from the office wing was followed and the distant view of Kyoto City over the bamboo forest from the reading room was protected as originally proposed. In addition, the brick tiles were used for the building exterior, which were mandatory in the total plan for Katsura campus.
▼从二层望向首层阅览区,View from the first floor to the reading area on the first floor © Shigeo Ogawa
▼楼梯,Stairs © Shigeo Ogawa
▼天窗,Sunroof © Shigeo Ogawa
这种砖瓦饰面一直是学校建筑的基本风格,过去的京都工业大学和京都艺术大学皆是如此,因此,最终方案遵循也了这一规则。设计者们认为,与其设计一个在外观上突出的建筑,本项目更需要的是与其它现有建筑能够融为一体,这包括广场和步行通道等外部细节。对于历史悠久的京都工业大学校园来说,该项目提出的建筑空间设计虽与校园的整体形象有所不同,但仍然与之协调。由于校园的逐步搬迁在持续了十年之后仍在进行,因此,设计者得出了这样一个结论——不是去建造一个非常瞩目的新建筑,而是通过设计一个低调的建筑来为校园搭建一个充满和谐基调的公共空间——这才是保护和延续新校区历史的方式。
This brick tile finish has been the basic rule for university campuses, as seen in the past for Kyoto Institute of Technology and Kyoto University of the Arts, and accordingly, we followed this rule in designing the final plan. We believed that, rather than designing an architecture which stands out, this project called for an architecture which blended in with the entire campus, including the exterior details such as a plaza and passages to walk around. For the campus of historic Kyoto Institute of Technology, we proposed such architectural spaces which were slightly different from the entire campus image but still in harmony with it, just as in KIT HOUSE project. However, here at Katsura campus, the gradual moving is still ongoing over 10 years and yet to be completed. Therefore, we concluded that it was meaningful, not to present an architecture which stands out, but to set up a stage to play a harmonious tone by creating a discreet architecture as a public space. This is the way to nurture the history of this new campus.
▼夜览图书馆,Night view of the library © Shigeo Ogawa
▼区位,site plan © Waro Kishi + K.ASSOCIATES/Architects Co., Ltd.
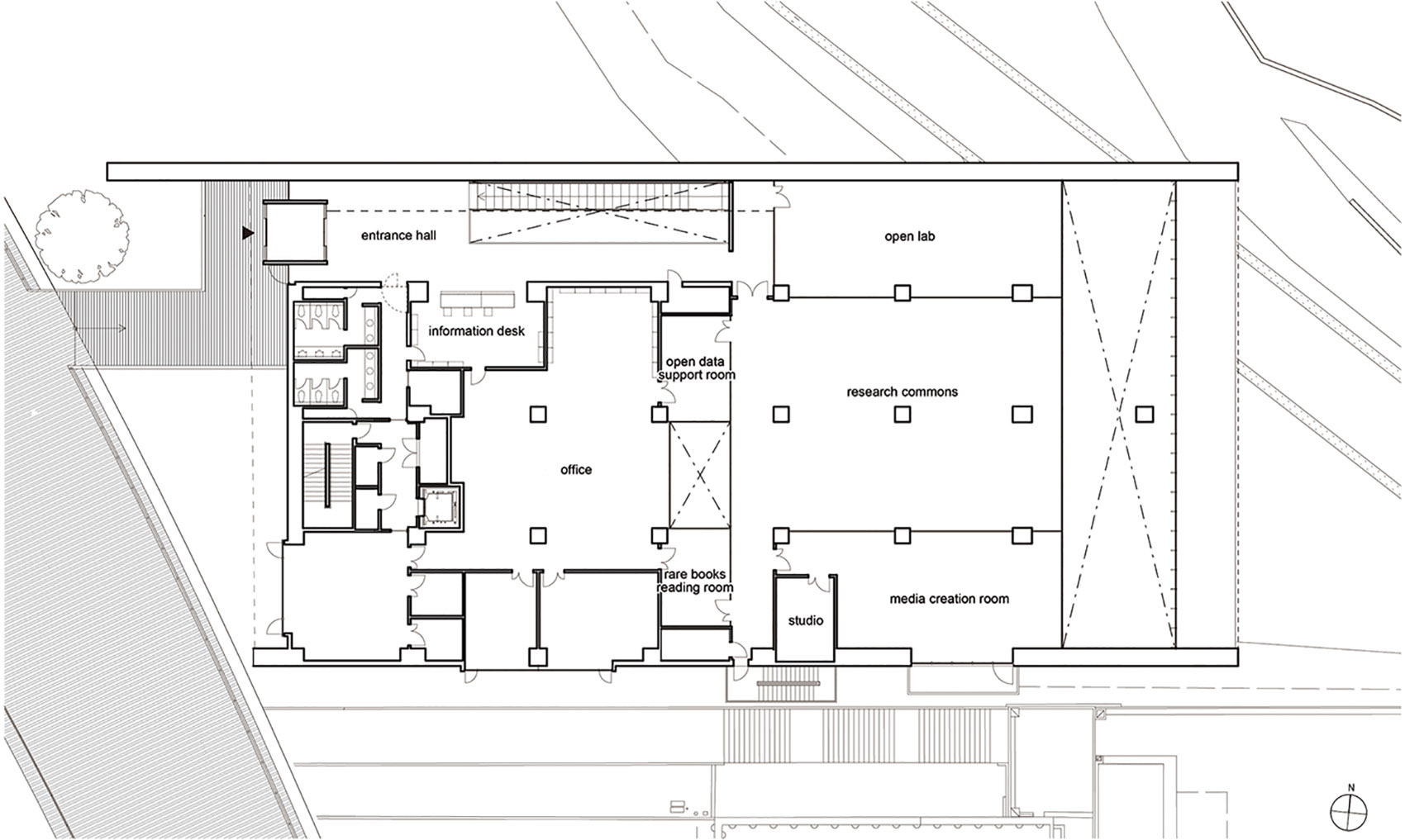
▼首层平面图,ground floor plan © Waro Kishi + K.ASSOCIATES/Architects Co., Ltd.
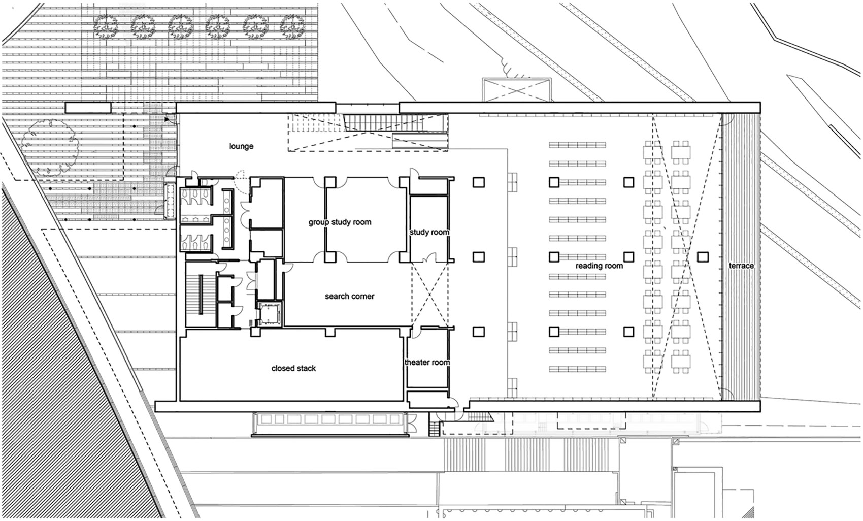
▼二层平面图,first floor plan © Waro Kishi + K.ASSOCIATES/Architects Co., Ltd.
▼东南立面图,east and south elevations © Waro Kishi + K.ASSOCIATES/Architects Co., Ltd.
▼西北立面图,west and north elevations © Waro Kishi + K.ASSOCIATES/Architects Co., Ltd.
▼剖面图,sections © Waro Kishi + K.ASSOCIATES/Architects Co., Ltd.
客服
消息
收藏
下载
最近






















