查看完整案例

收藏

下载
在东三里屯,有片院子叫“北京联合大学机电学院”,也就是现在的“机电院”,它的前身是京师督学局于1907年创办的“京师初等工业学堂”。现在,大家习惯叫它“三里屯机电院”。
不同于以往的单纯销售,在未来线下社区型集合商业模式中,各种业态将会以不同形式的嫁接完成“新零售体验店”的转型,相互成为展示性的“橱窗”和进行体验和消费的场所。本案内,大观在三里屯的这块隐藏地图里改造一处包含美发沙龙功能的有趣咖啡酒吧。
In East Sanlitun, there is a courtyard called “School of Mechanical and Electrical Engineering of Beijing Union University”, which is now known as “Mechanical and Electrical Institute”, and its predecessor was “Beijing Normal Industrial College” founded by the Beijing Supervisory Bureau in 1907. It was formerly known as the “Beijing Normal Industrial College” founded by the Beijing Normal School in 1907. Now, people used to call it “Sanlitun Mechanical and Electrical Institute”.
In the future, in the offline community-based business model, various business forms will be grafted together in different forms to complete the transformation of “new retail experience store”, which will become a showcase for each other and a place for experience and consumption. In this case, Grand View is transforming an interesting cafe bar with a hair salon function in this hidden map of Sanlitun.
▼项目概览,Overall view © UK STUDIO
▼修旧如旧的外立面,The facade © UK STUDIO
三里屯就像空降到北京的一个岛屿,笼罩着富有异域感的人造气泡。这里可能有着北京最长最嘈杂的夜晚,人潮如织,攘往熙来,而一个没有沿街展面的“机电院儿”却形成了独有的松弛氛围。我们基于保留原生场地的历史记忆的同时,挖掘场域精神。正如不同分子撞击形成新的化合物,将美发沙龙与日咖夜酒结合,融于三里屯板块的多元语境中。在隔层上空穿插体块搭建,规划出了上下层不同的功能形态,同时预先策划未来空间的运作内容、兼顾了商业体的引流。
Sanlitun is like an island parachuted into Beijing, shrouded in an exotic, artificial bubble. It has perhaps the longest and noisiest nights in Beijing, with crowds of people coming and going, while an “electromechanical courtyard” with no street frontage creates a unique and relaxed atmosphere. We based the project on preserving the historical memory of the original site while exploring the spirit of the site. Just as different molecules collide to form a new compound, the combination of hair salon and day and night wine is integrated into the diverse context of the Sanlitun district. By interspersing the blocks over the partitions, we have planned the different functional forms of the upper and lower floors, while pre-planning the future operation of the space and taking into account the flow of commercial bodies.
▼室内结构穿插分析图,Analysis © DAGA大观建筑
这栋建筑从建成以来就开始自由的变化生长,跟随着这里的住户和时代的变迁不断变化着,留下的都是不可复制且无法再现的记忆,在建筑沿街面明确原生框架与可改造部分后,首先将原有砖混结构体系的驳旧墙体形态加以优化,缝合具有大院时代记忆的立面肌理,让新旧互为共生:双方因为彼此的存在而使价值得到了提升,最终形成一种可识别的区域ip,共同组成一块城市拼图。
Since its completion, the building has been free to change and grow, constantly changing with the residents and the changes of The Times, leaving behind memories that cannot be copied and can not be reproduced. We hope that the intervention of the new space will keep a moderate distance from the original frame. On the street side of the building, the design will optimize the form of the old wall of the original brick-concrete structure system to form a facade texture that responds to the memory of the childhood of the courtyard. Let the old and the new coexist with each other: the value of each side is enhanced by the existence of the other side, and finally form an identifiable regional ip, forming a puzzle of the city.
▼外立面细部,Details of facade © UK STUDIO
▼从外部进入咖啡馆,The café interior view © UK STUDIO
设计围绕着美发沙龙与咖啡空间的结合延伸,基本策略是把三块原始独立空间经过墙体拆解与阶梯轨道嵌合完成包含多个商业形式层次的集合体。通过不同层次阶梯的形式将一楼与二楼串联、时间和空间交错穿插使用让客群有的一定重叠和互换,从而形成一条完整的游走动线,在有限的空间场地里制造趣味性的空间视觉与体验感。挑空一方面延伸了室内空间的“视野中心”,另一方面作为上层客座区动线轨迹指向不同业态经营。与此同时我们也将整个空间的动线重新进行了梳理,让空间的到达性及目的性更强。
▼动线分析图,Traffic flow view © DAGA大观建筑
The design revolves around the combination of hair salon and coffee space, the basic strategy is to dismantle the three original independent spaces through the wall and step track nesting to complete a cluster containing multiple levels of commercial forms. Through the form of different levels of stairs, the first floor and the second floor are connected in series, and time and space are interspersed to allow a certain overlap and interchange of customer groups, thus forming a complete wandering line and creating an interesting visual and experiential sense of space in a limited space. On the one hand, the ceiling extends the “vision center” of the interior space, and on the other hand, it serves as the upper level of the passenger seating area with a dynamic track pointing to different business modes. At the same time, we also reorganized the whole space’s dynamic lines to make the space more accessible and purposeful.
▼从美发沙龙二层向下查看空间穿插,View the space from the second floor of the hair salon © UK STUDIO
基于重新规划后的空间架构,室内呈现出环状的空间结构:二层中央区域为岛式空间,通过打开局部通道,形成多个出入口。我们用一层朦胧的聚碳酸酯板幕墙表皮将业态独立,避免由于隔绝而造成的闭塞感与单调性。将场域气氛置入某个高精度的实验工厂,机械组件暗示着标准化与自动化技术的进步,通过艺术的表达将挑高的橙色轨道传送带作为展示的场景单元。
Based on the re-planned spatial architecture, the interior presents a circular spatial structure: the central area on the second floor is an island space with multiple entrances and exits by opening partial passages. A hazy polycarbonate curtain wall is used to separate the businesses, avoiding the feeling of isolation and monotony. The atmosphere of the space is placed in a high-precision experimental factory, where the mechanical components suggest the progress of standardization and automation technology, and the high orange track conveyor belt is used as the scene unit of the exhibition through artistic expression.
▼从美发沙龙二层向下看向工作区域,Looking down to the work area from the second floor of the hair salon © UK STUDIO
人工照明的设计采取投射灯为主的表现方法,铝制工业顶灯引导灯光照明,以线性的形态穿梭其内,形成隔一墙一线即变化的多重感官体验。金属材质的拼接和延伸为空间带来的流动感、释放沉静稳定的情绪。相对空间上部的明亮和通透性,一楼咖啡吧台则更多是随性与秩序微妙。空间由此产生一种垂直性,一种上下关系的明确呼应。
The design of artificial lighting adopts a projection light-based performance method, and the aluminum industrial roof light guides the lighting, shuttling it in a linear form, forming a multi-sensory experience of change from one wall to another. The splicing and extension of metal materials bring a sense of flow to the space and release a quiet and stable mood. In contrast to the brightness and transparency of the upper part of the space, the coffee bar on the first floor is more spontaneous and subtle in order. The space thus creates a verticality, a clear echo of the relationship between top and bottom.
▼二层客座区细部,Second floor guest area detail © UK STUDIO
▼通过阶梯的嵌合将一楼与二楼串联,The first floor is connected to the second floor by a nesting of steps © UK STUDIO
位于首层入口处的吧台壁面饰以大量水泥混涂料,释出粗粝感强烈的冷性氛围。水磨石、不锈钢和铝板的重复利用,让材料本身呈现原生风貌。靠近街廓的区域,利用桌角的局部退让,让光线可以经由设计后的角度进入空间。相对空间上部的明亮和通透性,吧台则更多是随性与秩序微妙。空间由此产生一种垂直性,一种上下关系的明确呼应。
The wall of the coffee bar at the entrance of the first floor is decorated with a large amount of cement mix paint, releasing a cold atmosphere with a strong sense of coarseness. The reuse of terrazzo, stainless steel and aluminum panels gives the materials themselves a native look. In the area near the street, the corner of the table is partially set back to allow light to enter the space through the designed angle. In contrast to the brightness and transparency of the upper part of the space, the bar is more spontaneous and subtle in order. The space thus creates a verticality, a clear echo of the relationship between top and bottom.
▼吧台释出粗粝感强烈的冷性氛围,The bar releases a cold atmosphere with a strong sense of coarseness © UK STUDIO
▼吧台细部,Bar detail © UK STUDIO
▼一层客座区细部,First floor guest area detail © UK STUDIO
这是大观首次尝试参与设计与餐饮之外的业态兼容经营,一切空间设计都围绕着对场景的体验,我们相信空间不仅是一个物理环境的呈现,在尝试更多未知的经营命题后才能挖掘出更多商业空间设计的可能性。我们创造的空间同时也在创造体验,相辅相成。
This is our first attempt to participate in a compatible business operation outside of design and catering. All space design revolves around the experience of the site. We believe that space is not only a presentation of the physical environment, but only after trying more unknown business propositions can we dig out more possibilities of space design.
▼夜间酒吧的欢愉一刻,A moment of pleasure at the night bar © UK STUDIO
▼橙色环形传送装置细部,Detail of the orange ring conveyor © UK STUDIO
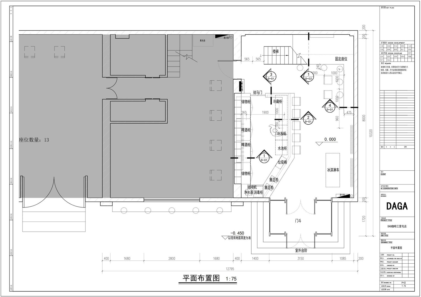
▼首层平面图,First floor plan © DAGA大观建筑
▼夹层平面图,Mezzanine floor plan © DAGA大观建筑
客服
消息
收藏
下载
最近

























