查看完整案例

收藏

下载
该项目是一间位于市中心的为年轻家庭设计的20年代末的公寓。
An apartment in the city center from the late 20’s for a growing family.
▼室内概览,overview of the project © Matej Hakár
这间公寓被划分为两部分。东南分区有过渡性空间,原始木地板和双翼门。西北分区朝向庭院,展现出过去无数次翻新和加建的痕迹。因此西北分区是该设计的重点。
▼轴测图,axonometric drawing © Kilo/Honč
The apartment is divided into two tracts. The southeastern tract with transitional rooms, original wooden floors and double wing doors. The northwestern tract facing the yard, showing numerous layers of renovations and additions from the past. The design focuses on the northwestern tract.
▼透过双翼门看客厅,view to the living room through the double wing doors © Matej Hakár
▼透过双翼门看餐厨空间,view to the dining and kitchen area through the double wing doors © Matej Hakár
▼从客厅看儿童房,view from the living room to the children’s room © Matej Hakár
▼儿童房内景,interior view of the children’s room © Matej Hakár
▼客厅和儿童房之间的玻璃间隔,glass partition between the living room and the children’s room © Matej Hakár
空间概念,价值观的体现和公寓的社会层面是非常明确的。我们以开放,消除障碍和非物质化的方式,只增加必要的元素。我们希望有更多的空气、风景、情感和鲜花。我们构建了一个可以共享美好时光的框架。我们创造了一个“无限的空间”,将空间运动分配于一个循环模式中。我们不希望走到走廊的尽头却转身而返。
Spatial concept, manifestation of values and the social aspect of the apartment are very clear. We open, remove barriers and dematerialize, adding only necessary elements. We want more air, views, feelings, flowers. A framework for shared moments. We create an “infinite space” by distributing spatial movement in a circular pattern. We don’t want to come to the end of a corridor, turn around and go back.
▼透过玻璃隔断看主卧室,view to the master bedroom through the glass partition © Matej Hakár
▼主卧室,the master bedroom © Matej Hakár
▼玻璃隔断门,glass partition doors © Matej Hakár
▼主卧室的衣柜和卫生间,the closet and bathroom of the master bedroom © Matej Hakár
我们从大自然中汲取灵感,并鼓励趣味性的互动。
We are inspired by nature and we encourage playfulness.
▼改造和加建的痕迹,the traces of renovations and additions © Matej Hakár
▼镜面反射的空间,the space reflected by the mirror © Matej Hakár
▼从过道看儿童房,view to the children’s room from the aisle © Matej Hakár
▼过道空间,the aisle © Matej Hakár
▼从过道看洗手间,view to the bathrooms from the aisle © Matej Hakár
▼洗手间内景,interior view of the bathroom © Matej Hakár
该公寓没有门厅。打开前门后,我们直接进入公寓的中心区域——供一家人齐聚的大桌子。从共享和社交到私密性最高的空间,我们专注于制定改造计划,同时保持空气流通。
There is no wind lobby in the design and after opening the front door we come directly into the heart of the apartment where the family gathers – to the big table. We focus on creating plans while maintaining airiness. From shared and social to the most intimate.
▼前门视角,view from the front door © Matej Hakár
▼朝向阳台的厨房空间,the kitchen facing to the terrace © Matej Hakár
▼厨房空间概览,the kitchen © Matej Hakár
▼窗帘遮盖厨房收纳前后对比,before and after comparison of curtain covering the kitchen storage © Matej Hakár
▼从餐厅看厨房,view from the dining area to the kitchen © Matej Hakár
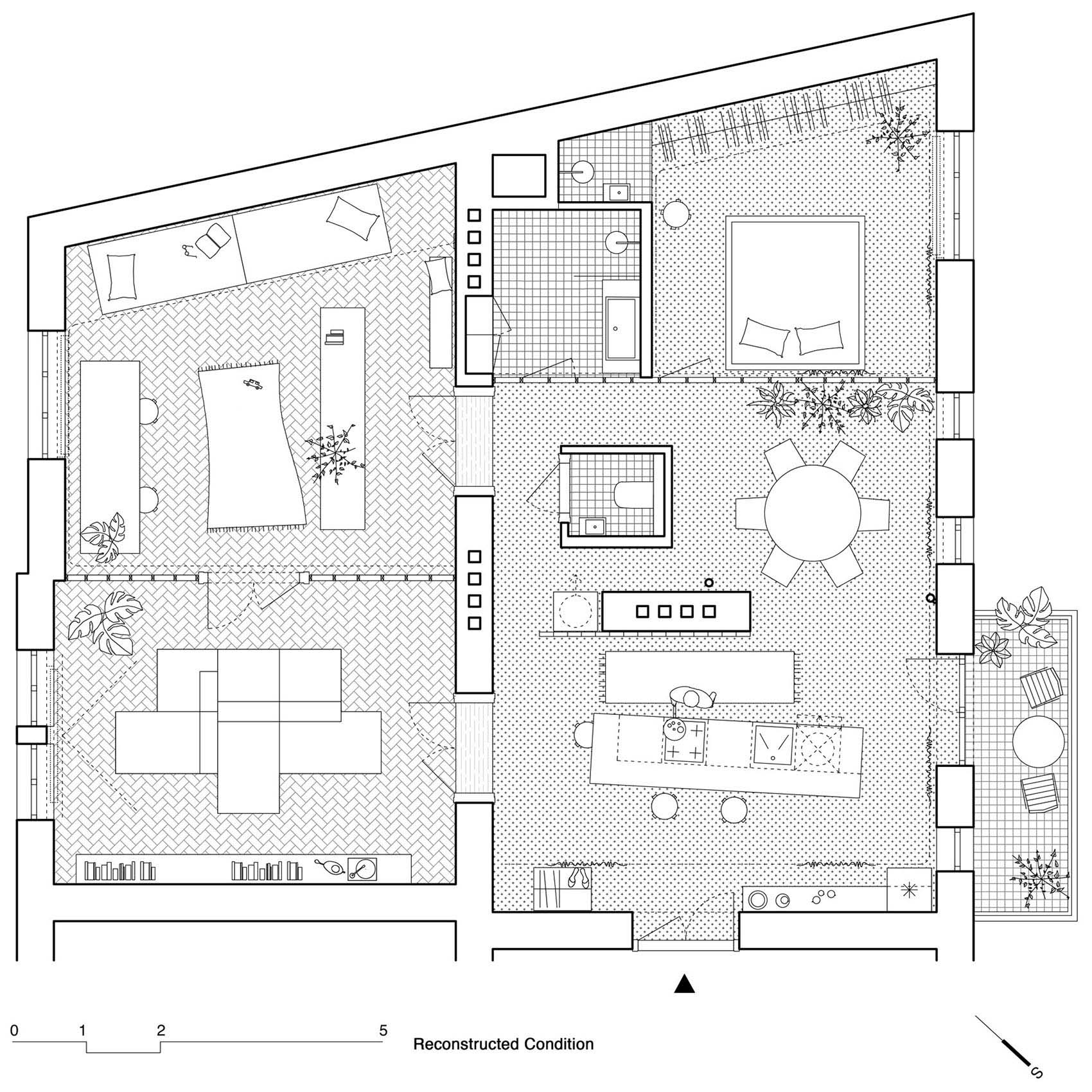
▼改造前平面,previous plan © Kilo/Honč
▼改造后平面,reconstructed plan © Kilo/Honč
客服
消息
收藏
下载
最近






































