查看完整案例

收藏

下载
项目概述 Project Overview
随着当下城市社会的发展,“社区”概念被越来越频繁提及,也成为新城市人常驻和创造回忆的新场所。面对城市的发展升级,a9a 建筑设计事务所、H&A 翰祥景观设计、合恣设计分别从建筑、景观、室内角度出发,联合打造了集多种生活功能为一体的普罗市集社区商业体,希望借此提升社区商业的多样性、便利性、特殊性、趣味性,将生活的“烟火气”,融为触手可及的日常,促进社区邻里互动交往,与最近的人相聚在普罗市集,炊烟与理想在此共同扎根生长。
With the current development of urban society, the concept of “community” is being mentioned more and more frequently, and has become a new place for new urbanites to reside and create memories. In the face of the upgrading of urban development, we have designed the PULO Market, which integrates a variety of living functions to promote community interaction and interaction.
▼项目概览,Preview ©普罗理想国
#01. 建筑
ARCHITECTURE
© 存在建筑
1.1#从冬到秋,观察理想生活如何落地
Construction Process
施工建造阶段工作,忙碌而有序。各方力量汇集入场,旧岁新年,四季流转,木梁与钢柱在这里重叠生长,共同见证普罗市集日趋成熟完整,理想生活有了可触摸的形态。
The construction phase is busy and orderly. All the forces gathered to enter the wooden beams and steel columns built here, together witnessing the maturity and integrity of the PULO Market, the ideal life has a touchable form.
▼施工阶段的建筑,Construction phase
©普罗理想国
1.2#邻里街巷,创造烟火人情的社区商业
Community Commercial Buildings
在邻里交往愈发被忽视的现代都市中,由社区商业串联起邻里温情得尤为珍贵。热火朝天的社区氛围驱散了冬季的寒冷,用空间编制一首幻梦,重拾每个人心底来自童年记忆里的温情与美好。
In the modern city where neighborhood interaction is increasingly neglected, the warmth of the neighborhood is especially precious, as the community atmosphere dispels the cold of winter and recovers the warmth and beauty from childhood memories in everyone’s heart.
▼场地环境,Context© 图派视觉
▼鸟瞰,Aerial view© 存在建筑
▼建筑外观,Exteirior view© 存在建筑
1.3#化整为零,布置尺度宜人的舒适街区
Block Scale
普罗市集从打碎的整片地块中生长,相对独立的三个建筑区块形成了宜人的内街尺度。
分割体块的轴线,成为连接住区和公园两侧人流的主要行动流线,也成为串联各功能区块的重要交通路径。
外部临街部分,结合建筑的灰空间进行外摆布置,内外街结合设计,打造充满活力的商业氛围和消费场景。
PULO Market grows from this neighborhood, with three relatively independent blocks forming a pleasant scale of the inner street.
The cut line of the segmented block becomes the main circulation connecting the people on both sides of the residential area and the park, as well as an important traffic path connecting various functional blocks.
▼临街立面,Street facade© 存在建筑
▼内外街结合设计,Combined internal and external street design© 存在建筑
1.4#盒子变形,置入功能体块灵活更换
Functions of the Boxes
通过对盒子的空间原型思考,为业态规划提供了一套模块化可变方案,在满足整体建筑风格的前提下,可根据不同业态的经营需求进行延展。灵活的小盒子被塞进市集内部,原本空旷的内街广场变成错落有致的街区,人们的日常生活需求被最大化满足,在这里共享温暖和凛冽并存的夜晚。
Through thinking about the space prototype of the box, we provide a set of modular and variable schemes for the future format planning, which are extended according to the business needs of different formats on the premise of meeting the overall architectural style. When we put these Spaces into the market, the square is transformed into a block.
▼错落有致的街区,Multi-layered volumes© 存在建筑
▼建筑细节,Detailed view© 存在建筑
1.5#生活便利,满足多种生活需求 Convenient Living
市集社区提供最丰富的蔬菜瓜果、水产生鲜的采买便利,也力图最大程度地在空间中重现记忆中的热闹与人情味。
空间还可容纳多样性的经营需求咖啡、小吃、酒吧、餐饮、日用零售等,满足居民日常亲朋聚会、外出就餐、商务洽谈等等多样化的需求。
PULO Market provides a wealth of vegetables, fruits and fresh aquatic products to buy convenience, but also tries to reproduce the memory of the lively and human touch in the space.
The space can also accommodate diverse needs – coffee, snacks, bars, restaurants, daily retail, to meet the diversified needs of residents for daily gatherings, dining out, business negotiations and so on.
▼市集社区,PULO Market© 存在建筑
▼餐饮空间,Dining space© 存在建筑
▼建筑细节,Detailed view© 存在建筑
#02. 建造 Construction
© 存在建筑
2.1#纯净材料,勾画温暖木材干净玻璃小屋
Wood, Concrete, Glass
烟火气的营造,从最初的材料选择时便纳入考虑。摒弃了坚硬冰冷的工业感材质,具备亲切气质的云杉木料成为上选。木质的温暖和柔韧为普罗市集带来社区应该具备的舒适底色,穿插其中负责结构支撑的黑色钢柱又为建筑整体带来几分冷色加以调和。
The creation of community fireworks should be considered from the time of material selection. Spruce wood was chosen as the material of choice, forgoing hard and cold materials. The black steel pillars interspersed throughout bring a cooler tone to the building as a whole.
▼云杉木料构成舒适底色,Spruce wood forms a comfortable base© 存在建筑
▼立面局部,Facade partial view© 存在建筑
2.2#结构明晰,木与木搭接的分明秩序
Clear Structure
云杉实木与钢结构相接,具有轻便的结构特性,为构建多元的空间提供了无限可能。室内屋面的檩条和椽条位于同一平面内,木质框架结构不做修饰,尽情裸露在外,营造休闲商业气息的同时,秩序分明的搭接将结构美体现得淋漓尽致。
Spruce solid wood and steel structure connects modern wood structure, with lightweight structure characteristics, providing infinite possibilities for the construction of multiple spaces. The interior roof is made of purlins and rafters, which are located in the same plane, and the exposed wooden frame reflects the structural beauty.
▼裸露的木质框架结构,Exposed timber frame construction© 存在建筑
2.3#未来趋势,环保便捷双管齐下
Environmental Protection
木材本身所具备的环保性与未来性是设计师一直追求的目标。普罗市集大量使用可重复利用的木材搭建,在注重环保的同时,更简洁和模块化的设计也为快速建成提供方便。
The PULO Market is built with a large amount of reusable wood, which is environmentally friendly and at the same time more simple and modular in design to facilitate quick completion.
▼简洁和模块化的设计,Simple and modular design© 存在建筑
2.4#露台连廊,开放的生态性共融
Terrace and Connecting Corridor
自然元素的屋面可以与公园充分对话,连廊为各栋建筑二层之间的交通提供便捷,加强场地互通的商业氛围,开阔的露台有绝佳视野,让公园的景色尽收眼底,远眺美好生活。
Through thinking about the space prototype of the box, we provide a set of modular and variable schemes for the future format planning, which are extended according to the business needs of different formats on the premise of meeting the overall architectural style.
▼连廊,Connecting corridor© 存在建筑
▼露台视野,View from the terrace© 存在建筑
2.5#高低错落,富有节奏的天际线变化 Skyline of the Market
坡屋顶与平屋顶收放自如,局部二层建筑与自然形成的可上人露台,勾勒出普罗市集高低起伏的轮廓线,在夜幕下熠熠生辉。由此产生的丰富动线,促进使用者彼此视线的交汇,让故事悄然发生。
The sloping and flat roofs, partial two-story buildings and accessible terraces create the undulating contours of the PULO Market. The result is a rich dynamic line that facilitates the intersection of users’ views.
▼沿街外观夜景,Exterior view© 存在建筑
▼屋顶露台,Rooftop terraces© 存在建筑
#03. 景观
LANDSCAPE
© 普罗理想国
3.1#模糊边界,建筑与自然有机共生
Living with Nature
来自社区中央公园缤纷色彩的渗透晕染,以自然融合万物,建筑的体量被巧妙消解。景观对沿街面乔木设置进行重组,让沿街梧桐在市集段落断开,以更细致且视线穿透的银杏,与公园形成视觉上的联结,延续普罗市集的金黄色彩。
From the colorful central park of the community, the volume of the building is subtly dissolved. The landscape is reorganized with the setting of trees along the street level, forming a visual connection with the park with ginkgoes, and continuing the golden color of the PULO Market.
▼庭院景观,Landscaped yard© 普罗理想国
3.2#入口法则,沉浸公园的气氛营造
View of the Entrance
内街与外街采用不同地面材料进行区分,对两个内外街连接口进行刻意压缩,同时拉开室内主入口的树木间距,配合完成入口气氛营造。在市集的其他三个界面,则延续公园的森林气氛,将种植蔓延到了社区用地,借此架构出植物错落的景深,营造出自然沉浸式体验。
The inner and outer streets are differentiated by different ground materials, and the two inner and outer street junctions are deliberately compressed, while the trees at the main indoor entrance are spaced apart to complete the entrance atmosphere.
▼延续公园的森林气氛,Continuing the forest atmosphere of the park
© 普罗理想国
3.3#退让借景,烘托展现建筑之美 Plants as Background
在用地局限、动线交织的基础环境里,绿植难以成林成片,退让与借景成为最重要的设计手法,留出商铺展示画面与舒适活动区域,烘托展现建筑木构之美,在观赏点以花艺手法布置植物,让室内外边界逐步消融。
In the basic environment with limited land use and intertwined lines, it is difficult to form a forest of greenery, so concessions and borrowed scenery become the most important design techniques, leaving the store display screen and comfortable activity areas to highlight the architecture and let the indoor and outdoor boundaries gradually dissolve.
▼消融的室内外边界,The dissolved boundaries of interior and exterior© 普罗理想国
3.4#联系内外,借用景观延长视线
Extended Line of Sight
用地虽有界,视线却可无限延长,超出景观用地的所及之处,地块周边的环境、区域内的室内环境,均可纳入考量。借景后方公园布置景观,或是利用种植遮蔽远处不够完美的工地画面。更要越出当下,将春夏秋冬四季轮转的图景写成一首漫长诗篇。
The site is limited, but the view can be extended infinitely beyond the landscape site, taking into account the surrounding environment of the site and the indoor environment of the area. Take advantage of the park behind to arrange the landscape, or use planting to shield the distant site from the less than perfect picture.
▼借景,The borrowed scenery© 普罗理想国
3.5#景观材料,慢行之下细赏美好
Materials of the Landscape
内街全面铺设砾石,这种不利快步通行的材料,与外街规整人工的铺装形成对比,更具温暖的手工气息。快速行走不易,索性放慢脚步,成为市集空间更具闲适感染力的机会。砾石的透水性、多孔性等生态优势,符合雨水花园的自然气质。
The inner streets are fully paved with gravel, a material that is not conducive to fast-paced traffic, in contrast to the regular, artificial paving of the outer streets. The ecological advantages of gravel, such as permeability and porosity, are in line with the natural temperament of the rain garden.
▼内街景观,The inner street landscape© 普罗理想国
#04. 室内
INTERIOR
© 普罗理想国
4.1#烟火拢聚,亲友团圆共享人间风味
Reunion with Family
市集建筑化整为零,让空间具备内外皆宜的开放性,再用大面积透光玻璃,将自然邀入室内。室内通过对游逛动线的规划,让人的视线关注到市集多样、趣味的“物”之上,以赏物支撑“游逛”,体验“挤挤攘攘”的赶集气氛。
The architecture of the marketplace is divided into pieces, giving the space an openness that is suitable for both inside and outside, and using large areas of light-transmitting glass.
The interior is planned to bring the eye to the diversity of the market through the planning of the circulation line.
▼市集内部空间,Internal market spaces© 普罗理想国
▼室内景观,Internal landscape© 图派视觉
4.2#大雪纷飞,用木色妆点银白
Winter Snow Scene
北方的冬天,最期待的事就是去看雪。冰天雪地里,冬日庭院色彩褪去,唯有普罗市集四季不变的木色带来持续温暖。从内街长廊到露台屋顶,留下一场银装素裹的静美。贮藏的万物,将长出的新期待,以全新的面貌共度有质量的日常。
In the icy weather, the colors of the winter courtyard fade away, leaving a snowy scene from the inner street promenade to the terrace roof.
▼冬季的市集,The market in winter
© 普罗理想国
4.3#灯光叙事,深蓝夜色化身幕布
Lighting Settings
灯光设计接续了退让美学的叙事,弱化景观灯,着重表达自然的阴翳之美。让建筑站上舞台,以原木的金黄映衬天空深蓝的幕布,辅佐少量特定角度的灯光,拉出景观层次,映衬出独特的墨绿质感,在建筑玻璃的透景画面下内外难辨。
The lighting design continues the narrative of the retreat aesthetic, weakening the landscape lights and focusing on expressing the shadowy beauty of nature.
▼灯光设计,Lighting design© 普罗理想国
#05. 生活
LIFESTYLE
5.1#温暖传递,共建邻里温馨社区
Warm Neighborhood
在满足便利生活的基础上,人们对于社区商业提出了更高的要求,邻居们期待符合想象的多元社区、与邻为伴的幸福感、发挥自我价值的归属感。普罗市集的存在,提供了邻里的偶遇、漫长的谈心、热闹的团聚,或者是一个能够完全放空自己的地方。
On the basis of satisfying the convenience of life, people have higher requirements for community business. Neighbors expect a diversified community that meets their imagination, the happiness of being with their neighbors, and the sense of belonging that brings out their self-worth.
▼夜晚的社区,The community by night© 普罗理想国
5.2#传统佳节,主题活动精彩纷呈
Celebrate the Holidays
当中国传统节日氛围邂逅普罗市集,这里独有的烟火气息,足以打动每一位邻居和城市探访者。元宵花灯与月色相伴,节日焰火划破夜空,红灯笼点亮新年愿景,串成烛火摇曳、杯盘相碰的节日氛围。
The festive atmosphere here is enough to impress every neighbor and city visitor. Red lanterns, fireworks and moonlight create a festive atmosphere.
▼节日氛围,Festive atmosphere© 普罗理想国
5.3#不止市集,贩卖理想生活方式
The Ideal Lifestyle
对一切满怀好奇的孩子们结伴享受着健康美食,追寻新鲜事物的年轻人在风景优美的街区里感受着生机;活力满满的熟年邻里在驻足偶遇中唤醒过往的温暖记忆……在人情味儿和烟火气聚集的普罗市集,艺术和创意成为最特别的商品,贩卖心中理想的生活方式。
Children enjoy healthy food, young people feel the vibrancy; neighbors awaken past memories in chance encounters……At the PULO Market, art and creativity become the most special commodities.
▼夜晚的屋顶平台,Roof terraces by night© 普罗理想国
▼整体鸟瞰,Overall aerial view© 普罗理想国
# 结语
Conclusion
不论是追寻节日的烟火气,还是享受安静的慢时光,每个人都有自己专属的生活方式。普罗市集从不去定义理想生活该有的样子,而是寻找更多的美好生活,把它们带到人们的身边。在设计师用心打造的这片屋檐之下,烟火气和人情味不断聚拢成长,变成温暖社区和城市的力量。
Whether it’s chasing the fireworks of the festival or enjoying the quiet slow time, everyone has their own exclusive way of life. PULO Market never defines the ideal life, but looks for more beautiful life and brings them to people.
▼一层平面图,Plan 1F
© a9a 建筑设计事务所
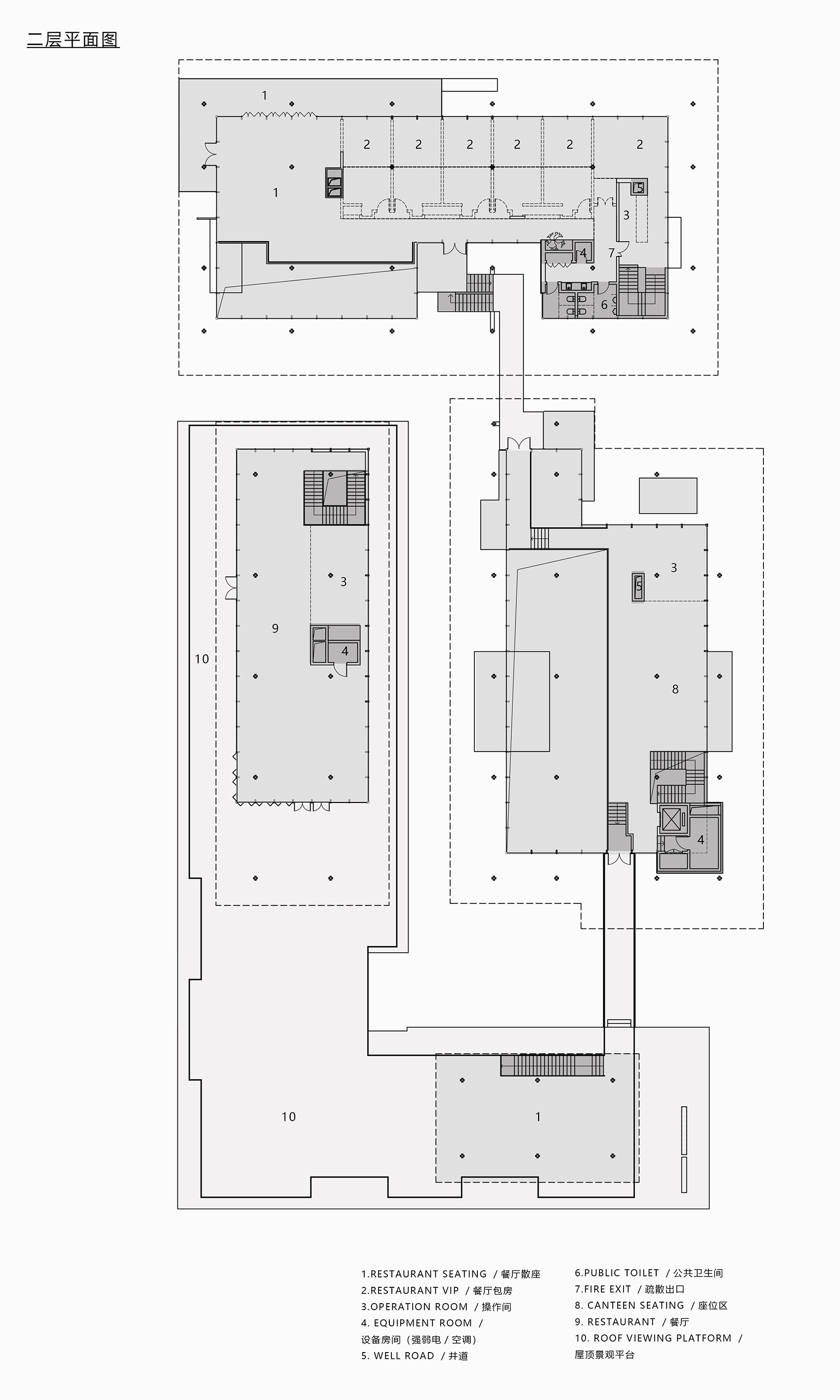
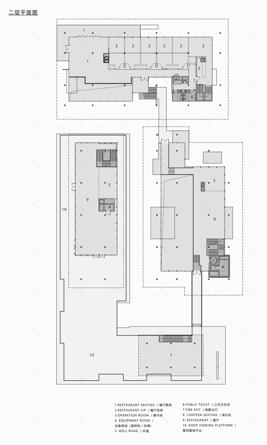
▼二层平面图,Plan 2F© a9a 建筑设计事务所
项目名称:普罗市集
项目地点:河南郑州
委托方:普罗理想国
设计类别:商业、餐饮
建筑面积:4200m²
建筑设计:a9a 建筑设计事务所
主持建筑师:李岳九
团队成员:沈欣怡、王灵毓、李坤、卞永杰
A 栋室内设计:a9a 建筑设计事务所
团队成员:余明旻、王潇、陈一、王鑫蕊
BCD 栋室内设计:合恣设计 HÉZI DESIGN
景观设计:H&A 翰祥景观设计
结构设计:栾栌构造设计事务所
品牌 VI 设计:ZS 设计中心(ZSDC)️©一筑一事
导视设计:a9a 建筑设计事务所
深化设计与施工:上海臻源木结构设计工程有限公司
照明设计:bpi、VF、成都阿特露祺照明设计有限公司
幕墙设计:郑州市金易格门窗装饰工程有限公司
机电设计:上海明申建筑设计有限公司
施工图设计:上海明申建筑设计有限公司
材料:云杉实木、钢筋混凝土、玻璃
设计周期:2021.07~2021.12
施工周期:2021.11~2022.10
项目状态:已建成
摄影:存在建筑、普罗理想国、TOPIA 图派视觉
客服
消息
收藏
下载
最近



































































































