查看完整案例

收藏

下载
一个人,一只宠物,一个“宁静的灵魂”。
One person, one animal and “peace of the soul”.
▼室内概览,overview of the project © Matej Hakár
公寓的原始平面无法满足项目的诉求。我们期望实现一种轻盈飘渺的感受,以此来安排室内空间。某种不大也不小的感觉,一侧略微冗杂而另一侧相对宽松,既要定义空间,也要模糊空间的属性。
The original scheme of the apartment did not fit the brief for this project. We wanted to arrange the interior in a way that achieves a feeling of lightness and ethereality. Something that is big and small at the same time. On one side there is a bit much, on the other a little. To define the space, but also not to.
▼从入口望向室内,view of the interior from entrance © Matej Hakár
▼新置入的半透明分隔元素,new inserted translucent element © Matej Hakár
▼一侧空间较为紧张,另一侧相对宽松,on one side there is a bit much, on the other a little © Matej Hakár
一个人应该如何在其中移动,放置什么物品,放在何处,以及如何使用它? 这个公寓会告诉使用者这无关紧要。该项目围绕着的是个体与感受。
How should one move in it, what to place where and how to use it? The apartment articulates that it does not matter. The project aims at a feeling and an individual.
▼靠墙收纳区,storage cabinet by the wall © Matej Hakár
▼餐厨区域,kitchen area © Matej Hakár
▼卧室一角望向餐厨区域,view of dinning area from bedroom corner © Matej Hakár
尽管公寓的某些局部是限定的空间,但也仅此而已。很长一段时间以来,我们一直在讨论空间及其可能性的话题。因此,我们很高兴方案只限制了很少的一部分。由于兼具理想的亲切感,公寓可以根据不同目的和需要进行任意改动。
Some parts of the apartment have its own place, but that is all. We have been discussing the topic of space and its possibilities for a long time now. We are therefore glad that also this scheme defines very little – just what is not there. The apartment is opened for any changes in its conscious use thanks to its depth of intimacy.
▼从卧室望向餐厨区域,view of kitchen area from bedroom © Matej Hakár
▼连接餐厨与浴室区域的辅助空间,auxiliary space connecting the kitchen and bathroom areas © Matej Hakár
▼浴室细部,detail of shower area © Matej Hakár
▼模糊,自由而又亲密的空间定义,vague, free and intimate defined space © Matej Hakár
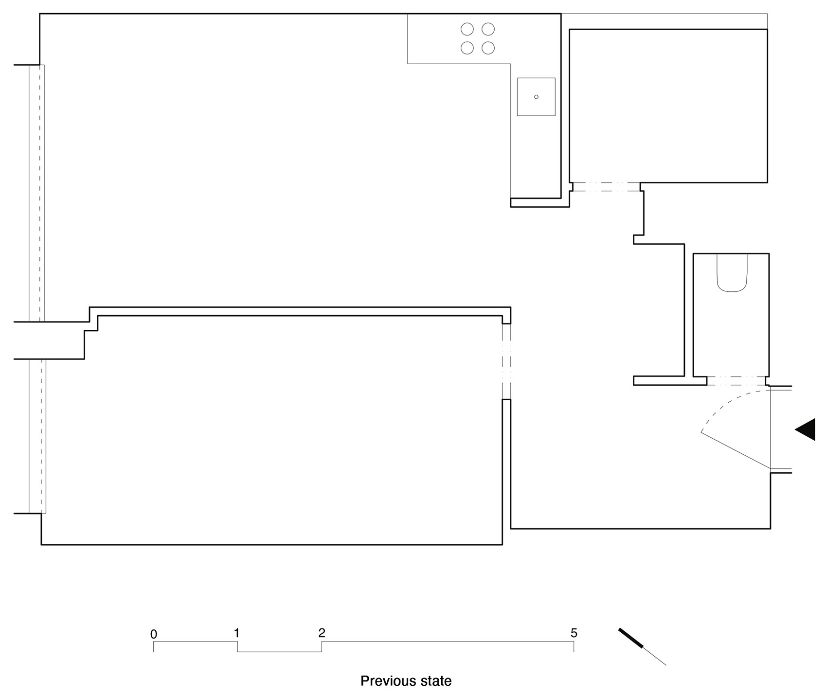
▼改造前平面,previous plan © Kilo/Honč
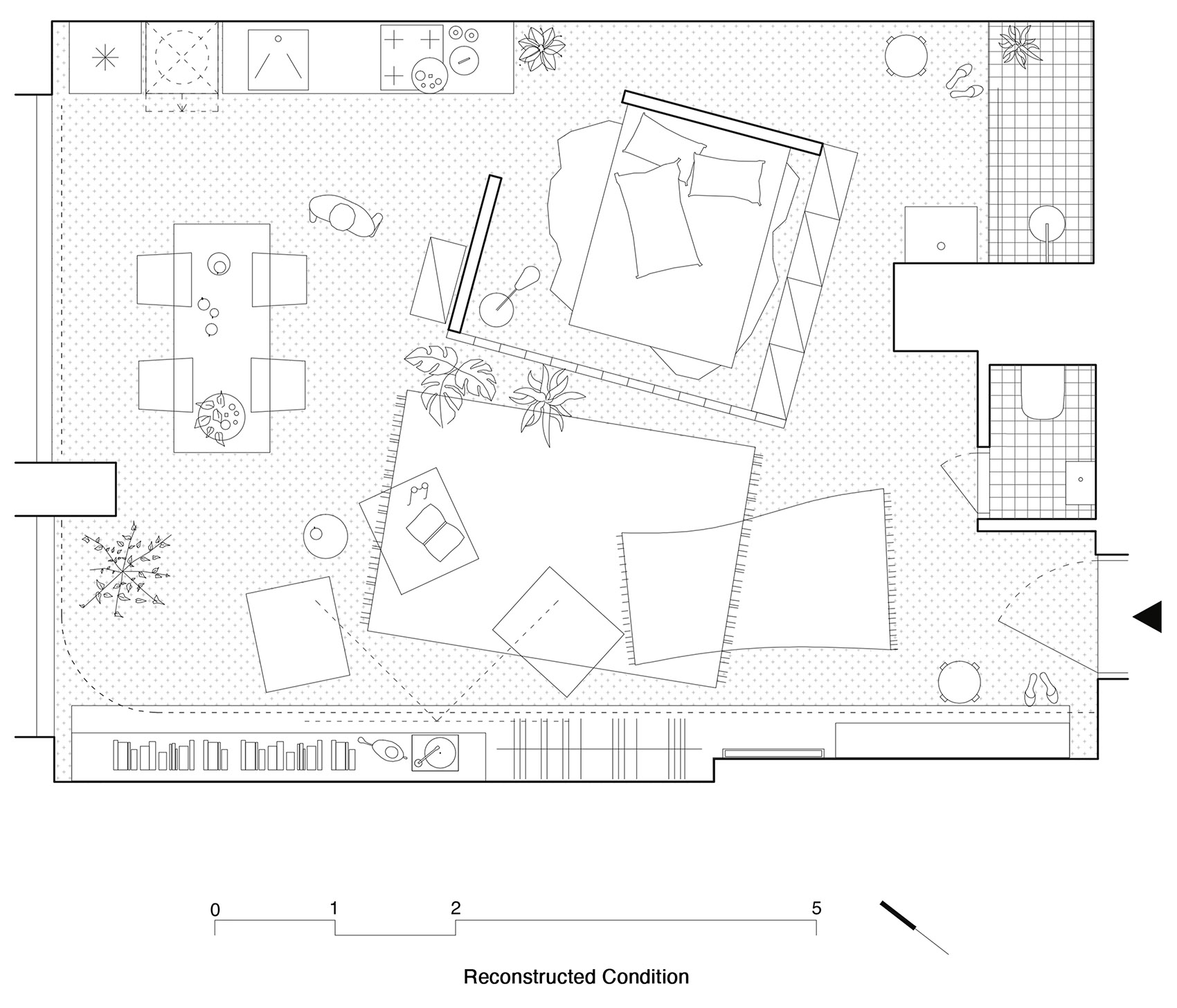
▼改造后平面,reconstructed plan © Kilo/Honč
客服
消息
收藏
下载
最近



























