查看完整案例

收藏

下载
该项目是哥斯达黎加的第一个“夯土”项目,围合建筑的所有承重墙均由挖掘出来的黏土建造。
This project is the very first “rammed earth” implementation in Costa Rica. We completely used clay soil from the excavations for the construction of all perimeter bearing walls.
▼场地鸟瞰,Aerial view©BoysPlayNice
在 Uvita 城区附近的一处海拔 300 米、面积为 1.1 万平方米的地块上,Formafatal 工作室在葱郁的丛林间打造了两座小型别墅。它们分别“悬浮”于陡峭的南向坡地,是为短期的休闲租赁而设计。每座别墅的建筑面积为 90 平方米。
▼场地平面图,Site plan© Formafatal
Near Uvita town, on a plot of 11,000 square meters at a height of 300 m above the sea, I designed two small villas on a hill overgrown with a jungle. Both villas, partly levitating above the steep southern slope, are designed for short-term recreational rentals. The built-up area of each of them is 90 m2.
▼并置的两座别墅,The two juxtaposed villas©BoysPlayNice
设计者的目标是打造具有亲生物性的可持续房屋,并通过全面细致的考量,为之赋予显著的极简主义特征——避免任何不必要的元素,同时保证功能的齐备。从建筑外观上看,薄而锐利的线条与葱郁的热带植被形成对比,同时又在色彩上与周围环境完美融合。
My intention was to design sustainable houses with biophilic interiors, which will be sophisticatedly thought-up and at the same time their shaping will be strongly minimalist and simple. No unnecessary extra element, but also nothing to miss. The architecture of villas is deliberately with its thin and sharp lines in contrast to lush tropical vegetation, but the chosen materials and colors are perfectly coinciding with the surroundings.
▼Jaspis 别墅外观,Jaspis Villa exterior view©BoysPlayNice
▼Nefrit 别墅外观,Nefrit Villa exterior view©BoysPlayNice
两座别墅具有相同的材料、楼层布局以及朝向,但在室内设计上展现出差异,尤其是色彩概念——这一点也体现在建筑的外部。建筑设计遵循了“场所精神”的原则,尽可能地利用了面向太平洋的无尽视野与地形形态。室内设计的色彩概念回应了原始场地的能量。两座别墅虽然仅相隔 12 米,其内部却包含着截然不同的氛围和情绪。
Both villas are architecturally the same. Materials, floor plan layout, or orientation towards cardinal points are also identical. However, it differs in the interior, especially by its color concept, which is partly reflected also in exteriors.
The architectural design is based on the genius loci – on the orientation of the building plot towards the endless view of the Pacific Ocean and the morphology of the terrain. The color concept of interiors responds to the energies that were perceived in the location of the villas before their construction.
Although the villas are only 12 m apart, each of them has clearly different vibrations that I reflected into the interior design.
▼悬挑的屋顶和露台,The cantilevered roof and terrace©BoysPlayNice
在抵达场地后,两座别墅在初看之下似乎毫不起眼,其侧面均被新种植的热带植物环绕。但随着脚步逐渐深入悬浮的露台,呈现在眼前的将是一片豁然开朗的海景,宽阔的主卧室还享有相连的露台和无边际水池,使别墅的内部体验完全不同于外部世界。
Upon arrival, both villas seem very inconspicuous, humble. On the sides they are lined with newly planted tropical plants. But as soon as you pass through the villa, further towards the levitating terraces, after a few steps, the view of the ocean is opening, and you will find yourself in the generous space of the main bedroom with adjacent terraces and infinity plunge pool. As if you suddenly find yourself in a different villa other than you entered.
▼夯土外墙,The rammed earth wall©BoysPlayNice
▼别墅被新种植的热带植物环绕,Thevillasare lined with newly planted tropical plantson the sides©BoysPlayNice
第一座别墅名为 Jaspis(代表明亮),它从视觉和物理空间上与海洋和天空相连,主要采用类似于沙滩的色调。
另一座别墅名为 Nefrit(代表昏暗),其设计强调了与地面和丛林的联系。色彩方案也反映了较为内敛的能量,混凝土和地面的赤陶土色将当地土壤的色调传递到房间内部。
Jaspis Villa (jaspis = jasper, bright villa) is a reflection of yin energy. It is connected to the ocean and sky, not only visually, but also its vibrations. With a color concept in sand shades, I respond to this interconnection. Nefrit Villa (nefrit = jade, dark villa) is a reflection of yang energy. In the Nefrit villa you can feel the connection with the ground and the jungle. Here, too, the chosen color concept is reaction to these energies and the red-terracotta color of the concrete floor transmits the shade of local soil to the interior of the house.
▼Jaspis 别墅,露台和泳池,Jaspis Villa – terrace and pool©BoysPlayNice
夯土墙和混凝土材料与 H 型承重钢梁搭配在一起,为一体化的混凝土天花板提供了支撑。房屋的大梁和环形梁仅从屋顶的上表面可见,其边缘围裹以钢制的 U 型单元,后者帮助实现了屋顶阁楼的功能。
The raw visual materials of rammed earth walls and concrete are complemented by the structural steel H-beams, supporting a concrete monolithic ceiling slab. The girders and ring beam of the house are visible only in the upper face of the roof, which is lined with a pair of steel “U” profiles. They also fulfill the function of the roof attic.
▼Nefrit 别墅,露台和泳池,Nefrit Villa – terrace and pool©BoysPlayNice
所有朝向开阔海景的外墙均采用无框玻璃。可滑动的部分和固定的玻璃单元均被嵌入混凝土天花板的凹槽中。按照同样的方式,还安装了室内的照明轨道、蚊帐以及床铺周围的窗帘。混凝土楼板铺设了防滑的水泥砂浆,其余的室内墙壁,以及定制的混凝土固定家具也都采用了水泥砂浆,不同之处在于其经过了磨平和哑光处理。
All facades oriented to endless views of the ocean are designed from frameless glass. The profiles of sliding and solid parts of the glass facades are recessed into the grooves in the concrete ceiling slab. In this way, the installation of interior lighting rails and the connecting rail for the mosquito net and the curtains around the bed was also applied. The concrete floor slab is covered with a non-slip structured cement screed, which is different in each villa. The remaining interior walls, including concrete custom-designed solid furniture, are also in the surface of cement screeds, but here in smooth matte finish.
▼Jaspis 别墅卧室,Jaspis Villa – sleeping area©BoysPlayNice
▼室内细节,Interior detailed view©BoysPlayNice
▼Jaspis 别墅露台,Jaspis Villa – outdoor terrace©BoysPlayNice
▼Nefrit 别墅卧室,Nefrit Villa – sleeping area©BoysPlayNice
▼室内细节,Interior detailed view©BoysPlayNice
▼Nefrit 别墅露台,Nefrit Villa – outdoor terrace©BoysPlayNice
考虑到哥斯达黎加的气候和高湿度,项目选用了尽可能耐用的材料。夯土墙的制作由项目团队与一位来自巴西的经验丰富的专家合作完成。专家自己开设的公司 Terra Compact 还派出了一位建筑师 Daniel Mantovani 对当地工匠进行了培训,由此实现了哥斯达黎加史无前例的夯土建筑。
I chose the materials as durable as possible considering the Costa Rican climate and high humidity. To realize the clay “Rammed Earth” walls, I invited an experienced specialist from Brazil, the owner of Terra Compacta company, because in Costa Rica no one had any experience with this construction method. Daniel Mantovani from Terra Compact trained several local craftsmen and together they can attribute their first place to realize Rammed Earth architecture in Costa Rica.
▼Jaspis 别墅厨房细节,Jaspis Villa – kitchen©BoysPlayNice
▼Jaspis 别墅浴室,Jaspis Villa – bathroom©BoysPlayNice
极简主义的理念同样反应在室内,除了淋浴间和洗手间设有大尺寸的滑动板之外,其余空间均未装门。一面大镜子整合了衣架墙的功能,室内家具也多为定制。厨房操作台、水槽、书架、独立床头柜以及长凳均采用混凝土打造。
Minimalist architecture is also reflected in interiors, where there is no door except for the large-format sliding panel in the section of the shower and toilet. It also fulfills the function of a hanger wall with a large mirror. The equipment of the interiors is mostly custom-made. Kitchen desk, sink, shelves, solitary bedside tables or bench are made from concrete.
▼Nefrit 别墅,卧室和厨房细节,Nefrit Villa – bedroom and kitchen©BoysPlayNice
▼Nefrit 别墅厨房,Nefrit Villa – kitchen©BoysPlayNice
一些混凝土家具单品是由建筑师专门打造,她从比利时工作室 Bram Vander-Beke 的作品中获得了灵感。其他的家具、灯具、装饰物和艺术品也都是基于原创性而精心挑选的,来自世界各地的设计师作品。
For some of the concrete solitaires, I was inspired by the work of the Belgian design studio Bram Vander-Beke. The creation of this studio is very close to me. Other furniture, luminaires, accessories and art were carefully selected with regard to originality, often directly from designers across all continents.
▼浴室和淋浴间,Bathroom and shower©BoysPlayNice
▼露台海景,View to the ocean©BoysPlayNice
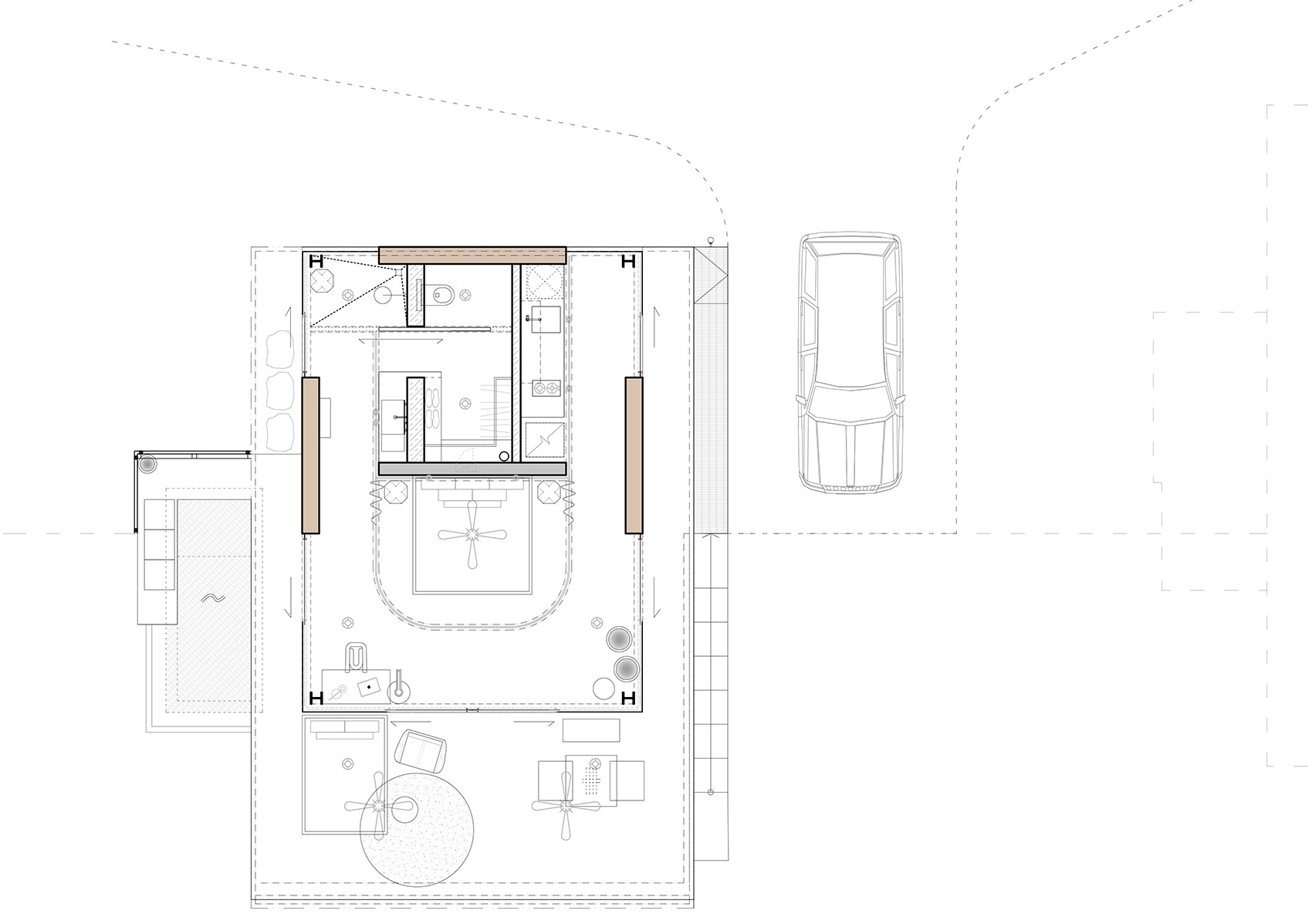
▼别墅首层平面,Villa ground floor plan© Formafatal
▼别墅西立面,Villa west elevation© Formafatal
▼别墅北立面,Villa north elevation© Formafatal
▼别墅东立面,Villa east elevation© Formafatal
▼别墅南立面,Villa south elevation© Formafatal
▼别墅室内立面 1,Villa interior elevation 01© Formafatal
▼别墅室内立面 2,Villa interior elevation 02© Formafatal
▼别墅室内立面 3,Villa interior elevation 03© Formafatal
Project location: Playa Hermosa, OSA Uvita – Bahia Ballena, Puntarenas
Project country: Costa Rica
Project year: 2019-2020
Completion year: 2022
Built-up Area: 190 m² / 95 m2 per villa
Gross Floor Area: 180 m² / 90 m2 per villa
Usable Floor Area: 180 m² / 90 m2 per villa
Plot size: 11 000 m²
客服
消息
收藏
下载
最近















































































