查看完整案例

收藏

下载
学校的更新是一个持续的事情,每次动作都要面对新的功能需求变化,还要结合现有的结构,让改造的部分不仅成为校园的一员,还要提升整体环境。我们发现这种项目特别需要创意。
APEX 科技中心机器人教室是北京乐成国际学校为培养面向新世界的人才新开设的空间。这不是一个普通教室,而是一个面向未来的地标。
△体块生成推演
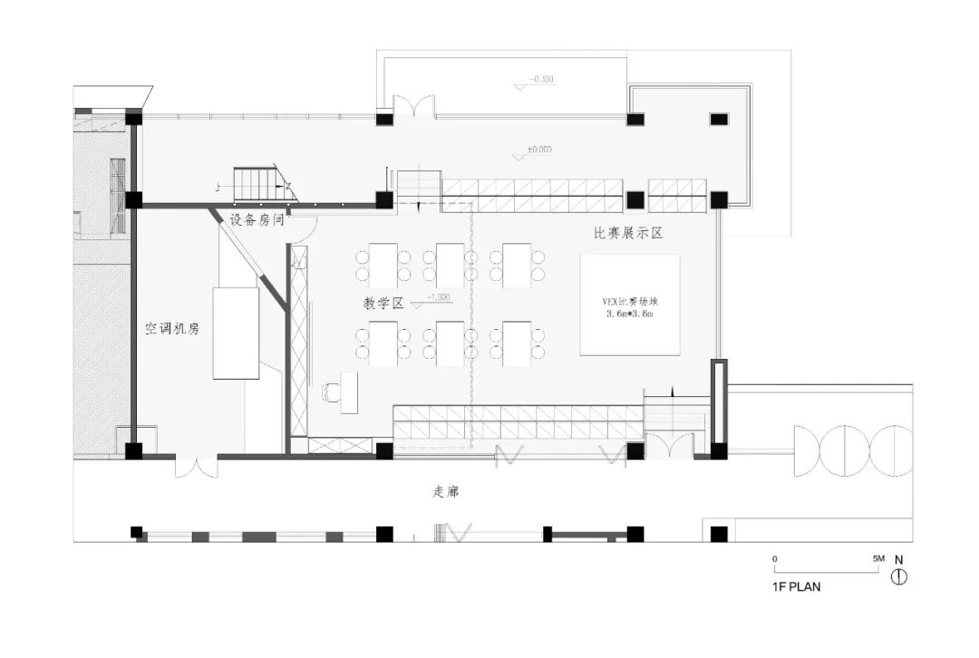
这个空间位于首层,下沉地台的周围布置了大台阶,因为大空间里将会举办机器人比赛,这样方便围观。大台阶下设置了储物的大抽屉。
二层的楼板采用钢结构吊挂,而没用柱子,这样下方的教学区空间很开敞。整个夹层用蓝色喷涂,像漂浮在大空间里的一个蓝色盒子。
转角的玻璃是渐变的红色,激活了附近的小广场,更是具有标识性。从里面看出去,色彩随着天色的变化呈现出不同的色度,很有看的乐趣。
玻璃幕墙是新做的,在转角位置没有用金属框,而是用玻璃直接搭接,显得更加通透。玻璃上方的雨棚也是新做的,做了斜切显得更轻盈。
这个空间采用了具有创意和艺术感的结构和构造,本身就是一个可给学生展示的教科书。
△ 开放的学习空间
ATD Transformed a Robotic Classroom
School renovation is a continuous challenge. There are always new functional requirements and changes. It is also necessary to respect the existing structure, so that the renovation not only becomes an integrated part of the campus, but also enhances the overall environment. This type of project requires lots of creativity in particular.
The APEX Robot Classroom is a new space opened for BCIS to cultivate talents for the new world. This is not an ordinary classroom, but a landmark for the future.
This space is on ground level. There are large steps arranged around the sunken area, as there will be robot competitions in the large space, which is convenient for onlookers. Large drawers for storage is set up under the large steps.
The 2nd floor slab adopts steel structure suspension instead of columns, making the teaching area below very spacious. The entire mezzanine is sprayed with blue paint, like a blue box floating in a large space.
The glass curtain wall is newly made, and there is no metal frame at the corner position. Instead, glass panels are directly overlapped, making it more transparent at the corner. The canopy above the glass is also newly made, with a slanted cut to appear lighter.
The glass at the corner is a gradient red, which activates the nearby small square and is even more iconic. From inside, the colors show different shades as the sky changes, which is very enjoyable to watch.
This space adopts creative and artistic structure materials and details, and is itself a textbook that can be displayed to students.
项目图纸
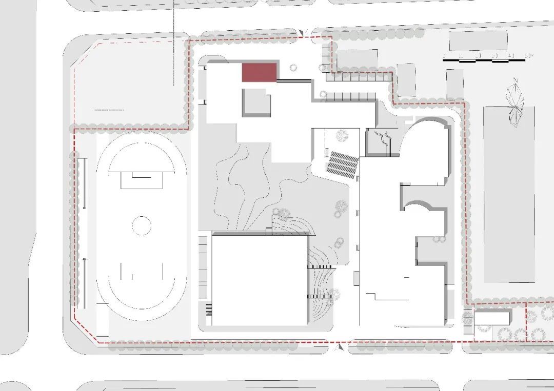
△总平面图
△ MF 平面图
△ 2F
平面图
项目名称:BCIS 乐成学校改造
客 户:北京乐成国际学校
项目地点:北京市朝阳区
项目面积:267 平米
建筑设计:ATDESIGNOFFICE 英国安托士建筑设计顾问有限公司
设计团队:范铁、李晓雪、赖演彬、刘珍珍、朱晨颖、杜汉华
施工总包:信冠永盛(北京)建筑装饰工程有限公司
家具供应商:Steelcase
摄影:Tony Fan
ATDESIGNOFFICE LTD 英国安托士建筑设计顾问有限公司是英国皇家建筑师学会(RIBA)会员企业,成立于伦敦,项目分布于英国、中国及亚太地区。ATDESIGNOFFICE LTD(英国安托士建筑设计顾问有限公司)的设计项目范围包括规划与城市设计,建筑设计,景观设计,以及大型室内设计。公司的高级合伙人皆为英国皇家注册建筑师,具有十年以上在国际著名建筑设计事务所主持重要大型设计项目的优秀工作经验,并熟悉国际及亚洲市场和项目情况。
设计董事:范铁
客服
消息
收藏
下载
最近


























