查看完整案例

收藏

下载
BSH 总部位于江南水城绍兴,它由大犬建筑设计团队设计。
é é é 建筑作为 BSH 总部的核心,其独特的形态在城市中脱颖而出。这是一座集零售空间、办公空间、餐厅、研发生产、观光体验于一体的综合性功能建筑。
BSH 品牌专注于高端羽绒寝具产品,其产品经过原料–洗净–加工–检查–充填–标签这一系列的生产过程,它完成了从原材料“鹅绒”到“寝具”产品的转变。
白色纯净的线性结构便是依照“鹅绒”的特质所建立的视觉标识。
BSH headquarters is located in Shaoxing city, it designed by the Greater Dog Architects. The main building called é é é that emerged in the city by its unique quality. é é é is a comprehensive functional building integrating retail space, office, restaurants, R&D and production, and sightseeing factory. BSH focuses on bedding products which is from high quality goose down. It finished from a series of production processes of raw materials – cleaning – processing – Inspection – filling – labeling. The white linear structure language of building is inspired by the characteristics of “goose down”.
▼项目外观,external view of the project ©孟庆伟,谢亦伦
俯视之下,基地呈三角状。大犬建筑设计团队试图打破这个棱角分明的场地轮廓,结合“鹅绒”本身具有的轻柔感,借此营造一个柔软且有温度的场所,与周遭高密度工厂楼群形成强烈的反差,也使得é é é 建筑成为整个区域内极具吸引力的场所。
The original building site is triangular. Greater Dog Architects try to break this angular site and combine the softness of goose down to design a soft looking architecture, forming a strong contrast with the surrounding where high-density factory buildings appear, which also makes é é é building a very attractive place in the whole area.
▼项目鸟瞰,aerial view of the project©孟庆伟,谢亦伦
由“工厂”和“办公”两大主要功能作为依据,形成双向动线的分流规划。工厂区入口位于建筑的西面,以最短的距离与园区主入口连接,产生高效的工作路径;内退 30 米的户外绿地很好的隔离了路面的嘈杂,形成更为独立的办公环境。并以自然绿地来引导通往建筑东南面的办公和零售区域的人流。
Two–way access is divided by main functions: factory and office. The entrance of the factory area is located in the west of the building, and it is connected with the main entrance by the shortest distance to produce an efficient working access. The outdoor space retreated inside 30 meters is far away from the noise of the main road, and it makes office environment become more independent and quite. Furthermore, the green land guide the people to the southeast of the building where is office &retail space located.
▼设计生成,design generation©大犬建筑设计
建筑外立面是室内与室外之间的界面。它往往是一个建筑最引人注意的部分,它不但保护建筑不受外部环境因素的影响,还为舒适的室内办公环境带来契机。
Facade is the interface between indoor and outdoor. It is the attractive part of a elevation. It not only protects the building from external damage, but brings opportunities for an comfortable indoor environment.
▼立面分析,facade analysis©大犬建筑设计
建筑被设计为“虚 实”两个体块,上下组合的方式。低区为实体的清水混凝土,形成厚实且稳固的建筑基座,高区使用渐变半透明玻璃与白色曲线造型铝板的幕墙系统。清水混凝土外墙做了内退设计,使得白色幕墙更加通透,并具有悬浮于空中的质地。
▼分解轴测图,exploded axonometric©大犬建筑设计
The building is designed as two parts: suspended and solid. Low area as solid concrete, forming a thick and stable building base, and the high area is curtain wall system with gradient translucent glass and white curved aluminum plate. The concrete wall is designed to be retreated, which makes the white curtain wall more transparent and suspended in the air.
▼建筑上虚下实,building designed as two parts: suspended and solid
©孟庆伟,谢亦伦
建筑师在西南面工厂区采用了雾面玻璃,视觉上规避了车间繁杂的生产状态,同时雾面玻璃的运用使得室内外的视线变得朦胧,让人忍不住好奇。在工厂区,位于建筑的中心体块被抽离,工厂内部空间也随之围绕中庭展开,从而创造了一个沐浴在自然天光下的生产空间。
In the southwest factory area, the architect applied foggy glass, which visually avoids the chaos inside. At the same time, foggy glass makes the indoor and outdoor vision become hazy, which makes people curious. Inside of the factory area, the central block is removed, so that the producing machines are around the atrium, creating a factory under the sky light for workers.
▼雾面玻璃立面模糊室内外视线,foggy glass facade blurring the vision between the indoor and outdoor spaces©孟庆伟,谢亦伦
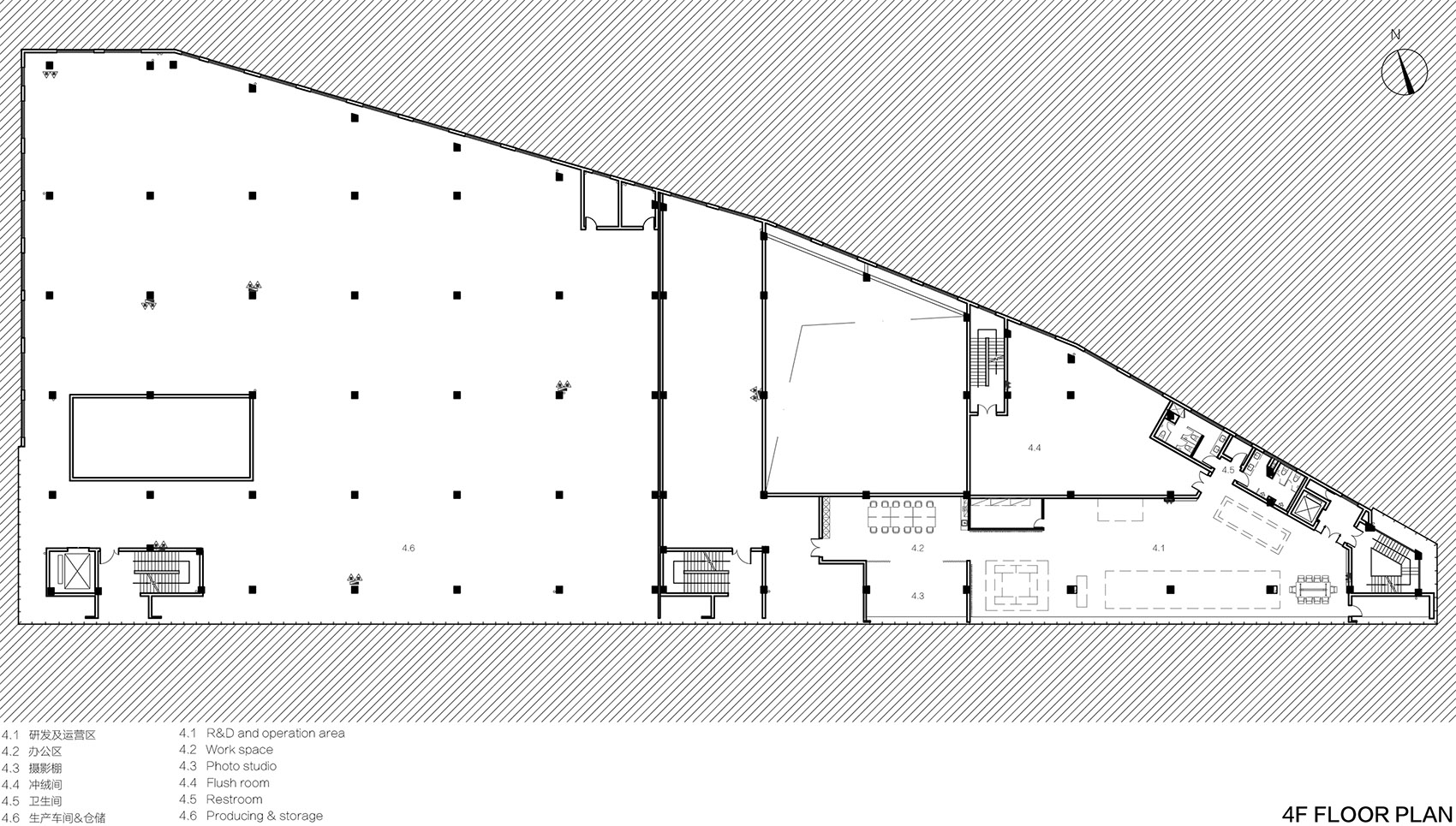
建筑的东南面区域,由一层至六层的室内空间分布了不同功能的场所:零售空间,办公空间,餐厅。
在相应的立面上,建筑师采用了渐变半透明玻璃和透明玻璃两种材料,用来满足不同室内功能对幕墙采光的需求。
同时,这两种材料也带来了由朦胧渐变的质地走向高透明视觉变化。
In the southeast area of the building, there are multi-function of interior space: retail, office and restaurant. The architect applied two kinds of glass on facade, gradual translucent glass and transparent glass, to meet the needs of different sunshine demand of interior functions. Meanwhile, it brings a changing visual from hazy to high transparency gradually.
▼不同的玻璃材质满足不同功能需求,use translucent and transparent glass to meet different functional requirements©孟庆伟,谢亦伦
建筑师在南面三层的位置,设计了连接在工厂区与办公区的外挑连廊,该连廊以半户外的表现形式,悬浮在建筑外立面上,为办公区与工厂区提供了更为便利的交通动线,也为使用者创造了真正的协作空间。同时户外连廊在穿梭于白色玻璃幕墙与清水混凝土两种差异感的材质下,带来视觉上的平衡感。幕墙的白色铝板支撑结构在此处随着曲线的高低起伏,清晰可见。
The architect designed the external corridor connecting factory and office area on the third floor. The corridor is suspended on the facade in the form of semi outdoor, which provides more convenient traffic flow for two main areas, and creates a co-work space for people to communicate.
Meanwhile, the external corridor brings balance between two different materials: white glass curtain wall and concrete.
The supporting structure of curved aluminum plate is clearly with the rise and fall rhythm in the corridor.
▼外挑连廊,external corridor
©孟庆伟,谢亦伦
曲线铝板成为建筑最主要的特征,既强调了白色线性的自由形态,又呈现出了由曲线出发而形成的潜在律动感。运用数字算法的动态切割方式,看似简单,却展示了建筑表皮无限可能的律动关系。
Curved aluminum plate has become the main feature of architecture, both emphasizing the freedom of white linear form, and presenting the potential rhythm by the curve. It seems simple to use the dynamic cutting method, but it shows the infinite possible rhythm of building skin.
▼白色曲线铝板,curved aluminum plate in white color©孟庆伟,谢亦伦
除此之外,它与光也形成了对话:白天,玻璃映射着周围树木、建筑、河流的轮廓的同时,曲线铝板随着太阳光照的投射,产生永不停息的变化,形成了一个富有光影节奏的外立面,而不是处在一种静止孤立的组合中。
In addition, it also forms a dialogue with light: during the day, while the glass reflects the outline of the surrounding trees, buildings and rivers, the curved aluminum plate changes constantly with the projection of sunlight, forming a rich rhythm of light and shadow on the facade, rather than being in a static and isolated combination.
▼玻璃映射周边环境,glass reflecting the surrounding environment
©孟庆伟,谢亦伦
洁白的鹅绒便是以如此诗意的方式,行于微风的缓慢气流中,停落在建筑上。建筑开窗位置也得到了精准的考量,以消失于幕墙的语汇中实现了对应在不同室内空间中需要的位置。
The “white goose down” is in such a poetic way, walking in the gentle breeze, perched on the building.
The window opening position has also been accurately considered. By integrating the window opening method in the form of curtain wall, the corresponding positions in different interior spaces have been realized.
▼沐浴在自然光下的室内空间,interior space with natural light pouring in
©孟庆伟,谢亦伦
▼生产空间,production space
©孟庆伟,谢亦伦
观光工厂和零售空间是两个完全不同的设计类型,两者在体验需求上也存在一定的差异性。如何在一座建筑中满足不同空间类型的功能需求,以及建立动线的紧密联系:如工厂与观光动线的连接;观光通道与零售空间的互通;以及零售与办公大堂的共享性。是大犬建筑设计团队在本项目中面临的一个挑战。
Tourism factory and retail space are two completely different spatial design types, and there is a certain different requirements from them. How to meet the functional requirements of two spaces and establish a close connection of circulation: such as the connection between factories and sightseeing routes; the connection between sightseeing and retail spaces; and the sharing space to connect retail and office lobby. These are one of the challenges faced by Greater Dog Architects design team.
▼工厂生产流程图
production flow chart ©大犬建筑设计
置入与连结 Insertion and Connection
工厂具备生产效力的同时满足参观者的好奇心,把主体功能“观光工厂”置入于生产空间内,设计师构建了一个具备“台前”和“幕后”属性的工厂。
为此,设计师在其建筑的西南入口设置了参观者的观光通道动线,在一层与二层的室内空间中,构建一个既是工厂又是一个具有可读性的展厅。
The tourist factory satisfies the curiosity of visitors while possessing production effectiveness. A main function of tourist factory is placed in the production space, and the designer built a factory with “front of the stage” and “behind the scenes” language. Therefore, the designer set up a sightseeing channel for visitors at the southwest entrance of the building, and created a readable exhibition hall inside the factory on the first and second floors.
▼一层展厅,1F – Display area
©孟庆伟、谢亦伦、吴若铮
▼一层展览走廊,1F –Goose knowledge display ©孟庆伟、谢亦伦、吴若铮
观光通道沿用了建筑中“绒”的轻柔特质。配色基调明亮洁净的空间,给人的感觉更像是步入了一间具有趣味感的实验室。从充绒机器中找到圆管结构,将环形半透明的充绒管道运用于展示中。同时,半透明的充绒管道也充分的运用在墙体的分割以及不同种类的“绒”陈列体系中。通过比例的放大与排列组合,形成了走道与空间的分割,实现“绒”陈列的多样性。
The sightseeing channel follows the softness of the “Down” in the building. The bright and clean space gives visitor the feeling of stepping into a laboratory with a sense of interest.
The round pipe structure was found from the Filling Machine, so the designer apply the translucent pipe in the way of display. Meanwhile, it is also used in the division of two spaces and display systems of various types of “down”.
Moreover, the stair hall and display space are formed through the combination of enlarged pipes to realize the diversity of pipe elements which originally from machines.
▼观光通道沿用了建筑中“绒”的轻柔特质,the sightseeing channel follows the softness of the “Down” in the building©孟庆伟、谢亦伦、吴若铮
▼细部,details ©孟庆伟、谢亦伦、吴若铮
由绿色亚克力管道引导至二楼的空间,通过三维模型的讲解,展示其专业化的流程。紧邻工厂的一侧,藏匿在“幕后”的生产流程转至“台前”。设计师将工厂区域打开,透明玻璃的运用将运行中的机器展露无遗。直观的展示了它的工业环境和不同设备带来的功能性。并借助标示标牌的引导,清晰的标示每套机器对应的生产流程。
The translucent green acrylic pipe leads to the space on the second floor. The professional process is displayed through the explanation of the three-dimensional model on wall. Adjacent to the side of the factory, the production process hidden in the “behind the scenes” is transferred to the “front of the stage”. The designer open the factory area by transparent glasses, so that a process of each machine is able to see. It directly shows industrial environment and the functionality of each. And they are clearly marked through signage board.
▼二层展览空间
the space on the second floor
©孟庆伟、谢亦伦、吴若铮
▼绿色亚克力管道成为空间线索,the translucent green acrylic pipe leads the tour©孟庆伟、谢亦伦、吴若铮
具有流动感的展台贯穿整个观光通道的空间,亚克力罐中盛满了不同种类的绒,参观者可通过“触摸”“闻”“看”等多感官的体验方式对其进行体验。
设计师将拆解的机器零件,有序的展示在绿色廊道中。工业技术的精美通过功能性的机器物件,直观的呈现零件与性能,生产与技术之间的联系。
鹅的标本展示,被置入于透明玻璃中,具有动态感的异形发光亚克力,轻盈且生动的模拟了鹅的栖息之所。
A display platform with a sense of flow runs through the entire space, and acrylic cans are filled with different kinds of down. Visitors can experience it through multi-sensory experience methods such as “touching”, “smelling” and “seeing”. The designer orderly displays the disassembled machine components in the corridor, making people walk through. The exquisite of industrial technology presents the connection between components and performance, production and technology. The specimen of the goose is placed in a scene of transparent display box, and the dynamic luminescent acrylic lightly and vividly simulates the habitat of the goose.
▼二层展览通道,display corridor on the second floor©孟庆伟、谢亦伦、吴若铮
▼具有流动感的展台贯穿整个观光通道的空间,adisplay platform with a sense of flow runs through the entire space©孟庆伟、谢亦伦、吴若铮
▼二层展览通道细部,details of the display corridor on the second floor©孟庆伟、谢亦伦、吴若铮
▼绿色亚克力管道细部,details of the green acrylic pipe©孟庆伟、谢亦伦、吴若铮
▼置入于透明玻璃中的鹅标本,the specimen of the goose is placed in a scene of transparent display box©孟庆伟、谢亦伦、吴若铮
▼鹅标本细部,details of the goose specimen©孟庆伟、谢亦伦、吴若铮
最远与最近 The Furthest and The Nearest
工厂作为离消费者最远的生产流程,相对而言,零售拉近了品牌与消费者的距离。BSH 品牌将“最远”与“最近”建立了最直接的桥梁,融合社交型的零售空间,沉浸式观光体验。向消费者体现其制作工艺的真实性,将制造与知识融合,激活厂区的活力。同时,观光工厂与零售空间的无缝衔接,打开了工厂公共性属性与零售空间的流量值。
Factory as the furthest production process from consumers, in contrast, retail has brought brands closer to consumers. The BSH brand has established the bridge between “furthest” and “nearest”, integrating social retail space and immersive sightseeing experience. To present the actual production process to consumers, integrates manufacturing and knowledge, as well as activates the vitality of the factory. Meanwhile, the seamless connection opens the publicity of the factory and customer flow of the retail space.
▼零售区,retail area
©孟庆伟、谢亦伦、吴若铮
白色渐变玻璃延续了建筑的主要材质,由观光通道通向一层与二层零售区的楼梯,通过多重方向的楼梯结构带来不同空间以及上下层的动线串联。在 BSH 品牌的羽绒家纺零售区,陈列区中心置入一个可旋转的胶囊盒,前后通透的渐变玻璃可视面,动态的展示收藏级的产品。悬浮于半空中的圆形陈列柜,配合寝具的实景展示,形成系列产品的立体展示系统,给开放的展区带来陈列节奏的变换。被填满鹅绒的亚克力绒箱与古铜金属展架的结合,为陈列道具系统增加质感的同时延续其产品的属性。
The white gradient glass continues the main feature of building. Another staircase leading from the tourism factory to retail, it brings different circulation of the upper and lower floors through the multi-directional staircase.
A rotatable capsule display box is placed in the center of retail area, with gradient transparent glass vision to dynamically display collection-level products. The suspended round cabinet together with the scene of bedding, forms a three-dimensional display system for the series of bedding products, which brings a change of display rhythm to space.
The combination of the acrylic box filled with goose down and the copper-colored metal display shelf adds texture to the display props system while continuing its product identity.
▼填满鹅绒的亚克力绒箱与古铜金属展架的结合,combination of the acrylic box filled with goose down and the copper-colored metal display shelf ©孟庆伟、谢亦伦、吴若铮
▼零售区细部,details of the retail area©孟庆伟、谢亦伦、吴若铮
开放性
Opening up
由零售区眺望至一层中心位置为接待区域。设计师打破零售区与一层空间之间的楼板,构建弧形的高挑空空间,充分延展立面高度比例,使接待入口更具张力的呈现在参观者面前。接待台从形体上融入立面造型中,弱化其体块感,使大堂空间更为整体。内嵌在墙面上的胶囊造型的玻璃体,透明且具有悬空感。设计师借助标本为空间增添童趣,同时它也成为了品牌的 IP 记忆点。
Looking from the retail area to the center of the first floor is office lobby area. The designer breaks the floor slab between the upper retail area and the lower floor, to create an arc-shaped high space, fully extends the height proportion of lobby, and presents more tension in the entrance space. The shape of the reception desk is integrated into the whole elevation, weakening its sense of block and making the lobby more integrated. The capsule-shaped glass inserted in the wall is transparent and suspended. With the help of specimens to add childlike interest to the space, and it has also become the memory of the brand IP.
▼接待区域,lobby
©孟庆伟、谢亦伦、吴若铮
▼弧形的高挑空空间,arc-shaped high space ©孟庆伟、谢亦伦、吴若铮
▼大堂细部,detail of the lobby©孟庆伟、谢亦伦、吴若铮
体验型经济俨然成为商业的主流,由此,旗舰工厂的演变也成为公众展示品牌更高生产技术的场所。因此工厂在展现品牌价值观方面所扮演的角色正变得与办公场所或零售空间同等重要。它在解决生产问题的同时,其潜在的吸引力为消费者带来更多重的体验。
Experiential space has become the mainstream of commercial field. Therefore, the emerging flagship factory has also become a place to tell the higher production technology method of brand to public. As a result, factories are becoming as important a representation of brand values as office or retail spaces. While it solves the productivity, it brings more experiences to consumers potentially.
▼细部,details
©孟庆伟、谢亦伦、吴若铮
富有节奏的建筑幕墙随着夜幕降临,由动态转为静态,光带清晰地勾勒出了白色曲线铝板的轮廓,柔软地停留在建筑体上,犹如雕塑般。
With the coming of night, the rhythmic curtain wall changes from dynamic to static. The LED light clearly outlines the white curved aluminum plate, and stays on the building as soft as a sculpture in the night.
▼夜景,night view
©孟庆伟,谢亦伦
▼基地平面图,site plan©大犬建筑设计
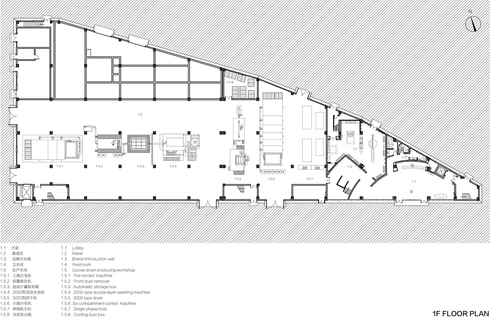
▼一层平面图,first floor plan©大犬建筑设计
▼二层平面图,second floor plan
©大犬建筑设计
▼三层平面图,third floor plan©大犬建筑设计
▼立面图,elevation
©大犬建筑设计
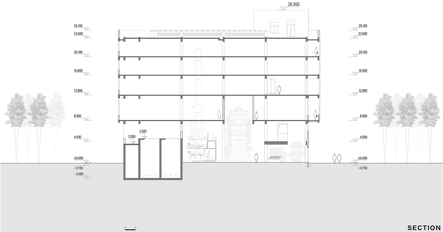
▼剖面图,section©大犬建筑设计
▼细部,details ©大犬建筑设计
客服
消息
收藏
下载
最近














































































