查看完整案例

收藏

下载
Design Around:从宏观的角度来说,我们身边所有的事物都与设计有关,很多刹那间的灵感也都来源于生活中,人类围绕着设计所引发的那些思考与解答,其最终目的是让我们的生活变的更好。
Design Around: from a macro perspective,all things around us are related to design, and those moments of inspirationalso come from life. The ultimate purpose of human thinking and solutionsaround design is to make our life better.
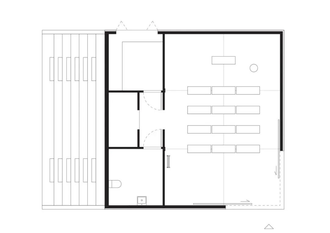
UP4 Studio与Viterstedt Arkitektur联手设计的微型教堂在丹麦哥本哈根市,该建筑主要采用聚碳酸酯和木材作为建筑材料。预算设定为500,000欧元,建筑规模为85平方米,每平方米的成本为5.882,35欧元。
The micro-church designed by UP4 Studio and Viterstedt Arkitektur is located in Copenhagen, Denmark. The building mainly uses polycarbonate and wood as building materials. The budget is set at 500,000 euros, with a construction size of 85 square meters and a cost per square meter of 5.882,35 euros.
小巧的教堂有着潜力成为社区的焦点与活动核心。作为新开发项目的重要部分,设计以尽量减少对周围环境的干扰为目标。
The small church has the
potential to become the focus and activity core of the community. As an important part of the new development project, the design aims to minimize the disturbance to the surrounding environment.
其结构巧妙地结合了轻盈的木构造与聚碳酸酯表面,使得建筑在运输与组装时更为便捷。
The structure skillfully combines light wood construction with polycarbonate surfaces, making the building more convenient for transportation and asse
mbly.
教堂的主要空间
灵活多变,既可作为神圣的礼拜场所,也能转化为非宗教用途,如共享晚餐或瑜伽课程。
这种设计
理念意在激发社区的凝聚力与活力,为大众提供一个共同分享、温馨如家的空间。
The main space of the church is flexible and can be used as a sacred place of worship, as well as for non-religious purposes such as shared dinners or yoga classes. This design concept aims to stimulate community cohesion and vitality, providing a shared, welcoming space for the public.
在场地周围,集装箱展现了独特的工业模块化特质,其体积巧妙地由堆叠的方形和三角形构成。半透明的外立面设计巧妙地利用日光,使室内空间在白天得到充分的照明,从而实现节能减排。
Around the site, the containers exhibit a unique industrial modular characteristic, with their volume cleverly composed of stacked squares and triangles. The translucent facade design cleverly utilizes daylight, allowing the indoor space to be fully illuminated during the day, thus achieving energy conservation and emission reduction.
一楼的墙壁选用木材作为覆盖材料,为室内空间营造出宁静而沉思的氛围。夜幕降临,这座建筑如同一盏明亮的灯笼,为周边区域带来安全感与方向指引,成为一处迷人的地标。
The walls on the first floor are covered with wood, creating a tranquil and contemplative atmosphere for the indoor space. At nightfall, the building is like a bright lantern, bringing a sense of security and direction to the surrounding area and becoming a charming landmark.
本文章由SYStudio翻译,
By
UP4 Studio
,
Viterstedt Arkitektur
,This information comes from the internet and Architect News, Notice of infringement deletion.
客服
消息
收藏
下载
最近












