查看完整案例

收藏

下载
项目旨在更好地推进Meerstad地区与蓬勃发展的格罗宁根市之间的关系,并为该地区打造一个具有互动功能的社交空间,房地产开发商MWPO委托De Zwarte Hond团队为此处设计了一个多功能、包容性的核心建筑。
Inspired by the mission to better connect the burgeoning Groningen district, and to transform it into an interactive social space, De Zwarte Hond was commissioned by real estate developer MWPO to design a multifunctional and adaptive central building for the neighbourhood.
▼项目概览,Overview ©Ronald Tilleman
绿色心脏的中心
Centre in a Green Heart
Meerstad是格罗宁根市的一个新兴地区,因拥有开阔的地貌、丰富绿植和沃尔德迈尔休闲湖而广受欢迎,在未来的几十年里,MWPO计划在该地区建造一个拥有5000套新住宅的活力城区。考虑到未来的扩张,以及满足居民购物、聚会和用餐等需求,业主方期望在此处打造一个富有吸引力的社区中心,因此,特别委托De Zwarte Hond团队在以可持续性和生活质量为核心的前提下,设计了这座引人注目的SuperHub中心。
Meerstad is an up-and-coming district of Groningen. The area is popular for its open space, greenery, and the Woldmeer recreational lake, around which a neighbourhood with 5,000 new homes will be built in the coming decades. Eventually, the area will grow into a vivid city district. With this future expansion in mind, it is important for the neighbourhood to contain an inviting community centre, which will serve as a place for residents to shop, gather, and eat. De Zwarte Hond’s eye-catching SuperHub embodies this central function, while embracing sustainability and quality of life as central design values.
▼项目外观,Exterior ©Ronald Tilleman
现代市集大厅
Modern Market Hall
SuperHub社区中心作为传统市集大厅设计的创新演绎。宽敞透亮的圆形外观,以及全部由十字形层压木柱和横梁组成的支撑结构,使其拥有如大教堂般的外观。而建筑的大跨度和9米高的天花板,不仅为室内创造了一个特别明亮的空间,同时也为未来灵活的布局以及用途调整提供了机会。这座延伸超过五米的大天篷不仅可为空间提供防晒,在优雅的柱结构和网状木桁架的作用下,使建筑自然融入周围绿植环绕的环境。结构中精心设计的交叉形式在确保无需额外抗风系统的情况下,为建筑提供了良好的稳定性;而木质结构的选择也为气候带来积极影响。
The SuperHub represents a revitalized circular version of the traditional market hall design. It is expansive and transparent, with a supporting structure made entirely of cross-shaped laminated wooden columns and beams, providing the building with a cathedral-like appearance. The large span and nine-metre ceiling height create an exceptionally luminous space and offer the opportunity for flexible layout and usage adaptations in the future. The large canopy, which extends out more than five metres, provides sun protection and draws the structure into its green surroundings with the use of elegant columns and net-like wooden trusses. Additionally, cleverly designed cross forms provide the building with stability, ensuring that no additional wind bracing infrastructure is required. The choice of wooden construction also ensures a positive climate impact.
▼不同视角的建筑外观,Different perspectives of the exterior ©Ronald Tilleman
生态性和可持续性
Ecological and Sustainable
SuperHub是一个由市集和购物中心组成的现代综合体,游客既可以在这里购物,也可以在时尚的咖啡馆驻足停歇。其中,经久耐用的建筑结构,为未来的调整或增建提供了更多可能性。而灵活、开放的布局使其可以随着社会需求的变化而改变,这也意味着它在未来不会因为过时而被拆除。20年后,这座建筑或将容纳包含社区中心、博物馆又或是住宅等新功能。在这种情况下,SuperHub也向众人展示了自身可随着Meerstad地区发展而发展的适应力,最终成为一个经得起未来考验的社区中心。
SuperHub is a modern symbiosis of a marketplace and shopping centre, where visitors can do their shopping and visit a trendy café. In addition, the structure was built to last and offers the possibility for future adjustments or additions. The flexible, open layout allows for its functions to be reinvented along with the changing needs of the community, meaning that it will not become outdated or be demolished in the future. The building could, for example, accommodate a community centre, a museum, or even homes in 20 years’ time. In this way, SuperHub manifests itself as a future-proof community hub that will grow along with the development of Meerstad.
▼外立面,Facade ©Ronald Tilleman
SuperHub的屋顶已预留用于放置太阳能电池板和蜜蜂及昆虫所需的植物区域。内置的空气处理装置,以及地暖和冷气储存,为室内空间提供了最佳温度,同时减少能源消耗。而且,该结构的设计还能减弱与承受格罗宁根地区的震感。此外,SuperHub的灵活布局使其能够满足一系列如社区聚会等功能和活动的需求。
The roof of the SuperHub has been reserved for the placement of solar panels and plants for bees and insects. The built-in air treatment installation, as well as the heat and cold ground storage, ensure an optimal and energy-efficient indoor climate. Furthermore, the structure is also designed in such a way that it can absorb and withstand the vibrations of Groningen earthquakes. Additionally, the SuperHub’s flexible design allows it to fulfill a wide array of functions and activities, such as community gatherings.
▼由柱结构和网状木桁架组成的支撑结构 ©Ronald Tilleman
A supporting structure made of the columns and net-like wooden trusses
▼交叉形式为建筑提供了良好的稳定性 ©Ronald Tilleman
Cross forms provide the building with stability
▼交叉结构近景,Detailed view of the cross form ©Ronald Tilleman
多样化和多功能
Varied and Multifunctional
SuperHub为Meerstad社区提供了多种功能需求,目前内部包含一个超市和一间咖啡馆。除了作为居民食物供应的来源,这座开放宽敞的建筑还可以作为一处大众聚会的场所。设计团队的目标是希望打造一场个性化与社交化兼具的购物体验,同时为居民提供耳目一新的选择,以取代日益流行的快递服务。而该建筑令人印象深刻的空间品质对于实现其作为一个具有吸引力和多功能社区中心的目标至关重要。在这个基础上,超市不仅成为了一个日常采买的场所,也是一个促进社会大众相互交流的媒介,进而有助于发展Meerstad社区的社会可持续性。
▼室内咖啡馆,Cafe inside the building ©Ronald Tilleman
▼超市内景,Arrangement of the supermarket ©Ronald Zijlstra
SuperHub offers the Meerstad neighbourhood an opportunity for varied functionality, and currently includes a supermarket and a café. In addition to its function as a source of food provision, the open and spacious building functions as a meeting place for residents. Our aim was to make the shopping experience personal and social once again, and to offer residents a refreshing alternative to increasingly popular express delivery services. The impressive spatial qualities of the structure are essential here in fulfilling its purpose as an attractive and multifunctional community centre. Accordingly, the supermarket becomes a place for the purchase of everyday groceries, but also a way to meet each other, thereby contributing to the social sustainability of the Meerstad neighbourhood.
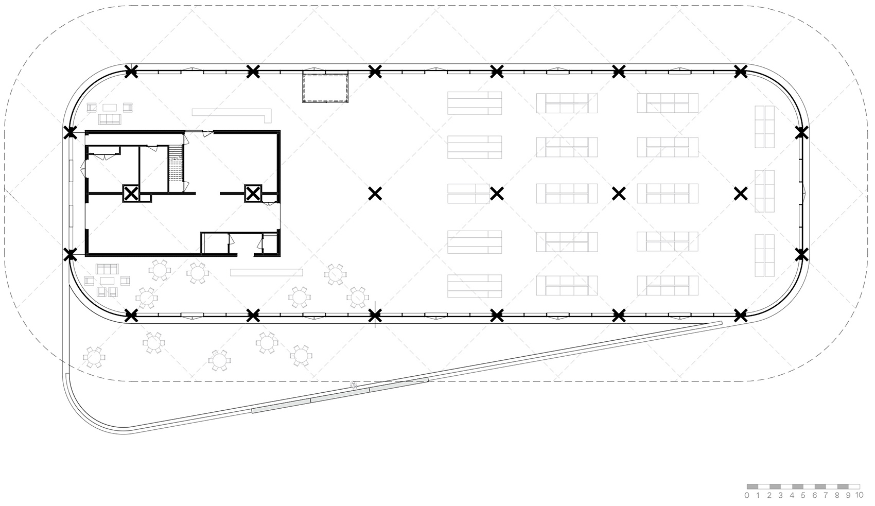
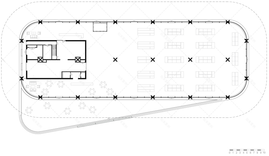
▼项目平面图,Plan ©De Zwarte Hond
▼剖面1,Section 1 ©De Zwarte Hond
▼剖面2,Section 2 ©De Zwarte Hond
▼剖面3,Section 3 ©De Zwarte Hond
Collaborators:MWPO,Brands Bouw B.V.,Maripaan Groep,Jumbo Supermarkten,Bureau Meerstad,Pieters Bouwtechniek,DGMR
Photo credit: Ronald Tilleman, Ronald Zijlstra
客服
消息
收藏
下载
最近

















