查看完整案例

收藏

下载
普利策别墅
▲普利策设计 何思玮 & 梁穗明
Ping Xiang INTER CITY SPACE
空间的真理性是时间——黑格尔
The truth of space is time.
理性的感性之美 |Reason shows the beauty of sensibility
人天生具有秩序的生物机能,艺术的抽象力量形成生活的有机秩序,创造出理性之美,设计对材料本性的终极诉求,流淌溢出感性之美。
线条-秩序-理性
客厅注重开敞的空间尺度与自由的空间布局,摈弃了厚重的墙体,利用镜面与柱体灵活定义空间。
色彩-温质-感性
淡愫的材料及色调使整个空间呈现纯粹的温质,不同的色彩建立了空间的不同层次,划分了空间中的情绪。人的内在知觉被融合在空间构造、光纤和材料的秩序中,理性的感性之美让时间可被触摸。
|
自然的传情
Space is the habitation of emotion
空间并非填充物体的容器,而是我们情感的居所。
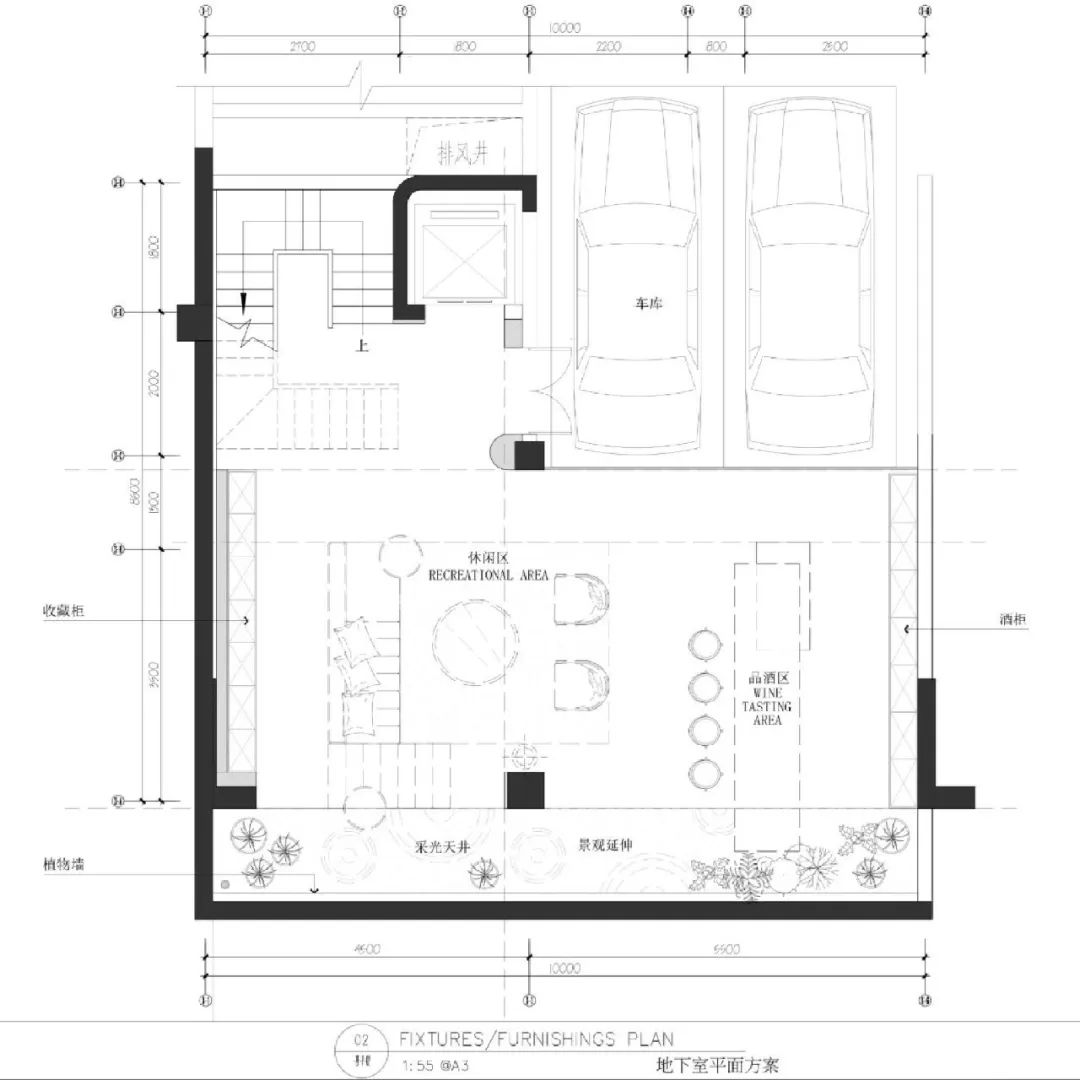
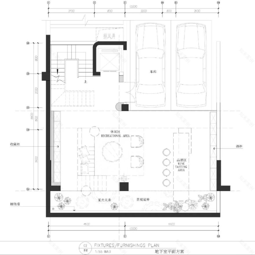
负一层作为一个相对自由定义的空间,最是能承载一家人记忆与情绪的场所。它不仅是家庭成员之间的横向连结,更是通向彼此生命流动中的纵向连结。
这应该是一个感知自我与时间流动的场所,设计巧妙地将休闲区与室外通过大面积玻璃与天窗连结,将绿植与阳光融入室内一隅,唤醒人们对于四季循环、抽象时间的遐想,重新活跃了人们繁忙的生活里凝滞的时间感知。
自然光线对空间进行分割,进而也分割了空间中的故事:一家人的天伦之乐、与朋友们的欢乐聚会,孩子们奔跑嬉闹、大人品酒聊天,时间锁定的每一次决定性的瞬间,都是空间的自我演绎。
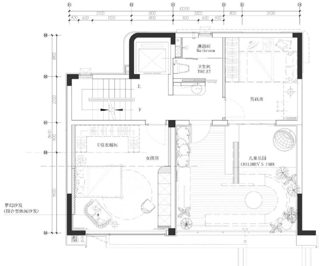
亲子乐园 Romantic childhood has the power to heal a lifetime
浪漫的童年治愈一生的力量
二层的阳台由男孩房延伸出来,为孩子打造了一个家庭版乐园。如童话般美好的乐园,是孩子独属于这个家的归属印记,更将是治愈一生的力量。
上下铺的设计,下铺的“洞穴”小空间以及攀岩墙壁,满足了小男孩活泼好动的天性,更为整个空间增添了无限的趣味性。
女孩房选择了浪漫轻松的粉色为主调,蓬松柔软的线条与圆润可爱的家具,为孩子编制出了温馨浪漫的童话氛围感。
|
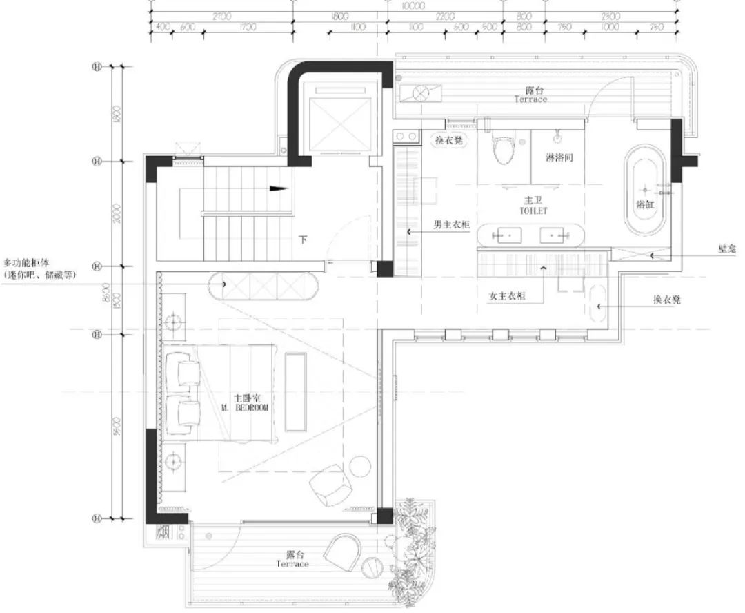
主卧 The elasticity and rhythm of space 空间的弹性与韵律
主卧采用开放式布局,形式服从功能,卫生间与衣帽间与之形成一体。在延续了整体空间的秩序之外,轻柔优雅的软装材质的选择,让整体空间流畅而舒展、富有弹性与韵律。
大片绿翡翠石材的使用,在秩序中形成跃动之感。
| 长辈房
Quiet precipitation time
雅静中沉淀时光
设计方案
普利策别墅
普利策别墅
平面图
一层平面布置图
二层平面布置图
三层平面布置图
项目地址|江西萍乡
项目面积|206㎡
项目业主|绿地江西事业部 萍乡公司
甲方团队|王钧、宋德亮、关炎炎
硬装设计|PONE 普利策装饰设计有限公司
软装设计|PONE 普利策装饰设计有限公司
竣工时间|2021 年 12 月
摄影团队|不二山人空间影像事务所
PONE 普利策最全合集丨 35 套丨 20G
客服
消息
收藏
下载
最近





































































