查看完整案例

收藏

下载
Bizkaia 大楼位于毕尔巴鄂 Gran Vía 大街 1 号,是一座完工于 1969 年的建筑。大楼最初是毕尔巴鄂比斯卡亚银行的办公总部,建筑面积为 30400 平方米,包括三个地下楼层和 22 个地上楼层,总高度接近 90 米。
The Bizkaia tower, located at number 1 Gran Vía street in Bilbao, is a building whose construction ended in 1969. It was originally intended for office use, housing the headquarters of the Bilbao Vizcaya bank. The building has an area of 30,400m2 divided into three basements and 22 floors above ground, in all a height of close to 90m.
▼项目概览
Overall view©Aitor Ortiz
▼街道视角,View from the street©Aitor Ortiz
在建成 50 年后,建筑经历了一次整体改造,底部的 6 个楼层可用于商业,其余的空间仍然是办公空间(占总面积的 60%)。考虑到建筑当时的状况,有必要将其完全清空并只保留结构,从而实施全面的重建工作。
50 years after its construction, an integral reform of the building has been carried out that has allowed commercial use on the first 6 floors, keeping the rest of the spaces for office use (65% of the total area). Given the state of the building, it was necessary to completely empty it, keeping only the structure to undertake a comprehensive reconstruction.
▼建筑远观,Distant view©Aitor Ortiz
大楼的结构由金属立柱和横梁构成,根据原始的项目信息,这些金属柱梁被混凝土材料覆盖,主要是为了提高防火性能。此外,商业楼层和公共办公楼层均进行过大规模的加固和改造。除了大楼的中央电梯和楼梯井,交通核心筒的剩余部分已完全拆除,以拓展出更宽裕的使用空间,同时确保整座建筑能够更加方便且高效地疏散人群。考虑到商业区域的功能变动,还实施了其他结构方面的改动,例如植入一个新的开口,并通过自动扶梯连接大楼的 5 个楼层(这需要移除大楼的一个主梁)。
The building’s structure, made up of metal pillars and beams that according to the original project memory were covered with concrete for fire, have also been reformed with generalized reinforcements on the commercial floors and on the office floors where public use is foreseen. With the exception of the central block of elevators and stairs in the tower, the rest of the communication cores have been demolished and their gaps closed, to generate other locations with greater capacity that ensure the evacuation of the building as a whole. Other far-reaching structural changes have been undertaken as a result of functional conditioning factors in the commercial area, such as the implantation of an opening that connects 5 floors of the building with escalators and that has required the elimination of one of the building’s main beams. This has meant the need to generate new bracing elements, to ensure a correct transmission of loads and horizontal forces that are produced as a result of the new configuration.
▼剖面图,Section©IDOM
重建的另一个关键点是建筑的外立面。鉴于这是一座受到市政法规保护的项目,项目团队在开始起草外立面建造方案之前进行了大量研究和数据收集工作,以期能够还原既有建筑的外观特征,同时对建筑多年来经历的改动予以纠正和调整。
Another key aspect of the reform has focused on the facade of the building, protected by municipal regulations. Prior to commencing with the drafting of the façade construction project, research and data collection work was carried out to be able to build a façade with identical characteristics as the original, correcting the modifications that the building had undergone over the years.
▼首层视角,View from the ground level©Aitor Ortiz
原来的立面主要由带铝制百叶窗和横梁的幕墙(杆状系统)组成,其间穿插着玻璃板和遮阳模块。玻璃板的尺寸为 2.4m x 2.2m(在底部和顶部的一些位置是 1.2m x 2.2m),总面积占立面面积的 40%。最初安装的玻璃类型在市场上被称为“粉红玫瑰”,它为建筑赋予了色彩上的特征,尤其是在阴天时,观感更为显著。
The original façade consisted mainly of a curtain wall (stick system) with aluminum mullions and transoms. This curtain wall interspersed glazed panels and blind modules. The glazed panels, which accounted for 40% of the surface of the façade, were mainly composed of glass with a chamber 2.4 m wide by 2.2 m high, although in the lower body and top of the tower it had smaller sized glass sections, 1.2 m wide by 2.2 m high. The type of glass originally installed was commercially called “pink-rose” which provided the characteristic color of the building, especially on cloudy days.
▼项目与周边建筑对比,The project and the surrounding buildings©Aitor Ortiz
原有的外立面在 1980 年代经历了一次重大的更改,由于外墙组件的膨胀问题,几乎所有的玻璃板面都进行了更换。新的玻璃被安装在青铜色的铝制木架上,然后与原来的幕墙相连接,并完全使用结构硅树脂固定。朝向 Gran Via 街面的底部 6 个楼层保留了原来的玻璃立面,这也让最初的粉色玻璃与 80 年代安装的橙色玻璃形成了对比。两种玻璃均带有遮光层,其质感与色调均能够根据时间和太阳光的入射量而产生变化。
The original façade underwent a major reform in the 1980s, with the replacement of practically all of the building’s glass due to expansion problems in the façade assembly, which led to several glazed modules falling onto the street. The new glass was placed on a bronze-colored aluminum carpentry attached to the original curtain wall and secured exclusively with structural silicone. The original glass of the first 6 floors of Gran Via street was kept, so it was possible to verify the differences between the original glass of a more pinkish color and those installed in the 80s with a more orange color. In both cases, the layer of solar control that they have made the perception of these and their tonality vary depending on the time and the incidence of solar rays.
▼立面细节,Facade detailed view©Aitor Ortiz
考虑到朝向 Gran Via 的立面还保留着部分原来的玻璃,这些玻璃可以被用来复制与之相同的颜色,并用最先进的磁控管来制作遮光层。最终,建筑被赋予了与原先看上去一样的外墙,但其整体的形象却与翻新之前的形象截然不同。
Given that some of the original glass remained on the Gran Vía façade, it could be used to exactly reproduce the original color, manufacturing the solar control layer with a state-of-the-art magnetron. The end result has been a façade identical to the original, but very different from the image that the building offered prior to renovation.
▼整体外观,Exterior view©Aitor Ortiz
在首层,外墙的立柱被大理石覆盖,保持了原来的外观。立柱之间的面板被大尺寸的玻璃和隐藏的型材封闭,避免对立面造成影响。商业区域的入口与建筑前方的公共广场相连。办公区域需要从 Gran Via 街道进入,同样和改造前保持了一致。大厅空间的面积较小,为的是给首层的商业区域留出更多空间。
On the ground floor, the façade pillars have been covered with marble, identical to the original, and the panels between them have been closed with large glass and hidden profiles that avoid detracting from the façade. The entrance to the commercial zone is from the public square in front of the building. Access to the office area is through Gran Via street, as was the case prior to the renovation. The lobby is smaller, as the space of the ground floor has been given over to commercial space.
▼商业区域入口,Entrance to the commercial zone©Aitor Ortiz
由于建筑内部已经经历过多次装修,因此几乎没有留下太显眼的原始元素。设计的另一个挑战是根据塔楼重新创建一个入口,尤其是要考虑到既有空间的几何形状:被拉长的狭窄空间有可能会产生隧道效应。另外,临街的空间设有三个通往商业区公共电梯的疏散出入口、两台自助取款机,还有一条维修通道。出于这一原因,项目团队决定将大厅分为两个区域:一个是位于外部的门厅,可以用于容纳上面所述的这些空间,另一个是大厅,包含接待区、电梯间和等候区。
Inside, there were practically no outstanding original elements, as the building had undergone numerous interior renovations throughout its life. Designing an entrance according to the tower was another challenge of the project, especially given the geometry of the existing, narrow and elongated space that could generate a tunnel effect. In addition, in this space beside the street, there are three evacuation exits and access to two service elevators for the commercial premises, two ATMs and access for maintenance. For this reason, it was decided to divide this lobby into two areas, one outside as a hallway where the spaces described above converge and then the lobby itself with its reception area, elevator block and waiting room.
▼大厅,The lobby©Aitor Ortiz
▼接待区,Reception©Aitor Ortiz
设计策略着重于整合与隐藏墙壁上的既有元素,尤其是大门。为此,设计团队专门打造了一款有着正方形截面的波纹板,能够隐藏门的合叶、连接件和各种配件,为空间提供一个干净整洁的形象。这种板材被同时使用在天花板和墙壁上,室内部分以白色漆面钢包覆,外面的走廊则采用阳极氧化铝饰面。
The strategy focused on integrating and concealing all the existing elements on the walls, especially the doors. For this, a square section corrugated sheet was designed, which concealed the hinges, joints and fittings of the doors, offering a clean image of this space. This sheeting was placed both on the ceiling and on the walls, using white lacquered steel on the inside and anodized aluminum on the outside hallway.
▼波纹板为空间提供了干净整洁的形象,The corrugated sheets offer a clean image of the interior space©Aitor Ortiz
室内地面铺设了大理石,与白色波纹板一同营造出明亮的空间。外部地面使用了经过石锤修琢的花岗岩,与阳极氧化铝元素共同形成了一个灰色的环,进一步凸显了室内的白色。地面上的白色大理石按照五线谱的节奏和规则铺设,并在接待区域演变为家具元素,界定出通向等候区的路径。绿色大理石出现在等候室,与外部立柱形成呼应。等候室走廊的地面、墙面和天花板铺设的均是埃斯特雷莫什白色大理石。锐角元素和对角线元素的碰撞为空间赋予了不同几何形式的解读。
On the interior floor, white marble was installed, therefore, together with the white corrugated sheet a very bright interior space has been configured. Bush hammered granite has been used on the exterior floor, and together with the anodized aluminum, forms a gray ring that further enhances the interior white. The white marble of the floor, laid out following the rhythm and configuration of the frets, was also placed in the lower half of the reception panel, to form the furniture in this area and frame the access to the waiting room. Green marble is used in the waiting room, identical to the exterior pillars, both on the floor, walls and ceiling and which is accessed through a corridor with Estremoz white marble on the floor, walls and ceiling. The encounters have been taken to the corners and diagonals to generate different geometric and formal readings of the space.
▼大理石与白色波纹板一同营造出明亮的空间,Avery bright interior space has been configured withwhite marble and corrugated sheet©Aitor Ortiz
▼走廊,Corridor©Aitor Ortiz
▼对角线元素,The encounters have been taken to the corners and diagonals©Aitor Ortiz
▼楼梯间,Stair well©Aitor Ortiz
最后,电梯核心筒被设计为由不锈钢板组成的金色体块,彰显了该建筑曾经作为欧洲最重要银行之一的总部大楼的独特身份。
相对地,剩余楼层的电梯厅仍然采用白色,墙壁上覆盖以穿孔金属板和吸音板,灰色的地面则由微晶水磨石或自流平砂浆铺设。
Lastly, there is the elevator core configured as a golden block formed by gold stainless steel panels, as a nod to the building that was the headquarters of one of the most important banks in Europe. On the contrary, the elevator lobbies of the rest of the floors have been configured as white boxes with perforated sheet metal with sound-absorbing sheets on the walls and a gray floor, made of micrograin terrazzo or self-leveling mortar.
▼电梯核心筒,Elevator core©Aitor Ortiz
▼其他楼层电梯间,Elevator lobby on other floors©Aitor Ortiz
▼楼梯间,Stair well©Aitor Ortiz
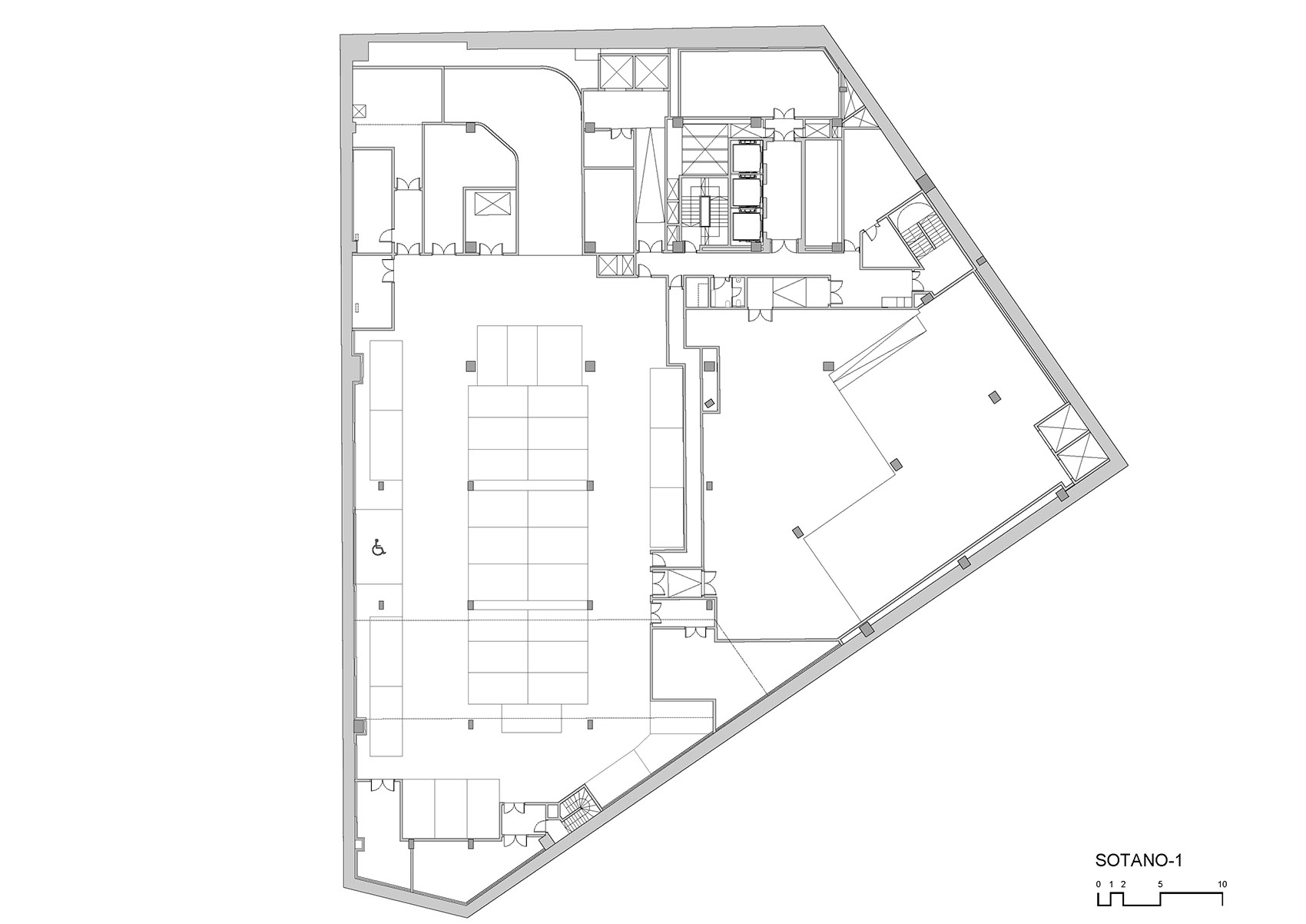
办公层的设计采用了“核与壳”的概念,除了已经完全安装好的消防装置外,所有设施和设备均已接近并准备好连接。既有的地下空间创建了具有特殊性质的仓库,保留了装甲门,并对既有的混凝土墙进行了加固。通过置入地毯、木质元素、吸音毛毡板条和穿孔金属板,这些空间在不完全失去建筑原始特征的前提下呈现出了不同于以往的温暖氛围。
The office floors have been designed using the Core and Shell concept and all the installations are close and ready to be connected, except for the fire protection installation that has been completely installed. In the original vaults, warehouses of a special character were created, keeping the armored doors and enhancing the original concrete walls. These spaces have been complemented with warm elements such as carpeting, wood and sound absorbing felt slats or perforated sheet metal panels, trying not to completely lose the original character of the building.
▼办公楼层,Office floor©Aitor Ortiz
▼地下空间,Thevaults©Aitor Ortiz
▼地下空间走廊,Corridor©Aitor Ortiz
▼既有的混凝土墙进行了加固,The enhanced concrete walls©Aitor Ortiz
▼位置示意,Situation©IDOM
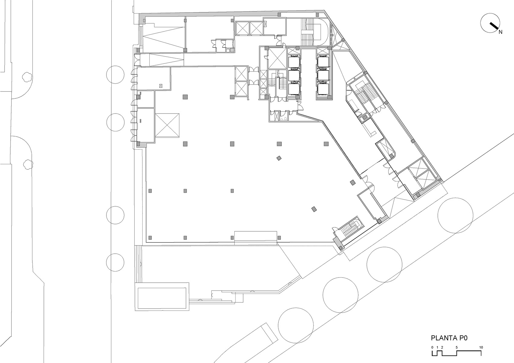
▼首层平面图,Plan level 0©IDOM
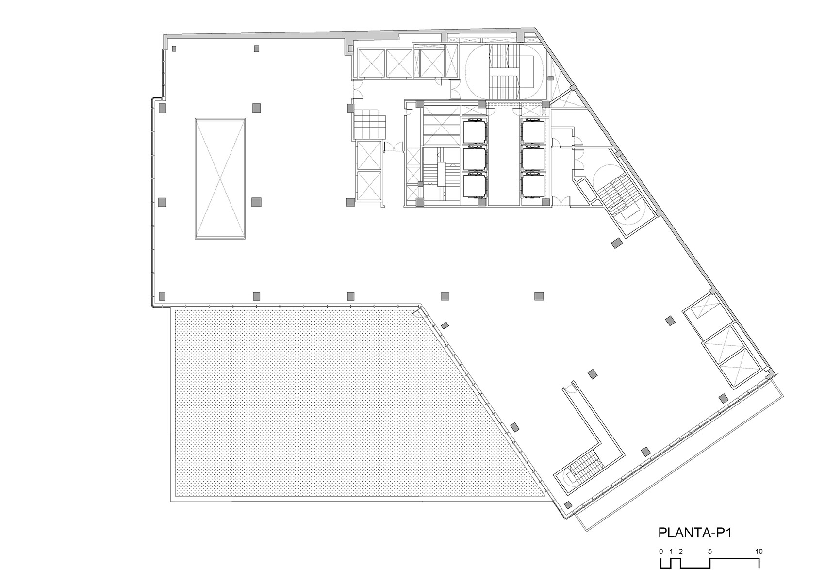
▼二层平面图,Plan level 1©IDOM
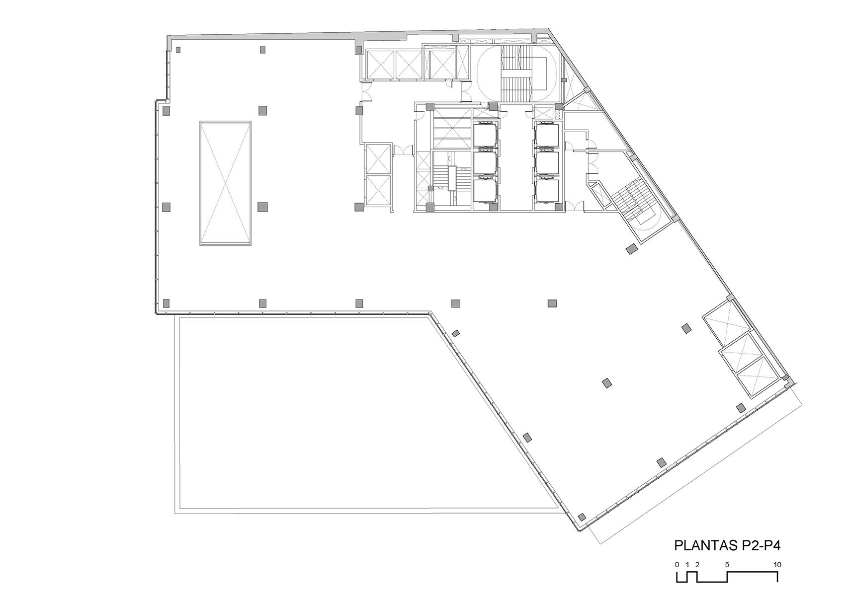
▼三至五层平面图,Plan level p2-p4©IDOM
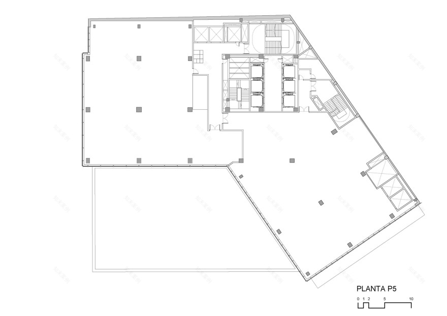
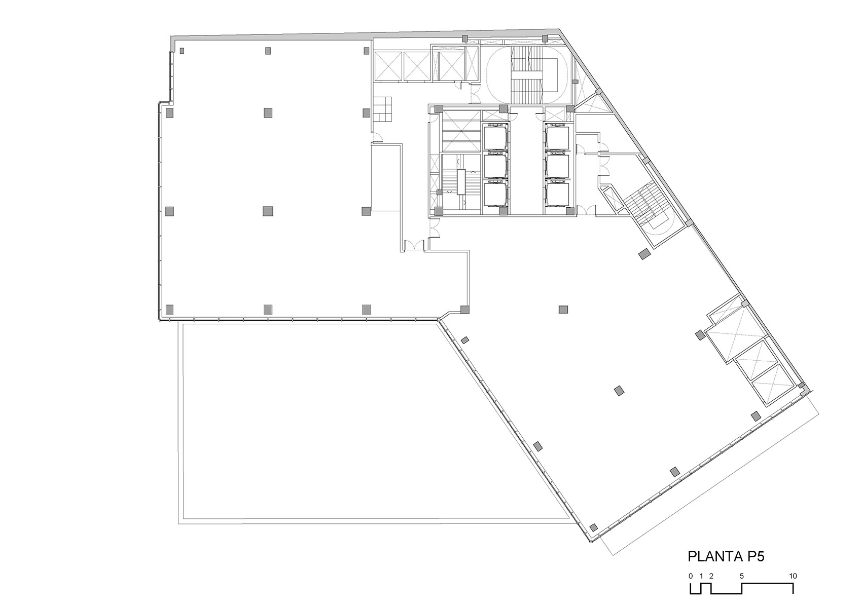
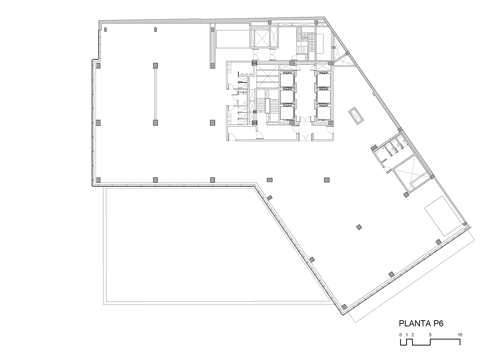
▼六层平面图,Plan level 5©IDOM
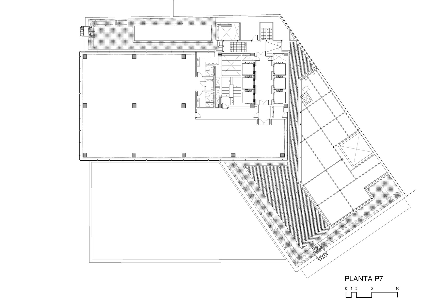
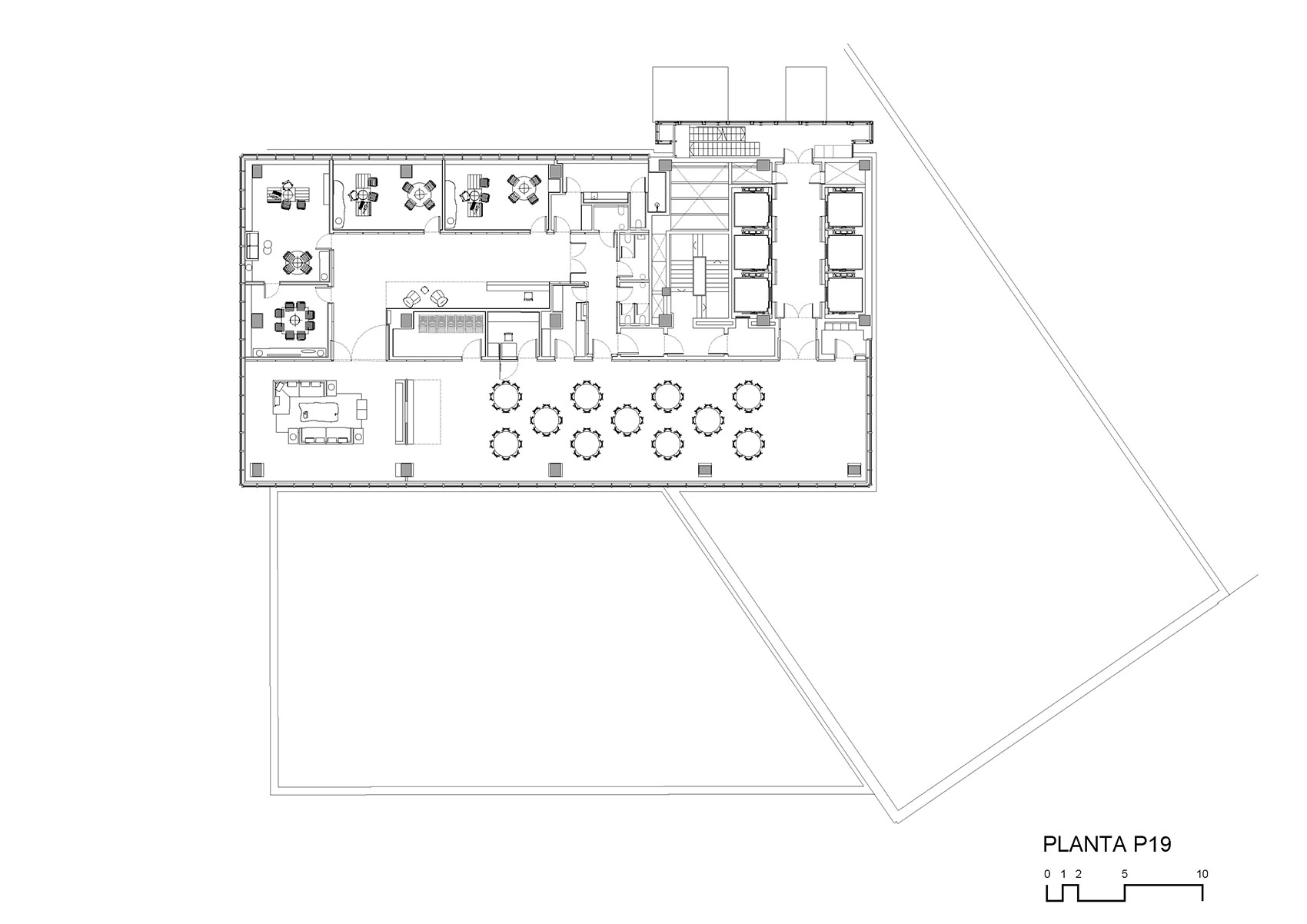
▼九至十九层平面图,Plan level p8-p18©IDOM
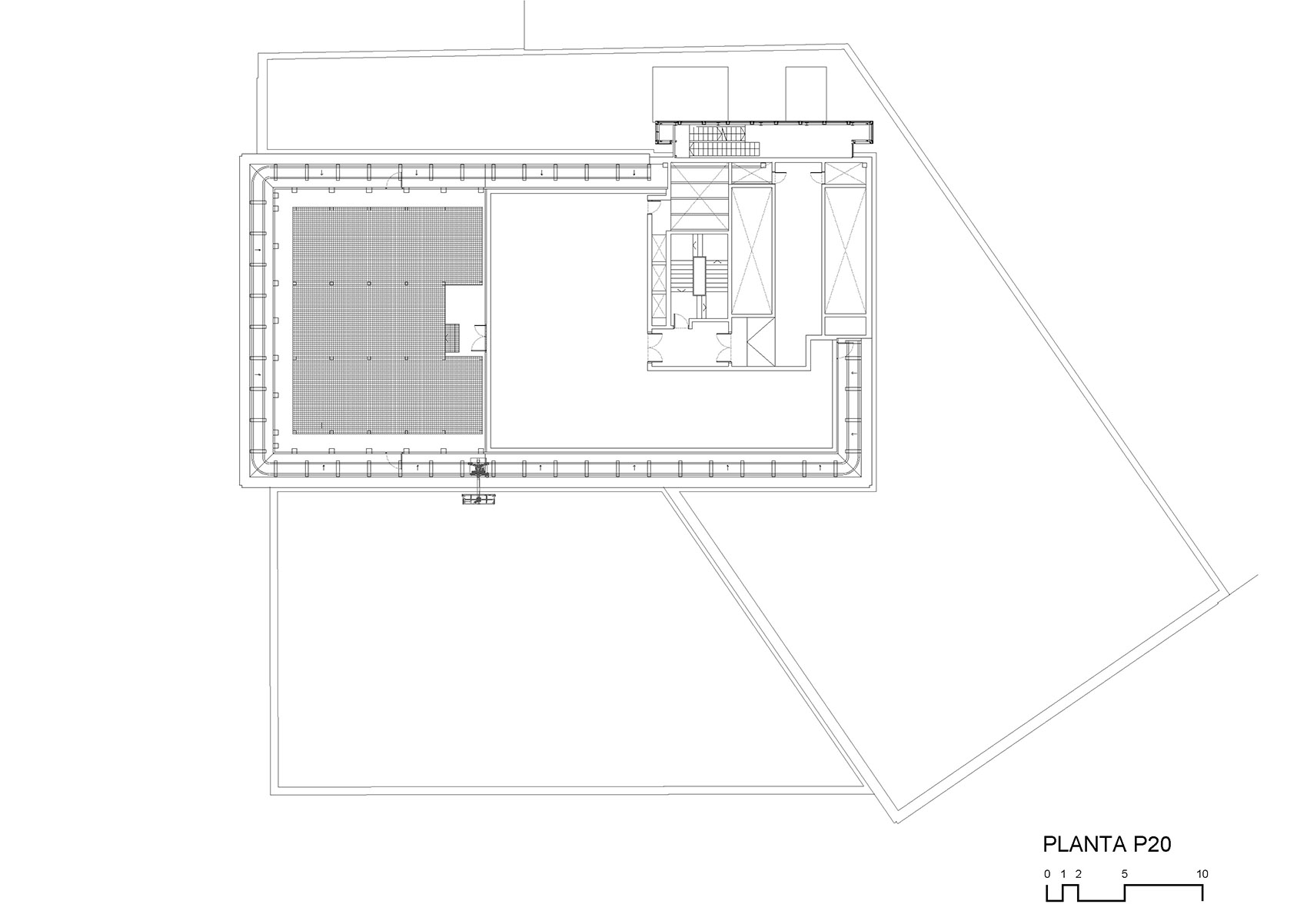
▼二十二层平面图,Plan level 21©IDOM
▼立面图 1,Elevation 1©IDOM
▼立面图 2,Elevation 2©IDOM
▼立面图 3,Elevation 3©IDOM
▼剖面图,Section©IDOM
客服
消息
收藏
下载
最近










































































