查看完整案例

收藏

下载
日内瓦对其设施进行了现代化改造,以便为中长途航班的乘客提供与日内瓦国际机场声誉相符的优质服务。东翼取代了宽体远机位, 该机位于1975年作为波音747的临时设施建造,现在在技术和环境上都不能满足现代的要求。尽管它最初的构思在十多年前提出, 但东翼的设计愿景采用了前瞻性的方法,在降低运营能耗发挥了积极的作用。该项目由日内瓦机场全额筹建,建设了一座 520m长的两层玻璃钢筋建筑。
Genève Aéroport has modernised its facilities in order to offer passengers on medium and long-haul flights a quality of service that lives up to the reputation of La Genève Internationale. The East Wing replaces the long-range wide-body aircraft pavilion, built as a temporary facility for Boeing 747s in 1975, now technically and environmentally outdated. Even though it was originally conceived over ten years ago, the Aile Est is extremely ambitious in its approach to reducing operational energy with a design aspiration to be energy positive. Fully financed by Genève Aéroport, this project includes a 520m-long high energy-efficiency building of glass and steel organized on two levels.
▼项目概览,overview of the project ©Joas Souza
协同合作的设计方法
A COLLABORATIVE APPROACH
项目由RBI-T联合体共同完成,成员分别是伦敦建筑事务所 Rogers Stirk Harbour + Partners (RSHP)、日内瓦 Jacques Bugna建筑工作室以及巴黎Ingérop和日内瓦T-Ingénierie工程公司。东翼大楼体现了建筑师和工程师之间的密切合作,最终才得以实现这一形象鲜明、高度一体化的设计。
Designed by the RBI-T consortium composed of the London architecture firm Rogers Stirk Harbour + Partners (RSHP), the Jacques Bugna architecture studio in Geneva and the engineering offices Ingérop in Paris and T-Ingénierie in Geneva, the Aile Est or East Wing building illustrates the close collaboration between architects and engineers required to deliver this clear, highly integrated vision.
▼候机大厅,passenger hall ©Joas Souza
新大楼每小时可容纳约 2800名出发乘客和 3000名抵达乘客。凭借新的伸缩式空中桥梁,它可以服务现有的6个停机位。指廊设置了出发、到达、中转和边境管制功能以及新的旅客等候大厅。
The new building can accommodate approximately 2,800 passengers per hour on departure and 3,000 on arrival. It serves six existing aircraft stands with new telescopic air-bridges. The jetty contains departures, arrivals, transfer, and border controls as well as new airline lounges.
▼看向登机口,view of the gate ©Joas Souza
超长的项目建设周期
A LONG-TERM PROJECT
RBI-T 联合体在经过两个阶段的国际竞赛后于2010 年中标项目。东翼大楼在2012 年至 2021 年之间分四个阶段建设,即:
2012.11 – 2013.7 “前期筹备工作”:包括搬迁停机坪平台烃分离器、安装 300 米深的地热桩以及收集和回收废物和地表水所需的基础设施。
2013.8 – 2015. 5 海关公路或 Route Douanière 工程:包括建设一条连接机场法国领域和法国费内-伏尔泰的公路隧道、一个具有 新服务基础设施和机房的技术走廊,以及建设服务未来上层建筑的地下室和停机坪平台。
2016.4 – 2017. 12 BAT第1阶段工作:包括拆除建筑物和设备、改道和/或维护现有服务网络以及建设东翼建设所需的其余基础设施。
2017. 4 月- 2021.7 BAT第2阶段工作:东翼地上建设,包括值机大厅和 14-19 号登机口的等候厅、地下室开发(在前期阶段已经部分完成)以及与相邻建筑物和基础设施的连接通道。
▼结构轴测,superstructure 80m module ©Rogers Stirk Harbour + Partners
▼支撑结构,superstructure feet ©Rogers Stirk Harbour + Partners
The RBI-T project was selected following an international two stage competition in 2010. The East Wing building was built between 2012 and 2021 and was the subject of four specific phases, namely:
1. The “Preparatory work” from November 2012 to July 2013 comprised of the relocation of an apron-level hydrocarbon separator, the installation of geothermal piles to a depth of 300 metres as well as the infrastructure required to harvest and recycle waste and surface water.
2. The “Customs Road” or Route Douanière work from August 2013 to May 2015 incorporating the construction of a road tunnel linking the French sector of the airport to Ferney-Voltaire in France, a technical gallery with new services infrastructure and plant rooms, and the construction of a basement and apron-level platform supporting the future superstructures.
3. The “BAT 1” work, from April 2016 to December 2017 including the demolition of buildings and equipment, the diversion and/or maintenance of existing services networks as well as the construction of the remaining infrastructure required for the construction of the East Wing.
4. The “BAT 2” work, from April 2017 to July 2021 comprising the construction above ground of the East Wing jetty including the “Processor” and boarding lounges for Gates 14 to 19, the development of basements (already partially completed during previous phases) as well as connections to adjacent buildings and infrastructure.
▼建成后的东翼大楼为旅客提供了高质量空间
The Aile Est focuses on the quality of passenger space ©Joas Souza
轻盈、可持续性和色彩
LIGHTNESS, SUSTAINABILITY AND COLOUR
为了响应场地的限制,东翼采用平行四边形的形状,看起来像悬浮在站坪平台后勤通道的上方。全玻璃的主立面倾斜 26°,以确保紧邻南面狭小地块上的建筑物获得足够的日照。这种处理还在上层打造一个专用的到达走廊,并确保空侧外墙免受太阳直射。
Responding to the constraints of the site, the East Wing is an extruded parallelogram that seems to float above the service road located at apron level. Its main facades are fully glazed and inclined at 26° to safeguard access to daylight for the buildings located immediately to the south on a very tight site. This arrangement also creates a dedicated volume for the arrival’s corridor on the upper level and, on the airside, ensures the façade is protected against direct solar radiation.
▼倾斜的全玻璃的主立面引入充足日光
fully glazed facade introducing daylight ©Joas Souza
▼通高的大厅空间
the double height space ©Joas Souza
东翼设计的一个关键概念是尽量减少内部结构元素,以确保良好的通透性,便于旅客观赏侏罗山脉(Jura mountains)的壮丽景色、停机坪以及飞机的活动情况。该结构由约7,000吨钢的金属外骨骼组成,包括20 x 20米跨距的楼层模块和135个铸造件。玻璃幕墙面积20,000平方米,将自然光线直接引入室内。
One key concept of the East Wing design was to minimise internal structural elements to ensure great transparency and offer passengers a breathtaking view of the Jura mountains, the activity on the apron level or tarmac, as well as the planes. The structure consists of a metal exoskeleton of approximately 7,000 tonnes of steel including floor modules with a span of 20 x 20 metres and 135 foundry pieces. The interior space is bathed in natural light from the 20,000 m² of glazed facades.
▼玻璃幕墙引入光线与风景
the interior space bathed in natural light from the glazed facades ©Joas Souza
▼二层视角
view on the upper level ©Joas Souza
材料的选择突出流动性和轻盈感。主框架涂成浅灰色,而次要结构元素涂成深灰色。地板采用天然石材,栏杆和垂直墙壁均采用玻璃。色彩随旅客在东翼内的前进方向而变化,在建筑的整个长度上每隔80米变化一个颜色。材料根据耐用、易于维护的原则进行选择,为旅客提供形象展示面 。
Materials were chosen to accentuate the feeling of fluidity and lightness. The primary frame is painted in light grey, while the secondary structural elements are dark grey in colour. The floors are covered in natural stone, the balustrades and vertical walls are glazed. The colour accompanies the movement and orientation of passengers along the East Wing and marks each 80m module throughout the length of the building. The materials used were chosen for their durability, their ease of maintenance and to serve as a showcase for passengers.
▼到达旅客的玻璃廊道
departing passengers access the Aile Est via a sloping glazed bridge ©Joas Souza
低能耗设计
ENERGY POSITIVE DESIGN
由于采用了先进技术,RBI-T联合体的项目旨在成为低能耗的样板建筑。东翼通过使用高性能三层玻璃幕墙实现良好的保温隔热效果, 同时避免太阳辐射直射,从而尽量减少人工照明以及供暖制冷负荷。
The RBI-T consortium project is designed to become an exemplary building in terms of energy thanks to the implementation of advanced technologies. Good thermal insulation of the East Wing is achieved by the deployment of high-performance triple-glazed facades, with additional solar protection thereby limiting the use of artificial lighting and reducing heating and cooling loads.
▼楼梯空间,stairs dedicated to personnel and evacuation ©Joas Souza
屋顶安装了7020 平方米光伏板面板组成的太阳能装置,提供项目所需的电力。高效隔热的建筑围护结构、雨水回收利用以及高效热泵 的使用,确保建筑的能耗足迹进一步显著减少。热泵产生热量并储存110个埋深300米的地源热泵桩的热能,将来能够连接到GeniLac水热系统,为建筑提供各种各样的可再生能源。
Electricity is produced by a solar installation composed of 7020m2 of photovoltaic panels on the roof. A further significant reduction of the energy footprint of the building is ensured by the efficient thermal insulation of the building envelope, the recovery and use of rainwater and the use of high-efficiency heat pumps. The latter produce and store the thermal energy of 110 geothermal piles that run to a depth of 300 metres and will be able to connect in future to the hydro-thermal network GeniLac, completing the panoply of renewable energy sources supplying the building.
▼细部,details ©Joas Souza
▼模型,the model ©Rogers Stirk Harbour + Partners
▼总平面图,masterplan ©Rogers Stirk Harbour + Partners
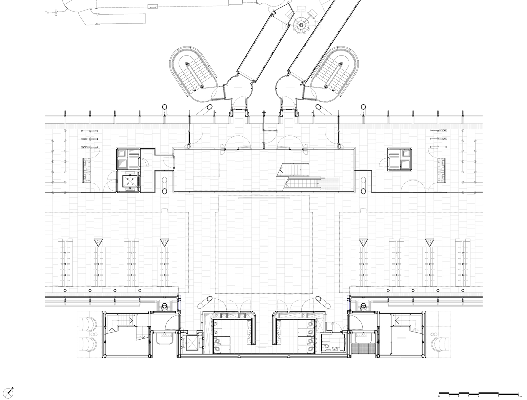
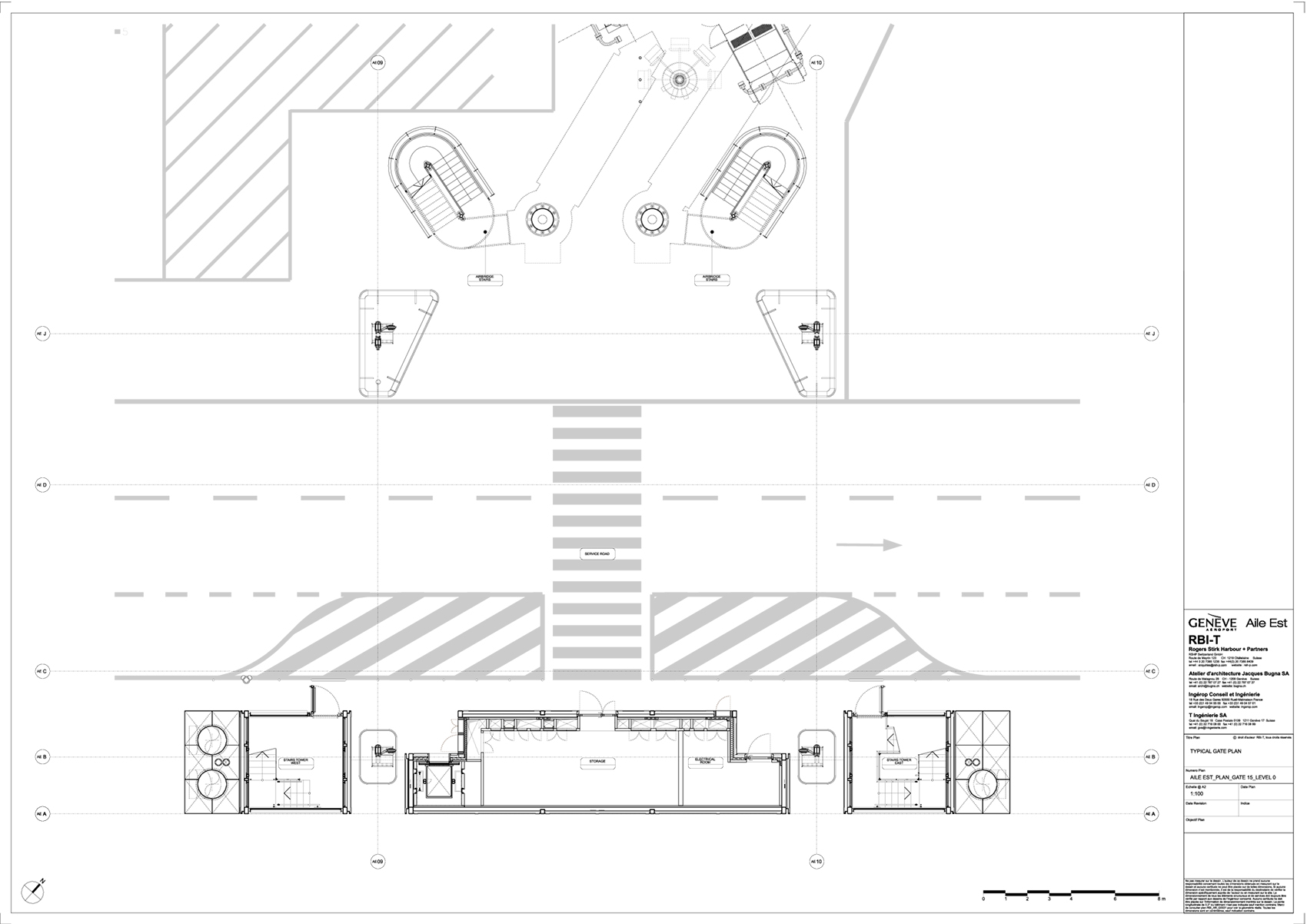
▼G15首层平面,Gate 15 level 0 plan ©Rogers Stirk Harbour + Partners
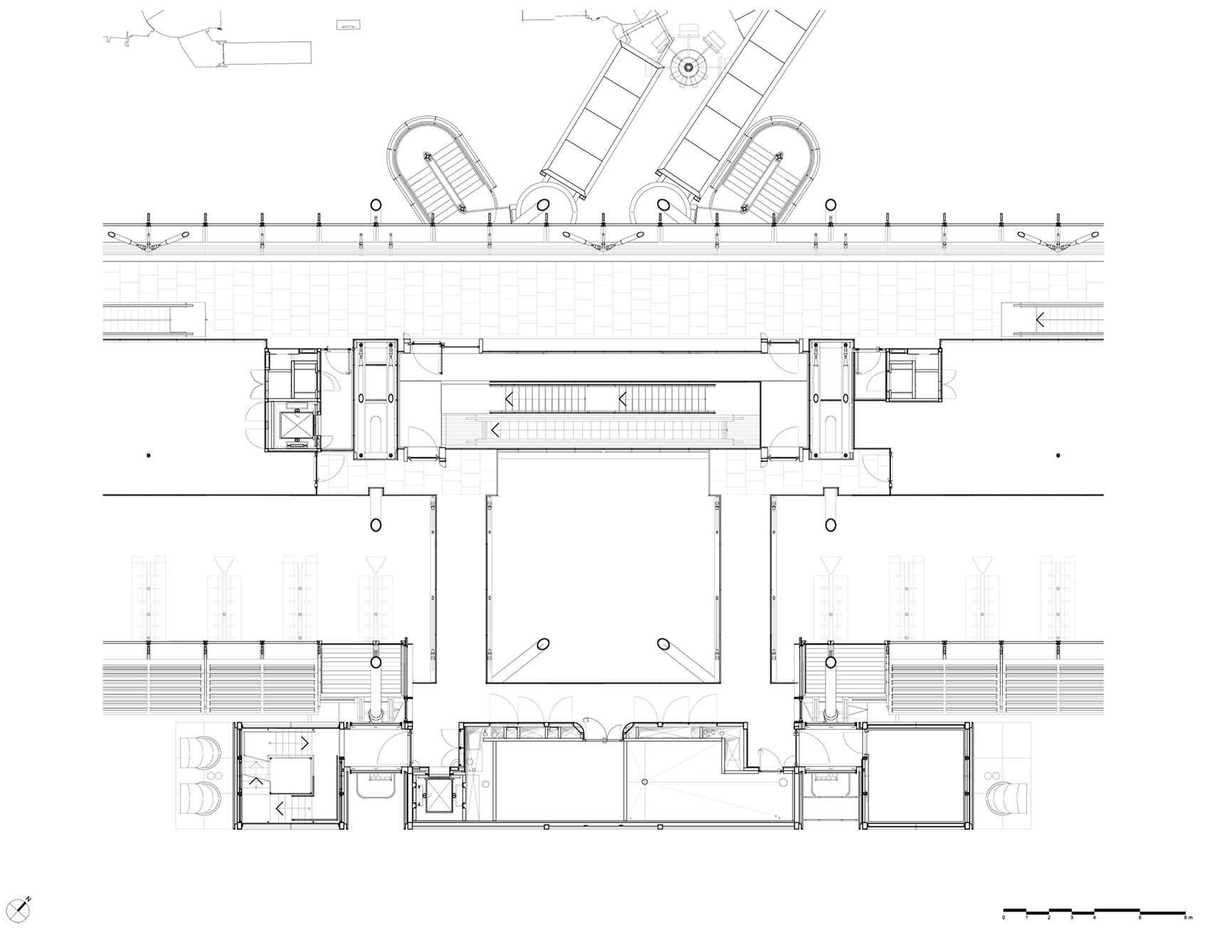
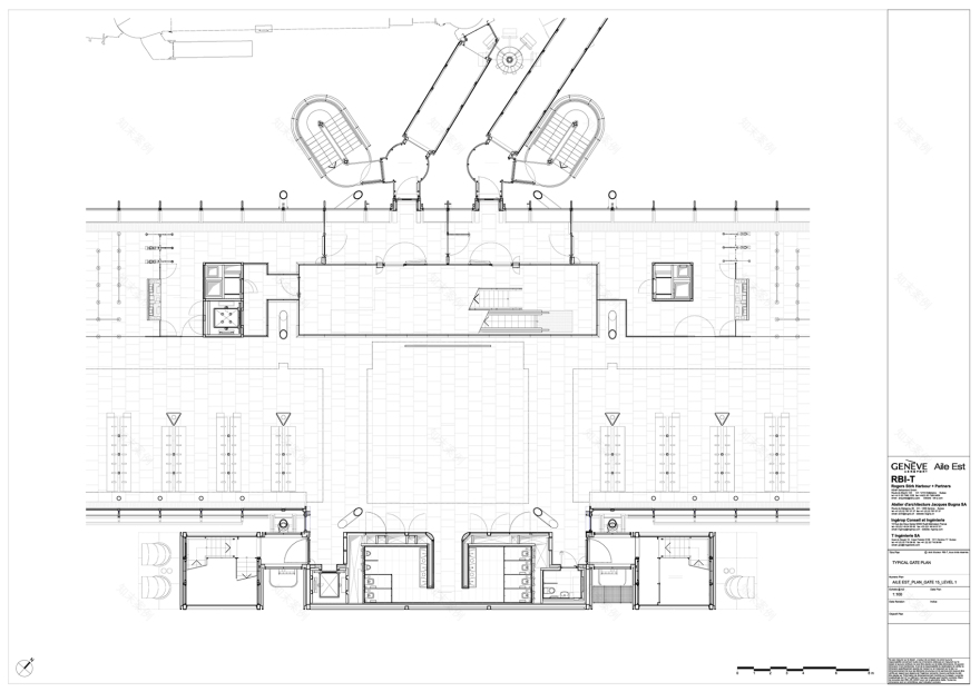
▼G15二层平面,Gate 15 level 1 plan ©Rogers Stirk Harbour + Partners
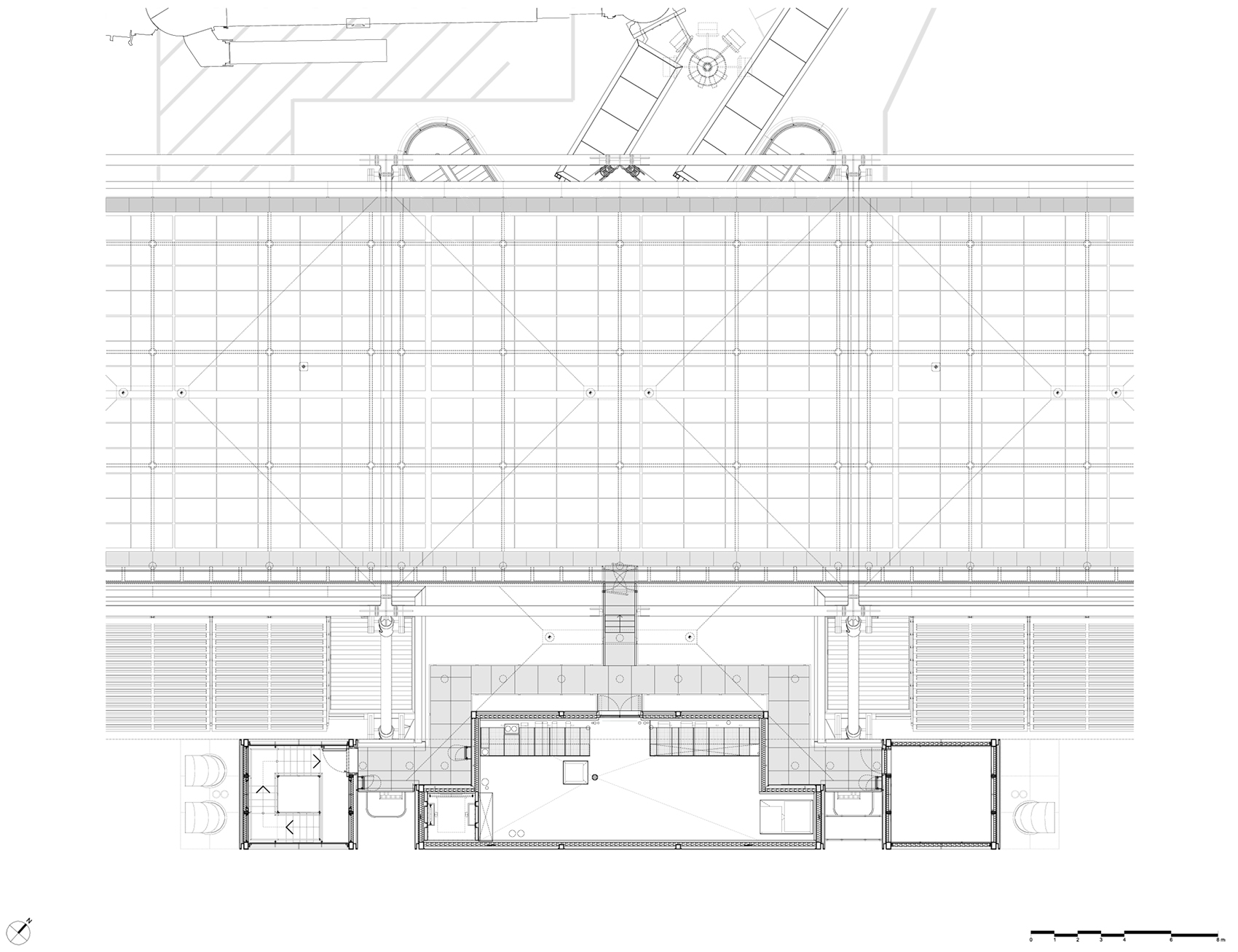
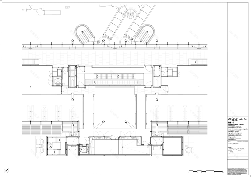
▼G15三层平面,Gate 15 level 2 plan ©Rogers Stirk Harbour + Partners
▼G15四层平面,Gate 15 level 3 plan ©Rogers Stirk Harbour + Partners
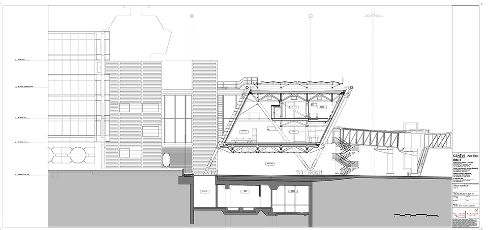
▼剖面图,section ©Rogers Stirk Harbour + Partners
▼局部剖面,detail section ©Rogers Stirk Harbour + Partners
客服
消息
收藏
下载
最近











































