查看完整案例

收藏

下载
一棵树走到我的身边,一棵树也在等待月亮。——张枣《夜》
设计师应当是诗人,在时间的斟酌下,将建筑蜕变为带有回响的诗篇。当苫也与蜚声同频,将建筑落于山林之中时,吟诵的乐声里便多了生命的韵律与感佩。
Designers should be poets, using architecture as a language to write and recite poems as time changes. When Sanyea and Fusion Design think in the same frequency and place the architecture in the mountains and forests, the rhythm and admiration of life will be added to the recited voice.
▼项目概览
Preview © 欧阳云-隐象建筑摄影
雾霭氤氲,暮云叆叇,空间在叶落花开中低语,在日夜更替中生长。它随着人与景致的加入,逐渐变化了模样。人也在微妙的空间情绪中发生了变化,静默间变成了一棵树,一棵等待月亮的树。
In the joining of people and scenery, the space changes with time. People also change their moods in the space and become quiet, like a tree waiting for the moon.
▼光影,Mood© 欧阳云-隐象建筑摄影
一:林中剪影
One: Silhouettes in the forest
山是用石头和河流说话,海洋用砂砾与海岸说话,祖先用神话跟子孙沟通,自己用梦跟自己对话。——甘耀明《邦查女孩》
山是静默的,无言间却又藏着惊喜。入山开始,脚踏在石与泥混合而成的原始土地之上,从脚心弥漫而来的酥麻感,将浮躁的灵魂安抚。于是在思绪逐渐清明中,才发现关于到访者的惊喜,正在开启。
The mountain is silent, yet hides surprises. As visitors walk toward the mountains, their feet step on the ground mixed with stone and soil, and a slight tickling sensation comes from the center of their feet, soothing one’s tired state. As the walk continues, visitors will find more surprises.
▼项目场地鸟瞰,Aerial view© 曾瑜松
计成在《园冶》中点出,“园地惟山林最胜”。山林地势多样,有高有凹,有曲有深,在此处建成的房子,便自成天然之趣。蜚声依据地势的起伏,设计六栋建筑将最佳处围合,打造一片天然的林间栖所。
In “Garden Forging”, Ji Cheng points out that “mountains and forests are the best sites for the traditional garden”. The topography of the mountains and forests is diverse, with high and low points, curved and deep, so the houses built here are of natural interest.
Fusion designed six buildings on prime terrain to create a natural forest habitat.
▼建筑外观,Building exterior view© 欧阳云-隐象建筑摄影
入目满是轻灵流动的绿意,为了避免打乱自然的调性,于是选用了传统的白墙黛瓦,将林间居所低调融入。几何线条描摹着理性思维,却在岭南山林的人文意境中变得感性起来。光影投射下的平行线,随着林海摇曳在空间中沉浮,明暗交替着拨动琴弦,于平实中寓深情之致,空间的艺术维度于此间尽然丰裕。
The mountains and forests are covered with greenery, so the traditional color scheme of white walls and black tiles was chosen for the building in order to avoid the overall color being abrupt. The geometric lines on the building show rational thinking, yet become sensual because of the cultural atmosphere of the Lingnan region. The sunlight reflects parallel lines on the wall, swaying gently in the wind, just like a plucked string, adding an artistic atmosphere to the space.
▼光影投射下的平行线,随着林海摇曳在空间中沉浮© 欧阳云-隐象建筑摄影
The sunlight reflects parallel lines on the wall, swaying gently in the wind
▼光影细节,Detailed view© 欧阳云-隐象建筑摄影
二:眼前花
Two: blossom in front of the eyes
你笑着说这不是松
管它是什么深远的黑透明的蓝
一点点淡青一片片银白
还有那幽幽的绿映照着映照着
林中的你在你的林中
——《山月(一)》席慕容
中国文化的含蓄使得入户之门,也将将藏在一条蜿蜒的山道之后。推门而入,功能分区便在动线的分化指引下豁然开朗。不规则的装置长廊强势抢占了人的第一道目光,在一众谦虚而低调的配置中展现着自己的个性。
Chinese culture advocates implication, so the gate is hidden behind a winding mountain path. Push the door and enter, under the guidance of the moving line, each functional partition becomes clear. The irregular installation gallery is very eye-catching and unique among other low-key designs.
▼装置长廊,Installation gallery© 曾瑜松
穿廊而过,微光在线条与缝隙间随意穿梭,色彩交替中投下一片影绰。松鸣鸟语间,交叠的建筑群缓缓流入视线,山林草木间就此生发开来不一样的雅致趣味。
Passing through the corridor, the shimmering light weaves casually between lines and gaps, alternating colors and casting shadows. In the song of trees and birds, the buildings slowly appear, and a different kind of elegant interest arises among the mountains, forests and grasses.
▼庭院,Courtyard© 欧阳云-隐象建筑摄影
山间建筑的外在有着平和的松弛感,无意于强调艺术的笔法,将设计的亮点谦让给室内。接待空间由正中的门一分为二,应承不同人的需求。隐去的功能区的边界,由室内领域自成的不同气质所承担,触不到,却足够分明。
The mountain architecture does not emphasize exterior garishness and carries a sense of calm relaxation, humbly leaving the highlights of the design to the interior.
The reception space is divided into two by the door in the middle, and the functional areas are designed in different styles according to the needs of different people.
▼入口中庭,Atrium
© 欧阳云-隐象建筑摄影
▼接待空间,Reception space
© 欧阳云-隐象建筑摄影
▼细节,Detailed view© 欧阳云-隐象建筑摄影
清幽烛火,素手烹茶,卷帘轻掩细雨,氤氲的是一个“雅”字。而另一侧的下午茶休息区,则匹配了充满文艺感的雕塑与家具,给予更放松的度假氛围。
Outside the window drizzle, inside the house tea is cooked in the flickering candlelight. What an elegant atmosphere. The lounge area on the other side is matched with sculptures and furniture full of literary sense, giving a more relaxed vacation feeling.
▼下午茶休息区,Lounge area
© 欧阳云-隐象建筑摄影
▼墙面细节,Detail© 曾瑜松
古典衔接着现代,光影在不同物件上轻柔拂过,为空间赋予了一种侘寂的时间感,一种不同于别处的情境体验。
Light and shadows gently brush against different objects, bridging classical and modern styles, imbuing the space with a sense of wabi-sabi time, an experience unlike anywhere else.
▼充满文艺感的雕塑与家具,Sculptures and furniture full of literary sense© 曾瑜松
▼座位区,Seating area
© 欧阳云-隐象建筑摄影
▼室内光影,Light© 欧阳云-隐象建筑摄影
餐厅独占一栋,微几何的墙体如白练当空,舒展间将两端的建筑体块相连,绵延的大片留白,展现出一种平静的张力。其下的空间全部弱化,只留一池春水,一株松木。
The restaurant occupies a separate building, and the micro-geometric wall is like a bridge in the air connecting the two blocks of the building at both ends. The large white space that extends away from the building shows a calm tension. The space under it is all diluted, leaving only a pond of vernal water and a pine tree.
▼餐厅,Restaurant
© 曾瑜松
© 欧阳云-隐象建筑摄影
室外提供艺术想象,而室内则倾向于回归日常。基本的布置模式满足食客的多种需求,方形镂空的墙体半虚半实地划分着专人领地。墙体间跳跃的光影增加了空间的通透性,也赋予了一分轻盈的休闲感。
“希声听者难,至味乃可寻”,在日夜更迭中,品人生百态,何不是生活的一种浪漫。
The outdoors offers artistic imagination, while the interior tends to return to everyday life. The basic arrangement pattern is used to meet the needs of diners, and then some square openwork walls are used to divide the space. The light and shadow moving between the walls increases the permeability of the space and gives a casual feeling.
In the day and night, taste the various flavors of life, is also a kind of romance of life.
▼室内用餐区,Indoor dining area© 欧阳云-隐象建筑摄影
▼虚实之间,The permeability of the space© 欧阳云-隐象建筑摄影
叶子已拿定绿色的主意
让花朵放心
去做那些万紫千红的事
——海桑《叶子已拿定绿色的主意》
借一缕阳光,山中便多了一抹灿然的暖意。在上下往返间竖立的巨大墙体,将整体空间解构,光明与黑暗割半而分,却又被圆窗引入的天光修补而合。油画般浓郁的色彩生发出斑驳的层次感,在空间内自由伸展,最终复融于梯形窗景明媚的日光中。
生于此地,归于此方。
▼梯形窗景,The trapezoidal windowsill© 欧阳云-隐象建筑摄影
Collect some sunlight, and the mountains will have an extra touch of warmth. A huge wall is erected between the upper and lower staircases, dividing the whole space by the movement of light and shadow, yet it is repaired by the sky light introduced by the round window on the ceiling. The rich colors are applied like oil paintings in dappled layers, eventually melting back into the bright daylight shining on the trapezoidal windowsill.
Born here, return to this place.
▼圆窗,The round window© 欧阳云-隐象建筑摄影
掩于门扉后的空间,在归家人到来时悄悄苏醒。石、木是客厅的主材,与枝枝绿意一同,呼应着山林的气质,低调简素却又生机勃发。白色棉凳、布艺沙发、中古木椅沿着动线齐整分布,在光线的明暗流动中氤氲出独有的肌理质感。
The space hidden behind the doorway quietly awakens at the arrival of the returning family. Stone and wood are the main materials of the living room, together with the greenery of the branches, echoing the temperament of the mountains and forests, understated and simple, yet vibrant. White cotton stools, fabric sofas and vintage chairs are neatly distributed along the moving line, showing their unique texture in the flow of light and dark.
▼客厅,Living room© 欧阳云-隐象建筑摄影
山间幽阳踏过庭院落入室内,在墙柜、布艺上晕染着玲珑光影。室外青绿顺着清风借势流入,与室内空间萦绕相融,三笔两画,同描一幅动态变化着的四季光景。
山林之间,闲行徜徉,空间在时间的浸润之下,给予到访者温柔守候。
The sunlight from the mountains falls through the courtyard and into the interior, staining the wall cabinets and fabrics with exquisite light and shadow. The greenery outside flows in with the breeze and blends with the interior space, depicting a dynamic painting of the four seasons.
Between the mountains and forests, wandering leisurely, the space gives visitors a gentle care in the passage of time.
▼室内细节,Interior view© 曾瑜松
被山拥入怀中时,便知千峦环翠,万壑流青。岭南的气候养育了山的气韵,居此间,择床榻或是沙发坐下,对望间便感知了“澄心味象,心纳万物”的精神状态。
It is only when you enter the mountains that you understand the meaning of lush foliage. The climate of Lingnan has nurtured the temperament of the mountains, and when you live here and look at such mountain scenery, you will gradually gain inner clarity.
▼青琅露台大床房,Qing Lang Terrace Queen Room© 欧阳云-隐象建筑摄影
室内规划随着空间的转移,产生了动态的变化。原本平铺的天花在此处向上抬升,将柱体的原始形态自然袒露。穿插于线条之中,构筑出不规则的几何美感。
The interior plan changes dynamically as the space shifts. The original flat ceiling rises upwards here to reveal the original girders. Interspersed with the lines of the design, an irregular geometric aesthetic is constructed.
▼荔雪山景大床房,Li Xue Mountain View Queen Room© 欧阳云-隐象建筑摄影
木色的主色调是森林的延续,铺排中与山的本体链接,便由此获得了山林慷慨的滋养。集中于精神的疗愈,外物的搭配选择便更为克制。屋内陈设不多,简单质朴,却又细致而考究。石材敦厚,木材温润,在恰到好处地展现着设计美学的同时,予以朴素的生活哲学。
The dominant colour of wood is a continuation of the forest, and the link with the mountains in the layouts is thus nourished by the generosity of the mountains. Focusing on spiritual healing, the choice of external objects is more restrained. The furnishings are few, simple, yet meticulous and elaborate. The stone is thick and the wood is smooth, showing the aesthetics of the design in the right way and giving it a simple philosophy of life.
▼青琅海景大床房,Qing Lang Ocean View Queen Room
© 欧阳云-隐象建筑摄影
▼私人泳池平台,Private pool terrace© 曾瑜松
▼青琅泳池庭院套房,Qing Lang Pool Courtyard Suite© 欧阳云-隐象建筑摄影
山间逸境的宽广,给了设计师更多一点的任性。独占一片空地,从满山遍野的绿意,跳入另一片绿。方圆的拼接,打破泳池的固定形态,将设计的趣味性外化。
身在水中,不觉水流,就如时光一样。我们在其间安静浮沉,亦或是力争上游,各有各的心之所向。值得庆幸的是,生活并不只存在一种选择,依心而定,总有所达。
The expanse of the mountain escape gives the designer a little more freedom. The swimming pool occupies an open space all to itself, jumping from a mountain full of greenery into another. The patchwork of squares and circles breaks the fixed form of the pool and is full of interest.
Immersed in the water, it is difficult to feel the flow of the building, as is the case with time. Immersed in the water, it is difficult to feel the flow of the building, as is the case with time. We float in it as quietly as we like, or as hard as we want. Fortunately, there is not just one choice in life. Choose as you wish, and you will always achieve something.
▼泳池平台,Pool terrace
© 曾瑜松
随流水而行,动线止步于山林晚宴的温柔迷离。烛光荧荧,繁星点点,美酒佳肴,舒心惬意。在花香树影、水月朦胧的世界里,品一杯文火温热的月光,安心坠入一个期盼已久的美梦。
Following the flow of water, the action stops at an enchanting mountain dinner. The candlelight, the wine, and the food are soothing and relaxing. And then, you can fall into a beautiful dream you’ve been waiting for.
▼山林晚宴,Mountain dinner© 曾瑜松
三:心里事
Three: Matters of the heart
我要从山上带给你快乐的花朵
带给你风铃草,黑榛实
和一篮子野生的吻
——聂鲁达《二十首情诗和一首绝望的歌》
北纬 22°的深圳,拥有蜿蜒美丽的海岸线。自由浪漫是这里的生活主调,但也因物质生活的追求,而忽视了静谧宁和的人文氛围的营造。因此,寻觅一处山林得以避世栖居、沉淀自己,属实难得。这也是苫也继【未名海】之后,选择在此处落下【不若林】的原因。
Shenzhen, at 22°N latitude, has a beautiful winding coastline. Freedom and romance are the keynote of life here, but the pursuit of material life has neglected the creation of a quiet and peaceful humanistic atmosphere. Therefore, it is rare to find a place where you can live in the mountains and forests to escape from the world and calm yourself. This is the reason why Sanyea chose to land Forest Retreat here after Sjor Resort.
▼满足多种体验的山间居所,A mountain residence that satisfies multiple experiences© 欧阳云-隐象建筑摄影
蜚声意会着苫也的想法,不断调试着设计的层次与维度。自然环境是本次设计的第一秩序,实现了空间与外在的同频呼吸,设计的基调才能算完成。山林的广阔给予美学艺术、功能叠加等更多的可能性,于是在自然的依存间,抽象的思绪蕴含着无声的诗意,衍化出了具象的物质存在——满足多种体验的山间居所。
Fusion Design has understood Sanyea’s ideas and is constantly adapting the layers and dimensions of the design. The natural environment is the first order of this design, and the tone of the design can be considered complete only after achieving the unity of style between space and environment. The expanse of the mountains and forests gives more possibilities for aesthetic art and functional superposition, so that abstract thoughts contain silent poetry among the dependence of nature, and derive a tangible material existence – a mountain residence that satisfies multiple experiences.
▼空间与外在同频呼吸,The unity of style between space and environment© 欧阳云-隐象建筑摄影
在尘嚣尽染之后,到林中,重新找回自己心里的那首诗。
After the dusty hustle and bustle is over, go to the forest and rediscover the poem in your heart.
我不想再听人说什么了,我想听听松树和风说了什么。——巴哑哑《词的练习》
▼夕阳下的户外平台,Outdoor terrace at dusk© 曾瑜松
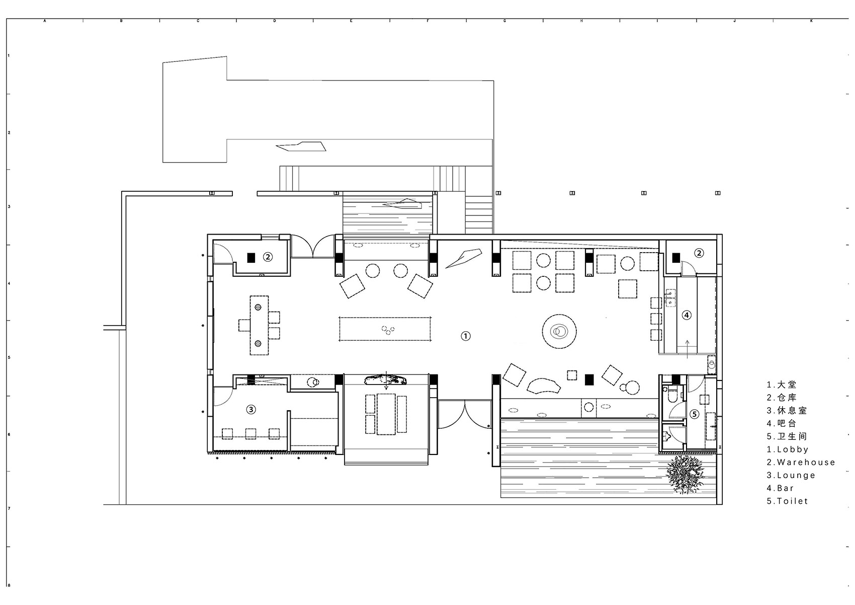
▼大堂总平图,Lobby plan© 蜚声设计
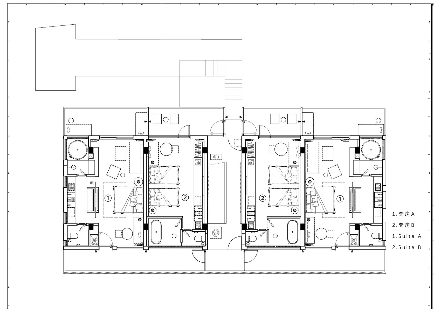
▼三栋一楼平面图,Plan level 1 – Block 3© 蜚声设计
▼三栋二楼平面图,Plan level 2 – Block 3
© 蜚声设计
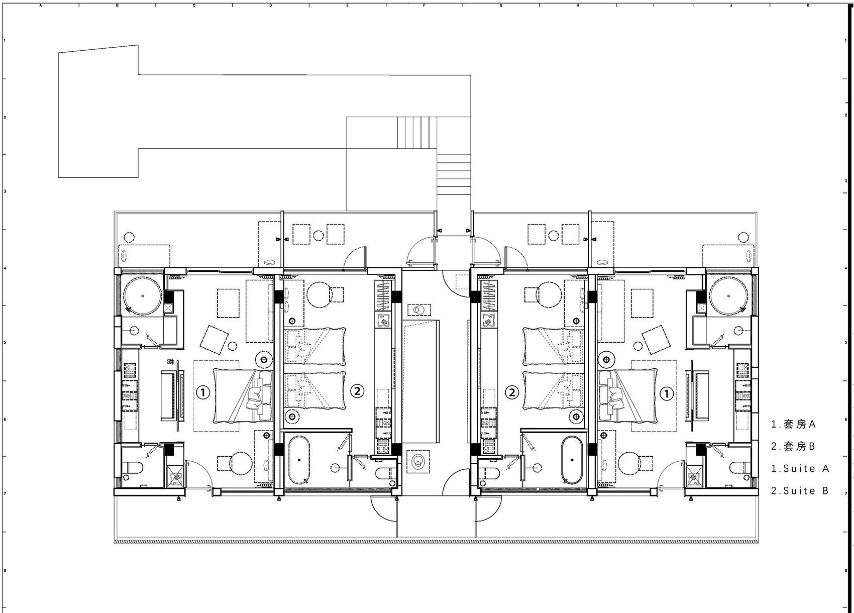
▼四栋二楼平面图,Plan level 2 – Block 4
© 蜚声设计
▼立面图 1,Elevation 1© 蜚声设计
▼立面图 2,Elevation 2© 蜚声设计
▼立面图 3,Elevation 3© 蜚声设计
▼立面图 4,Elevation 4© 蜚声设计
项目名称:苫也·不若林
Name:SANYEA-Forest Retreat
项目地点:中国 深圳
Location:Shenzhen, China
建筑/景观/室内/陈设:蜚声设计
Building/Landscape/Interior/FF&E Design:FUSION DESIGN
主案设计:文志刚、李诗琪
Chief Design:Josh Wen、Suki Li
设计团队:姚尧梦越、向维方、黄楠、李嘉豪、唐鹏山、王晶晶
Design Team:Alvis Yao、Willem Xiang、Holly Huang、Billy,Li、Pengshan Tang、Jojo Wang
软装团队:王晨曦、胡建美、苗慧
FF&E Design:Aurora Wang、Mayra Hu、Hui Miao
设计面积:5000㎡
Project Area:5000㎡
项目文案:陈芊
Copywriter:Alina Chen
项目摄影:欧阳云-隐象建筑摄影
Photographer:Yun Ouyang
项目甲方:深圳市苫也文旅发展有限公司
Client:Shenzhen Sanyea Cultural Tourism Development Co., Ltd.
客服
消息
收藏
下载
最近






























































































