查看完整案例

收藏

下载
这间坐落于挪威西部乌尔维克的小屋是对乡土建筑的一次致敬。项目从Rudolf Olgiati融合乡土建筑和历史主义的作品中汲取灵感,并参考Hans Gude的浪漫主义民族画作。后者既以一种直接的、景观化的方式,又以一种抽象的方式缓慢而稳定地推动了设计传统的发展。
This cabin in Ulvik, Western Norway, is a homage to country-road architecture. Important as sources of inspiration are the works of Rudolf Olgiati; with its blend of vernacular architecture and historical design principles, as well as the romantic nationalism paintings of Hans Gude. The latter both in a direct, landscapy way, and in a more abstract way being within the tradition of design as a method of slow and steady progression.
▼项目概览,overall of the project © Tom Auger
在秋天,小屋赭黄色的墙壁将与白杨林融为一体,四周景观石墙的水平线与建筑物相遇,被南侧耸立的保护墙打断。这种为遮蔽风雨而增加厚保护墙的策略是当地的典型做法。
In fall the ochre yellow walls are pure camouflage in the aspen forest, and the long lines of the stone walls of the surrounding landscape are met, and interrupted, by the shielding southern wall of the building. This way of making an extra thick and protective wall towards the dominating wind and rain is typical for this area.
▼对岸视角,view over the fjord © Tom Auger
▼道路视角,view from the road © Tom Auger
此外,山墙上的斜梁为建筑物提供了向同一方向的支撑推力,进一步加强了对天气的防御。具有双重功能的倾斜屋檐还可用于固定屋顶的排水管。
The slanted beam on the opposite gable wall gives the building a supportive push in the same direction, and thereby further underlines the defining weather conditions. This last element is double functional as it also holds the drainage pipe from the roof.
▼东侧视角,view from the east side © Tom Auger
小屋及附属建筑是一个综合体,共同组成了与道路相连的传统小型农场。“粉黄色”的小木屋将农场中通常漆成白色的传统房屋和通常漆成暖红色的谷仓融为一体。农场小屋在20世纪中叶作为中产阶级的娱乐场所引入该地区,其功能介于舒适的住宅和粗糙的谷仓之间。这种“中间”的状态在本案的立面构成中也有所体现。
As a complex the cabin together with it’s annex has the composition of a traditional small scale farm linked by the access road. Being pinky-yellow the cabin is a merge between the traditional house on such a farm, normally painted white, and the barn, normally painted a warm red. Cabins as such, being introduced to this area in the middle of the 20th-century as recreation for the upper middle class, where meant to function somewhere between the comfort of a house, and the roughness of a barn. This intermediate state can also be traced in the facade composition of this building with some features commonly found in barns and others commonly found in houses.
▼屋檐细部,details of the roof © Tom Auger
此外,面向峡湾的立面也既具代表性又具普遍性,进一步体现出建筑物“模棱两可” 的特征。门洞上方的檐口墙向上延伸,与女儿墙相连,以树立一种庄严的入口形象,而窗户上方的倾斜屋檐则显得低调,为窗户提供了遮蔽。
Further pointing to the ambiguous character of the building the facade facing the fjord is both representative and plebeian. The cornice over the main door is lifted to a parapet to signal entrance and dignity, while the eaves over the large window gives a low-key impression (as well as providing shelter for the window).
▼入口空间,entrance © Tom Auger
▼看向内部混凝土拱,view of the concrete arch inside © Tom Auger
▼结构细部,details © Tom Auger
更微妙的是,玻璃立面内的混凝土拱与房屋外的倾斜梁在构成平衡的同时又形成了对比,极具侵略性的倾斜木梁弱化了拱门的形状和特征,为大门让出了位置。
More subtle the concrete arch inside the glass facade balance the slanted beam on the outside, but, contrasting the aggressiveness of the wooden beam, the arch is withdrawn in shape and character to provide room for the door.
▼木梁与混凝土拱相接,the concrete arch inside in balance with the slanted beam on the outside © Tom Auger
从构图来看,无论是内部还是外部,比起凸显特色,建筑更加注重普通元素的并置。
As composition, inside and outside, the building is more juxtaposition of ordinary elements than a display of the unique.
▼室内空间概览,overview of the interior space © Tom Auger
▼从室内看窗外,view through the window © Tom Auger
▼餐厅,dining space © Tom Auger
▼不同材料的并置,juxtaposition of ordinary elements © Tom Auger
▼书房,study © Tom Auger
比起提供量身定制的方案,设计更多地以现成物品达成巧妙的设计,简约而不简单。
More thoughtful use of off-the-shelf items than tailor-made solutions, although not pure even in this respect.
▼夜景,night view © Tom Auger
▼模型,model © Rever & Drage
▼场地平面,site plan © Rever & Drage
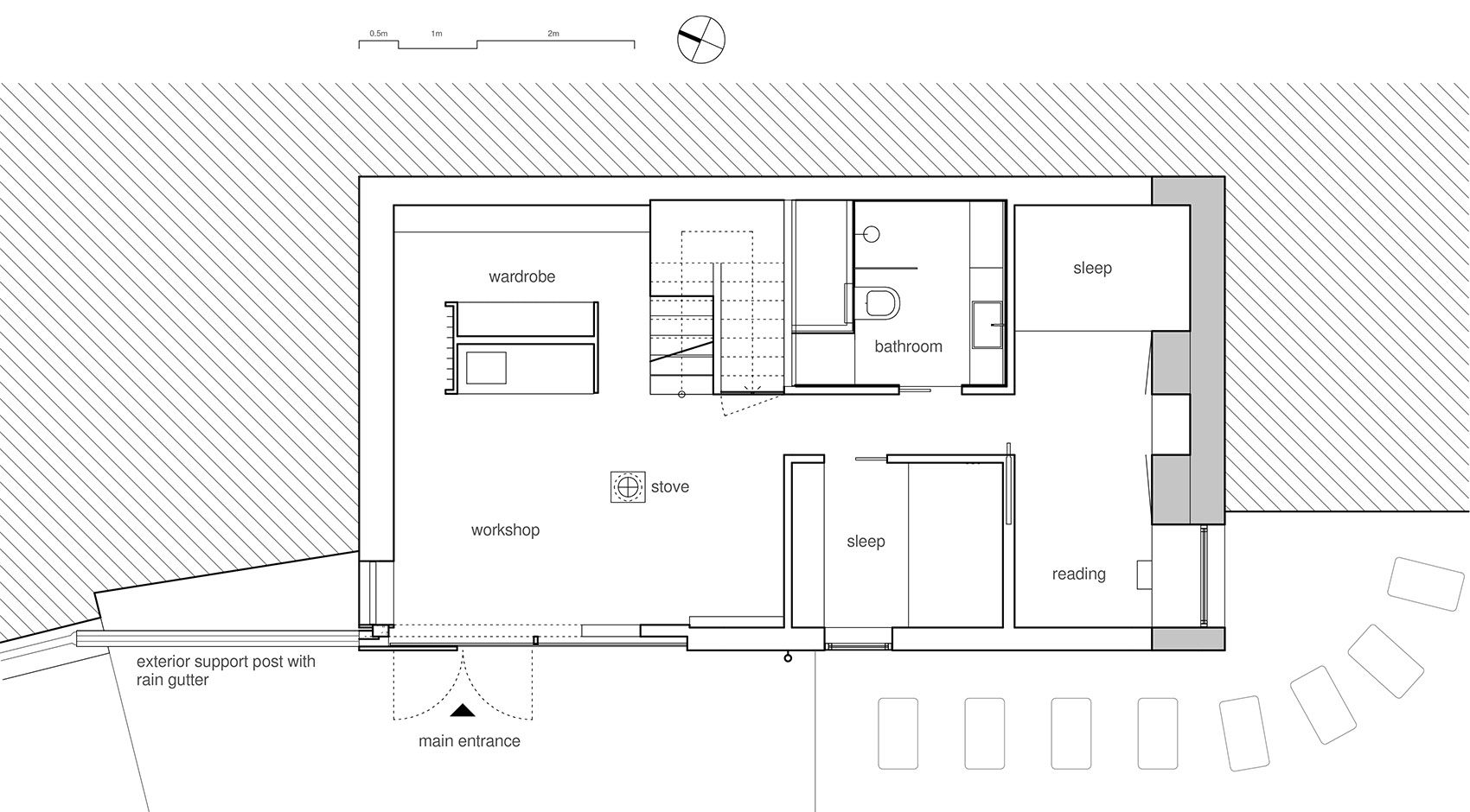
▼首层平面,the first floor plan © Rever & Drage
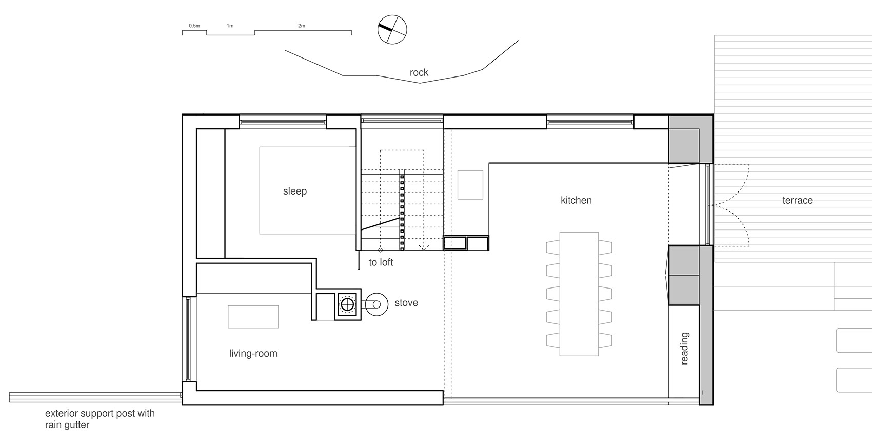
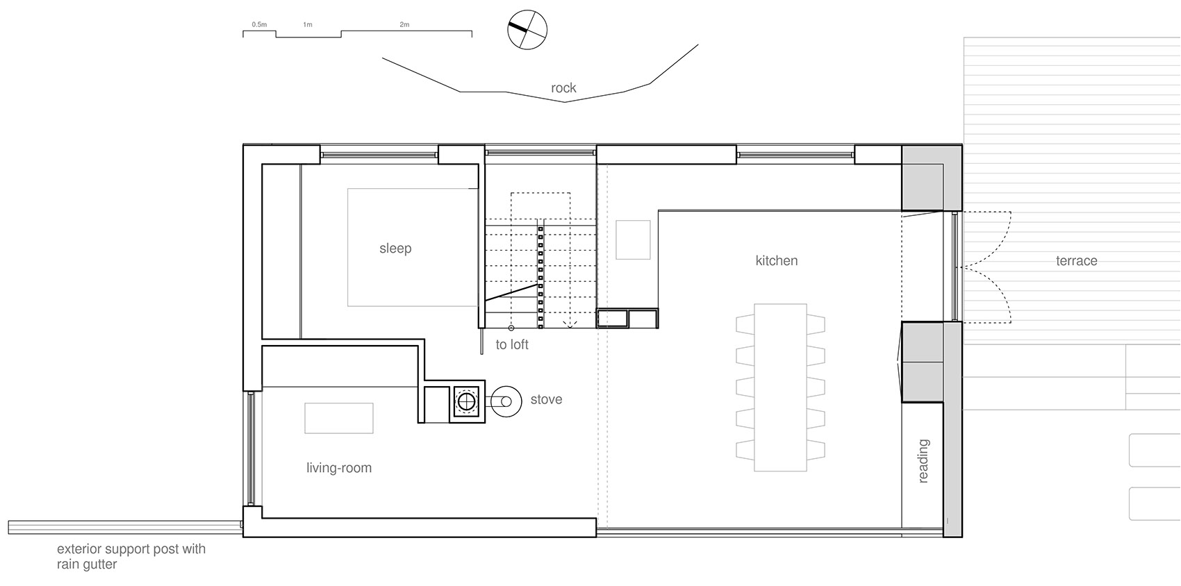
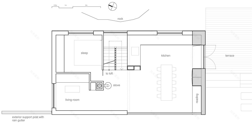
▼二层平面,the second floor plan © Rever & Drage
▼组合立面,west elevation © Rever & Drage
▼小屋西立面,west elevation of cabin © Rever & Drage
▼北立面,north elevation © Rever & Drage
▼剖面,section © Rever & Drage
Project name: Cabin in Ulvik
Architects: Rever & Drage
Design team: Tom Auger, Martin Beverfjord, Eirik Lilledrange
Built by: Halldor & Johs Hamre AS
Complete: 2020
Location: Ulvik, Norway
Area: 142 m2
Photo: Tom Auger
客服
消息
收藏
下载
最近

































